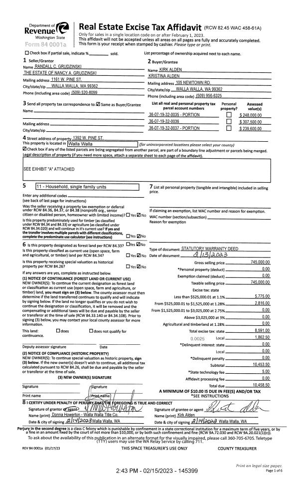
Property
Account |
| Property ID: | 6117 | Abbreviated Legal Description: | AFTER ADJUSTMENT LOT 3 SURVEY 2023-00235 (PORTION LOT 3 SHORT PLAT 2/177 1992-06459) PTN TAX 13 IN NW1/4 SW1/4 |
| Parcel Number: | 360719320037 | Agent Code: | |
| Type: | Real | | |
| Tax Area: | 1 - OL-140-F | Land Use Code | 11 |
| Open Space: | N | DFL | N |
| Historic Property: | N | Remodel Property: | N |
| Multi-Family Redevelopment: | N | | |
| Township: | 7 | Section: | 19 |
| Range: | 36 |
Location |
| Address: | 1390 W PINE ST WA 99362 | Mapsco: | |
| Neighborhood: | | Map ID: | |
| Neighborhood CD: | 3343 |
Owner |
| Name: | ARREOLA BRAYAN L | Owner ID: | 73374 |
| Mailing Address: | EDGAR & ALMA ARREOLA 1390 W PINE ST WALLA WALLA, WA 99362 | % Ownership: | 100.0000000000% |
| | | Exemptions: | |
Taxes and Assessment Details
Values
| (+) Improvement Homesite Value: | + | $0 | |
| (+) Improvement Non-Homesite Value: | + | $38,000 | |
| (+) Land Homesite Value: | + | $0 | |
| (+) Land Non-Homesite Value: | + | $201,600 | |
| (+) Curr Use (HS): | + | $0 | $0 |
| (+) Curr Use (NHS): | + | $0 | $0 |
| | | -------------------------- | |
| (=) Market Value: | = | $239,600 | |
| (–) Productivity Loss: | – | $0 | |
| | | -------------------------- | |
| (=) Subtotal: | = | $239,600 | |
| (+) Senior Appraised Value: | + | $0 | |
| (+) Non-Senior Appraised Value: | + | $239,600 | |
| | | -------------------------- | |
| (=) Total Appraised Value: | = | $239,600 | |
| (–) Senior Exemption Loss: | – | $0 | |
| (–) Exemption Loss: | – | $0 | |
| | | -------------------------- | |
| (=) Taxable Value: | = | $239,600 | |
Taxing Jurisdiction
| Owner: | ARREOLA BRAYAN L | | |
| % Ownership: | 100.0000000000% | | |
| Total Value: | $239,600 | | |
| Tax Area: | 1 - OL-140-F |
| CERFD | CURRENT EXPENSE REFUND 010 | 0.0000000000 | $239,600 | $239,600 | $0.00 | | |
| CURREXP | CURRENT EXPENSE 010 | 1.0175366760 | $239,600 | $239,600 | $243.80 | | |
| HUMNSERV | HUMAN SERVICES 119 | 0.0250000000 | $239,600 | $239,600 | $5.99 | | |
| SLDREL | SOLDIERS RELIEF 121 | 0.0155990005 | $239,600 | $239,600 | $3.74 | | |
| EMERGSER | EMS 147 | 0.3792580840 | $239,600 | $239,600 | $90.87 | | |
| EMSRFD | EMS REFUND 147 | 0.0000000000 | $239,600 | $239,600 | $0.00 | | |
| PORTRFD | PORT REFUND 640 | 0.0000000000 | $239,600 | $239,600 | $0.00 | | |
| PORTWWGEN | PORT OF WW 640 | 0.2460186015 | $239,600 | $239,600 | $58.95 | | |
| SD140BOND | SD #140 BOND 764 | 0.8342371393 | $239,600 | $239,600 | $199.88 | | |
| SD140GEN | SD #140 GENERAL 760 | 2.0646500647 | $239,600 | $239,600 | $494.69 | | |
| ST2 | STATE SCHOOL PART 2 600 | 0.8131451643 | $239,600 | $239,600 | $194.83 | | |
| STATESCHL | STATE SCHOOL 600 | 1.5158548041 | $239,600 | $239,600 | $363.20 | | |
| STREFUND | STATE REFUND LEVY 603 | 0.0000000000 | $239,600 | $239,600 | $0.00 | | |
| CWWBOND | C OF WW BOND 643 | 0.2760494372 | $239,600 | $239,600 | $66.14 | | |
| CWWGEN | CITY OF WW 631 | 1.6100204973 | $239,600 | $239,600 | $385.76 | | |
| CWWRFD | CITY OF WALLA WALLA REFUND 631 | 0.0000000000 | $239,600 | $239,600 | $0.00 | | |
| | Total Tax Rate: | 8.7973694689 | | | | | |
| | | | | Taxes w/Current Exemptions: | $2,107.85 | | |
| | | | | Taxes w/o Exemptions: | $2,107.85 | | |
Improvement / Building
| Improvement #1: | RESIDENTIAL | State Code: | 11 | 1102.0 sqft | Value: | $38,000 |
| Exterior Wall: | SIDING | Heating/Cooling: | FORCED AIR | | Number of Bathrooms: | 1 | Number of Bedrooms: | 2 | | Plumbing: | 7 | Roof Covering: | COMP SHINGLE |
|
| | Type | Description | Class CD | Sub Class CD | Year Built | Area |
| | MA | Main Area | 1 | 25 | 1919 | 1102.0 |
| | SI1 | SITE IMPROVEMENT | 1 | 25 | 0 | 1.0 |
| | BASE | BASEMENT | 1 | 25 | 1919 | 1090.0 |
| | RPO | OPEN PORCH W/ROOF | 1 | 25 | 1919 | 105.0 |
Sketch
Property Image
Land
| 1 | RES 1 | Converted: Residential | 0.4443 | 19352.00 | 0.00 | 0.00 | 1.00 | $201,600 | $0 |
Roll Value History
| 2026 | N/A | N/A | N/A | N/A | N/A |
| 2025 | $42,400 | $201,600 | $0 | $244,000 | $244,000 |
| 2024 | $42,400 | $201,600 | $0 | $244,000 | $244,000 |
| 2023 | $38,000 | $201,600 | $0 | $239,600 | $239,600 |
| 2022 | $38,000 | $201,600 | $0 | $239,600 | $239,600 |
| 2021 | $16,800 | $200,110 | $0 | $216,910 | $216,910 |
| 2020 | $16,800 | $200,110 | $0 | $216,910 | $216,910 |
| 2019 | $16,800 | $200,110 | $0 | $216,910 | $216,910 |
| 2018 | $16,800 | $200,110 | $0 | $216,910 | $216,910 |
| 2017 | $16,800 | $200,110 | $0 | $216,910 | $216,910 |
| 2016 | $16,800 | $200,110 | $0 | $216,910 | $216,910 |
| 2015 | $5,800 | $118,500 | $0 | $124,300 | $124,300 |
| 2014 | $5,800 | $118,500 | $0 | $124,300 | $124,300 |
| 2013 | $5,800 | $118,500 | $0 | $124,300 | $124,300 |
| 2012 | $5,800 | $139,400 | $0 | $0 | $0 |
| 2011 | $5,800 | $139,400 | $0 | $0 | $0 |
| 2010 | $65,700 | $39,300 | $0 | $0 | $0 |
| 2009 | $87,600 | $22,900 | $0 | $0 | $0 |
| 2008 | $38,500 | $22,900 | $0 | $0 | $0 |
| 2007 | $38,500 | $22,900 | $0 | $0 | $0 |
Deed and Sales History
| 1 | 02/15/2023 | QCD | QUIT CLAIM DEED | ARREOLA MORGAN | ARREOLA BRAYAN L | | | | 145401 | 2023-00780 |
| 2 | 02/15/2023 | SWD | STATUTORY WARRANTY DEED | GRUDZINSKI RANDALL C | ARREOLA BRAYAN L | | | $240,000.00 | 145400 | 2023-00779 |
| 3 | 01/17/2023 | SURVEY | SURVEY | | | 14 | 91 | | 0 | 2023-00235 |
| 4 | 08/20/1990 | WARRANTY D | WARRANTY DEED | | | | | $45,000.00 | 0 | 1849-005694 |
Payout Agreement
| No payout information available.. |