Property
Account |
| Property ID: | 6111 | Abbreviated Legal Description: | 19-7-36 TAX 33, 34, 37 |
| Parcel Number: | 360719320020 | Agent Code: | |
| Type: | Real | | |
| Tax Area: | 5 - OL-140 | Land Use Code | 51 |
| Open Space: | N | DFL | N |
| Historic Property: | N | Remodel Property: | N |
| Multi-Family Redevelopment: | N | | |
| Township: | 7 | Section: | 19 |
| Range: | 36 |
Location |
| Address: | 1329 DELL AVE WA 99362 | Mapsco: | |
| Neighborhood: | | Map ID: | |
| Neighborhood CD: | 3343 |
Owner |
| Name: | KNOWLES PROPERTIES LLC | Owner ID: | 63116 |
| Mailing Address: | 1327 DELL AVE WALLA WALLA, WA 99362 | % Ownership: | 100.0000000000% |
| | | Exemptions: | |
Taxes and Assessment Details
Property Tax Information as of
02/21/2026
Click on "Statement Details" to expand or collapse a tax statement.
* Please enter a valid date ** Please enter a valid date *
Statement Details |
| | TOTAL: | $0.00 | $0.00 | $0.00 | $0.00 | $0.00 | $0.00 |
|
| | $0.00 | $0.00 | $0.00 | $0.00 | $0.00 | $0.00 |
Values
| (+) Improvement Homesite Value: | + | $0 | |
| (+) Improvement Non-Homesite Value: | + | $372,900 | |
| (+) Land Homesite Value: | + | $0 | |
| (+) Land Non-Homesite Value: | + | $137,000 | |
| (+) Curr Use (HS): | + | $0 | $0 |
| (+) Curr Use (NHS): | + | $0 | $0 |
| | | -------------------------- | |
| (=) Market Value: | = | $509,900 | |
| (–) Productivity Loss: | – | $0 | |
| | | -------------------------- | |
| (=) Subtotal: | = | $509,900 | |
| (+) Senior Appraised Value: | + | $0 | |
| (+) Non-Senior Appraised Value: | + | $509,900 | |
| | | -------------------------- | |
| (=) Total Appraised Value: | = | $509,900 | |
| (–) Senior Exemption Loss: | – | $0 | |
| (–) Exemption Loss: | – | $0 | |
| | | -------------------------- | |
| (=) Taxable Value: | = | $509,900 | |
Taxing Jurisdiction
| Owner: | KNOWLES PROPERTIES LLC | | |
| % Ownership: | 100.0000000000% | | |
| Total Value: | $509,900 | | |
| Tax Area: | 5 - OL-140 |
| CERFD | CURRENT EXPENSE REFUND 010 | 0.0000000000 | $509,900 | $509,900 | $0.00 | | |
| CURREXP | CURRENT EXPENSE 010 | 1.0175366760 | $509,900 | $509,900 | $518.84 | | |
| HUMNSERV | HUMAN SERVICES 119 | 0.0250000000 | $509,900 | $509,900 | $12.75 | | |
| SLDREL | SOLDIERS RELIEF 121 | 0.0155990005 | $509,900 | $509,900 | $7.95 | | |
| EMERGSER | EMS 147 | 0.3792580840 | $509,900 | $509,900 | $193.38 | | |
| EMSRFD | EMS REFUND 147 | 0.0000000000 | $509,900 | $509,900 | $0.00 | | |
| PORTRFD | PORT REFUND 640 | 0.0000000000 | $509,900 | $509,900 | $0.00 | | |
| PORTWWGEN | PORT OF WW 640 | 0.2460186015 | $509,900 | $509,900 | $125.44 | | |
| SD140BOND | SD #140 BOND 764 | 0.8342371393 | $509,900 | $509,900 | $425.38 | | |
| SD140GEN | SD #140 GENERAL 760 | 2.0646500647 | $509,900 | $509,900 | $1,052.77 | | |
| ST2 | STATE SCHOOL PART 2 600 | 0.8131451643 | $509,900 | $509,900 | $414.62 | | |
| STATESCHL | STATE SCHOOL 600 | 1.5158548041 | $509,900 | $509,900 | $772.93 | | |
| STREFUND | STATE REFUND LEVY 603 | 0.0000000000 | $509,900 | $509,900 | $0.00 | | |
| CWWBOND | C OF WW BOND 643 | 0.2760494372 | $509,900 | $509,900 | $140.76 | | |
| CWWGEN | CITY OF WW 631 | 1.6100204973 | $509,900 | $509,900 | $820.95 | | |
| CWWRFD | CITY OF WALLA WALLA REFUND 631 | 0.0000000000 | $509,900 | $509,900 | $0.00 | | |
| | Total Tax Rate: | 8.7973694689 | | | | | |
| | | | | Taxes w/Current Exemptions: | $4,485.77 | | |
| | | | | Taxes w/o Exemptions: | $4,485.77 | | |
Improvement / Building
| Improvement #1: | RESIDENTIAL | State Code: | 51 | 1320.0 sqft | Value: | $106,400 |
| Exterior Wall: | SIDING | Heating/Cooling: | WARM & COOLED AIR | | Number of Bathrooms: | 1.5 | Number of Bedrooms: | 3 | | Plumbing: | 9 | Roof Covering: | COMP SHINGLE |
|
| | Type | Description | Class CD | Sub Class CD | Year Built | Area |
| | MA | Main Area | 1 | 30 | 1947 | 1320.0 |
| | SI1 | SITE IMPROVEMENT | 1 | 30 | 0 | 2.0 |
| | BASE | BASEMENT | 1 | 30 | 1947 | 864.0 |
| | BMF | BASEMENT - MIN FINISH | 1 | 30 | 1947 | 864.0 |
| | DTG | Detached Garage | 1 | 30 | 1947 | 654.0 |
| | CPC | COVERED CARPORT/PATIO | 1 | 30 | 1947 | 370.0 |
| Improvement #2: | COMMERCIAL | State Code: | 51 | 16198.0 sqft | Value: | $266,500 |
Sketch
Property Image
Land
| 1 | COM 1 | Converted: Commercial | 2.3400 | 101930.40 | 0.00 | 0.00 | 1.00 | $137,000 | $0 |
Roll Value History
| 2026 | N/A | N/A | N/A | N/A | N/A |
| 2025 | $379,300 | $137,000 | $0 | $516,300 | $516,300 |
| 2024 | $372,900 | $137,000 | $0 | $509,900 | $509,900 |
| 2023 | $372,900 | $137,000 | $0 | $509,900 | $509,900 |
| 2022 | $372,900 | $137,000 | $0 | $509,900 | $509,900 |
| 2021 | $316,000 | $56,200 | $0 | $372,200 | $372,200 |
| 2020 | $316,000 | $56,200 | $0 | $372,200 | $372,200 |
| 2019 | $202,400 | $56,200 | $0 | $258,600 | $258,600 |
| 2018 | $147,710 | $56,200 | $0 | $203,910 | $203,910 |
| 2017 | $147,710 | $56,200 | $0 | $203,910 | $203,910 |
| 2016 | $147,710 | $56,200 | $0 | $203,910 | $203,910 |
| 2015 | $147,700 | $55,400 | $0 | $203,100 | $203,100 |
| 2014 | $147,700 | $55,400 | $0 | $203,100 | $203,100 |
| 2013 | $147,700 | $55,400 | $0 | $203,100 | $203,100 |
| 2012 | $147,700 | $55,400 | $0 | $0 | $0 |
| 2011 | $147,700 | $55,400 | $0 | $0 | $0 |
| 2010 | $155,700 | $55,400 | $0 | $0 | $0 |
| 2009 | $165,700 | $50,400 | $0 | $0 | $0 |
| 2008 | $165,700 | $50,400 | $0 | $0 | $0 |
| 2007 | $165,700 | $50,400 | $0 | $0 | $0 |
Deed and Sales History
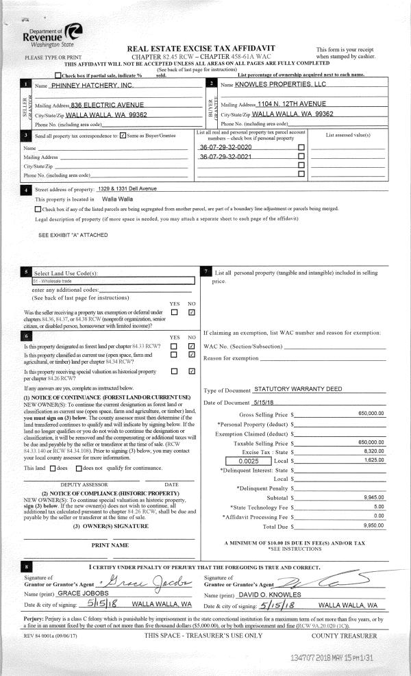
| 1 | 05/15/2018 | SWD | STATUTORY WARRANTY DEED | PHINNEY HATCHERY INC | KNOWLES PROPERTIES LLC | | 2-PARCELS | $650,000.00 | 134707 | 2018-03799 |
|   | |
| 2 | 06/19/1969 | WARRANTY D | WARRANTY DEED | | | | | | 0 | 3505-50371 |
Payout Agreement
| No payout information available.. |