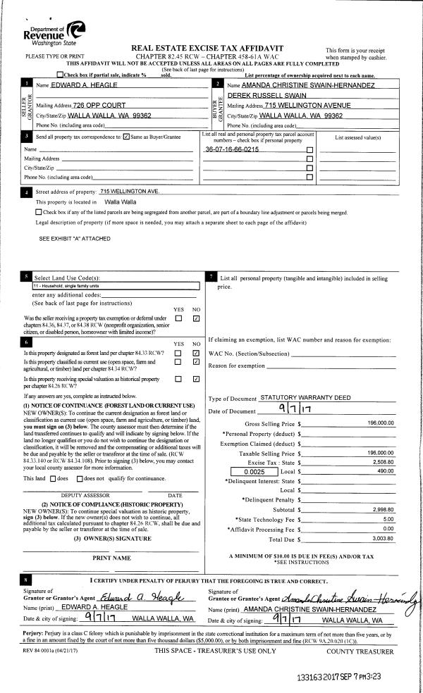
Property
Account |
| Property ID: | 6053 | Abbreviated Legal Description: | FREEWAY PARK ADDITION LOT 15 BLK 2 |
| Parcel Number: | 360716660215 | Agent Code: | |
| Type: | Real | | |
| Tax Area: | 5 - OL-140 | Land Use Code | 11 |
| Open Space: | N | DFL | N |
| Historic Property: | N | Remodel Property: | N |
| Multi-Family Redevelopment: | N | | |
| Township: | 7 | Section: | 16 |
| Range: | 36 |
Location |
| Address: | 715 WELLINGTON AVE WA 99362 | Mapsco: | |
| Neighborhood: | G-SFR | Map ID: | |
| Neighborhood CD: | 514011 |
Owner |
| Name: | SWAIN-HERNANDEZ AMANDA CHRISTINE | Owner ID: | 61595 |
| Mailing Address: | DEREK RUSSELL SWAIN 715 WELLINGTON AVE WALLA WALLA, WA 99362 | % Ownership: | 100.0000000000% |
| | | Exemptions: | |
Taxes and Assessment Details
Property Tax Information as of
02/21/2026
Click on "Statement Details" to expand or collapse a tax statement.
* Please enter a valid date ** Please enter a valid date *
Statement Details |
| | TOTAL: | $0.00 | $0.00 | $0.00 | $0.00 | $0.00 | $0.00 |
|
| | $0.00 | $0.00 | $0.00 | $0.00 | $0.00 | $0.00 |
Values
| (+) Improvement Homesite Value: | + | $0 | |
| (+) Improvement Non-Homesite Value: | + | $265,270 | |
| (+) Land Homesite Value: | + | $0 | |
| (+) Land Non-Homesite Value: | + | $45,780 | |
| (+) Curr Use (HS): | + | $0 | $0 |
| (+) Curr Use (NHS): | + | $0 | $0 |
| | | -------------------------- | |
| (=) Market Value: | = | $311,050 | |
| (–) Productivity Loss: | – | $0 | |
| | | -------------------------- | |
| (=) Subtotal: | = | $311,050 | |
| (+) Senior Appraised Value: | + | $0 | |
| (+) Non-Senior Appraised Value: | + | $311,050 | |
| | | -------------------------- | |
| (=) Total Appraised Value: | = | $311,050 | |
| (–) Senior Exemption Loss: | – | $0 | |
| (–) Exemption Loss: | – | $0 | |
| | | -------------------------- | |
| (=) Taxable Value: | = | $311,050 | |
Taxing Jurisdiction
| Owner: | SWAIN-HERNANDEZ AMANDA CHRISTINE | | |
| % Ownership: | 100.0000000000% | | |
| Total Value: | $311,050 | | |
| Tax Area: | 5 - OL-140 |
| CERFD | CURRENT EXPENSE REFUND 010 | 0.0000000000 | $311,050 | $311,050 | $0.00 | | |
| CURREXP | CURRENT EXPENSE 010 | 1.0175366760 | $311,050 | $311,050 | $316.50 | | |
| HUMNSERV | HUMAN SERVICES 119 | 0.0250000000 | $311,050 | $311,050 | $7.78 | | |
| SLDREL | SOLDIERS RELIEF 121 | 0.0155990005 | $311,050 | $311,050 | $4.85 | | |
| EMERGSER | EMS 147 | 0.3792580840 | $311,050 | $311,050 | $117.97 | | |
| EMSRFD | EMS REFUND 147 | 0.0000000000 | $311,050 | $311,050 | $0.00 | | |
| PORTRFD | PORT REFUND 640 | 0.0000000000 | $311,050 | $311,050 | $0.00 | | |
| PORTWWGEN | PORT OF WW 640 | 0.2460186015 | $311,050 | $311,050 | $76.52 | | |
| SD140BOND | SD #140 BOND 764 | 0.8342371393 | $311,050 | $311,050 | $259.49 | | |
| SD140GEN | SD #140 GENERAL 760 | 2.0646500647 | $311,050 | $311,050 | $642.21 | | |
| ST2 | STATE SCHOOL PART 2 600 | 0.8131451643 | $311,050 | $311,050 | $252.93 | | |
| STATESCHL | STATE SCHOOL 600 | 1.5158548041 | $311,050 | $311,050 | $471.51 | | |
| STREFUND | STATE REFUND LEVY 603 | 0.0000000000 | $311,050 | $311,050 | $0.00 | | |
| CWWBOND | C OF WW BOND 643 | 0.2760494372 | $311,050 | $311,050 | $85.87 | | |
| CWWGEN | CITY OF WW 631 | 1.6100204973 | $311,050 | $311,050 | $500.80 | | |
| CWWRFD | CITY OF WALLA WALLA REFUND 631 | 0.0000000000 | $311,050 | $311,050 | $0.00 | | |
| | Total Tax Rate: | 8.7973694689 | | | | | |
| | | | | Taxes w/Current Exemptions: | $2,736.43 | | |
| | | | | Taxes w/o Exemptions: | $2,736.43 | | |
Improvement / Building
| Improvement #1: | RESIDENTIAL | State Code: | 11 | 1211.0 sqft | Value: | $265,270 |
| Exterior Wall: | PLYWOOD | Heating/Cooling: | WARM & COOLED AIR | | Number of Bathrooms: | 2 | Number of Bedrooms: | 3 | | Plumbing: | 9 | Roof Covering: | COMP SHINGLE |
|
| | Type | Description | Class CD | Sub Class CD | Year Built | Area |
| | MA | Main Area | 1 | 30 | 2002 | 1211.0 |
| | SI1 | SITE IMPROVEMENT | 1 | 30 | 0 | 1.5 |
| | ATG | Attached Garage | 1 | 30 | 2002 | 480.0 |
| | RPO | OPEN PORCH W/ROOF | 1 | 30 | 2002 | 24.0 |
Sketch
Property Image
Land
| 1 | RES 1 | Converted: Residential | 0.1450 | 6315.00 | 0.00 | 0.00 | 1.00 | $45,780 | $0 |
Roll Value History
| 2026 | N/A | N/A | N/A | N/A | N/A |
| 2025 | $273,980 | $69,470 | $0 | $343,450 | $343,450 |
| 2024 | $238,240 | $69,470 | $0 | $307,710 | $307,710 |
| 2023 | $265,270 | $45,780 | $0 | $311,050 | $311,050 |
| 2022 | $241,150 | $45,780 | $0 | $286,930 | $286,930 |
| 2021 | $200,960 | $45,780 | $0 | $246,740 | $246,740 |
| 2020 | $162,070 | $45,780 | $0 | $207,850 | $207,850 |
| 2019 | $162,070 | $45,780 | $0 | $207,850 | $207,850 |
| 2018 | $135,050 | $45,780 | $0 | $180,830 | $180,830 |
| 2017 | $135,050 | $28,400 | $0 | $163,450 | $163,450 |
| 2016 | $131,120 | $28,400 | $0 | $159,520 | $159,520 |
| 2015 | $131,120 | $28,400 | $0 | $159,520 | $159,520 |
| 2014 | $119,200 | $28,400 | $0 | $147,600 | $147,600 |
| 2013 | $119,200 | $28,400 | $0 | $147,600 | $147,600 |
| 2012 | $143,200 | $28,400 | $0 | $0 | $0 |
| 2011 | $143,200 | $28,400 | $0 | $0 | $0 |
| 2010 | $135,000 | $28,400 | $0 | $0 | $0 |
| 2009 | $153,200 | $28,400 | $0 | $0 | $0 |
| 2008 | $129,500 | $28,400 | $0 | $0 | $0 |
| 2007 | $129,500 | $28,400 | $0 | $0 | $0 |
Deed and Sales History
| 1 | 09/07/2017 | SWD | STATUTORY WARRANTY DEED | HEAGLE EDWARD A | SWAIN-HERNANDEZ AMANDA CHRISTINE | | | $196,000.00 | 133163 | 2017-07027 |
| 2 | 05/17/2002 | WARRANTY D | WARRANTY DEED | | | | | $109,000.00 | 99517 | 2002-0005821 |
Payout Agreement
| No payout information available.. |