Property
Account |
| Property ID: | 6023 | Abbreviated Legal Description: | MELODY PARK TERRACE WEST LOT 5 BLK 1 |
| Parcel Number: | 360716600105 | Agent Code: | |
| Type: | Real | | |
| Tax Area: | 5 - OL-140 | Land Use Code | 11 |
| Open Space: | N | DFL | N |
| Historic Property: | N | Remodel Property: | N |
| Multi-Family Redevelopment: | N | | |
| Township: | 7 | Section: | 16 |
| Range: | 36 |
Location |
| Address: | 2026 GLEN ERIN DR WA 99362 | Mapsco: | |
| Neighborhood: | A-SFR | Map ID: | |
| Neighborhood CD: | 313011 |
Owner |
| Name: | HYNDMAN ZACHARY S & JENNIFER L | Owner ID: | 65867 |
| Mailing Address: | 2026 GLEN ERIN DR WALLA WALLA, WA 99362 | % Ownership: | 100.0000000000% |
| | | Exemptions: | |
Taxes and Assessment Details
Property Tax Information as of
04/18/2026
Click on "Statement Details" to expand or collapse a tax statement.
* Please enter a valid date ** Please enter a valid date *
Statement Details |
| | TOTAL: | $0.00 | $0.00 | $0.00 | $0.00 | $0.00 | $0.00 |
|
| | $0.00 | $0.00 | $0.00 | $0.00 | $0.00 | $0.00 |
Values
| (+) Improvement Homesite Value: | + | $0 | |
| (+) Improvement Non-Homesite Value: | + | $320,600 | |
| (+) Land Homesite Value: | + | $0 | |
| (+) Land Non-Homesite Value: | + | $90,000 | |
| (+) Curr Use (HS): | + | $0 | $0 |
| (+) Curr Use (NHS): | + | $0 | $0 |
| | | -------------------------- | |
| (=) Market Value: | = | $410,600 | |
| (–) Productivity Loss: | – | $0 | |
| | | -------------------------- | |
| (=) Subtotal: | = | $410,600 | |
| (+) Senior Appraised Value: | + | $0 | |
| (+) Non-Senior Appraised Value: | + | $410,600 | |
| | | -------------------------- | |
| (=) Total Appraised Value: | = | $410,600 | |
| (–) Senior Exemption Loss: | – | $0 | |
| (–) Exemption Loss: | – | $0 | |
| | | -------------------------- | |
| (=) Taxable Value: | = | $410,600 | |
Taxing Jurisdiction
| Owner: | HYNDMAN ZACHARY S & JENNIFER L | | |
| % Ownership: | 100.0000000000% | | |
| Total Value: | $410,600 | | |
| Tax Area: | 5 - OL-140 |
| CERFD | CURRENT EXPENSE REFUND 010 | 0.0000000000 | $410,600 | $410,600 | $0.00 | | |
| CURREXP | CURRENT EXPENSE 010 | 1.0175366760 | $410,600 | $410,600 | $417.80 | | |
| HUMNSERV | HUMAN SERVICES 119 | 0.0250000000 | $410,600 | $410,600 | $10.27 | | |
| SLDREL | SOLDIERS RELIEF 121 | 0.0155990005 | $410,600 | $410,600 | $6.40 | | |
| EMERGSER | EMS 147 | 0.3792580840 | $410,600 | $410,600 | $155.72 | | |
| EMSRFD | EMS REFUND 147 | 0.0000000000 | $410,600 | $410,600 | $0.00 | | |
| PORTRFD | PORT REFUND 640 | 0.0000000000 | $410,600 | $410,600 | $0.00 | | |
| PORTWWGEN | PORT OF WW 640 | 0.2460186015 | $410,600 | $410,600 | $101.02 | | |
| SD140BOND | SD #140 BOND 764 | 0.8342371393 | $410,600 | $410,600 | $342.54 | | |
| SD140GEN | SD #140 GENERAL 760 | 2.0646500647 | $410,600 | $410,600 | $847.75 | | |
| ST2 | STATE SCHOOL PART 2 600 | 0.8131451643 | $410,600 | $410,600 | $333.88 | | |
| STATESCHL | STATE SCHOOL 600 | 1.5158548041 | $410,600 | $410,600 | $622.41 | | |
| STREFUND | STATE REFUND LEVY 603 | 0.0000000000 | $410,600 | $410,600 | $0.00 | | |
| CWWBOND | C OF WW BOND 643 | 0.2760494372 | $410,600 | $410,600 | $113.35 | | |
| CWWGEN | CITY OF WW 631 | 1.6100204973 | $410,600 | $410,600 | $661.07 | | |
| CWWRFD | CITY OF WALLA WALLA REFUND 631 | 0.0000000000 | $410,600 | $410,600 | $0.00 | | |
| | Total Tax Rate: | 8.7973694689 | | | | | |
| | | | | Taxes w/Current Exemptions: | $3,612.21 | | |
| | | | | Taxes w/o Exemptions: | $3,612.21 | | |
Improvement / Building
| Improvement #1: | RESIDENTIAL | State Code: | 11 | 1232.0 sqft | Value: | $320,600 |
| Exterior Wall: | PLYWOOD | Heating/Cooling: | WARM & COOLED AIR | | Number of Bathrooms: | 3 | Number of Bedrooms: | 4 | | Plumbing: | 12 | Roof Covering: | COMP SHINGLE |
|
| | Type | Description | Class CD | Sub Class CD | Year Built | Area |
| | MA | Main Area | 1 | 30 | 1976 | 1232.0 |
| | SI1 | SITE IMPROVEMENT | 1 | 30 | 1976 | 2.5 |
| | BASE | BASEMENT | 1 | 30 | 1976 | 1232.0 |
| | BPF | BASEMENT -PARTITIONED FINISH | 1 | 30 | 1976 | 1232.0 |
| | DTG | Detached Garage | 1 | 30 | 1976 | 1200.0 |
| | QUON | QUONSET BUILDING | 1 | 30 | 1976 | 384.0 |
| | SMP | SWIMMING POOL | 1 | 30 | 1976 | 1.0 |
| | RPC | OPEN PORCH W/ROOF , CEILED | 1 | 30 | 1976 | 120.0 |
| | CPC | COVERED CARPORT/PATIO | 1 | 30 | 1976 | 336.0 |
Sketch
Property Image
Land
| 1 | RES 1 | Converted: Residential | 0.1722 | 7500.00 | 0.00 | 0.00 | 1.00 | $90,000 | $0 |
Roll Value History
| 2026 | N/A | N/A | N/A | N/A | N/A |
| 2025 | $320,600 | $90,000 | $0 | $410,600 | $410,600 |
| 2024 | $320,600 | $90,000 | $0 | $410,600 | $410,600 |
| 2023 | $320,600 | $90,000 | $0 | $410,600 | $410,600 |
| 2022 | $320,600 | $90,000 | $0 | $410,600 | $410,600 |
| 2021 | $272,700 | $55,000 | $0 | $327,700 | $327,700 |
| 2020 | $237,130 | $55,000 | $0 | $292,130 | $292,130 |
| 2019 | $237,130 | $55,000 | $0 | $292,130 | $292,130 |
| 2018 | $197,610 | $55,000 | $0 | $252,610 | $252,610 |
| 2017 | $197,610 | $55,000 | $0 | $252,610 | $252,610 |
| 2016 | $188,200 | $55,000 | $0 | $243,200 | $243,200 |
| 2015 | $186,870 | $55,000 | $0 | $241,870 | $241,870 |
| 2014 | $169,500 | $55,000 | $0 | $224,500 | $224,500 |
| 2013 | $169,500 | $55,000 | $0 | $224,500 | $224,500 |
| 2012 | $169,500 | $55,000 | $0 | $0 | $0 |
| 2011 | $169,500 | $55,000 | $0 | $0 | $0 |
| 2010 | $164,000 | $40,000 | $0 | $0 | $0 |
| 2009 | $211,900 | $40,000 | $0 | $0 | $0 |
| 2008 | $153,800 | $40,000 | $0 | $0 | $0 |
| 2007 | $153,800 | $40,000 | $0 | $0 | $0 |
Deed and Sales History
| 1 | 09/06/2019 | SWD | STATUTORY WARRANTY DEED | HEISEY TERRY & VICKI | HYNDMAN ZACHARY S & JENNIFER L | | | $295,000.00 | 137628 | 2019-06908 |
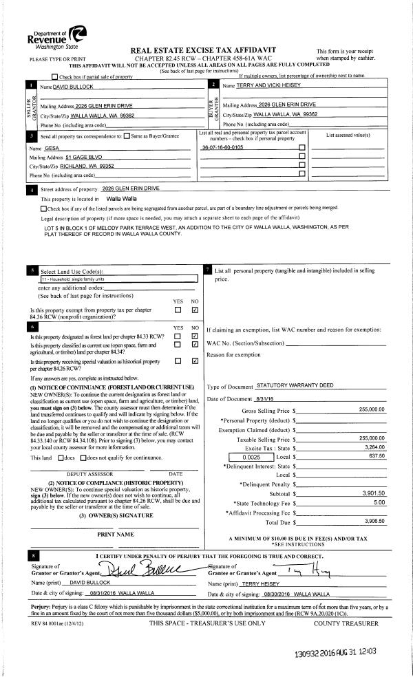
| 2 | 08/31/2016 | SWD | STATUTORY WARRANTY DEED | BULLOCK DAVID A | HEISEY TERRY & VICKI | | | $255,000.00 | 130932 | 2016-07042 |
| 3 | 08/14/2002 | WARRANTY D | WARRANTY DEED | STENDER, DOUGLAS & KATHY | BULLOCK, DAVID A & ANNE L | | | $176,500.00 | 100149 | 2002-0009099 |
Payout Agreement
| No payout information available.. |