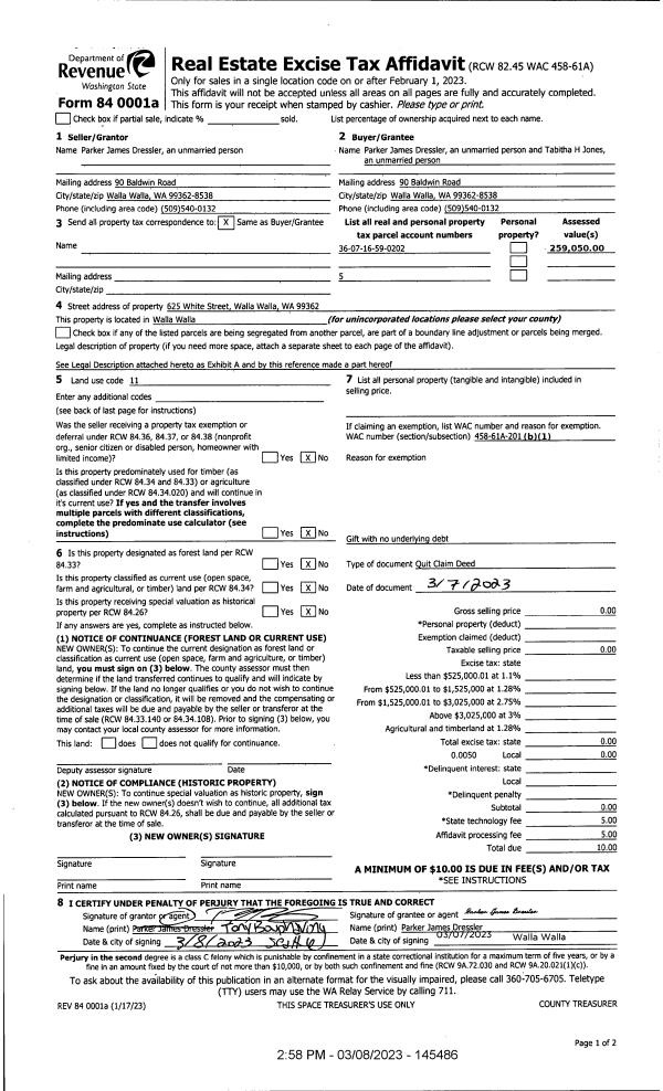
Property
Account |
| Property ID: | 6017 | Abbreviated Legal Description: | WILSON'S 2ND LOT 2 BLK 2 |
| Parcel Number: | 360716590202 | Agent Code: | |
| Type: | Real | | |
| Tax Area: | 5 - OL-140 | Land Use Code | 11 |
| Open Space: | N | DFL | N |
| Historic Property: | N | Remodel Property: | N |
| Multi-Family Redevelopment: | N | | |
| Township: | 7 | Section: | 16 |
| Range: | 36 |
Location |
| Address: | 625 WHITE ST WA 99362 | Mapsco: | |
| Neighborhood: | A-SFR | Map ID: | |
| Neighborhood CD: | 513011 |
Owner |
| Name: | DRESSLER PARKER JAMES | Owner ID: | 73320 |
| Mailing Address: | TABITHA H JONES 90 BALDWIN RD WALLA WALLA, WA 99362 | % Ownership: | 100.0000000000% |
| | | Exemptions: | |
Taxes and Assessment Details
Values
| (+) Improvement Homesite Value: | + | $0 | |
| (+) Improvement Non-Homesite Value: | + | $223,110 | |
| (+) Land Homesite Value: | + | $0 | |
| (+) Land Non-Homesite Value: | + | $35,940 | |
| (+) Curr Use (HS): | + | $0 | $0 |
| (+) Curr Use (NHS): | + | $0 | $0 |
| | | -------------------------- | |
| (=) Market Value: | = | $259,050 | |
| (–) Productivity Loss: | – | $0 | |
| | | -------------------------- | |
| (=) Subtotal: | = | $259,050 | |
| (+) Senior Appraised Value: | + | $0 | |
| (+) Non-Senior Appraised Value: | + | $259,050 | |
| | | -------------------------- | |
| (=) Total Appraised Value: | = | $259,050 | |
| (–) Senior Exemption Loss: | – | $0 | |
| (–) Exemption Loss: | – | $0 | |
| | | -------------------------- | |
| (=) Taxable Value: | = | $259,050 | |
Taxing Jurisdiction
| Owner: | DRESSLER PARKER JAMES | | |
| % Ownership: | 100.0000000000% | | |
| Total Value: | $259,050 | | |
| Tax Area: | 5 - OL-140 |
| CERFD | CURRENT EXPENSE REFUND 010 | 0.0000000000 | $259,050 | $259,050 | $0.00 | | |
| CURREXP | CURRENT EXPENSE 010 | 1.0175366760 | $259,050 | $259,050 | $263.59 | | |
| HUMNSERV | HUMAN SERVICES 119 | 0.0250000000 | $259,050 | $259,050 | $6.48 | | |
| SLDREL | SOLDIERS RELIEF 121 | 0.0155990005 | $259,050 | $259,050 | $4.04 | | |
| EMERGSER | EMS 147 | 0.3792580840 | $259,050 | $259,050 | $98.25 | | |
| EMSRFD | EMS REFUND 147 | 0.0000000000 | $259,050 | $259,050 | $0.00 | | |
| PORTRFD | PORT REFUND 640 | 0.0000000000 | $259,050 | $259,050 | $0.00 | | |
| PORTWWGEN | PORT OF WW 640 | 0.2460186015 | $259,050 | $259,050 | $63.73 | | |
| SD140BOND | SD #140 BOND 764 | 0.8342371393 | $259,050 | $259,050 | $216.11 | | |
| SD140GEN | SD #140 GENERAL 760 | 2.0646500647 | $259,050 | $259,050 | $534.85 | | |
| ST2 | STATE SCHOOL PART 2 600 | 0.8131451643 | $259,050 | $259,050 | $210.65 | | |
| STATESCHL | STATE SCHOOL 600 | 1.5158548041 | $259,050 | $259,050 | $392.68 | | |
| STREFUND | STATE REFUND LEVY 603 | 0.0000000000 | $259,050 | $259,050 | $0.00 | | |
| CWWBOND | C OF WW BOND 643 | 0.2760494372 | $259,050 | $259,050 | $71.51 | | |
| CWWGEN | CITY OF WW 631 | 1.6100204973 | $259,050 | $259,050 | $417.08 | | |
| CWWRFD | CITY OF WALLA WALLA REFUND 631 | 0.0000000000 | $259,050 | $259,050 | $0.00 | | |
| | Total Tax Rate: | 8.7973694689 | | | | | |
| | | | | Taxes w/Current Exemptions: | $2,278.97 | | |
| | | | | Taxes w/o Exemptions: | $2,278.97 | | |
Improvement / Building
| Improvement #1: | RESIDENTIAL | State Code: | 11 | 1196.0 sqft | Value: | $223,110 |
| Exterior Wall: | VINYL | Foundation: | SLAB FOUNDATION | | Heating/Cooling: | FORCED AIR | Number of Bathrooms: | 1 | | Number of Bedrooms: | 2 | Plumbing: | 6 | | Roof Covering: | COMP SHINGLE |   |   |
|
| | Type | Description | Class CD | Sub Class CD | Year Built | Area |
| | MA | Main Area | 1 | 30 | 1962 | 1196.0 |
| | CPC | COVERED CARPORT/PATIO | 1 | 30 | 0 | 182.0 |
| | SI1 | SITE IMPROVEMENT | 1 | 30 | 0 | 1.0 |
| | S1F | Single One Story Fireplace | 1 | 30 | 1962 | 1.0 |
| | RPO | OPEN PORCH W/ROOF | 1 | 30 | 1962 | 60.0 |
| | TOOL | TOOL SHED | 1 | 30 | 1962 | 36.0 |
Sketch
Property Image
Land
| 1 | RES 1 | Converted: Residential | 0.1320 | 5750.00 | 0.00 | 0.00 | 1.00 | $35,940 | $0 |
Roll Value History
| 2026 | N/A | N/A | N/A | N/A | N/A |
| 2025 | $248,520 | $57,500 | $0 | $306,020 | $306,020 |
| 2024 | $207,100 | $57,500 | $0 | $264,600 | $264,600 |
| 2023 | $223,110 | $35,940 | $0 | $259,050 | $259,050 |
| 2022 | $223,110 | $35,940 | $0 | $259,050 | $259,050 |
| 2021 | $171,630 | $35,940 | $0 | $207,570 | $207,570 |
| 2020 | $122,590 | $35,940 | $0 | $158,530 | $158,530 |
| 2019 | $122,590 | $35,940 | $0 | $158,530 | $158,530 |
| 2018 | $106,600 | $35,940 | $0 | $142,540 | $142,540 |
| 2017 | $110,470 | $23,000 | $0 | $133,470 | $133,470 |
| 2016 | $105,210 | $23,000 | $0 | $128,210 | $128,210 |
| 2015 | $100,200 | $23,000 | $0 | $123,200 | $123,200 |
| 2014 | $100,200 | $23,000 | $0 | $123,200 | $123,200 |
| 2013 | $100,200 | $23,000 | $0 | $123,200 | $123,200 |
| 2012 | $97,600 | $23,000 | $0 | $0 | $0 |
| 2011 | $97,600 | $23,000 | $0 | $0 | $0 |
| 2010 | $91,900 | $23,000 | $0 | $0 | $0 |
| 2009 | $104,700 | $23,000 | $0 | $0 | $0 |
| 2008 | $68,200 | $23,000 | $0 | $0 | $0 |
| 2007 | $68,200 | $23,000 | $0 | $0 | $0 |
Deed and Sales History
| 1 | 02/19/2025 | QCD | QUIT CLAIM DEED | DRESSLER PARKER JAMES | DRESSLER PARKER | | | | 148942 | 2025-00848 |
| 2 | 03/08/2023 | QCD | QUIT CLAIM DEED | DRESSLER PARKER JAMES | DRESSLER PARKER JAMES | | | $0.00 | 145486 | 2023-01200 |
| 3 | 06/21/2021 | QCD | QUIT CLAIM DEED | STROE CARROL | DRESSLER PARKER JAMES | | | $265,000.00 | 141850 | 2021-07530 |
| 4 | 10/05/2020 | QCD | QUIT CLAIM DEED | STROE CARROLL L | STROE CARROL | | | | 140028 | 2020-10168 |
| 5 | 09/17/2003 | QCD | QUIT CLAIM DEED | STROE, CARROLL L | STROE, CARROLL L | | | | 103030 | 2003-14162 |
| 6 | 11/03/1999 | WARRANTY D | WARRANTY DEED | | | | | $69,000.00 | 93952 | 2919-912631 |
Payout Agreement
| No payout information available.. |