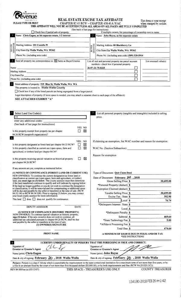
Property
Account |
| Property ID: | 5958 | Abbreviated Legal Description: | GREENS ANNEX TAX 26 LT 1 BLK 3 |
| Parcel Number: | 360721750325 | Agent Code: | |
| Type: | Real | | |
| Tax Area: | 1 - OL-140-F | Land Use Code | 11 |
| Open Space: | N | DFL | N |
| Historic Property: | N | Remodel Property: | N |
| Multi-Family Redevelopment: | N | | |
| Township: | 7 | Section: | 21 |
| Range: | 36 |
Location |
| Address: | 519 N BLUE ST WA 99362 | Mapsco: | |
| Neighborhood: | A-SFR | Map ID: | |
| Neighborhood CD: | 513011 |
Owner |
| Name: | ROYSE JOHN | Owner ID: | 5982 |
| Mailing Address: | 80 BLACKBERRY LN WALLA WALLA, WA 99362 | % Ownership: | 100.0000000000% |
| | | Exemptions: | |
Taxes and Assessment Details
Property Tax Information as of
02/21/2026
Click on "Statement Details" to expand or collapse a tax statement.
* Please enter a valid date ** Please enter a valid date *
Statement Details |
| | TOTAL: | $0.00 | $0.00 | $0.00 | $0.00 | $0.00 | $0.00 |
|
| | $0.00 | $0.00 | $0.00 | $0.00 | $0.00 | $0.00 |
Values
| (+) Improvement Homesite Value: | + | $0 | |
| (+) Improvement Non-Homesite Value: | + | $181,580 | |
| (+) Land Homesite Value: | + | $0 | |
| (+) Land Non-Homesite Value: | + | $31,250 | |
| (+) Curr Use (HS): | + | $0 | $0 |
| (+) Curr Use (NHS): | + | $0 | $0 |
| | | -------------------------- | |
| (=) Market Value: | = | $212,830 | |
| (–) Productivity Loss: | – | $0 | |
| | | -------------------------- | |
| (=) Subtotal: | = | $212,830 | |
| (+) Senior Appraised Value: | + | $0 | |
| (+) Non-Senior Appraised Value: | + | $212,830 | |
| | | -------------------------- | |
| (=) Total Appraised Value: | = | $212,830 | |
| (–) Senior Exemption Loss: | – | $0 | |
| (–) Exemption Loss: | – | $0 | |
| | | -------------------------- | |
| (=) Taxable Value: | = | $212,830 | |
Taxing Jurisdiction
| Owner: | ROYSE JOHN | | |
| % Ownership: | 100.0000000000% | | |
| Total Value: | $212,830 | | |
| Tax Area: | 1 - OL-140-F |
| CERFD | CURRENT EXPENSE REFUND 010 | 0.0000000000 | $212,830 | $212,830 | $0.00 | | |
| CURREXP | CURRENT EXPENSE 010 | 1.0175366760 | $212,830 | $212,830 | $216.56 | | |
| HUMNSERV | HUMAN SERVICES 119 | 0.0250000000 | $212,830 | $212,830 | $5.32 | | |
| SLDREL | SOLDIERS RELIEF 121 | 0.0155990005 | $212,830 | $212,830 | $3.32 | | |
| EMERGSER | EMS 147 | 0.3792580840 | $212,830 | $212,830 | $80.72 | | |
| EMSRFD | EMS REFUND 147 | 0.0000000000 | $212,830 | $212,830 | $0.00 | | |
| PORTRFD | PORT REFUND 640 | 0.0000000000 | $212,830 | $212,830 | $0.00 | | |
| PORTWWGEN | PORT OF WW 640 | 0.2460186015 | $212,830 | $212,830 | $52.36 | | |
| SD140BOND | SD #140 BOND 764 | 0.8342371393 | $212,830 | $212,830 | $177.55 | | |
| SD140GEN | SD #140 GENERAL 760 | 2.0646500647 | $212,830 | $212,830 | $439.42 | | |
| ST2 | STATE SCHOOL PART 2 600 | 0.8131451643 | $212,830 | $212,830 | $173.06 | | |
| STATESCHL | STATE SCHOOL 600 | 1.5158548041 | $212,830 | $212,830 | $322.62 | | |
| STREFUND | STATE REFUND LEVY 603 | 0.0000000000 | $212,830 | $212,830 | $0.00 | | |
| CWWBOND | C OF WW BOND 643 | 0.2760494372 | $212,830 | $212,830 | $58.75 | | |
| CWWGEN | CITY OF WW 631 | 1.6100204973 | $212,830 | $212,830 | $342.66 | | |
| CWWRFD | CITY OF WALLA WALLA REFUND 631 | 0.0000000000 | $212,830 | $212,830 | $0.00 | | |
| | Total Tax Rate: | 8.7973694689 | | | | | |
| | | | | Taxes w/Current Exemptions: | $1,872.34 | | |
| | | | | Taxes w/o Exemptions: | $1,872.34 | | |
Improvement / Building
| Improvement #1: | RESIDENTIAL | State Code: | 11 | 1004.0 sqft | Value: | $181,580 |
| Exterior Wall: | STUCCO | Foundation: | SLAB FOUNDATION | | Heating/Cooling: | WARM & COOLED AIR | Number of Bathrooms: | 1 | | Number of Bedrooms: | 2 | Plumbing: | 6 | | Roof Covering: | COMP SHINGLE |   |   |
|
| | Type | Description | Class CD | Sub Class CD | Year Built | Area |
| | MA | Main Area | 1 | 30 | 1951 | 1004.0 |
| | SI1 | SITE IMPROVEMENT | 1 | 30 | 1951 | 1.0 |
| | CPC | COVERED CARPORT/PATIO | 1 | 30 | 1951 | 221.0 |
| | OSP | Open | 1 | 30 | 1951 | 16.0 |
| | S1F | Single One Story Fireplace | 1 | 30 | 1951 | 1.0 |
Sketch
Property Image
Land
| 1 | RES 1 | Converted: Residential | 0.1148 | 5000.00 | 0.00 | 0.00 | 1.00 | $31,250 | $0 |
Roll Value History
| 2026 | N/A | N/A | N/A | N/A | N/A |
| 2025 | $186,660 | $50,000 | $0 | $236,660 | $236,660 |
| 2024 | $186,660 | $50,000 | $0 | $236,660 | $236,660 |
| 2023 | $181,580 | $31,250 | $0 | $212,830 | $212,830 |
| 2022 | $151,320 | $31,250 | $0 | $182,570 | $182,570 |
| 2021 | $116,400 | $31,250 | $0 | $147,650 | $147,650 |
| 2020 | $77,600 | $31,250 | $0 | $108,850 | $108,850 |
| 2019 | $77,600 | $31,250 | $0 | $108,850 | $108,850 |
| 2018 | $77,600 | $31,250 | $0 | $108,850 | $108,850 |
| 2017 | $89,930 | $20,000 | $0 | $109,930 | $109,930 |
| 2016 | $81,760 | $20,000 | $0 | $101,760 | $101,760 |
| 2015 | $68,130 | $20,000 | $0 | $88,130 | $88,130 |
| 2014 | $75,700 | $20,000 | $0 | $95,700 | $95,700 |
| 2013 | $75,700 | $20,000 | $0 | $95,700 | $95,700 |
| 2012 | $79,300 | $20,000 | $0 | $0 | $0 |
| 2011 | $50,900 | $20,000 | $0 | $0 | $0 |
| 2010 | $47,500 | $20,000 | $0 | $0 | $0 |
| 2009 | $55,000 | $20,000 | $0 | $0 | $0 |
| 2008 | $55,000 | $20,000 | $0 | $0 | $0 |
| 2007 | $55,000 | $20,000 | $0 | $0 | $0 |
Deed and Sales History
| 1 | 02/20/2018 | QCD | QUIT CLAIM DEED | EAGON CHRIS | ROYSE JOHN | | | $30,695.00 | 134180 | 2018-01417 |
| 2 | 02/11/2005 | WARRANTY D | WARRANTY DEED | KROUM, RUSSELL J | ROYSE, JOHN | | | $75,000.00 | 106765 | 2005-01675 |
| 3 | 08/29/2003 | QCD | QUIT CLAIM DEED | PARKER, SASHA M | KROUM, RUSSELL J | | | | 102887 | 2003-13105 |
| 4 | 07/21/2003 | QCD | QUIT CLAIM DEED | PARKER, EDWARD A | PARKER, SASHA M | | | | 102613 | 2003-10765 |
| 5 | 11/08/2002 | WARRANTY D | WARRANTY DEED | PARKER, EDWARD A | PARKER, SASHA M | | | | 0 | 01-3-00196 |
| 6 | 08/14/1995 | WARRANTY D | WARRANTY DEED | | | | | $65,000.00 | 84548 | 2329-507661 |
Payout Agreement
| No payout information available.. |