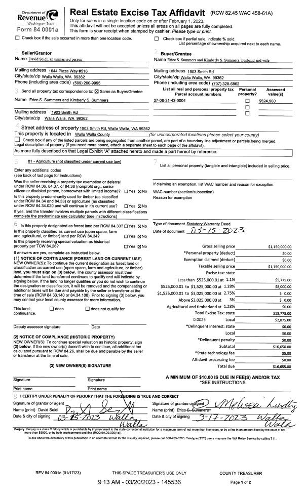
Property
Account |
| Property ID: | 5956 | Abbreviated Legal Description: | 31-8-37 (SURVEY 2005-10574) PORTION W 1/2 SE 1/4 (TAX 1A PLUS STRIP TO N; LESS STRIP TO E) |
| Parcel Number: | 370831430004 | Agent Code: | |
| Type: | Real | | |
| Tax Area: | 310 - 101-8 | Land Use Code | 11 |
| Open Space: | N | DFL | N |
| Historic Property: | N | Remodel Property: | N |
| Multi-Family Redevelopment: | N | | |
| Township: | 8 | Section: | 31 |
| Range: | 37 |
Location |
| Address: | 1903 SMITH RD WA 99329 | Mapsco: | |
| Neighborhood: | G SFR Rural | Map ID: | |
| Neighborhood CD: | 414013 |
Owner |
| Name: | SUMMERS ERICC S & KIMBERLY S | Owner ID: | 73305 |
| Mailing Address: | 1903 SMITH RD WALLA WALLA, WA 99362 | % Ownership: | 100.0000000000% |
| | | Exemptions: | |
Taxes and Assessment Details
Values
| (+) Improvement Homesite Value: | + | $0 | |
| (+) Improvement Non-Homesite Value: | + | $830,270 | |
| (+) Land Homesite Value: | + | $0 | |
| (+) Land Non-Homesite Value: | + | $176,830 | |
| (+) Curr Use (HS): | + | $0 | $0 |
| (+) Curr Use (NHS): | + | $0 | $0 |
| | | -------------------------- | |
| (=) Market Value: | = | $1,007,100 | |
| (–) Productivity Loss: | – | $0 | |
| | | -------------------------- | |
| (=) Subtotal: | = | $1,007,100 | |
| (+) Senior Appraised Value: | + | $0 | |
| (+) Non-Senior Appraised Value: | + | $1,007,100 | |
| | | -------------------------- | |
| (=) Total Appraised Value: | = | $1,007,100 | |
| (–) Senior Exemption Loss: | – | $0 | |
| (–) Exemption Loss: | – | $0 | |
| | | -------------------------- | |
| (=) Taxable Value: | = | $1,007,100 | |
Taxing Jurisdiction
| Owner: | SUMMERS ERICC S & KIMBERLY S | | |
| % Ownership: | 100.0000000000% | | |
| Total Value: | $1,007,100 | | |
| Tax Area: | 310 - 101-8 |
| CERFD | CURRENT EXPENSE REFUND 010 | 0.0000000000 | $1,007,100 | $1,007,100 | $0.00 | | |
| CURREXP | CURRENT EXPENSE 010 | 1.0175366760 | $1,007,100 | $1,007,100 | $1,024.76 | | |
| HUMNSERV | HUMAN SERVICES 119 | 0.0250000000 | $1,007,100 | $1,007,100 | $25.18 | | |
| SLDREL | SOLDIERS RELIEF 121 | 0.0155990005 | $1,007,100 | $1,007,100 | $15.71 | | |
| EMERGSER | EMS 147 | 0.3792580840 | $1,007,100 | $1,007,100 | $381.95 | | |
| EMSRFD | EMS REFUND 147 | 0.0000000000 | $1,007,100 | $1,007,100 | $0.00 | | |
| FD8EXP | FD #8 EXPENSE 697 | 0.6647992540 | $1,007,100 | $1,007,100 | $669.52 | | |
| RLBRFD | RURAL LIBRARY REFUND 623 | 0.0000000000 | $1,007,100 | $1,007,100 | $0.00 | | |
| RURALLIB | RURAL LIBRARY 623 | 0.3710609029 | $1,007,100 | $1,007,100 | $373.70 | | |
| PORTRFD | PORT REFUND 640 | 0.0000000000 | $1,007,100 | $1,007,100 | $0.00 | | |
| PORTWWGEN | PORT OF WW 640 | 0.2460186015 | $1,007,100 | $1,007,100 | $247.77 | | |
| SD101CAP | SD #101 CAP 752 | 0.5894423472 | $1,007,100 | $1,007,100 | $593.63 | | |
| SD101GEN | SD #101 GENERAL 750 | 0.7455117868 | $1,007,100 | $1,007,100 | $750.80 | | |
| ST2 | STATE SCHOOL PART 2 600 | 0.8131451643 | $1,007,100 | $1,007,100 | $818.92 | | |
| STATESCHL | STATE SCHOOL 600 | 1.5158548041 | $1,007,100 | $1,007,100 | $1,526.62 | | |
| STREFUND | STATE REFUND LEVY 603 | 0.0000000000 | $1,007,100 | $1,007,100 | $0.00 | | |
| COROAD | COUNTY ROAD 115 | 1.6549953990 | $1,007,100 | $1,007,100 | $1,666.75 | | |
| CRPRD | COUNTY ROAD REFUND 115 | 0.0000000000 | $1,007,100 | $1,007,100 | $0.00 | | |
| | Total Tax Rate: | 8.0382220203 | | | | | |
| | | | | Taxes w/Current Exemptions: | $8,095.31 | | |
| | | | | Taxes w/o Exemptions: | $8,095.31 | | |
Improvement / Building
| Improvement #1: | RESIDENTIAL | State Code: | 11 | 2594.0 sqft | Value: | $830,270 |
| Exterior Wall: | SIDING | Heating/Cooling: | WARM & COOLED AIR | | Number of Bathrooms: | 4 | Number of Bedrooms: | 3 | | Plumbing: | 15 | Roof Covering: | COMP SHINGLE |
|
| | Type | Description | Class CD | Sub Class CD | Year Built | Area |
| | MA | Main Area | 1 | 40 | 1948 | 2594.0 |
| | SI1 | SITE IMPROVEMENT | 1 | 40 | 1948 | 4.0 |
| | BASE | BASEMENT | 1 | 40 | 1948 | 1712.0 |
| | BPF | BASEMENT -PARTITIONED FINISH | 1 | 40 | 1948 | 1512.0 |
| | CPC | COVERED CARPORT/PATIO | 1 | 40 | 1948 | 144.0 |
| | WOD | Wood Deck | 1 | 40 | 1948 | 513.0 |
| | GUH | GUEST HOUSE | 1 | 40 | 2006 | 1328.0 |
| | TOOL | TOOL SHED | 1 | 40 | 2007 | 247.0 |
| | UTST | Utility Storage Shed | 1 | 40 | 2007 | 437.0 |
| | GFP | GAS FIREPLACE | 1 | 40 | 2012 | 1.0 |
| | FIXT | AVERAGE FIXTURE | 1 | 40 | 2007 | 1.0 |
| | FBAT | FULL BATH | 1 | 40 | 2007 | 2.0 |
| | FLO | FLOOR COVERING ALLOWANCE | 1 | 40 | 2007 | 1328.0 |
| | RPO | OPEN PORCH W/ROOF | 1 | 40 | 2006 | 64.0 |
| | BRW | BREEZEWAY | 1 | 40 | 2006 | 152.0 |
| | SMP | SWIMMING POOL | 1 | 40 | 2006 | 1.0 |
| | S1F | Single One Story Fireplace | 1 | 40 | 1948 | 1.0 |
Sketch
Property Image
Land
| 1 | RES 1 | Converted: Residential | 4.3400 | 189050.40 | 0.00 | 0.00 | 1.00 | $176,830 | $0 |
Roll Value History
| 2026 | N/A | N/A | N/A | N/A | N/A |
| 2025 | $871,780 | $176,830 | $0 | $1,048,610 | $1,048,610 |
| 2024 | $830,270 | $176,830 | $0 | $1,007,100 | $1,007,100 |
| 2023 | $830,270 | $176,830 | $0 | $1,007,100 | $1,007,100 |
| 2022 | $488,280 | $36,680 | $0 | $524,960 | $524,960 |
| 2021 | $488,280 | $36,680 | $0 | $524,960 | $524,960 |
| 2020 | $488,280 | $36,680 | $0 | $524,960 | $524,960 |
| 2019 | $488,280 | $36,680 | $0 | $524,960 | $524,960 |
| 2018 | $488,280 | $36,680 | $0 | $524,960 | $524,960 |
| 2017 | $488,280 | $36,680 | $0 | $524,960 | $524,960 |
| 2016 | $363,500 | $36,680 | $0 | $400,180 | $400,180 |
| 2015 | $363,500 | $36,680 | $0 | $400,180 | $400,180 |
| 2014 | $363,500 | $36,680 | $0 | $400,180 | $400,180 |
| 2013 | $363,500 | $36,700 | $6,683 | $400,200 | $400,200 |
| 2012 | $334,400 | $36,700 | $0 | $0 | $0 |
| 2011 | $325,800 | $36,700 | $0 | $0 | $0 |
| 2010 | $297,900 | $36,700 | $0 | $0 | $0 |
| 2009 | $314,400 | $36,700 | $0 | $0 | $0 |
| 2008 | $271,700 | $36,600 | $0 | $0 | $0 |
| 2007 | $232,300 | $36,600 | $0 | $0 | $0 |
Deed and Sales History
| 1 | 03/20/2023 | SWD | STATUTORY WARRANTY DEED | SEIDL DAVID | SUMMERS ERICC S & KIMBERLY S | | | $1,150,000.00 | 145536 | 2023-01412 |
| 2 | 08/18/2005 | QCD | QUIT CLAIM DEED | FREDERICK KELLER | SCHWERIN, DONALD & ANNE MARIE | | | | 108273 | 2005-10274 |
| 3 | 08/18/2005 | QCD | QUIT CLAIM DEED | SCHWERIN, DONALD & ANNE MARIE | SCHWERIN, DONALD & ANNE MARIE | | | | 108275 | 2005-10276 |
| 4 | 08/18/2005 | WARRANTY D | WARRANTY DEED | SCHWERIN, DONALD & ANNE MARIE | SEIDL, DAVID | | | $342,000.00 | 108276 | 2005-10277 |
| 5 | 03/08/1999 | WARRANTY D | WARRANTY DEED | | | | | $187,000.00 | 92307 | 2819-902934 |
Payout Agreement
| No payout information available.. |