Property
Account |
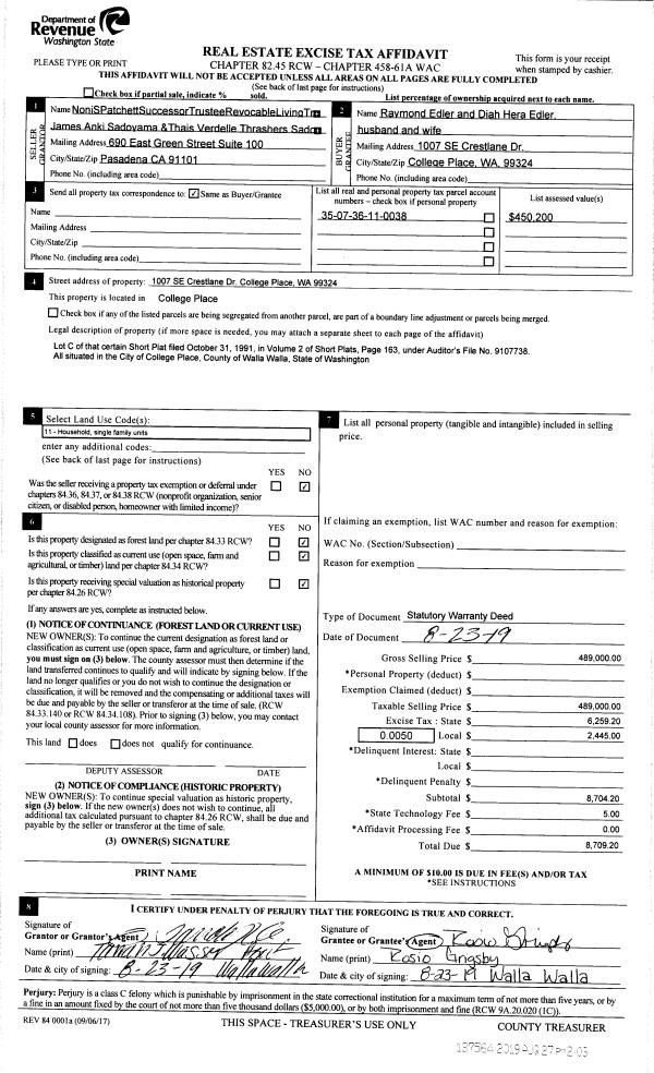
| Property ID: | 5872 | Abbreviated Legal Description: | 35-7-36 (LOT C OF S/P) PTN ALONG NLY LINE OF TAX 1 IN NW CORNER(WITHIN N1/2NE1/4) |
| Parcel Number: | 350736110038 | Agent Code: | |
| Type: | Real | | |
| Tax Area: | 77 - CP-250-F | Land Use Code | 11 |
| Open Space: | N | DFL | N |
| Historic Property: | N | Remodel Property: | N |
| Multi-Family Redevelopment: | N | | |
| Township: | 7 | Section: | 36 |
| Range: | 35 |
Location |
| Address: | 1007 SE CRESTLANE DR WA 99324 | Mapsco: | |
| Neighborhood: | G SFR | Map ID: | |
| Neighborhood CD: | 114011 |
Owner |
| Name: | EDLER RAYMOND & DIAH HERA | Owner ID: | 65827 |
| Mailing Address: | 1007 SE CRESTLANE DR COLLEGE PLACE, WA 99324 | % Ownership: | 100.0000000000% |
| | | Exemptions: | |
Taxes and Assessment Details
Property Tax Information as of
02/21/2026
Click on "Statement Details" to expand or collapse a tax statement.
* Please enter a valid date ** Please enter a valid date *
Statement Details |
| | TOTAL: | $0.00 | $0.00 | $0.00 | $0.00 | $0.00 | $0.00 |
|
| | $0.00 | $0.00 | $0.00 | $0.00 | $0.00 | $0.00 |
Values
| (+) Improvement Homesite Value: | + | $0 | |
| (+) Improvement Non-Homesite Value: | + | $571,570 | |
| (+) Land Homesite Value: | + | $0 | |
| (+) Land Non-Homesite Value: | + | $75,000 | |
| (+) Curr Use (HS): | + | $0 | $0 |
| (+) Curr Use (NHS): | + | $0 | $0 |
| | | -------------------------- | |
| (=) Market Value: | = | $646,570 | |
| (–) Productivity Loss: | – | $0 | |
| | | -------------------------- | |
| (=) Subtotal: | = | $646,570 | |
| (+) Senior Appraised Value: | + | $0 | |
| (+) Non-Senior Appraised Value: | + | $646,570 | |
| | | -------------------------- | |
| (=) Total Appraised Value: | = | $646,570 | |
| (–) Senior Exemption Loss: | – | $0 | |
| (–) Exemption Loss: | – | $0 | |
| | | -------------------------- | |
| (=) Taxable Value: | = | $646,570 | |
Taxing Jurisdiction
| Owner: | EDLER RAYMOND & DIAH HERA | | |
| % Ownership: | 100.0000000000% | | |
| Total Value: | $646,570 | | |
| Tax Area: | 77 - CP-250-F |
| CERFD | CURRENT EXPENSE REFUND 010 | 0.0000000000 | $646,570 | $646,570 | $0.00 | | |
| CURREXP | CURRENT EXPENSE 010 | 1.0175366760 | $646,570 | $646,570 | $657.91 | | |
| HUMNSERV | HUMAN SERVICES 119 | 0.0250000000 | $646,570 | $646,570 | $16.16 | | |
| SLDREL | SOLDIERS RELIEF 121 | 0.0155990005 | $646,570 | $646,570 | $10.09 | | |
| COLLPLBOND | C OF CP BOND 644 | 0.4374241808 | $646,570 | $646,570 | $282.83 | | |
| COLLPLGEN | CITY OF CP 632 | 1.4453819216 | $646,570 | $646,570 | $934.54 | | |
| EMERGSER | EMS 147 | 0.3792580840 | $646,570 | $646,570 | $245.22 | | |
| EMSRFD | EMS REFUND 147 | 0.0000000000 | $646,570 | $646,570 | $0.00 | | |
| RURALLIB | RURAL LIBRARY 623 | 0.3710609029 | $646,570 | $646,570 | $239.92 | | |
| PORTRFD | PORT REFUND 640 | 0.0000000000 | $646,570 | $646,570 | $0.00 | | |
| PORTWWGEN | PORT OF WW 640 | 0.2460186015 | $646,570 | $646,570 | $159.07 | | |
| SD250BOND | SD #250 BOND 773 | 1.4560608159 | $646,570 | $646,570 | $941.45 | | |
| SD250GEN | SD #250 GENERAL 770 | 2.3880724087 | $646,570 | $646,570 | $1,544.06 | | |
| ST2 | STATE SCHOOL PART 2 600 | 0.8131451643 | $646,570 | $646,570 | $525.76 | | |
| STATESCHL | STATE SCHOOL 600 | 1.5158548041 | $646,570 | $646,570 | $980.11 | | |
| STREFUND | STATE REFUND LEVY 603 | 0.0000000000 | $646,570 | $646,570 | $0.00 | | |
| | Total Tax Rate: | 10.1104125603 | | | | | |
| | | | | Taxes w/Current Exemptions: | $6,537.12 | | |
| | | | | Taxes w/o Exemptions: | $6,537.12 | | |
Improvement / Building
| Improvement #1: | RESIDENTIAL | State Code: | 11 | 3278.0 sqft | Value: | $571,570 |
| Exterior Wall: | STUCCO | Heating/Cooling: | WARM & COOLED AIR | | Number of Bathrooms: | 4 | Number of Bedrooms: | 2 | | Plumbing: | 16 | Roof Covering: | COMP SHINGLE |
|
| | Type | Description | Class CD | Sub Class CD | Year Built | Area |
| | MA | Main Area | 4 | 55 | 2004 | 3278.0 |
| | UPFL | Upper Floor (included in main area) | 4 | 55 | 2004 | 420.0 |
| | SI1 | SITE IMPROVEMENT | 4 | 55 | 2004 | 4.0 |
| | BASE | BASEMENT | 4 | 55 | 2004 | 1324.0 |
| | BPF | BASEMENT -PARTITIONED FINISH | 4 | 55 | 2004 | 1324.0 |
| | ATG | Attached Garage | 4 | 55 | 2004 | 680.0 |
| | GFP | GAS FIREPLACE | 4 | 55 | 2004 | 2.0 |
Sketch
Property Image
Land
| 1 | RES 1 | Converted: Residential | 0.2800 | 12196.00 | 0.00 | 0.00 | 1.00 | $75,000 | $0 |
Roll Value History
| 2026 | N/A | N/A | N/A | N/A | N/A |
| 2025 | $571,860 | $150,000 | $0 | $721,860 | $721,860 |
| 2024 | $657,310 | $75,000 | $0 | $732,310 | $732,310 |
| 2023 | $571,570 | $75,000 | $0 | $646,570 | $646,570 |
| 2022 | $497,020 | $75,000 | $0 | $572,020 | $572,020 |
| 2021 | $473,350 | $75,000 | $0 | $548,350 | $548,350 |
| 2020 | $394,460 | $75,000 | $0 | $469,460 | $469,460 |
| 2019 | $404,460 | $65,000 | $0 | $469,460 | $469,460 |
| 2018 | $385,200 | $65,000 | $0 | $450,200 | $450,200 |
| 2017 | $385,200 | $65,000 | $0 | $450,200 | $450,200 |
| 2016 | $385,200 | $65,000 | $0 | $450,200 | $450,200 |
| 2015 | $385,200 | $65,000 | $0 | $450,200 | $450,200 |
| 2014 | $385,200 | $65,000 | $0 | $450,200 | $450,200 |
| 2013 | $385,200 | $65,000 | $0 | $450,200 | $450,200 |
| 2012 | $435,200 | $65,000 | $0 | $0 | $0 |
| 2011 | $490,800 | $65,000 | $0 | $0 | $0 |
| 2010 | $490,800 | $65,000 | $0 | $0 | $0 |
| 2009 | $520,000 | $65,000 | $0 | $0 | $0 |
| 2008 | $448,800 | $30,000 | $0 | $0 | $0 |
| 2007 | $448,800 | $30,000 | $0 | $0 | $0 |
Deed and Sales History
| 1 | 08/27/2019 | SWD | STATUTORY WARRANTY DEED | SADOYAMA REVOCABLE LVG TRUST JAMES & THAIS V T SADOYAMA | EDLER RAYMOND & DIAH HERA | | | $489,000.00 | 137564 | 2019-06611 |
| 2 | 06/18/2003 | QCD | QUIT CLAIM DEED | SADOYAMA, JAMES A & THAIS V | SADOYAMA REVOCABLE LVG TRUST | | | | 102363 | 2003-09108 |
| 3 | 02/12/2002 | WARRANTY D | WARRANTY DEED | | | | | $60,000.00 | 98919 | 3280-201750 |
Payout Agreement
| No payout information available.. |