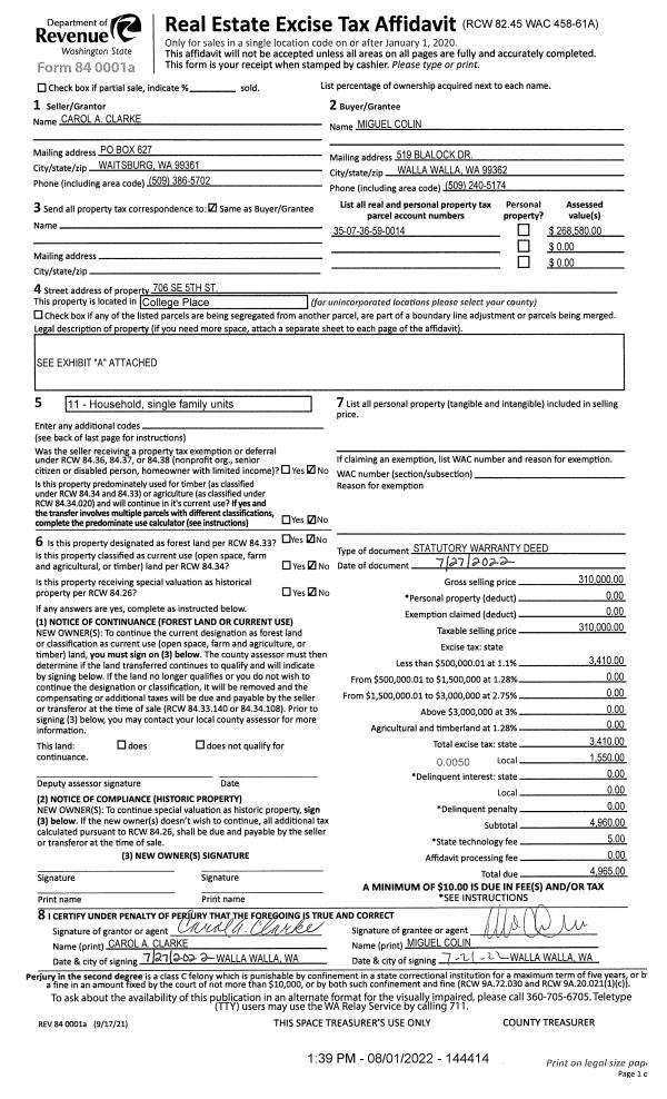
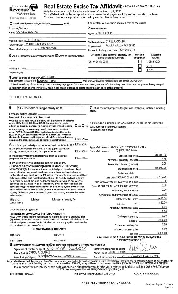
Property
Account |
| Property ID: | 5867 | Abbreviated Legal Description: | SUNRISE TERRACE TAX 4 |
| Parcel Number: | 350736590014 | Agent Code: | |
| Type: | Real | | |
| Tax Area: | 75 - CP 250 | Land Use Code | 11 |
| Open Space: | N | DFL | N |
| Historic Property: | N | Remodel Property: | N |
| Multi-Family Redevelopment: | N | | |
| Township: | 7 | Section: | 36 |
| Range: | 35 |
Location |
| Address: | 706 SE 5TH ST WA 99324 | Mapsco: | |
| Neighborhood: | A SFR | Map ID: | |
| Neighborhood CD: | 113011 |
Owner |
| Name: | COLIN MIGUEL | Owner ID: | 68002 |
| Mailing Address: | 18 SHANGRI LA CT WALLA WALLA, WA 99362 | % Ownership: | 100.0000000000% |
| | | Exemptions: | |
Taxes and Assessment Details
Property Tax Information as of
02/21/2026
Click on "Statement Details" to expand or collapse a tax statement.
* Please enter a valid date ** Please enter a valid date *
Statement Details |
| | TOTAL: | $0.00 | $0.00 | $0.00 | $0.00 | $0.00 | $0.00 |
|
| | $0.00 | $0.00 | $0.00 | $0.00 | $0.00 | $0.00 |
Values
| (+) Improvement Homesite Value: | + | $0 | |
| (+) Improvement Non-Homesite Value: | + | $251,840 | |
| (+) Land Homesite Value: | + | $0 | |
| (+) Land Non-Homesite Value: | + | $49,590 | |
| (+) Curr Use (HS): | + | $0 | $0 |
| (+) Curr Use (NHS): | + | $0 | $0 |
| | | -------------------------- | |
| (=) Market Value: | = | $301,430 | |
| (–) Productivity Loss: | – | $0 | |
| | | -------------------------- | |
| (=) Subtotal: | = | $301,430 | |
| (+) Senior Appraised Value: | + | $0 | |
| (+) Non-Senior Appraised Value: | + | $301,430 | |
| | | -------------------------- | |
| (=) Total Appraised Value: | = | $301,430 | |
| (–) Senior Exemption Loss: | – | $0 | |
| (–) Exemption Loss: | – | $0 | |
| | | -------------------------- | |
| (=) Taxable Value: | = | $301,430 | |
Taxing Jurisdiction
| Owner: | COLIN MIGUEL | | |
| % Ownership: | 100.0000000000% | | |
| Total Value: | $301,430 | | |
| Tax Area: | 75 - CP 250 |
| CERFD | CURRENT EXPENSE REFUND 010 | 0.0000000000 | $301,430 | $301,430 | $0.00 | | |
| CURREXP | CURRENT EXPENSE 010 | 1.0175366760 | $301,430 | $301,430 | $306.72 | | |
| HUMNSERV | HUMAN SERVICES 119 | 0.0250000000 | $301,430 | $301,430 | $7.54 | | |
| SLDREL | SOLDIERS RELIEF 121 | 0.0155990005 | $301,430 | $301,430 | $4.70 | | |
| COLLPLBOND | C OF CP BOND 644 | 0.4374241808 | $301,430 | $301,430 | $131.85 | | |
| COLLPLGEN | CITY OF CP 632 | 1.4453819216 | $301,430 | $301,430 | $435.68 | | |
| EMERGSER | EMS 147 | 0.3792580840 | $301,430 | $301,430 | $114.32 | | |
| EMSRFD | EMS REFUND 147 | 0.0000000000 | $301,430 | $301,430 | $0.00 | | |
| RURALLIB | RURAL LIBRARY 623 | 0.3710609029 | $301,430 | $301,430 | $111.85 | | |
| PORTRFD | PORT REFUND 640 | 0.0000000000 | $301,430 | $301,430 | $0.00 | | |
| PORTWWGEN | PORT OF WW 640 | 0.2460186015 | $301,430 | $301,430 | $74.16 | | |
| SD250BOND | SD #250 BOND 773 | 1.4560608159 | $301,430 | $301,430 | $438.90 | | |
| SD250GEN | SD #250 GENERAL 770 | 2.3880724087 | $301,430 | $301,430 | $719.84 | | |
| ST2 | STATE SCHOOL PART 2 600 | 0.8131451643 | $301,430 | $301,430 | $245.11 | | |
| STATESCHL | STATE SCHOOL 600 | 1.5158548041 | $301,430 | $301,430 | $456.92 | | |
| STREFUND | STATE REFUND LEVY 603 | 0.0000000000 | $301,430 | $301,430 | $0.00 | | |
| | Total Tax Rate: | 10.1104125603 | | | | | |
| | | | | Taxes w/Current Exemptions: | $3,047.59 | | |
| | | | | Taxes w/o Exemptions: | $3,047.59 | | |
Improvement / Building
| Improvement #1: | RESIDENTIAL | State Code: | 11 | 1110.0 sqft | Value: | $251,840 |
| Exterior Wall: | SIDING | Heating/Cooling: | WARM & COOLED AIR | | Number of Bathrooms: | 2 | Number of Bedrooms: | 2 | | Plumbing: | 9 | Roof Covering: | WOOD SHAKE |
|
| | Type | Description | Class CD | Sub Class CD | Year Built | Area |
| | MA | Main Area | 1 | 35 | 1951 | 1110.0 |
| | SI1 | SITE IMPROVEMENT | 1 | 35 | 1951 | 2.0 |
| | BASE | BASEMENT | 1 | 35 | 1951 | 1110.0 |
| | BPF | BASEMENT -PARTITIONED FINISH | 1 | 35 | 1951 | 1000.0 |
| | ATG | Attached Garage | 1 | 35 | 1951 | 327.0 |
| | RPO | OPEN PORCH W/ROOF | 1 | 35 | 1951 | 92.0 |
| | S1F | Single One Story Fireplace | 1 | 35 | 1951 | 1.0 |
Sketch
Property Image
Land
| 1 | RES 1 | Converted: Residential | 0.1687 | 7347.00 | 0.00 | 0.00 | 1.00 | $49,590 | $0 |
Roll Value History
| 2026 | N/A | N/A | N/A | N/A | N/A |
| 2025 | $226,650 | $73,470 | $0 | $300,120 | $300,120 |
| 2024 | $251,840 | $49,590 | $0 | $301,430 | $301,430 |
| 2023 | $251,840 | $49,590 | $0 | $301,430 | $301,430 |
| 2022 | $251,840 | $49,590 | $0 | $301,430 | $301,430 |
| 2021 | $218,990 | $49,590 | $0 | $268,580 | $268,580 |
| 2020 | $182,490 | $49,590 | $0 | $232,080 | $232,080 |
| 2019 | $187,980 | $44,100 | $0 | $232,080 | $232,080 |
| 2018 | $187,980 | $44,100 | $0 | $232,080 | $232,080 |
| 2017 | $144,600 | $44,100 | $0 | $188,700 | $188,700 |
| 2016 | $144,600 | $44,100 | $0 | $188,700 | $188,700 |
| 2015 | $144,600 | $44,100 | $0 | $188,700 | $188,700 |
| 2014 | $144,600 | $44,100 | $0 | $188,700 | $188,700 |
| 2013 | $144,600 | $44,100 | $0 | $188,700 | $188,700 |
| 2012 | $154,500 | $44,100 | $0 | $0 | $0 |
| 2011 | $154,500 | $44,100 | $0 | $0 | $0 |
| 2010 | $154,500 | $44,100 | $0 | $0 | $0 |
| 2009 | $176,600 | $44,100 | $0 | $0 | $0 |
| 2008 | $123,900 | $22,000 | $0 | $0 | $0 |
| 2007 | $123,900 | $22,000 | $0 | $0 | $0 |
Deed and Sales History
| 1 | 06/27/2025 | SWD | STATUTORY WARRANTY DEED | COLIN MIGUEL | TRY BRITNEY KIMBERLY & JACOB | | | $440,000.00 | 149590 | 2025-03636 |
| 2 | 08/01/2022 | SWD | STATUTORY WARRANTY DEED | CLARKE CAROL A | COLIN MIGUEL | | | $310,000.00 | 144414 | 2022-06430 |
| 3 | 05/10/2013 | WARRANTY D | WARRANTY DEED | VOSHELL, SHANE C | CLARKE, CAROL A | | | $189,000.00 | 123942 | 2013-04708 |
| 4 | 09/29/2003 | WARRANTY D | WARRANTY DEED | FULLER, JASON D | VOSHELL, SHANE C | | | $151,500.00 | 103112 | 2003-14895 |
| 5 | 12/01/1996 | WARRANTY D | WARRANTY DEED | | | | | $107,000.00 | 87479 | 2479-612958 |
Payout Agreement
| No payout information available.. |