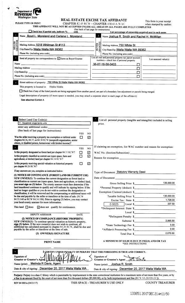
Property
Account |
| Property ID: | 5841 | Abbreviated Legal Description: | WILSONS TAX 1 BLK 4 |
| Parcel Number: | 360716580403 | Agent Code: | |
| Type: | Real | | |
| Tax Area: | 5 - OL-140 | Land Use Code | 11 |
| Open Space: | N | DFL | N |
| Historic Property: | N | Remodel Property: | N |
| Multi-Family Redevelopment: | N | | |
| Township: | 7 | Section: | 16 |
| Range: | 36 |
Location |
| Address: | 750 WHITE ST WA 99362 | Mapsco: | |
| Neighborhood: | A-SFR | Map ID: | |
| Neighborhood CD: | 513011 |
Owner |
| Name: | SMITH JOSHUA R | Owner ID: | 62314 |
| Mailing Address: | RACHEL H MCMILLAN 750 WHITE ST WALLA WALLA, WA 99362 | % Ownership: | 100.0000000000% |
| | | Exemptions: | |
Taxes and Assessment Details
Values
| (+) Improvement Homesite Value: | + | $0 | |
| (+) Improvement Non-Homesite Value: | + | $192,280 | |
| (+) Land Homesite Value: | + | $0 | |
| (+) Land Non-Homesite Value: | + | $54,310 | |
| (+) Curr Use (HS): | + | $0 | $0 |
| (+) Curr Use (NHS): | + | $0 | $0 |
| | | -------------------------- | |
| (=) Market Value: | = | $246,590 | |
| (–) Productivity Loss: | – | $0 | |
| | | -------------------------- | |
| (=) Subtotal: | = | $246,590 | |
| (+) Senior Appraised Value: | + | $0 | |
| (+) Non-Senior Appraised Value: | + | $246,590 | |
| | | -------------------------- | |
| (=) Total Appraised Value: | = | $246,590 | |
| (–) Senior Exemption Loss: | – | $0 | |
| (–) Exemption Loss: | – | $0 | |
| | | -------------------------- | |
| (=) Taxable Value: | = | $246,590 | |
Taxing Jurisdiction
| Owner: | SMITH JOSHUA R | | |
| % Ownership: | 100.0000000000% | | |
| Total Value: | $246,590 | | |
| Tax Area: | 5 - OL-140 |
| CERFD | CURRENT EXPENSE REFUND 010 | 0.0000000000 | $246,590 | $246,590 | $0.00 | | |
| CURREXP | CURRENT EXPENSE 010 | 1.0175366760 | $246,590 | $246,590 | $250.91 | | |
| HUMNSERV | HUMAN SERVICES 119 | 0.0250000000 | $246,590 | $246,590 | $6.16 | | |
| SLDREL | SOLDIERS RELIEF 121 | 0.0155990005 | $246,590 | $246,590 | $3.85 | | |
| EMERGSER | EMS 147 | 0.3792580840 | $246,590 | $246,590 | $93.52 | | |
| EMSRFD | EMS REFUND 147 | 0.0000000000 | $246,590 | $246,590 | $0.00 | | |
| PORTRFD | PORT REFUND 640 | 0.0000000000 | $246,590 | $246,590 | $0.00 | | |
| PORTWWGEN | PORT OF WW 640 | 0.2460186015 | $246,590 | $246,590 | $60.67 | | |
| SD140BOND | SD #140 BOND 764 | 0.8342371393 | $246,590 | $246,590 | $205.71 | | |
| SD140GEN | SD #140 GENERAL 760 | 2.0646500647 | $246,590 | $246,590 | $509.12 | | |
| ST2 | STATE SCHOOL PART 2 600 | 0.8131451643 | $246,590 | $246,590 | $200.51 | | |
| STATESCHL | STATE SCHOOL 600 | 1.5158548041 | $246,590 | $246,590 | $373.79 | | |
| STREFUND | STATE REFUND LEVY 603 | 0.0000000000 | $246,590 | $246,590 | $0.00 | | |
| CWWBOND | C OF WW BOND 643 | 0.2760494372 | $246,590 | $246,590 | $68.07 | | |
| CWWGEN | CITY OF WW 631 | 1.6100204973 | $246,590 | $246,590 | $397.01 | | |
| CWWRFD | CITY OF WALLA WALLA REFUND 631 | 0.0000000000 | $246,590 | $246,590 | $0.00 | | |
| | Total Tax Rate: | 8.7973694689 | | | | | |
| | | | | Taxes w/Current Exemptions: | $2,169.32 | | |
| | | | | Taxes w/o Exemptions: | $2,169.32 | | |
Improvement / Building
| Improvement #1: | RESIDENTIAL | State Code: | 11 | 974.0 sqft | Value: | $192,280 |
| Exterior Wall: | SIDING | Heating/Cooling: | BASEBOARD ELECTRIC | | Number of Bathrooms: | 1 | Number of Bedrooms: | 2 | | Plumbing: | 7 | Roof Covering: | COMP SHINGLE |
|
| | Type | Description | Class CD | Sub Class CD | Year Built | Area |
| | MA | Main Area | 1 | 30 | 1936 | 974.0 |
| | CPC | COVERED CARPORT/PATIO | 1 | 30 | 0 | 633.0 |
| | SI1 | SITE IMPROVEMENT | 1 | 30 | 0 | 1.0 |
| | BASE | BASEMENT | 1 | 30 | 1936 | 810.0 |
| | BPF | BASEMENT -PARTITIONED FINISH | 1 | 30 | 1936 | 540.0 |
| | S2F | Single 2S Fireplace | 1 | 30 | 1936 | 1.0 |
| | UTST | Utility Storage Shed | 1 | 30 | 1936 | 72.0 |
| | SWP | Solid Wall Porch | 1 | 30 | 1936 | 20.0 |
Sketch
Property Image
Land
| 1 | RES 1 | Converted: Residential | 0.1995 | 8690.00 | 0.00 | 0.00 | 1.00 | $54,310 | $0 |
Roll Value History
| 2026 | N/A | N/A | N/A | N/A | N/A |
| 2025 | $164,450 | $86,900 | $0 | $251,350 | $251,350 |
| 2024 | $164,450 | $86,900 | $0 | $251,350 | $251,350 |
| 2023 | $192,280 | $54,310 | $0 | $246,590 | $246,590 |
| 2022 | $147,910 | $54,310 | $0 | $202,220 | $202,220 |
| 2021 | $113,780 | $54,310 | $0 | $168,090 | $168,090 |
| 2020 | $81,270 | $54,310 | $0 | $135,580 | $135,580 |
| 2019 | $81,270 | $54,310 | $0 | $135,580 | $135,580 |
| 2018 | $77,400 | $54,310 | $0 | $131,710 | $131,710 |
| 2017 | $104,060 | $34,800 | $0 | $138,860 | $138,860 |
| 2016 | $94,600 | $34,800 | $0 | $129,400 | $129,400 |
| 2015 | $90,090 | $34,800 | $0 | $124,890 | $124,890 |
| 2014 | $85,800 | $34,800 | $0 | $120,600 | $120,600 |
| 2013 | $85,800 | $34,800 | $0 | $120,600 | $120,600 |
| 2012 | $85,800 | $34,800 | $0 | $0 | $0 |
| 2011 | $85,800 | $34,800 | $0 | $0 | $0 |
| 2010 | $70,100 | $34,800 | $0 | $0 | $0 |
| 2009 | $81,700 | $34,800 | $0 | $0 | $0 |
| 2008 | $77,200 | $34,800 | $0 | $0 | $0 |
| 2007 | $77,200 | $34,800 | $0 | $0 | $0 |
Deed and Sales History
| 1 | 12/21/2017 | SWD | STATUTORY WARRANTY DEED | MORELAND BOYD L & CARLENE L | SMITH JOSHUA R | | | $135,000.00 | 133851 | 2017-10283 |
| 2 | 01/28/2009 | QCD | QUIT CLAIM DEED | MORELAND, BOYD L | MORELAND, BOYD L & CARLENE L | | | | 116254 | 2009-00769 |
| 3 | 01/01/1968 | WARRANTY D | WARRANTY DEED | | | | | $14,500.00 | 0 | 1198-001873 |
Payout Agreement
| No payout information available.. |