Property
Account |
| Property ID: | 5835 | Abbreviated Legal Description: | WILSONS LOT 4 & S 6' OF LOT 5 BLK 3 AND VAC ALLEY |
| Parcel Number: | 360716580304 | Agent Code: | |
| Type: | Real | | |
| Tax Area: | 5 - OL-140 | Land Use Code | 11 |
| Open Space: | N | DFL | N |
| Historic Property: | N | Remodel Property: | N |
| Multi-Family Redevelopment: | N | | |
| Township: | 7 | Section: | 16 |
| Range: | 36 |
Location |
| Address: | 735 WHITE ST WA 99362 | Mapsco: | |
| Neighborhood: | A-SFR | Map ID: | |
| Neighborhood CD: | 513011 |
Owner |
| Name: | MCDONALD NATHAN K | Owner ID: | 66410 |
| Mailing Address: | 735 WHITE ST WALLA WALLA, WA 99362 | % Ownership: | 100.0000000000% |
| | | Exemptions: | |
Taxes and Assessment Details
Values
| (+) Improvement Homesite Value: | + | $0 | |
| (+) Improvement Non-Homesite Value: | + | $270,650 | |
| (+) Land Homesite Value: | + | $0 | |
| (+) Land Non-Homesite Value: | + | $42,000 | |
| (+) Curr Use (HS): | + | $0 | $0 |
| (+) Curr Use (NHS): | + | $0 | $0 |
| | | -------------------------- | |
| (=) Market Value: | = | $312,650 | |
| (–) Productivity Loss: | – | $0 | |
| | | -------------------------- | |
| (=) Subtotal: | = | $312,650 | |
| (+) Senior Appraised Value: | + | $0 | |
| (+) Non-Senior Appraised Value: | + | $312,650 | |
| | | -------------------------- | |
| (=) Total Appraised Value: | = | $312,650 | |
| (–) Senior Exemption Loss: | – | $0 | |
| (–) Exemption Loss: | – | $0 | |
| | | -------------------------- | |
| (=) Taxable Value: | = | $312,650 | |
Taxing Jurisdiction
| Owner: | MCDONALD NATHAN K | | |
| % Ownership: | 100.0000000000% | | |
| Total Value: | $312,650 | | |
| Tax Area: | 5 - OL-140 |
| CERFD | CURRENT EXPENSE REFUND 010 | 0.0000000000 | $312,650 | $312,650 | $0.00 | | |
| CURREXP | CURRENT EXPENSE 010 | 1.0175366760 | $312,650 | $312,650 | $318.13 | | |
| HUMNSERV | HUMAN SERVICES 119 | 0.0250000000 | $312,650 | $312,650 | $7.82 | | |
| SLDREL | SOLDIERS RELIEF 121 | 0.0155990005 | $312,650 | $312,650 | $4.88 | | |
| EMERGSER | EMS 147 | 0.3792580840 | $312,650 | $312,650 | $118.58 | | |
| EMSRFD | EMS REFUND 147 | 0.0000000000 | $312,650 | $312,650 | $0.00 | | |
| PORTRFD | PORT REFUND 640 | 0.0000000000 | $312,650 | $312,650 | $0.00 | | |
| PORTWWGEN | PORT OF WW 640 | 0.2460186015 | $312,650 | $312,650 | $76.92 | | |
| SD140BOND | SD #140 BOND 764 | 0.8342371393 | $312,650 | $312,650 | $260.82 | | |
| SD140GEN | SD #140 GENERAL 760 | 2.0646500647 | $312,650 | $312,650 | $645.51 | | |
| ST2 | STATE SCHOOL PART 2 600 | 0.8131451643 | $312,650 | $312,650 | $254.23 | | |
| STATESCHL | STATE SCHOOL 600 | 1.5158548041 | $312,650 | $312,650 | $473.93 | | |
| STREFUND | STATE REFUND LEVY 603 | 0.0000000000 | $312,650 | $312,650 | $0.00 | | |
| CWWBOND | C OF WW BOND 643 | 0.2760494372 | $312,650 | $312,650 | $86.31 | | |
| CWWGEN | CITY OF WW 631 | 1.6100204973 | $312,650 | $312,650 | $503.37 | | |
| CWWRFD | CITY OF WALLA WALLA REFUND 631 | 0.0000000000 | $312,650 | $312,650 | $0.00 | | |
| | Total Tax Rate: | 8.7973694689 | | | | | |
| | | | | Taxes w/Current Exemptions: | $2,750.50 | | |
| | | | | Taxes w/o Exemptions: | $2,750.50 | | |
Improvement / Building
| Improvement #1: | RESIDENTIAL | State Code: | 11 | 905.0 sqft | Value: | $270,650 |
| Exterior Wall: | SIDING | Heating/Cooling: | WARM & COOLED AIR | | Number of Bathrooms: | 2 | Number of Bedrooms: | 2 | | Plumbing: | 10 | Roof Covering: | COMP SHINGLE |
|
| | Type | Description | Class CD | Sub Class CD | Year Built | Area |
| | MA | Main Area | 1 | 30 | 1955 | 905.0 |
| | PRC | PORCH W STEPS, ROOF,CEILED | 1 | 30 | 0 | 35.0 |
| | SI1 | SITE IMPROVEMENT | 1 | 30 | 0 | 1.5 |
| | BASE | BASEMENT | 1 | 30 | 1955 | 754.0 |
| | BPF | BASEMENT -PARTITIONED FINISH | 1 | 30 | 1955 | 754.0 |
| | DTG | Detached Garage | 1 | 30 | 1955 | 308.0 |
| | S1F | Single One Story Fireplace | 1 | 30 | 1955 | 1.0 |
| | OSP | Open | 1 | 30 | 1955 | 96.0 |
Sketch
Property Image
Land
| 1 | RES 1 | Converted: Residential | 0.1543 | 6720.00 | 0.00 | 0.00 | 1.00 | $42,000 | $0 |
Roll Value History
| 2026 | N/A | N/A | N/A | N/A | N/A |
| 2025 | $247,750 | $67,200 | $0 | $314,950 | $314,950 |
| 2024 | $247,750 | $67,200 | $0 | $314,950 | $314,950 |
| 2023 | $270,650 | $42,000 | $0 | $312,650 | $312,650 |
| 2022 | $235,350 | $42,000 | $0 | $277,350 | $277,350 |
| 2021 | $181,040 | $42,000 | $0 | $223,040 | $223,040 |
| 2020 | $139,260 | $42,000 | $0 | $181,260 | $181,260 |
| 2019 | $139,260 | $42,000 | $0 | $181,260 | $181,260 |
| 2018 | $126,600 | $42,000 | $0 | $168,600 | $168,600 |
| 2017 | $130,630 | $26,900 | $0 | $157,530 | $157,530 |
| 2016 | $124,410 | $26,900 | $0 | $151,310 | $151,310 |
| 2015 | $165,880 | $26,900 | $0 | $192,780 | $192,780 |
| 2014 | $132,700 | $26,900 | $0 | $159,600 | $159,600 |
| 2013 | $132,700 | $26,900 | $0 | $159,600 | $159,600 |
| 2012 | $151,000 | $26,900 | $0 | $0 | $0 |
| 2011 | $151,000 | $26,900 | $0 | $0 | $0 |
| 2010 | $142,500 | $26,900 | $0 | $0 | $0 |
| 2009 | $161,300 | $26,900 | $0 | $0 | $0 |
| 2008 | $117,900 | $26,900 | $0 | $0 | $0 |
| 2007 | $117,900 | $26,900 | $0 | $0 | $0 |
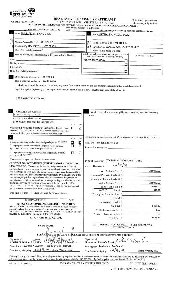
Deed and Sales History
| 1 | 12/11/2024 | SWD | STATUTORY WARRANTY DEED | MCDONALD NATHAN K | BENDER KARINA J & JONNATHAN L | | | $336,000.00 | 148635 | 2024-07140 |
| 2 | 12/10/2019 | SWD | STATUTORY WARRANTY DEED | SANGUINE WILLIAM M | MCDONALD NATHAN K | | | $226,000.00 | 138233 | 2019-10238 |
| 3 | 07/10/1996 | WARRANTY D | WARRANTY DEED | | | | | $98,000.00 | 86476 | 2429-606843 |
Payout Agreement
| No payout information available.. |