Property
Account |
| Property ID: | 5827 | Abbreviated Legal Description: | WILSONS PARCEL 8 (LOT 1) BLK 1 |
| Parcel Number: | 360716580108 | Agent Code: | |
| Type: | Real | | |
| Tax Area: | 5 - OL-140 | Land Use Code | 11 |
| Open Space: | N | DFL | N |
| Historic Property: | N | Remodel Property: | N |
| Multi-Family Redevelopment: | N | | |
| Township: | 7 | Section: | 16 |
| Range: | 36 |
Location |
| Address: | 640 WILSON ST WA 99362 | Mapsco: | |
| Neighborhood: | A-SFR | Map ID: | |
| Neighborhood CD: | 513011 |
Owner |
| Name: | SCOTT MELANIE J | Owner ID: | 61561 |
| Mailing Address: | 640 WILSON ST WALLA WALLA, WA 99362 | % Ownership: | 100.0000000000% |
| | | Exemptions: | |
Taxes and Assessment Details
Property Tax Information as of
02/21/2026
Click on "Statement Details" to expand or collapse a tax statement.
* Please enter a valid date ** Please enter a valid date *
Statement Details |
| | TOTAL: | $0.00 | $0.00 | $0.00 | $0.00 | $0.00 | $0.00 |
|
| | $0.00 | $0.00 | $0.00 | $0.00 | $0.00 | $0.00 |
Values
| (+) Improvement Homesite Value: | + | $0 | |
| (+) Improvement Non-Homesite Value: | + | $275,940 | |
| (+) Land Homesite Value: | + | $0 | |
| (+) Land Non-Homesite Value: | + | $37,500 | |
| (+) Curr Use (HS): | + | $0 | $0 |
| (+) Curr Use (NHS): | + | $0 | $0 |
| | | -------------------------- | |
| (=) Market Value: | = | $313,440 | |
| (–) Productivity Loss: | – | $0 | |
| | | -------------------------- | |
| (=) Subtotal: | = | $313,440 | |
| (+) Senior Appraised Value: | + | $0 | |
| (+) Non-Senior Appraised Value: | + | $313,440 | |
| | | -------------------------- | |
| (=) Total Appraised Value: | = | $313,440 | |
| (–) Senior Exemption Loss: | – | $0 | |
| (–) Exemption Loss: | – | $0 | |
| | | -------------------------- | |
| (=) Taxable Value: | = | $313,440 | |
Taxing Jurisdiction
| Owner: | SCOTT MELANIE J | | |
| % Ownership: | 100.0000000000% | | |
| Total Value: | $313,440 | | |
| Tax Area: | 5 - OL-140 |
| CERFD | CURRENT EXPENSE REFUND 010 | 0.0000000000 | $313,440 | $313,440 | $0.00 | | |
| CURREXP | CURRENT EXPENSE 010 | 1.0175366760 | $313,440 | $313,440 | $318.94 | | |
| HUMNSERV | HUMAN SERVICES 119 | 0.0250000000 | $313,440 | $313,440 | $7.84 | | |
| SLDREL | SOLDIERS RELIEF 121 | 0.0155990005 | $313,440 | $313,440 | $4.89 | | |
| EMERGSER | EMS 147 | 0.3792580840 | $313,440 | $313,440 | $118.87 | | |
| EMSRFD | EMS REFUND 147 | 0.0000000000 | $313,440 | $313,440 | $0.00 | | |
| PORTRFD | PORT REFUND 640 | 0.0000000000 | $313,440 | $313,440 | $0.00 | | |
| PORTWWGEN | PORT OF WW 640 | 0.2460186015 | $313,440 | $313,440 | $77.11 | | |
| SD140BOND | SD #140 BOND 764 | 0.8342371393 | $313,440 | $313,440 | $261.48 | | |
| SD140GEN | SD #140 GENERAL 760 | 2.0646500647 | $313,440 | $313,440 | $647.14 | | |
| ST2 | STATE SCHOOL PART 2 600 | 0.8131451643 | $313,440 | $313,440 | $254.87 | | |
| STATESCHL | STATE SCHOOL 600 | 1.5158548041 | $313,440 | $313,440 | $475.13 | | |
| STREFUND | STATE REFUND LEVY 603 | 0.0000000000 | $313,440 | $313,440 | $0.00 | | |
| CWWBOND | C OF WW BOND 643 | 0.2760494372 | $313,440 | $313,440 | $86.52 | | |
| CWWGEN | CITY OF WW 631 | 1.6100204973 | $313,440 | $313,440 | $504.64 | | |
| CWWRFD | CITY OF WALLA WALLA REFUND 631 | 0.0000000000 | $313,440 | $313,440 | $0.00 | | |
| | Total Tax Rate: | 8.7973694689 | | | | | |
| | | | | Taxes w/Current Exemptions: | $2,757.43 | | |
| | | | | Taxes w/o Exemptions: | $2,757.43 | | |
Improvement / Building
| Improvement #1: | RESIDENTIAL | State Code: | 11 | 898.0 sqft | Value: | $275,940 |
| Exterior Wall: | PLYWOOD | Heating/Cooling: | WARM & COOLED AIR | | Number of Bathrooms: | 2 | Number of Bedrooms: | 2 | | Plumbing: | 9 | Roof Covering: | COMP SHINGLE |
|
| | Type | Description | Class CD | Sub Class CD | Year Built | Area |
| | MA | Main Area | 11 | 30 | 1977 | 898.0 |
| | SI1 | SITE IMPROVEMENT | 11 | 30 | 0 | 1.5 |
| | WDR | WOOD DECK W/ROOF | 11 | 30 | 0 | 256.0 |
| | BASE | BASEMENT | 11 | 30 | 1977 | 898.0 |
| | OPS | OPEN PORCH W/STEPS | 11 | 30 | 1977 | 42.0 |
| | BRF | BASEMENT - REC FINISH | 11 | 30 | 1977 | 898.0 |
| | ATG | Attached Garage | 11 | 30 | 1977 | 256.0 |
Sketch
Property Image
Land
| 1 | RES 1 | Converted: Residential | 0.1377 | 6000.00 | 0.00 | 0.00 | 1.00 | $37,500 | $0 |
Roll Value History
| 2026 | N/A | N/A | N/A | N/A | N/A |
| 2025 | $250,130 | $60,000 | $0 | $310,130 | $310,130 |
| 2024 | $208,440 | $60,000 | $0 | $268,440 | $268,440 |
| 2023 | $275,940 | $37,500 | $0 | $313,440 | $313,440 |
| 2022 | $262,800 | $37,500 | $0 | $300,300 | $300,300 |
| 2021 | $202,160 | $37,500 | $0 | $239,660 | $239,660 |
| 2020 | $155,510 | $37,500 | $0 | $193,010 | $193,010 |
| 2019 | $155,510 | $37,500 | $0 | $193,010 | $193,010 |
| 2018 | $148,100 | $37,500 | $0 | $185,600 | $185,600 |
| 2017 | $158,190 | $24,000 | $0 | $182,190 | $182,190 |
| 2016 | $143,810 | $24,000 | $0 | $167,810 | $167,810 |
| 2015 | $125,060 | $24,000 | $0 | $149,060 | $149,060 |
| 2014 | $119,100 | $24,000 | $0 | $143,100 | $143,100 |
| 2013 | $119,100 | $24,000 | $0 | $143,100 | $143,100 |
| 2012 | $124,900 | $24,000 | $0 | $0 | $0 |
| 2011 | $124,900 | $24,000 | $0 | $0 | $0 |
| 2010 | $151,200 | $24,000 | $0 | $0 | $0 |
| 2009 | $170,700 | $24,000 | $0 | $0 | $0 |
| 2008 | $115,100 | $24,000 | $0 | $0 | $0 |
| 2007 | $115,100 | $24,000 | $0 | $0 | $0 |
Deed and Sales History
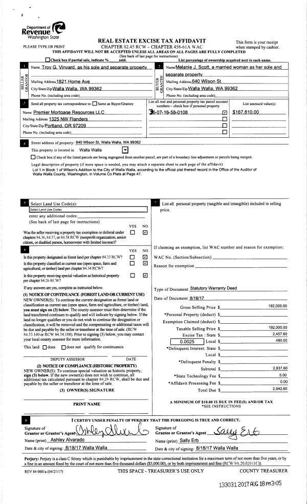
| 1 | 08/18/2017 | SWD | STATUTORY WARRANTY DEED | VINYARD TROY G | SCOTT MELANIE J | | | $192,000.00 | 133031 | 2017-06425 |
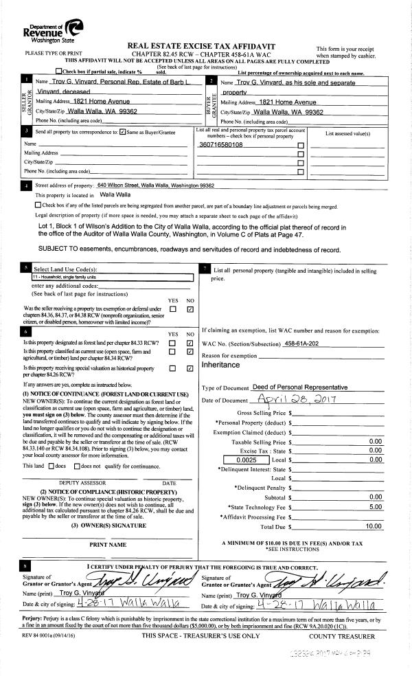
| 2 | 04/28/2017 | DPR | DEED OF PERSONAL REPRESENTATIVE | VINYARD TROY G & BARBARA L | VINYARD TROY G | | | $0.00 | 132324 | 2017-03374 |
| 3 | 04/12/1985 | WARRANTY D | WARRANTY DEED | | | | | $49,000.00 | 0 | 1498-502301 |
Payout Agreement
| No payout information available.. |