Property
Account |
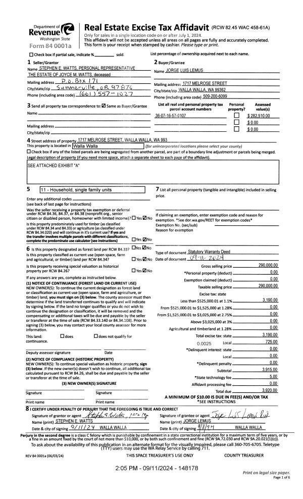
| Property ID: | 5817 | Abbreviated Legal Description: | WENTSCHS LOT 1 BLK 1 LESS PTN OF TAX 1 & 2 W 85' OF LOTS 8 AND 9BLK 1 |
| Parcel Number: | 360716570107 | Agent Code: | |
| Type: | Real | | |
| Tax Area: | 5 - OL-140 | Land Use Code | 11 |
| Open Space: | N | DFL | N |
| Historic Property: | N | Remodel Property: | N |
| Multi-Family Redevelopment: | N | | |
| Township: | 7 | Section: | 16 |
| Range: | 36 |
Location |
| Address: | 1717 MELROSE ST WA 99362 | Mapsco: | |
| Neighborhood: | A-SFR | Map ID: | |
| Neighborhood CD: | 513011 |
Owner |
| Name: | WATTS JOYCE M ESTATE OF | Owner ID: | 70687 |
| Mailing Address: | 1717 MELROSE ST WALLA WALLA, WA 99362 | % Ownership: | 100.0000000000% |
| | | Exemptions: | |
Taxes and Assessment Details
Property Tax Information as of
02/21/2026
Click on "Statement Details" to expand or collapse a tax statement.
* Please enter a valid date ** Please enter a valid date *
Statement Details |
| | TOTAL: | $0.00 | $0.00 | $0.00 | $0.00 | $0.00 | $0.00 |
|
| | $0.00 | $0.00 | $0.00 | $0.00 | $0.00 | $0.00 |
Values
| (+) Improvement Homesite Value: | + | $0 | |
| (+) Improvement Non-Homesite Value: | + | $219,290 | |
| (+) Land Homesite Value: | + | $0 | |
| (+) Land Non-Homesite Value: | + | $63,220 | |
| (+) Curr Use (HS): | + | $0 | $0 |
| (+) Curr Use (NHS): | + | $0 | $0 |
| | | -------------------------- | |
| (=) Market Value: | = | $282,510 | |
| (–) Productivity Loss: | – | $0 | |
| | | -------------------------- | |
| (=) Subtotal: | = | $282,510 | |
| (+) Senior Appraised Value: | + | $0 | |
| (+) Non-Senior Appraised Value: | + | $282,510 | |
| | | -------------------------- | |
| (=) Total Appraised Value: | = | $282,510 | |
| (–) Senior Exemption Loss: | – | $0 | |
| (–) Exemption Loss: | – | $0 | |
| | | -------------------------- | |
| (=) Taxable Value: | = | $282,510 | |
Taxing Jurisdiction
| Owner: | WATTS JOYCE M ESTATE OF | | |
| % Ownership: | 100.0000000000% | | |
| Total Value: | $282,510 | | |
| Tax Area: | 5 - OL-140 |
| CERFD | CURRENT EXPENSE REFUND 010 | 0.0000000000 | $282,510 | $282,510 | $0.00 | | |
| CURREXP | CURRENT EXPENSE 010 | 1.0175366760 | $282,510 | $282,510 | $287.46 | | |
| HUMNSERV | HUMAN SERVICES 119 | 0.0250000000 | $282,510 | $282,510 | $7.06 | | |
| SLDREL | SOLDIERS RELIEF 121 | 0.0155990005 | $282,510 | $282,510 | $4.41 | | |
| EMERGSER | EMS 147 | 0.3792580840 | $282,510 | $282,510 | $107.14 | | |
| EMSRFD | EMS REFUND 147 | 0.0000000000 | $282,510 | $282,510 | $0.00 | | |
| PORTRFD | PORT REFUND 640 | 0.0000000000 | $282,510 | $282,510 | $0.00 | | |
| PORTWWGEN | PORT OF WW 640 | 0.2460186015 | $282,510 | $282,510 | $69.50 | | |
| SD140BOND | SD #140 BOND 764 | 0.8342371393 | $282,510 | $282,510 | $235.68 | | |
| SD140GEN | SD #140 GENERAL 760 | 2.0646500647 | $282,510 | $282,510 | $583.28 | | |
| ST2 | STATE SCHOOL PART 2 600 | 0.8131451643 | $282,510 | $282,510 | $229.72 | | |
| STATESCHL | STATE SCHOOL 600 | 1.5158548041 | $282,510 | $282,510 | $428.24 | | |
| STREFUND | STATE REFUND LEVY 603 | 0.0000000000 | $282,510 | $282,510 | $0.00 | | |
| CWWBOND | C OF WW BOND 643 | 0.2760494372 | $282,510 | $282,510 | $77.99 | | |
| CWWGEN | CITY OF WW 631 | 1.6100204973 | $282,510 | $282,510 | $454.85 | | |
| CWWRFD | CITY OF WALLA WALLA REFUND 631 | 0.0000000000 | $282,510 | $282,510 | $0.00 | | |
| | Total Tax Rate: | 8.7973694689 | | | | | |
| | | | | Taxes w/Current Exemptions: | $2,485.33 | | |
| | | | | Taxes w/o Exemptions: | $2,485.33 | | |
Improvement / Building
| Improvement #1: | RESIDENTIAL | State Code: | 11 | 1636.0 sqft | Value: | $219,290 |
| Exterior Wall: | SIDING | Heating/Cooling: | GRAVITY FURNACE | | Number of Bathrooms: | 1 | Number of Bedrooms: | 3 | | Plumbing: | 6 | Roof Covering: | COMP SHINGLE |
|
| | Type | Description | Class CD | Sub Class CD | Year Built | Area |
| | MA | Main Area | 1 | 30 | 1905 | 1636.0 |
| | SI1 | SITE IMPROVEMENT | 1 | 30 | 0 | 1.5 |
| | DTG | Detached Garage | 1 | 30 | 1905 | 240.0 |
| | SWP | Solid Wall Porch | 1 | 30 | 1905 | 120.0 |
| | RPO | OPEN PORCH W/ROOF | 1 | 30 | 1905 | 338.0 |
Sketch
Property Image
Land
| 1 | RES 1 | Converted: Residential | 0.2615 | 11390.00 | 0.00 | 0.00 | 1.00 | $63,220 | $0 |
Roll Value History
| 2026 | N/A | N/A | N/A | N/A | N/A |
| 2025 | $197,960 | $101,030 | $0 | $298,990 | $298,990 |
| 2024 | $208,380 | $101,030 | $0 | $309,410 | $309,410 |
| 2023 | $219,290 | $63,220 | $0 | $282,510 | $282,510 |
| 2022 | $208,850 | $63,220 | $0 | $272,070 | $272,070 |
| 2021 | $174,040 | $63,220 | $0 | $237,260 | $237,260 |
| 2020 | $124,320 | $63,220 | $0 | $187,540 | $187,540 |
| 2019 | $124,320 | $63,220 | $0 | $187,540 | $187,540 |
| 2018 | $108,100 | $63,220 | $0 | $171,320 | $171,320 |
| 2017 | $111,480 | $41,000 | $0 | $152,480 | $152,480 |
| 2016 | $106,170 | $41,000 | $0 | $147,170 | $147,170 |
| 2015 | $101,120 | $41,000 | $0 | $142,120 | $142,120 |
| 2014 | $96,300 | $41,000 | $0 | $137,300 | $137,300 |
| 2013 | $96,300 | $41,000 | $0 | $137,300 | $137,300 |
| 2012 | $100,800 | $41,000 | $0 | $0 | $0 |
| 2011 | $100,800 | $41,000 | $0 | $0 | $0 |
| 2010 | $100,800 | $41,000 | $0 | $0 | $0 |
| 2009 | $116,600 | $41,000 | $0 | $0 | $0 |
| 2008 | $85,100 | $41,000 | $0 | $0 | $0 |
| 2007 | $85,100 | $41,000 | $0 | $0 | $0 |
Deed and Sales History
| 1 | 09/11/2024 | QCD | QUIT CLAIM DEED | MARTINEZ NATHALIE C | LEMUS JORGE LUIS | | | | 148180 | 2024-05161 |
| 2 | 09/11/2024 | SWD | STATUTORY WARRANTY DEED | WATTS JOYCE M ESTATE OF | LEMUS JORGE LUIS | | | $290,000.00 | 148178 | 2024-05160 |
| 3 | 11/08/2021 | QCD | QUIT CLAIM DEED | WATTS DON E & JOYCE LIFE EST | WATTS JOYCE M ESTATE OF | | | $0.00 | 142839 | 2021-13396 |
| 4 | 09/27/1989 | QCD | QUIT CLAIM DEED | | | | | $16,000.00 | 0 | 1899-103133 |
Payout Agreement
| No payout information available.. |