Property
Account |
| Property ID: | 5812 | Abbreviated Legal Description: | HENDRICKSON HGTS (TRACT A SURVEY 2003-03005) LOT 11; PLUS TAX 2 IN LOT 1; PLUS PTN MT VISTA ESTATES LOT 9 |
| Parcel Number: | 350736530012 | Agent Code: | |
| Type: | Real | | |
| Tax Area: | 77 - CP-250-F | Land Use Code | 11 |
| Open Space: | N | DFL | N |
| Historic Property: | N | Remodel Property: | N |
| Multi-Family Redevelopment: | N | | |
| Township: | 7 | Section: | 36 |
| Range: | 35 |
Location |
| Address: | 1227 SE MURPHY LN WA 99324 | Mapsco: | |
| Neighborhood: | G SFR | Map ID: | |
| Neighborhood CD: | 114011 |
Owner |
| Name: | FULLER CATHY | Owner ID: | 75606 |
| Mailing Address: | DEE WILLIS 1227 SE MURPHY LN COLLEGE PLACE, WA 99324 | % Ownership: | 100.0000000000% |
| | | Exemptions: | |
Taxes and Assessment Details
Property Tax Information as of
02/21/2026
Click on "Statement Details" to expand or collapse a tax statement.
* Please enter a valid date ** Please enter a valid date *
Statement Details |
| | TOTAL: | $0.00 | $0.00 | $0.00 | $0.00 | $0.00 | $0.00 |
|
| | $0.00 | $0.00 | $0.00 | $0.00 | $0.00 | $0.00 |
Values
| (+) Improvement Homesite Value: | + | N/A | |
| (+) Improvement Non-Homesite Value: | + | N/A | |
| (+) Land Homesite Value: | + | N/A | |
| (+) Land Non-Homesite Value: | + | N/A | Ag / Timber Use Value |
| (+) Curr Use (HS): | + | N/A | N/A |
| (+) Curr Use (NHS): | + | N/A | N/A |
| | | -------------------------- | |
| (=) Market Value: | = | N/A | |
| (–) Productivity Loss: | – | N/A | |
| | | -------------------------- | |
| (=) Subtotal: | = | N/A | |
| (+) Senior Appraised Value: | + | N/A | |
| (+) Non-Senior Appraised Value: | + | N/A | |
| | | -------------------------- | |
| (=) Total Appraised Value: | = | N/A | |
| (–) Senior Exemption Loss: | – | N/A | |
| (–) Exemption Loss: | – | N/A | |
| | | -------------------------- | |
| (=) Taxable Value: | = | N/A | |
Taxing Jurisdiction
| Owner: | FULLER CATHY | | |
| % Ownership: | 100.0000000000% | | |
| Total Value: | N/A | | |
| Tax Area: | 77 - CP-250-F |
| CERFD | CURRENT EXPENSE REFUND 010 | N/A | N/A | N/A | N/A | | |
| CURREXP | CURRENT EXPENSE 010 | N/A | N/A | N/A | N/A | | |
| HUMNSERV | HUMAN SERVICES 119 | N/A | N/A | N/A | N/A | | |
| SLDREL | SOLDIERS RELIEF 121 | N/A | N/A | N/A | N/A | | |
| COLLPLBOND | C OF CP BOND 644 | N/A | N/A | N/A | N/A | | |
| COLLPLGEN | CITY OF CP 632 | N/A | N/A | N/A | N/A | | |
| EMERGSER | EMS 147 | N/A | N/A | N/A | N/A | | |
| EMSRFD | EMS REFUND 147 | N/A | N/A | N/A | N/A | | |
| PORTRFD | PORT REFUND 640 | N/A | N/A | N/A | N/A | | |
| PORTWWGEN | PORT OF WW 640 | N/A | N/A | N/A | N/A | | |
| SD250BOND | SD #250 BOND 773 | N/A | N/A | N/A | N/A | | |
| SD250GEN | SD #250 GENERAL 770 | N/A | N/A | N/A | N/A | | |
| ST2 | STATE SCHOOL PART 2 600 | N/A | N/A | N/A | N/A | | |
| STATESCHL | STATE SCHOOL 600 | N/A | N/A | N/A | N/A | | |
| STREFUND | STATE REFUND LEVY 603 | N/A | N/A | N/A | N/A | | |
| | Total Tax Rate: | N/A | | | | | |
| | | | | Taxes w/Current Exemptions: | N/A | | |
| | | | | Taxes w/o Exemptions: | N/A | | |
Improvement / Building
| Improvement #1: | RESIDENTIAL | State Code: | 11 | 2001.0 sqft | Value: | N/A |
| Exterior Wall: | STUCCO | Heating/Cooling: | WARM & COOLED AIR | | Number of Bathrooms: | 4 | Number of Bedrooms: | 4 | | Plumbing: | 21 | Roof Covering: | COMP SHINGLE |
|
| | Type | Description | Class CD | Sub Class CD | Year Built | Area |
| | MA | Main Area | 1 | 40 | 1973 | 2001.0 |
| | SI1 | SITE IMPROVEMENT | 1 | 40 | 1973 | 4.0 |
| | BASE | BASEMENT | 1 | 40 | 1973 | 1576.0 |
| | BPF | BASEMENT -PARTITIONED FINISH | 1 | 40 | 1973 | 1576.0 |
| | ATG | Attached Garage | 1 | 40 | 1973 | 825.0 |
| | D2F | Double 2 Story Fireplace | 1 | 40 | 1973 | 1.0 |
| | RPC | OPEN PORCH W/ROOF , CEILED | 1 | 40 | 1973 | 215.0 |
| | BLW | WOOD BALCONIES | 1 | 40 | 1973 | 50.0 |
| | RPC | OPEN PORCH W/ROOF , CEILED | 1 | 40 | 1973 | 140.0 |
| | HVAC | HEAT/AC SYSTEM | 1 | 40 | 1973 | 1576.0 |
| | APP | APPLIANCE ALLOWANCE | 1 | 40 | 1973 | 1.0 |
Sketch
Property Image
Land
| 1 | RES 1 | Converted: Residential | 0.3271 | 14248.48 | 0.00 | 0.00 | 1.00 | N/A | N/A |
Roll Value History
| 2026 | N/A | N/A | N/A | N/A | N/A |
| 2025 | $474,500 | $146,620 | $0 | $621,120 | $621,120 |
| 2024 | $432,220 | $100,590 | $0 | $532,810 | $532,810 |
| 2023 | $432,220 | $100,590 | $0 | $532,810 | $532,810 |
| 2022 | $432,220 | $100,590 | $0 | $532,810 | $532,810 |
| 2021 | $384,900 | $100,590 | $0 | $485,490 | $485,490 |
| 2020 | $265,450 | $100,590 | $0 | $366,040 | $366,040 |
| 2019 | $301,040 | $65,000 | $0 | $366,040 | $366,040 |
| 2018 | $286,700 | $65,000 | $0 | $351,700 | $351,700 |
| 2017 | $286,700 | $65,000 | $0 | $351,700 | $351,700 |
| 2016 | $286,700 | $65,000 | $0 | $351,700 | $351,700 |
| 2015 | $286,700 | $65,000 | $0 | $351,700 | $351,700 |
| 2014 | $286,700 | $65,000 | $0 | $351,700 | $351,700 |
| 2013 | $286,700 | $65,000 | $0 | $351,700 | $351,700 |
| 2012 | $286,700 | $65,000 | $0 | $0 | $0 |
| 2011 | $286,700 | $65,000 | $0 | $0 | $0 |
| 2010 | $286,700 | $65,000 | $0 | $0 | $0 |
| 2009 | $305,200 | $65,000 | $0 | $0 | $0 |
| 2008 | $125,000 | $27,200 | $0 | $0 | $0 |
| 2007 | $125,000 | $27,200 | $0 | $0 | $0 |
Deed and Sales History
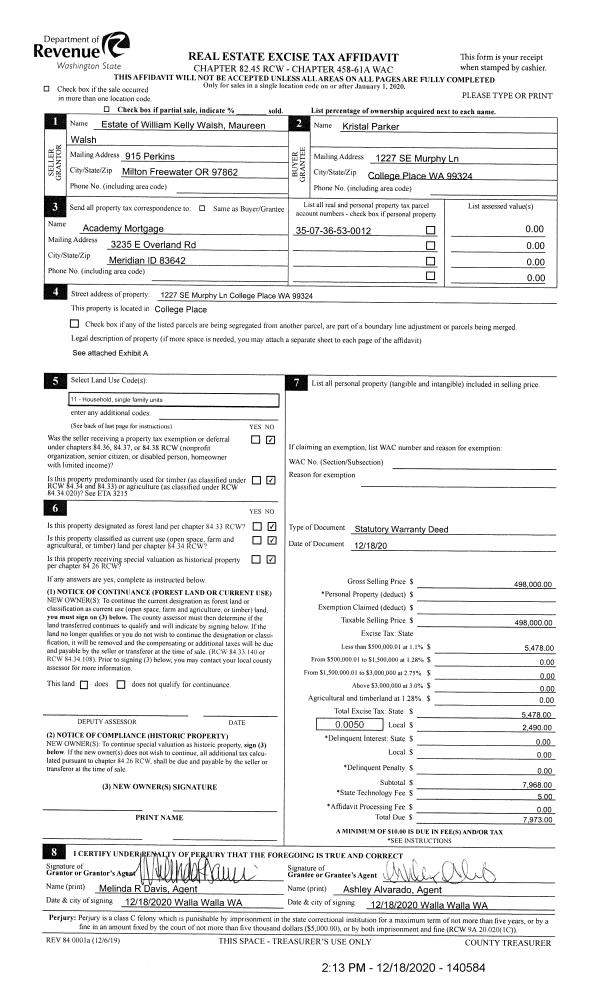
| 1 | 07/08/2024 | SWD | STATUTORY WARRANTY DEED | PARKER KRISTAL | FULLER CATHY | | 2-PARCELS | $647,000.00 | 147819 | 2024-03630 |
|   | |
| 2 | 12/18/2020 | SWD | STATUTORY WARRANTY DEED | WALSH WILLIAM K & MAUREEN | PARKER KRISTAL | | 2 PARCELS | $498,000.00 | 140584 | 2020-13452 |
|   | |
Payout Agreement
| No payout information available.. |