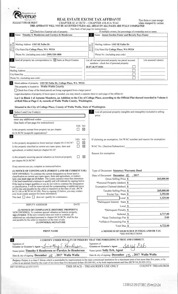
Property
Account |
| Property ID: | 5810 | Abbreviated Legal Description: | AUTUMN MEADOWS LT 1 BLK 1 |
| Parcel Number: | 350736970101 | Agent Code: | |
| Type: | Real | | |
| Tax Area: | 77 - CP-250-F | Land Use Code | 11 |
| Open Space: | N | DFL | N |
| Historic Property: | N | Remodel Property: | N |
| Multi-Family Redevelopment: | N | | |
| Township: | 7 | Section: | 36 |
| Range: | 35 |
Location |
| Address: | 1103 SE FALBO DR WA 99324 | Mapsco: | |
| Neighborhood: | A SFR | Map ID: | |
| Neighborhood CD: | 113011 |
Owner |
| Name: | FOSTER JAMES GORDON & BEVERLY FAYE | Owner ID: | 62278 |
| Mailing Address: | 1103 SE FALBO DR COLLEGE PLACE, WA 99324 | % Ownership: | 100.0000000000% |
| | | Exemptions: | |
Taxes and Assessment Details
Values
| (+) Improvement Homesite Value: | + | $0 | |
| (+) Improvement Non-Homesite Value: | + | $321,430 | |
| (+) Land Homesite Value: | + | $0 | |
| (+) Land Non-Homesite Value: | + | $70,000 | |
| (+) Curr Use (HS): | + | $0 | $0 |
| (+) Curr Use (NHS): | + | $0 | $0 |
| | | -------------------------- | |
| (=) Market Value: | = | $391,430 | |
| (–) Productivity Loss: | – | $0 | |
| | | -------------------------- | |
| (=) Subtotal: | = | $391,430 | |
| (+) Senior Appraised Value: | + | $0 | |
| (+) Non-Senior Appraised Value: | + | $391,430 | |
| | | -------------------------- | |
| (=) Total Appraised Value: | = | $391,430 | |
| (–) Senior Exemption Loss: | – | $0 | |
| (–) Exemption Loss: | – | $0 | |
| | | -------------------------- | |
| (=) Taxable Value: | = | $391,430 | |
Taxing Jurisdiction
| Owner: | FOSTER JAMES GORDON & BEVERLY FAYE | | |
| % Ownership: | 100.0000000000% | | |
| Total Value: | $391,430 | | |
| Tax Area: | 77 - CP-250-F |
| CERFD | CURRENT EXPENSE REFUND 010 | 0.0000000000 | $391,430 | $391,430 | $0.00 | | |
| CURREXP | CURRENT EXPENSE 010 | 1.0175366760 | $391,430 | $391,430 | $398.29 | | |
| HUMNSERV | HUMAN SERVICES 119 | 0.0250000000 | $391,430 | $391,430 | $9.79 | | |
| SLDREL | SOLDIERS RELIEF 121 | 0.0155990005 | $391,430 | $391,430 | $6.11 | | |
| COLLPLBOND | C OF CP BOND 644 | 0.4374241808 | $391,430 | $391,430 | $171.22 | | |
| COLLPLGEN | CITY OF CP 632 | 1.4453819216 | $391,430 | $391,430 | $565.77 | | |
| EMERGSER | EMS 147 | 0.3792580840 | $391,430 | $391,430 | $148.45 | | |
| EMSRFD | EMS REFUND 147 | 0.0000000000 | $391,430 | $391,430 | $0.00 | | |
| RURALLIB | RURAL LIBRARY 623 | 0.3710609029 | $391,430 | $391,430 | $145.24 | | |
| PORTRFD | PORT REFUND 640 | 0.0000000000 | $391,430 | $391,430 | $0.00 | | |
| PORTWWGEN | PORT OF WW 640 | 0.2460186015 | $391,430 | $391,430 | $96.30 | | |
| SD250BOND | SD #250 BOND 773 | 1.4560608159 | $391,430 | $391,430 | $569.95 | | |
| SD250GEN | SD #250 GENERAL 770 | 2.3880724087 | $391,430 | $391,430 | $934.76 | | |
| ST2 | STATE SCHOOL PART 2 600 | 0.8131451643 | $391,430 | $391,430 | $318.29 | | |
| STATESCHL | STATE SCHOOL 600 | 1.5158548041 | $391,430 | $391,430 | $593.35 | | |
| STREFUND | STATE REFUND LEVY 603 | 0.0000000000 | $391,430 | $391,430 | $0.00 | | |
| | Total Tax Rate: | 10.1104125603 | | | | | |
| | | | | Taxes w/Current Exemptions: | $3,957.52 | | |
| | | | | Taxes w/o Exemptions: | $3,957.52 | | |
Improvement / Building
| Improvement #1: | RESIDENTIAL | State Code: | 11 | 2016.0 sqft | Value: | $321,430 |
| Exterior Wall: | PLYWOOD | Heating/Cooling: | WARM & COOLED AIR | | Number of Bathrooms: | 3 | Number of Bedrooms: | 4 | | Plumbing: | 12 | Roof Covering: | COMP SHINGLE |
|
| | Type | Description | Class CD | Sub Class CD | Year Built | Area |
| | MA | Main Area | 2 | 30 | 2004 | 2016.0 |
| | UPFL | Upper Floor (included in main area) | 2 | 30 | 2004 | 1008.0 |
| | SI1 | SITE IMPROVEMENT | 2 | 30 | 2004 | 2.0 |
| | ATG | Attached Garage | 2 | 30 | 2004 | 400.0 |
| | RPC | OPEN PORCH W/ROOF , CEILED | 2 | 30 | 2004 | 112.0 |
| | GFP | GAS FIREPLACE | 2 | 30 | 2004 | 1.0 |
Sketch
Property Image
Land
| 1 | RES 1 | Converted: Residential | 0.1412 | 6150.00 | 0.00 | 0.00 | 1.00 | $70,000 | $0 |
Roll Value History
| 2026 | N/A | N/A | N/A | N/A | N/A |
| 2025 | $289,290 | $125,000 | $0 | $414,290 | $414,290 |
| 2024 | $321,430 | $70,000 | $0 | $391,430 | $391,430 |
| 2023 | $321,430 | $70,000 | $0 | $391,430 | $391,430 |
| 2022 | $321,430 | $70,000 | $0 | $391,430 | $391,430 |
| 2021 | $221,680 | $70,000 | $0 | $291,680 | $291,680 |
| 2020 | $159,480 | $70,000 | $0 | $229,480 | $229,480 |
| 2019 | $174,480 | $55,000 | $0 | $229,480 | $229,480 |
| 2018 | $166,170 | $55,000 | $0 | $221,170 | $221,170 |
| 2017 | $138,470 | $55,000 | $0 | $193,470 | $193,470 |
| 2016 | $138,470 | $55,000 | $0 | $193,470 | $193,470 |
| 2015 | $131,880 | $55,000 | $0 | $186,880 | $186,880 |
| 2014 | $109,900 | $55,000 | $0 | $164,900 | $164,900 |
| 2013 | $109,900 | $55,000 | $0 | $164,900 | $164,900 |
| 2012 | $109,900 | $55,000 | $0 | $0 | $0 |
| 2011 | $139,000 | $55,000 | $0 | $0 | $0 |
| 2010 | $139,000 | $55,000 | $0 | $0 | $0 |
| 2009 | $160,500 | $55,000 | $0 | $0 | $0 |
| 2008 | $146,100 | $30,000 | $0 | $0 | $0 |
| 2007 | $146,100 | $30,000 | $0 | $0 | $0 |
Deed and Sales History
| 1 | 12/15/2017 | SWD | STATUTORY WARRANTY DEED | HENDERSON TIMOTHY S | FOSTER JAMES GORDON & BEVERLY FAYE | | | $265,000.00 | 133812 | 2017-10115 |
| 2 | 04/22/2004 | WARRANTY D | WARRANTY DEED | HAYDEN ENTERPRISES INC | HENDERSON, TIMOTHY S | | | $177,000.00 | 104564 | 2004-04300 |
| 3 | 08/21/2002 | WARRANTY D | WARRANTY DEED | VILLAGE PARK COLLEGE PLACE~LLC | | | | | 100199 | 2002-09391 |
Payout Agreement
| No payout information available.. |