Property
Account |
| Property ID: | 5809 | Abbreviated Legal Description: | ANDERSON ADDITION (TRACT A OF SURVEY) LOT 1, LESS NELY CORNER; ALSOSWLY PTN LOT 2 BLOCK 2; ALSO SWLY PTN TAX 13A WITHINNE1/4SW1/4NE1/4 |
| Parcel Number: | 360728510210 | Agent Code: | |
| Type: | Real | | |
| Tax Area: | 105 - 140-F-4 | Land Use Code | 11 |
| Open Space: | N | DFL | N |
| Historic Property: | N | Remodel Property: | N |
| Multi-Family Redevelopment: | N | | |
| Township: | 7 | Section: | 28 |
| Range: | 36 |
Location |
| Address: | 1127 E CHESTNUT ST WA 99362 | Mapsco: | |
| Neighborhood: | G Res | Map ID: | |
| Neighborhood CD: | 614011 |
Owner |
| Name: | POWELL PARKER & NANCY | Owner ID: | 67085 |
| Mailing Address: | 1127 E CHESTNUT ST WALLA WALLA, WA 99362 | % Ownership: | 100.0000000000% |
| | | Exemptions: | |
Taxes and Assessment Details
Property Tax Information as of
02/21/2026
Click on "Statement Details" to expand or collapse a tax statement.
* Please enter a valid date ** Please enter a valid date *
Statement Details |
| | TOTAL: | $0.00 | $0.00 | $0.00 | $0.00 | $0.00 | $0.00 |
|
| | $0.00 | $0.00 | $0.00 | $0.00 | $0.00 | $0.00 |
Values
| (+) Improvement Homesite Value: | + | $0 | |
| (+) Improvement Non-Homesite Value: | + | $560,490 | |
| (+) Land Homesite Value: | + | $0 | |
| (+) Land Non-Homesite Value: | + | $127,690 | |
| (+) Curr Use (HS): | + | $0 | $0 |
| (+) Curr Use (NHS): | + | $0 | $0 |
| | | -------------------------- | |
| (=) Market Value: | = | $688,180 | |
| (–) Productivity Loss: | – | $0 | |
| | | -------------------------- | |
| (=) Subtotal: | = | $688,180 | |
| (+) Senior Appraised Value: | + | $0 | |
| (+) Non-Senior Appraised Value: | + | $688,180 | |
| | | -------------------------- | |
| (=) Total Appraised Value: | = | $688,180 | |
| (–) Senior Exemption Loss: | – | $0 | |
| (–) Exemption Loss: | – | $0 | |
| | | -------------------------- | |
| (=) Taxable Value: | = | $688,180 | |
Taxing Jurisdiction
| Owner: | POWELL PARKER & NANCY | | |
| % Ownership: | 100.0000000000% | | |
| Total Value: | $688,180 | | |
| Tax Area: | 105 - 140-F-4 |
| CERFD | CURRENT EXPENSE REFUND 010 | 0.0000000000 | $688,180 | $688,180 | $0.00 | | |
| CURREXP | CURRENT EXPENSE 010 | 1.0175366760 | $688,180 | $688,180 | $700.25 | | |
| HUMNSERV | HUMAN SERVICES 119 | 0.0250000000 | $688,180 | $688,180 | $17.20 | | |
| SLDREL | SOLDIERS RELIEF 121 | 0.0155990005 | $688,180 | $688,180 | $10.73 | | |
| EMERGSER | EMS 147 | 0.3792580840 | $688,180 | $688,180 | $261.00 | | |
| EMSRFD | EMS REFUND 147 | 0.0000000000 | $688,180 | $688,180 | $0.00 | | |
| FD4EXP | FD #4 EXPENSE 686 | 0.8836993059 | $688,180 | $688,180 | $608.14 | | |
| RLBRFD | RURAL LIBRARY REFUND 623 | 0.0000000000 | $688,180 | $688,180 | $0.00 | | |
| RURALLIB | RURAL LIBRARY 623 | 0.3710609029 | $688,180 | $688,180 | $255.36 | | |
| PORTRFD | PORT REFUND 640 | 0.0000000000 | $688,180 | $688,180 | $0.00 | | |
| PORTWWGEN | PORT OF WW 640 | 0.2460186015 | $688,180 | $688,180 | $169.31 | | |
| SD140BOND | SD #140 BOND 764 | 0.8342371393 | $688,180 | $688,180 | $574.11 | | |
| SD140GEN | SD #140 GENERAL 760 | 2.0646500647 | $688,180 | $688,180 | $1,420.85 | | |
| ST2 | STATE SCHOOL PART 2 600 | 0.8131451643 | $688,180 | $688,180 | $559.59 | | |
| STATESCHL | STATE SCHOOL 600 | 1.5158548041 | $688,180 | $688,180 | $1,043.18 | | |
| STREFUND | STATE REFUND LEVY 603 | 0.0000000000 | $688,180 | $688,180 | $0.00 | | |
| COROAD | COUNTY ROAD 115 | 1.6549953990 | $688,180 | $688,180 | $1,138.93 | | |
| CRPRD | COUNTY ROAD REFUND 115 | 0.0000000000 | $688,180 | $688,180 | $0.00 | | |
| | Total Tax Rate: | 9.8210551422 | | | | | |
| | | | | Taxes w/Current Exemptions: | $6,758.65 | | |
| | | | | Taxes w/o Exemptions: | $6,758.65 | | |
Improvement / Building
| Improvement #1: | RESIDENTIAL | State Code: | 11 | 2821.0 sqft | Value: | $560,490 |
| Exterior Wall: | SIDING | Heating/Cooling: | WARM & COOLED AIR | | Number of Bathrooms: | 3 | Number of Bedrooms: | 3 | | Plumbing: | 13 | Roof Covering: | COMP SHINGLE |
|
| | Type | Description | Class CD | Sub Class CD | Year Built | Area |
| | MA | Main Area | 1 | 45 | 1968 | 2821.0 |
| | SI1 | SITE IMPROVEMENT | 1 | 45 | 1968 | 4.0 |
| | S1F | Single One Story Fireplace | 1 | 45 | 1968 | 1.0 |
| | CPC | COVERED CARPORT/PATIO | 1 | 45 | 1968 | 78.0 |
| | WOD | Wood Deck | 1 | 45 | 1968 | 181.0 |
| | RCD | WOOD DECK W/ROOF, CEILED | 1 | 45 | 1968 | 189.0 |
| | RCD | WOOD DECK W/ROOF, CEILED | 1 | 45 | 1968 | 255.0 |
| | ATG | Attached Garage | 1 | 45 | 1968 | 672.0 |
Sketch
Property Image
Land
| 1 | RES 1 | Converted: Residential | 0.4587 | 19982.00 | 0.00 | 0.00 | 1.00 | $127,690 | $0 |
Roll Value History
| 2026 | N/A | N/A | N/A | N/A | N/A |
| 2025 | $550,500 | $150,660 | $0 | $701,160 | $701,160 |
| 2024 | $560,490 | $127,690 | $0 | $688,180 | $688,180 |
| 2023 | $560,490 | $127,690 | $0 | $688,180 | $688,180 |
| 2022 | $560,490 | $104,310 | $0 | $664,800 | $664,800 |
| 2021 | $431,150 | $104,310 | $0 | $535,460 | $535,460 |
| 2020 | $391,950 | $104,310 | $0 | $496,260 | $496,260 |
| 2019 | $391,950 | $104,310 | $0 | $496,260 | $496,260 |
| 2018 | $427,700 | $55,600 | $0 | $483,300 | $483,300 |
| 2017 | $427,700 | $55,600 | $0 | $483,300 | $483,300 |
| 2016 | $329,000 | $55,600 | $0 | $384,600 | $384,600 |
| 2015 | $329,000 | $55,600 | $0 | $384,600 | $384,600 |
| 2014 | $329,000 | $55,600 | $0 | $384,600 | $384,600 |
| 2013 | $329,000 | $55,600 | $0 | $384,600 | $384,600 |
| 2012 | $342,900 | $55,600 | $0 | $0 | $0 |
| 2011 | $342,900 | $55,600 | $0 | $0 | $0 |
| 2010 | $342,900 | $55,600 | $0 | $0 | $0 |
| 2009 | $366,100 | $55,600 | $0 | $0 | $0 |
| 2008 | $366,100 | $55,600 | $0 | $0 | $0 |
| 2007 | $178,800 | $35,000 | $0 | $0 | $0 |
Deed and Sales History
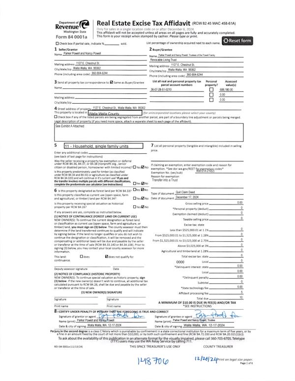
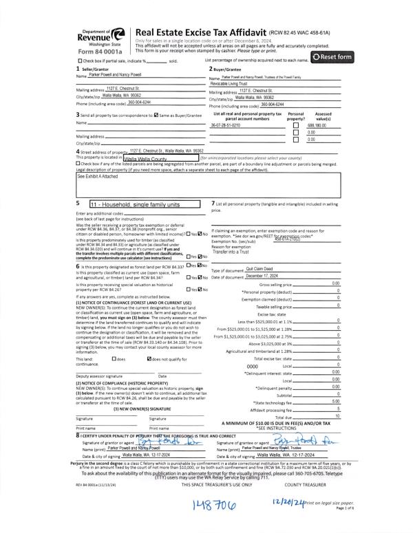
| 1 | 12/20/2024 | QCD | QUIT CLAIM DEED | POWELL PARKER & NANCY | POWELL FAMILY REVOCABLE LIVING TRUST | | | | 148706 | 2024-07345 |
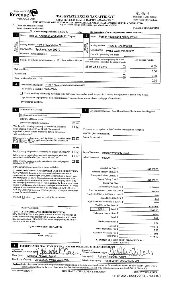
| 2 | 05/06/2020 | SWD | STATUTORY WARRANTY DEED | ANDERSON ERIC W | POWELL PARKER & NANCY | | | $547,000.00 | 139040 | 2020-03880 |
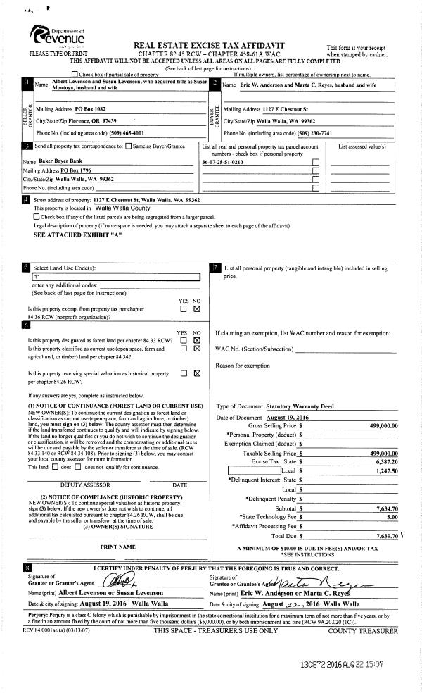
| 3 | 08/22/2016 | SWD | STATUTORY WARRANTY DEED | LEVENSON ALBERT | ANDERSON ERIC W | | | $499,000.00 | 130872 | 2016-06732 |
| 4 | 12/14/2006 | WARRANTY D | WARRANTY DEED | BRADSHAW, DENIS & KANDEE | LEVENSON, ALBERT | | | $435,000.00 | 111897 | 2006-14901 |
| 5 | 04/02/2003 | QCD | QUIT CLAIM DEED | BRADSHAW DENIS & KANDEE | BRADSHAW DENIS & KANDEE | | | | 101739 | 2003-04590 |
Payout Agreement
| No payout information available.. |