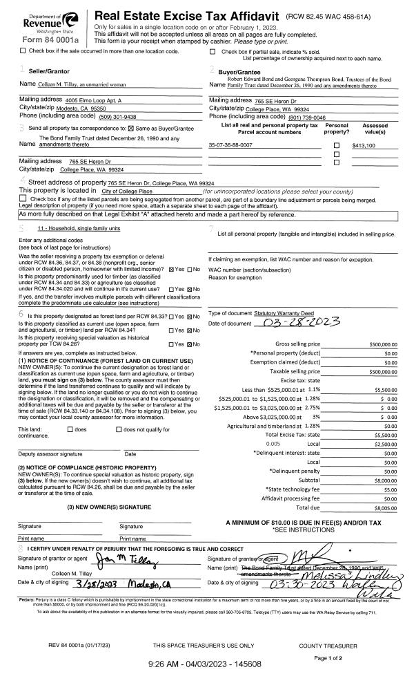
| 1 | 04/03/2023 | SWD | STATUTORY WARRANTY DEED | TILLAY COLLEEN M | BOND FAMILY TRUST | | | $500,000.00 | 145608 | 2023-01687 |
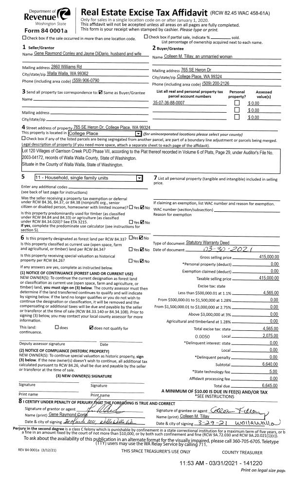
| 2 | 03/31/2021 | SWD | STATUTORY WARRANTY DEED | CONLEY GENE R & JAYNE E DIDARIO | TILLAY COLLEEN M | | | $415,000.00 | 141220 | 2021-03715 |
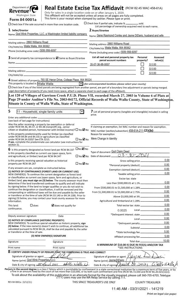
| 3 | 03/31/2021 | QCD | QUIT CLAIM DEED | GOD WINK PROPERTIES LLC | CONLEY GENE R & JAYNE E DIDARIO | | | $0.00 | 141219 | 2021-03714 |
| 4 | 11/14/2019 | QCD | QUIT CLAIM DEED | CONLEY FAMILY TRUST | GOD WINK PROPERTIES LLC | | | $0.00 | 138075 | 2019-09391 |
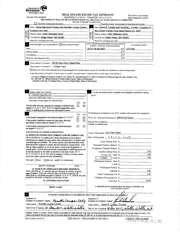
| 5 | 12/12/2015 | QCD | QUIT CLAIM DEED | CONLEY GENE RAYMOND & ANNETTE LOUISE | CONLEY FAMILY TRUST | | | $0.00 | 129336 | 2015-10688 |
| 6 | 08/20/2015 | SWD | STATUTORY WARRANTY DEED | BRODIE WILLIAM R & BETTY J | CONLEY GENE RAYMOND & ANNETTE LOUISE | | | $293,000.00 | 128658 | 2015-07298 |
| 7 | 03/22/2007 | QCD | QUIT CLAIM DEED | WESTERN WA CORP OF SDA, TRUSTE | BRODIE, WILLIAM R & BETTY J | | | | 112442 | 2007-03148 |
| 8 | 08/25/2003 | QCD | QUIT CLAIM DEED | BRODIE, WILLIAM R & BETTY J | WESTERN WA CORP OF SDA, TRUSTE | | | | 102848 | 2003-12756 |
| 9 | 04/26/2003 | WARRANTY D | WARRANTY DEED | PHASE FIVE DEVELOPMENT LLC | BRODIE, WILLIAM R & BETTY J | | | $44,900.00 | 101926 | 2003-05900 |