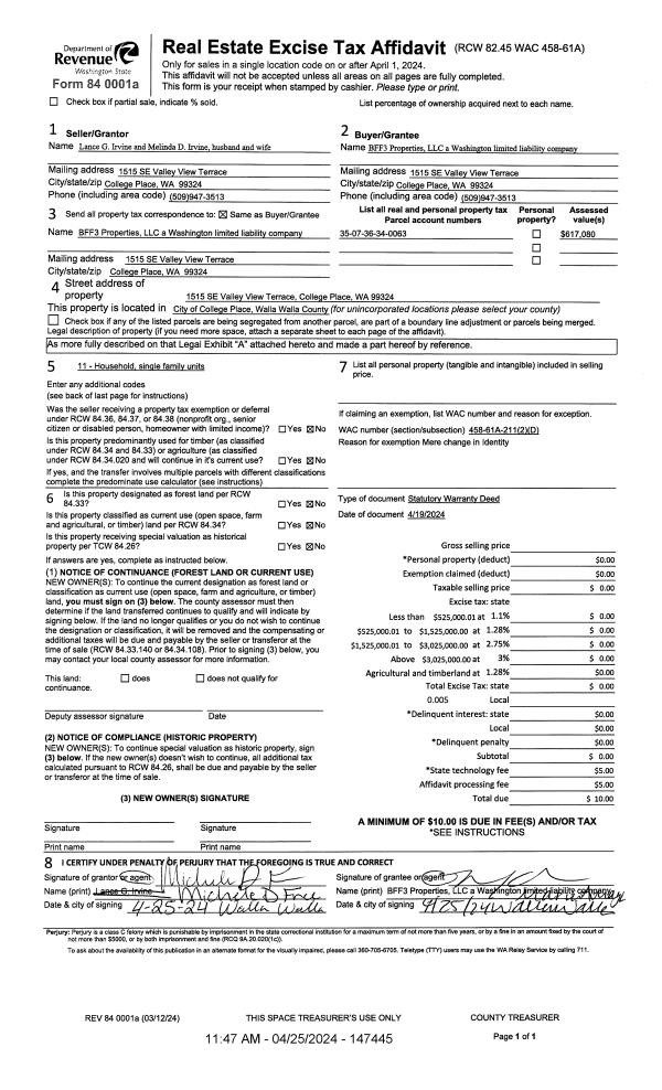
Property
Account |
| Property ID: | 5791 | Abbreviated Legal Description: | 36-7-35 LOT 3 OF S/P (PTN TAX 9 WITHIN SE1/4SW1/4) |
| Parcel Number: | 350736340063 | Agent Code: | |
| Type: | Real | | |
| Tax Area: | 75 - CP 250 | Land Use Code | 11 |
| Open Space: | N | DFL | N |
| Historic Property: | N | Remodel Property: | N |
| Multi-Family Redevelopment: | N | | |
| Township: | 7 | Section: | 36 |
| Range: | 35 |
Location |
| Address: | 1515 SE VALLEY VIEW TERRACE WA 99324 | Mapsco: | |
| Neighborhood: | G SFR | Map ID: | |
| Neighborhood CD: | 114011 |
Owner |
| Name: | ROWBERG DONALD L & DEBRA L | Owner ID: | 44005 |
| Mailing Address: | 1515 SE VALLEY VIEW TERRACE COLLEGE PLACE, WA 99324 | % Ownership: | 100.0000000000% |
| | | Exemptions: | |
Taxes and Assessment Details
Values
| (+) Improvement Homesite Value: | + | $0 | |
| (+) Improvement Non-Homesite Value: | + | $542,080 | |
| (+) Land Homesite Value: | + | $0 | |
| (+) Land Non-Homesite Value: | + | $75,000 | |
| (+) Curr Use (HS): | + | $0 | $0 |
| (+) Curr Use (NHS): | + | $0 | $0 |
| | | -------------------------- | |
| (=) Market Value: | = | $617,080 | |
| (–) Productivity Loss: | – | $0 | |
| | | -------------------------- | |
| (=) Subtotal: | = | $617,080 | |
| (+) Senior Appraised Value: | + | $0 | |
| (+) Non-Senior Appraised Value: | + | $617,080 | |
| | | -------------------------- | |
| (=) Total Appraised Value: | = | $617,080 | |
| (–) Senior Exemption Loss: | – | $0 | |
| (–) Exemption Loss: | – | $0 | |
| | | -------------------------- | |
| (=) Taxable Value: | = | $617,080 | |
Taxing Jurisdiction
| Owner: | ROWBERG DONALD L & DEBRA L | | |
| % Ownership: | 100.0000000000% | | |
| Total Value: | $617,080 | | |
| Tax Area: | 75 - CP 250 |
| CERFD | CURRENT EXPENSE REFUND 010 | 0.0000000000 | $617,080 | $617,080 | $0.00 | | |
| CURREXP | CURRENT EXPENSE 010 | 1.0175366760 | $617,080 | $617,080 | $627.90 | | |
| HUMNSERV | HUMAN SERVICES 119 | 0.0250000000 | $617,080 | $617,080 | $15.43 | | |
| SLDREL | SOLDIERS RELIEF 121 | 0.0155990005 | $617,080 | $617,080 | $9.63 | | |
| COLLPLBOND | C OF CP BOND 644 | 0.4374241808 | $617,080 | $617,080 | $269.93 | | |
| COLLPLGEN | CITY OF CP 632 | 1.4453819216 | $617,080 | $617,080 | $891.92 | | |
| EMERGSER | EMS 147 | 0.3792580840 | $617,080 | $617,080 | $234.03 | | |
| EMSRFD | EMS REFUND 147 | 0.0000000000 | $617,080 | $617,080 | $0.00 | | |
| RURALLIB | RURAL LIBRARY 623 | 0.3710609029 | $617,080 | $617,080 | $228.97 | | |
| PORTRFD | PORT REFUND 640 | 0.0000000000 | $617,080 | $617,080 | $0.00 | | |
| PORTWWGEN | PORT OF WW 640 | 0.2460186015 | $617,080 | $617,080 | $151.81 | | |
| SD250BOND | SD #250 BOND 773 | 1.4560608159 | $617,080 | $617,080 | $898.51 | | |
| SD250GEN | SD #250 GENERAL 770 | 2.3880724087 | $617,080 | $617,080 | $1,473.63 | | |
| ST2 | STATE SCHOOL PART 2 600 | 0.8131451643 | $617,080 | $617,080 | $501.78 | | |
| STATESCHL | STATE SCHOOL 600 | 1.5158548041 | $617,080 | $617,080 | $935.40 | | |
| STREFUND | STATE REFUND LEVY 603 | 0.0000000000 | $617,080 | $617,080 | $0.00 | | |
| | Total Tax Rate: | 10.1104125603 | | | | | |
| | | | | Taxes w/Current Exemptions: | $6,238.94 | | |
| | | | | Taxes w/o Exemptions: | $6,238.94 | | |
Improvement / Building
| Improvement #1: | RESIDENTIAL | State Code: | 11 | 2192.0 sqft | Value: | $542,080 |
| Exterior Wall: | SIDING | Heating/Cooling: | WARM & COOLED AIR | | Number of Bathrooms: | 4.5 | Number of Bedrooms: | 3 | | Plumbing: | 23 | Roof Covering: | COMP SHINGLE |
|
| | Type | Description | Class CD | Sub Class CD | Year Built | Area |
| | MA | Main Area | 1 | 50 | 2003 | 2192.0 |
| | SI1 | SITE IMPROVEMENT | 1 | 50 | 2003 | 5.5 |
| | BASE | BASEMENT | 1 | 50 | 2003 | 2153.0 |
| | BPF | BASEMENT -PARTITIONED FINISH | 1 | 50 | 2003 | 2153.0 |
| | ATG | Attached Garage | 1 | 50 | 2003 | 683.0 |
| | RPO | OPEN PORCH W/ROOF | 1 | 50 | 2003 | 66.0 |
| | BLW | WOOD BALCONIES | 1 | 50 | 2003 | 368.0 |
| | GFP | GAS FIREPLACE | 1 | 50 | 2003 | 1.0 |
| | RPO | OPEN PORCH W/ROOF | 1 | 50 | 2003 | 368.0 |
Sketch
Property Image
Land
| 1 | RES 1 | Converted: Residential | 0.4991 | 21739.00 | 0.00 | 0.00 | 1.00 | $75,000 | $0 |
Roll Value History
| 2026 | N/A | N/A | N/A | N/A | N/A |
| 2025 | $569,190 | $125,000 | $0 | $694,190 | $694,190 |
| 2024 | $569,190 | $75,000 | $0 | $644,190 | $644,190 |
| 2023 | $542,080 | $75,000 | $0 | $617,080 | $617,080 |
| 2022 | $542,080 | $75,000 | $0 | $617,080 | $617,080 |
| 2021 | $492,800 | $75,000 | $0 | $567,800 | $567,800 |
| 2020 | $410,670 | $75,000 | $0 | $485,670 | $485,670 |
| 2019 | $410,670 | $75,000 | $0 | $485,670 | $485,670 |
| 2018 | $304,200 | $75,000 | $0 | $379,200 | $379,200 |
| 2017 | $304,200 | $75,000 | $0 | $379,200 | $379,200 |
| 2016 | $304,200 | $75,000 | $0 | $379,200 | $379,200 |
| 2015 | $304,200 | $75,000 | $0 | $379,200 | $379,200 |
| 2014 | $304,200 | $75,000 | $0 | $379,200 | $379,200 |
| 2013 | $380,300 | $75,000 | $0 | $455,300 | $455,300 |
| 2012 | $404,300 | $75,000 | $0 | $0 | $0 |
| 2011 | $429,500 | $75,000 | $0 | $0 | $0 |
| 2010 | $429,500 | $75,000 | $0 | $0 | $0 |
| 2009 | $456,000 | $75,000 | $0 | $0 | $0 |
| 2008 | $269,300 | $30,000 | $0 | $0 | $0 |
| 2007 | $269,300 | $30,000 | $0 | $0 | $0 |
Deed and Sales History
| 1 | 04/25/2024 | WARRANTY D | WARRANTY DEED | IRVINE LANCE & MELINDA | BFF3 PROPERTIES LLC | | | | 147445 | 2024-02087 |
| 2 | 11/30/2023 | SWD | STATUTORY WARRANTY DEED | ROWBERG DONALD L & DEBRA L | IRVINE LANCE & MELINDA | | | $700,000.00 | 146867 | 2023-06917 |
| 3 | 04/12/2007 | WARRANTY D | WARRANTY DEED | STROBEL, DORITA | ROWBERG, DONALD L & DEBRA L | | | $547,700.00 | 112599 | 2007-04061 |
| 4 | 06/08/1999 | WARRANTY D | WARRANTY DEED | | | | | $29,900.00 | 92913 | 2859-906871 |
Payout Agreement
| No payout information available.. |