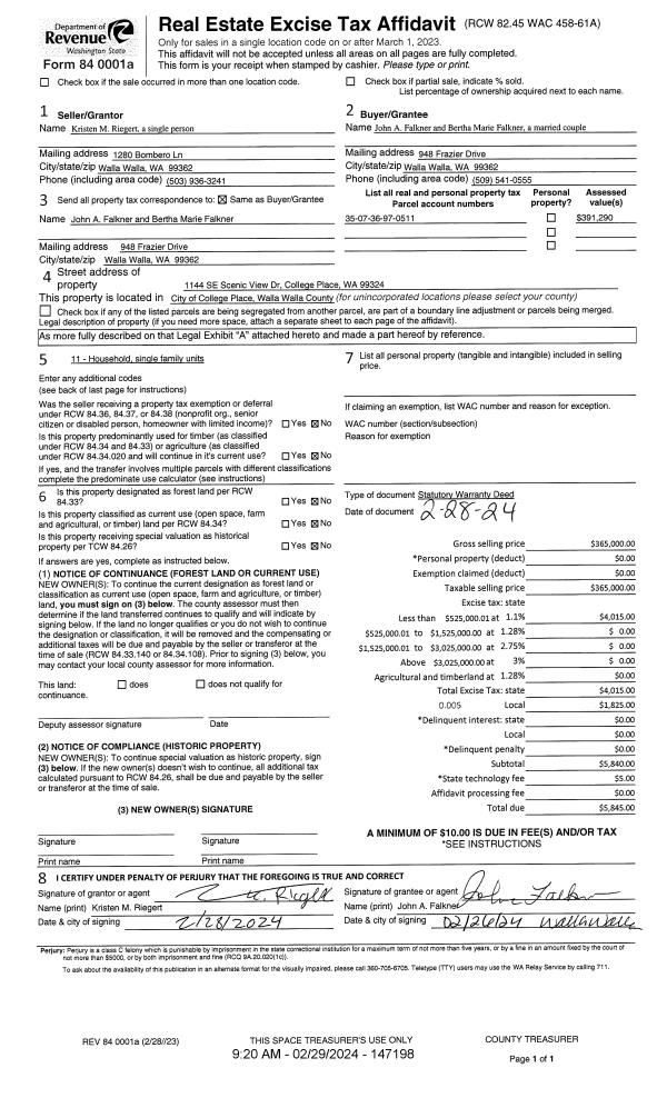
Property
Account |
| Property ID: | 5789 | Abbreviated Legal Description: | AUTUMN MEADOWS LT 11 BLK 5 |
| Parcel Number: | 350736970511 | Agent Code: | |
| Type: | Real | | |
| Tax Area: | 77 - CP-250-F | Land Use Code | 11 |
| Open Space: | N | DFL | N |
| Historic Property: | N | Remodel Property: | N |
| Multi-Family Redevelopment: | N | | |
| Township: | 7 | Section: | 36 |
| Range: | 35 |
Location |
| Address: | 1144 SE SCENIC VIEW DR WA 99324 | Mapsco: | |
| Neighborhood: | A SFR | Map ID: | |
| Neighborhood CD: | 113011 |
Owner |
| Name: | RIEGERT KRISTEN M | Owner ID: | 67239 |
| Mailing Address: | 1280 BOMBERO LN WALLA WALLA, WA 99362 | % Ownership: | 100.0000000000% |
| | | Exemptions: | |
Taxes and Assessment Details
Property Tax Information as of
04/19/2026
Click on "Statement Details" to expand or collapse a tax statement.
* Please enter a valid date ** Please enter a valid date *
Statement Details |
| | TOTAL: | $0.00 | $0.00 | $0.00 | $0.00 | $0.00 | $0.00 |
|
| | $0.00 | $0.00 | $0.00 | $0.00 | $0.00 | $0.00 |
Values
| (+) Improvement Homesite Value: | + | $0 | |
| (+) Improvement Non-Homesite Value: | + | $321,290 | |
| (+) Land Homesite Value: | + | $0 | |
| (+) Land Non-Homesite Value: | + | $70,000 | |
| (+) Curr Use (HS): | + | $0 | $0 |
| (+) Curr Use (NHS): | + | $0 | $0 |
| | | -------------------------- | |
| (=) Market Value: | = | $391,290 | |
| (–) Productivity Loss: | – | $0 | |
| | | -------------------------- | |
| (=) Subtotal: | = | $391,290 | |
| (+) Senior Appraised Value: | + | $0 | |
| (+) Non-Senior Appraised Value: | + | $391,290 | |
| | | -------------------------- | |
| (=) Total Appraised Value: | = | $391,290 | |
| (–) Senior Exemption Loss: | – | $0 | |
| (–) Exemption Loss: | – | $0 | |
| | | -------------------------- | |
| (=) Taxable Value: | = | $391,290 | |
Taxing Jurisdiction
| Owner: | RIEGERT KRISTEN M | | |
| % Ownership: | 100.0000000000% | | |
| Total Value: | $391,290 | | |
| Tax Area: | 77 - CP-250-F |
| CERFD | CURRENT EXPENSE REFUND 010 | 0.0000000000 | $391,290 | $391,290 | $0.00 | | |
| CURREXP | CURRENT EXPENSE 010 | 1.0175366760 | $391,290 | $391,290 | $398.15 | | |
| HUMNSERV | HUMAN SERVICES 119 | 0.0250000000 | $391,290 | $391,290 | $9.78 | | |
| SLDREL | SOLDIERS RELIEF 121 | 0.0155990005 | $391,290 | $391,290 | $6.10 | | |
| COLLPLBOND | C OF CP BOND 644 | 0.4374241808 | $391,290 | $391,290 | $171.16 | | |
| COLLPLGEN | CITY OF CP 632 | 1.4453819216 | $391,290 | $391,290 | $565.56 | | |
| EMERGSER | EMS 147 | 0.3792580840 | $391,290 | $391,290 | $148.40 | | |
| EMSRFD | EMS REFUND 147 | 0.0000000000 | $391,290 | $391,290 | $0.00 | | |
| RURALLIB | RURAL LIBRARY 623 | 0.3710609029 | $391,290 | $391,290 | $145.19 | | |
| PORTRFD | PORT REFUND 640 | 0.0000000000 | $391,290 | $391,290 | $0.00 | | |
| PORTWWGEN | PORT OF WW 640 | 0.2460186015 | $391,290 | $391,290 | $96.26 | | |
| SD250BOND | SD #250 BOND 773 | 1.4560608159 | $391,290 | $391,290 | $569.74 | | |
| SD250GEN | SD #250 GENERAL 770 | 2.3880724087 | $391,290 | $391,290 | $934.43 | | |
| ST2 | STATE SCHOOL PART 2 600 | 0.8131451643 | $391,290 | $391,290 | $318.18 | | |
| STATESCHL | STATE SCHOOL 600 | 1.5158548041 | $391,290 | $391,290 | $593.14 | | |
| STREFUND | STATE REFUND LEVY 603 | 0.0000000000 | $391,290 | $391,290 | $0.00 | | |
| | Total Tax Rate: | 10.1104125603 | | | | | |
| | | | | Taxes w/Current Exemptions: | $3,956.09 | | |
| | | | | Taxes w/o Exemptions: | $3,956.09 | | |
Improvement / Building
| Improvement #1: | RESIDENTIAL | State Code: | 11 | 1392.0 sqft | Value: | $321,290 |
| Exterior Wall: | PLYWOOD | Heating/Cooling: | WARM & COOLED AIR | | Number of Bathrooms: | 2 | Number of Bedrooms: | 3 | | Plumbing: | 9 | Roof Covering: | COMP SHINGLE |
|
| | Type | Description | Class CD | Sub Class CD | Year Built | Area |
| | MA | Main Area | 1 | 30 | 2003 | 1392.0 |
| | SI1 | SITE IMPROVEMENT | 1 | 30 | 2003 | 1.5 |
| | ATG | Attached Garage | 1 | 30 | 2003 | 400.0 |
| | RPC | OPEN PORCH W/ROOF , CEILED | 1 | 30 | 2003 | 132.0 |
Sketch
Property Image
Land
| 1 | RES 1 | Converted: Residential | 0.1554 | 6769.00 | 0.00 | 0.00 | 1.00 | $70,000 | $0 |
Roll Value History
| 2026 | N/A | N/A | N/A | N/A | N/A |
| 2025 | $231,330 | $125,000 | $0 | $356,330 | $356,330 |
| 2024 | $289,160 | $70,000 | $0 | $359,160 | $359,160 |
| 2023 | $321,290 | $70,000 | $0 | $391,290 | $391,290 |
| 2022 | $279,380 | $70,000 | $0 | $349,380 | $349,380 |
| 2021 | $186,260 | $70,000 | $0 | $256,260 | $256,260 |
| 2020 | $124,170 | $70,000 | $0 | $194,170 | $194,170 |
| 2019 | $139,170 | $55,000 | $0 | $194,170 | $194,170 |
| 2018 | $111,340 | $55,000 | $0 | $166,340 | $166,340 |
| 2017 | $107,060 | $55,000 | $0 | $162,060 | $162,060 |
| 2016 | $93,090 | $55,000 | $0 | $148,090 | $148,090 |
| 2015 | $88,660 | $55,000 | $0 | $143,660 | $143,660 |
| 2014 | $80,600 | $55,000 | $0 | $135,600 | $135,600 |
| 2013 | $80,600 | $55,000 | $0 | $135,600 | $135,600 |
| 2012 | $95,700 | $55,000 | $0 | $0 | $0 |
| 2011 | $103,600 | $55,000 | $0 | $0 | $0 |
| 2010 | $103,600 | $55,000 | $0 | $0 | $0 |
| 2009 | $121,200 | $55,000 | $0 | $0 | $0 |
| 2008 | $99,000 | $30,000 | $0 | $0 | $0 |
| 2007 | $99,000 | $30,000 | $0 | $0 | $0 |
Deed and Sales History
| 1 | 02/29/2024 | SWD | STATUTORY WARRANTY DEED | RIEGERT KRISTEN M | FALKNER JOHN A & BERTHA MARIE | | | $365,000.00 | 147198 | 2024-01007 |
| 2 | 07/17/2019 | SWD | STATUTORY WARRANTY DEED | PACHECO JOSE A | RIEGERT KRISTEN M | | | $230,000.00 | 137301 | 2019-05195 |
| 3 | 03/13/2008 | WARRANTY D | WARRANTY DEED | ELLIS, RUSSELL L & DIANE E | PACHECO, JOSE A | | | $177,500.00 | 114672 | 2008-02380 |
| 4 | 09/16/2003 | WARRANTY D | WARRANTY DEED | HAYDEN ENTERPRISES INC | ELLIS, RUSSELL L & DIANE E | | | $134,990.00 | 103020 | 2003-14117 |
| 5 | 08/21/2002 | WARRANTY D | WARRANTY DEED | VILLAGE PARK COLLEGE PLACE~LLC | | | | | 100199 | 2002-09391 |
Payout Agreement
| No payout information available.. |