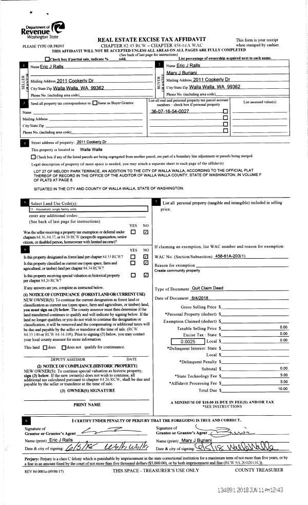
Property
Account |
| Property ID: | 5710 | Abbreviated Legal Description: | MELODY PARK TERRACE LOT 27 |
| Parcel Number: | 360716540027 | Agent Code: | |
| Type: | Real | | |
| Tax Area: | 5 - OL-140 | Land Use Code | 11 |
| Open Space: | N | DFL | N |
| Historic Property: | N | Remodel Property: | N |
| Multi-Family Redevelopment: | N | | |
| Township: | 7 | Section: | 16 |
| Range: | 36 |
Location |
| Address: | 2011 COOKERLY DR WA 99362 | Mapsco: | |
| Neighborhood: | A-SFR | Map ID: | |
| Neighborhood CD: | 313011 |
Owner |
| Name: | RALLS ERIC J | Owner ID: | 63272 |
| Mailing Address: | MARY J BURIANI PO BOX 84 DIXIE, WA 99329 | % Ownership: | 100.0000000000% |
| | | Exemptions: | |
Taxes and Assessment Details
Values
| (+) Improvement Homesite Value: | + | $0 | |
| (+) Improvement Non-Homesite Value: | + | $268,240 | |
| (+) Land Homesite Value: | + | $0 | |
| (+) Land Non-Homesite Value: | + | $90,000 | |
| (+) Curr Use (HS): | + | $0 | $0 |
| (+) Curr Use (NHS): | + | $0 | $0 |
| | | -------------------------- | |
| (=) Market Value: | = | $358,240 | |
| (–) Productivity Loss: | – | $0 | |
| | | -------------------------- | |
| (=) Subtotal: | = | $358,240 | |
| (+) Senior Appraised Value: | + | $0 | |
| (+) Non-Senior Appraised Value: | + | $358,240 | |
| | | -------------------------- | |
| (=) Total Appraised Value: | = | $358,240 | |
| (–) Senior Exemption Loss: | – | $0 | |
| (–) Exemption Loss: | – | $0 | |
| | | -------------------------- | |
| (=) Taxable Value: | = | $358,240 | |
Taxing Jurisdiction
| Owner: | RALLS ERIC J | | |
| % Ownership: | 100.0000000000% | | |
| Total Value: | $358,240 | | |
| Tax Area: | 5 - OL-140 |
| CERFD | CURRENT EXPENSE REFUND 010 | 0.0000000000 | $358,240 | $358,240 | $0.00 | | |
| CURREXP | CURRENT EXPENSE 010 | 1.0175366760 | $358,240 | $358,240 | $364.52 | | |
| HUMNSERV | HUMAN SERVICES 119 | 0.0250000000 | $358,240 | $358,240 | $8.96 | | |
| SLDREL | SOLDIERS RELIEF 121 | 0.0155990005 | $358,240 | $358,240 | $5.59 | | |
| EMERGSER | EMS 147 | 0.3792580840 | $358,240 | $358,240 | $135.87 | | |
| EMSRFD | EMS REFUND 147 | 0.0000000000 | $358,240 | $358,240 | $0.00 | | |
| PORTRFD | PORT REFUND 640 | 0.0000000000 | $358,240 | $358,240 | $0.00 | | |
| PORTWWGEN | PORT OF WW 640 | 0.2460186015 | $358,240 | $358,240 | $88.13 | | |
| SD140BOND | SD #140 BOND 764 | 0.8342371393 | $358,240 | $358,240 | $298.86 | | |
| SD140GEN | SD #140 GENERAL 760 | 2.0646500647 | $358,240 | $358,240 | $739.64 | | |
| ST2 | STATE SCHOOL PART 2 600 | 0.8131451643 | $358,240 | $358,240 | $291.30 | | |
| STATESCHL | STATE SCHOOL 600 | 1.5158548041 | $358,240 | $358,240 | $543.04 | | |
| STREFUND | STATE REFUND LEVY 603 | 0.0000000000 | $358,240 | $358,240 | $0.00 | | |
| CWWBOND | C OF WW BOND 643 | 0.2760494372 | $358,240 | $358,240 | $98.89 | | |
| CWWGEN | CITY OF WW 631 | 1.6100204973 | $358,240 | $358,240 | $576.77 | | |
| CWWRFD | CITY OF WALLA WALLA REFUND 631 | 0.0000000000 | $358,240 | $358,240 | $0.00 | | |
| | Total Tax Rate: | 8.7973694689 | | | | | |
| | | | | Taxes w/Current Exemptions: | $3,151.57 | | |
| | | | | Taxes w/o Exemptions: | $3,151.57 | | |
Improvement / Building
| Improvement #1: | RESIDENTIAL | State Code: | 11 | 1160.0 sqft | Value: | $268,240 |
| Exterior Wall: | SIDING | Heating/Cooling: | WARM & COOLED AIR | | Number of Bathrooms: | 3 | Number of Bedrooms: | 4 | | Plumbing: | 12 | Roof Covering: | COMP SHINGLE |
|
| | Type | Description | Class CD | Sub Class CD | Year Built | Area |
| | MA | Main Area | 1 | 30 | 1963 | 1160.0 |
| | SI1 | SITE IMPROVEMENT | 1 | 30 | 1963 | 1.5 |
| | BASE | BASEMENT | 1 | 30 | 1963 | 1160.0 |
| | BPF | BASEMENT -PARTITIONED FINISH | 1 | 30 | 1963 | 1160.0 |
| | DTG | Detached Garage | 1 | 30 | 1963 | 480.0 |
| | S1F | Single One Story Fireplace | 1 | 30 | 1963 | 1.0 |
| | RPC | OPEN PORCH W/ROOF , CEILED | 1 | 30 | 1963 | 28.0 |
| | CPC | COVERED CARPORT/PATIO | 1 | 30 | 1963 | 288.0 |
Sketch
Property Image
Land
| 1 | RES 1 | Converted: Residential | 0.1837 | 8004.00 | 0.00 | 0.00 | 1.00 | $90,000 | $0 |
Roll Value History
| 2026 | N/A | N/A | N/A | N/A | N/A |
| 2025 | $268,240 | $90,000 | $0 | $358,240 | $358,240 |
| 2024 | $268,240 | $90,000 | $0 | $358,240 | $358,240 |
| 2023 | $268,240 | $90,000 | $0 | $358,240 | $358,240 |
| 2022 | $268,240 | $90,000 | $0 | $358,240 | $358,240 |
| 2021 | $192,200 | $55,000 | $0 | $247,200 | $247,200 |
| 2020 | $167,130 | $55,000 | $0 | $222,130 | $222,130 |
| 2019 | $167,130 | $55,000 | $0 | $222,130 | $222,130 |
| 2018 | $151,940 | $55,000 | $0 | $206,940 | $206,940 |
| 2017 | $144,710 | $55,000 | $0 | $199,710 | $199,710 |
| 2016 | $131,550 | $55,000 | $0 | $186,550 | $186,550 |
| 2015 | $118,100 | $55,000 | $0 | $173,100 | $173,100 |
| 2014 | $118,100 | $55,000 | $0 | $173,100 | $173,100 |
| 2013 | $118,100 | $55,000 | $0 | $173,100 | $173,100 |
| 2012 | $127,200 | $55,000 | $0 | $0 | $0 |
| 2011 | $127,200 | $55,000 | $0 | $0 | $0 |
| 2010 | $112,400 | $40,000 | $0 | $0 | $0 |
| 2009 | $129,300 | $40,000 | $0 | $0 | $0 |
| 2008 | $95,400 | $40,000 | $0 | $0 | $0 |
| 2007 | $95,400 | $40,000 | $0 | $0 | $0 |
Deed and Sales History
| 1 | 06/05/2018 | QCD | QUIT CLAIM DEED | RALLS ERIC | RALLS ERIC J | | | $0.00 | 134891 | 2018-04677 |
| 2 | 05/12/2008 | WARRANTY D | WARRANTY DEED | BRITT, ROBERT L LIFE ESTATE | RALLS, ERIC | | | $194,000.00 | 114995 | 2008-04817 |
| 3 | 03/28/1984 | WARRANTY D | WARRANTY DEED | | | | | $53,000.00 | 0 | 1428-402108 |
Payout Agreement
| No payout information available.. |