Property
Account |
| Property ID: | 5708 | Abbreviated Legal Description: | MELODY PARK LOT 9 BLK 4 |
| Parcel Number: | 360716530409 | Agent Code: | |
| Type: | Real | | |
| Tax Area: | 5 - OL-140 | Land Use Code | 11 |
| Open Space: | N | DFL | N |
| Historic Property: | N | Remodel Property: | N |
| Multi-Family Redevelopment: | N | | |
| Township: | 7 | Section: | 16 |
| Range: | 36 |
Location |
| Address: | 617 N WILBUR AVE WA 99362 | Mapsco: | |
| Neighborhood: | A-Superior SFR | Map ID: | |
| Neighborhood CD: | 513211 |
Owner |
| Name: | MCELFRESH ROWDY L & CYNTHIA K | Owner ID: | 66869 |
| Mailing Address: | 617 N WILBUR AVE WALLA WALLA, WA 99362 | % Ownership: | 100.0000000000% |
| | | Exemptions: | |
Taxes and Assessment Details
Property Tax Information as of
02/21/2026
Click on "Statement Details" to expand or collapse a tax statement.
* Please enter a valid date ** Please enter a valid date *
Statement Details |
| | TOTAL: | $0.00 | $0.00 | $0.00 | $0.00 | $0.00 | $0.00 |
|
| | $0.00 | $0.00 | $0.00 | $0.00 | $0.00 | $0.00 |
Values
| (+) Improvement Homesite Value: | + | $0 | |
| (+) Improvement Non-Homesite Value: | + | $274,430 | |
| (+) Land Homesite Value: | + | $0 | |
| (+) Land Non-Homesite Value: | + | $43,310 | |
| (+) Curr Use (HS): | + | $0 | $0 |
| (+) Curr Use (NHS): | + | $0 | $0 |
| | | -------------------------- | |
| (=) Market Value: | = | $317,740 | |
| (–) Productivity Loss: | – | $0 | |
| | | -------------------------- | |
| (=) Subtotal: | = | $317,740 | |
| (+) Senior Appraised Value: | + | $0 | |
| (+) Non-Senior Appraised Value: | + | $317,740 | |
| | | -------------------------- | |
| (=) Total Appraised Value: | = | $317,740 | |
| (–) Senior Exemption Loss: | – | $0 | |
| (–) Exemption Loss: | – | $0 | |
| | | -------------------------- | |
| (=) Taxable Value: | = | $317,740 | |
Taxing Jurisdiction
| Owner: | MCELFRESH ROWDY L & CYNTHIA K | | |
| % Ownership: | 100.0000000000% | | |
| Total Value: | $317,740 | | |
| Tax Area: | 5 - OL-140 |
| CERFD | CURRENT EXPENSE REFUND 010 | 0.0000000000 | $317,740 | $317,740 | $0.00 | | |
| CURREXP | CURRENT EXPENSE 010 | 1.0175366760 | $317,740 | $317,740 | $323.31 | | |
| HUMNSERV | HUMAN SERVICES 119 | 0.0250000000 | $317,740 | $317,740 | $7.94 | | |
| SLDREL | SOLDIERS RELIEF 121 | 0.0155990005 | $317,740 | $317,740 | $4.96 | | |
| EMERGSER | EMS 147 | 0.3792580840 | $317,740 | $317,740 | $120.51 | | |
| EMSRFD | EMS REFUND 147 | 0.0000000000 | $317,740 | $317,740 | $0.00 | | |
| PORTRFD | PORT REFUND 640 | 0.0000000000 | $317,740 | $317,740 | $0.00 | | |
| PORTWWGEN | PORT OF WW 640 | 0.2460186015 | $317,740 | $317,740 | $78.17 | | |
| SD140BOND | SD #140 BOND 764 | 0.8342371393 | $317,740 | $317,740 | $265.07 | | |
| SD140GEN | SD #140 GENERAL 760 | 2.0646500647 | $317,740 | $317,740 | $656.02 | | |
| ST2 | STATE SCHOOL PART 2 600 | 0.8131451643 | $317,740 | $317,740 | $258.37 | | |
| STATESCHL | STATE SCHOOL 600 | 1.5158548041 | $317,740 | $317,740 | $481.65 | | |
| STREFUND | STATE REFUND LEVY 603 | 0.0000000000 | $317,740 | $317,740 | $0.00 | | |
| CWWBOND | C OF WW BOND 643 | 0.2760494372 | $317,740 | $317,740 | $87.71 | | |
| CWWGEN | CITY OF WW 631 | 1.6100204973 | $317,740 | $317,740 | $511.57 | | |
| CWWRFD | CITY OF WALLA WALLA REFUND 631 | 0.0000000000 | $317,740 | $317,740 | $0.00 | | |
| | Total Tax Rate: | 8.7973694689 | | | | | |
| | | | | Taxes w/Current Exemptions: | $2,795.28 | | |
| | | | | Taxes w/o Exemptions: | $2,795.28 | | |
Improvement / Building
| Improvement #1: | RESIDENTIAL | State Code: | 11 | 1000.0 sqft | Value: | $274,430 |
| Exterior Wall: | SIDING | Heating/Cooling: | WARM & COOLED AIR | | Number of Bathrooms: | 2 | Number of Bedrooms: | 3 | | Plumbing: | 9 | Roof Covering: | COMP SHINGLE |
|
| | Type | Description | Class CD | Sub Class CD | Year Built | Area |
| | MA | Main Area | 1 | 30 | 1971 | 1000.0 |
| | CPC | COVERED CARPORT/PATIO | 1 | 30 | 0 | 200.0 |
| | SI1 | SITE IMPROVEMENT | 1 | 30 | 0 | 1.0 |
| | BASE | BASEMENT | 1 | 30 | 1971 | 1000.0 |
| | RPO | OPEN PORCH W/ROOF | 1 | 30 | 1971 | 125.0 |
| | BPF | BASEMENT -PARTITIONED FINISH | 1 | 30 | 1971 | 500.0 |
Sketch
Property Image
Land
| 1 | RES 1 | Converted: Residential | 0.1591 | 6930.00 | 0.00 | 0.00 | 1.00 | $43,310 | $0 |
Roll Value History
| 2026 | N/A | N/A | N/A | N/A | N/A |
| 2025 | $267,320 | $69,300 | $0 | $336,620 | $336,620 |
| 2024 | $243,020 | $69,300 | $0 | $312,320 | $312,320 |
| 2023 | $274,430 | $43,310 | $0 | $317,740 | $317,740 |
| 2022 | $261,360 | $43,310 | $0 | $304,670 | $304,670 |
| 2021 | $141,280 | $43,310 | $0 | $184,590 | $184,590 |
| 2020 | $141,280 | $43,310 | $0 | $184,590 | $184,590 |
| 2019 | $141,280 | $43,310 | $0 | $184,590 | $184,590 |
| 2018 | $115,800 | $43,310 | $0 | $159,110 | $159,110 |
| 2017 | $116,020 | $27,700 | $0 | $143,720 | $143,720 |
| 2016 | $92,810 | $27,700 | $0 | $120,510 | $120,510 |
| 2015 | $92,810 | $27,700 | $0 | $120,510 | $120,510 |
| 2014 | $99,800 | $27,700 | $0 | $127,500 | $127,500 |
| 2013 | $99,800 | $27,700 | $0 | $127,500 | $127,500 |
| 2012 | $93,700 | $27,700 | $0 | $0 | $0 |
| 2011 | $73,500 | $27,700 | $0 | $0 | $0 |
| 2010 | $68,700 | $27,700 | $0 | $0 | $0 |
| 2009 | $79,400 | $27,700 | $0 | $0 | $0 |
| 2008 | $74,300 | $27,700 | $0 | $0 | $0 |
| 2007 | $74,300 | $27,700 | $0 | $0 | $0 |
Deed and Sales History
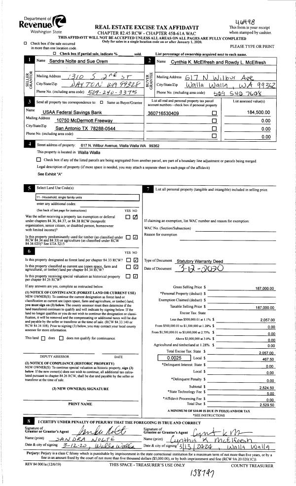
| 1 | 03/13/2020 | SWD | STATUTORY WARRANTY DEED | NOLTE SANDRA | MCELFRESH ROWDY L & CYNTHIA K | | | $187,000.00 | 138797 | 2020-02332 |
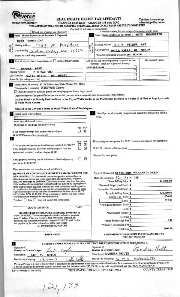
| 2 | 12/19/2011 | WARRANTY D | WARRANTY DEED | MERCER, SHAUNA K | NOLTE, SANDRA | | | $131,000.00 | 121133 | 2011-09958 |
| 3 | 06/17/2011 | WARRANTY D | WARRANTY DEED | PAPWORTH, BRANDON J | MERCER, SHAUNA K | | | | 0 | CC #11-3-00036-7 |
| 4 | 07/09/2005 | WARRANTY D | WARRANTY DEED | MC KINNEY, SCOTT A | PAPWORTH, BRANDON & SHAUNA | | | $102,500.00 | 107905 | 2005-08269 |
| 5 | 01/05/2000 | WARRANTY D | WARRANTY DEED | | | | | $67,500.00 | 94314 | 2930-000108 |
Payout Agreement
| No payout information available.. |