Property
Account |
| Property ID: | 5704 | Abbreviated Legal Description: | MELODY PARK LOT 4 BLK 4 |
| Parcel Number: | 360716530404 | Agent Code: | |
| Type: | Real | | |
| Tax Area: | 5 - OL-140 | Land Use Code | 11 |
| Open Space: | N | DFL | N |
| Historic Property: | N | Remodel Property: | N |
| Multi-Family Redevelopment: | N | | |
| Township: | 7 | Section: | 16 |
| Range: | 36 |
Location |
| Address: | 624 CARDINAL DR WA 99362 | Mapsco: | |
| Neighborhood: | A-Superior SFR | Map ID: | |
| Neighborhood CD: | 513211 |
Owner |
| Name: | WIESSNER DANIEL & VICTORIA LEE | Owner ID: | 66334 |
| Mailing Address: | 624 CARDINAL DR WALLA WALLA, WA 99362 | % Ownership: | 100.0000000000% |
| | | Exemptions: | |
Taxes and Assessment Details
Property Tax Information as of
02/21/2026
Click on "Statement Details" to expand or collapse a tax statement.
* Please enter a valid date ** Please enter a valid date *
Statement Details |
| | TOTAL: | $0.00 | $0.00 | $0.00 | $0.00 | $0.00 | $0.00 |
|
| | $0.00 | $0.00 | $0.00 | $0.00 | $0.00 | $0.00 |
Values
| (+) Improvement Homesite Value: | + | $0 | |
| (+) Improvement Non-Homesite Value: | + | $280,630 | |
| (+) Land Homesite Value: | + | $0 | |
| (+) Land Non-Homesite Value: | + | $43,310 | |
| (+) Curr Use (HS): | + | $0 | $0 |
| (+) Curr Use (NHS): | + | $0 | $0 |
| | | -------------------------- | |
| (=) Market Value: | = | $323,940 | |
| (–) Productivity Loss: | – | $0 | |
| | | -------------------------- | |
| (=) Subtotal: | = | $323,940 | |
| (+) Senior Appraised Value: | + | $0 | |
| (+) Non-Senior Appraised Value: | + | $323,940 | |
| | | -------------------------- | |
| (=) Total Appraised Value: | = | $323,940 | |
| (–) Senior Exemption Loss: | – | $0 | |
| (–) Exemption Loss: | – | $0 | |
| | | -------------------------- | |
| (=) Taxable Value: | = | $323,940 | |
Taxing Jurisdiction
| Owner: | WIESSNER DANIEL & VICTORIA LEE | | |
| % Ownership: | 100.0000000000% | | |
| Total Value: | $323,940 | | |
| Tax Area: | 5 - OL-140 |
| CERFD | CURRENT EXPENSE REFUND 010 | 0.0000000000 | $323,940 | $323,940 | $0.00 | | |
| CURREXP | CURRENT EXPENSE 010 | 1.0175366760 | $323,940 | $323,940 | $329.62 | | |
| HUMNSERV | HUMAN SERVICES 119 | 0.0250000000 | $323,940 | $323,940 | $8.10 | | |
| SLDREL | SOLDIERS RELIEF 121 | 0.0155990005 | $323,940 | $323,940 | $5.05 | | |
| EMERGSER | EMS 147 | 0.3792580840 | $323,940 | $323,940 | $122.86 | | |
| EMSRFD | EMS REFUND 147 | 0.0000000000 | $323,940 | $323,940 | $0.00 | | |
| PORTRFD | PORT REFUND 640 | 0.0000000000 | $323,940 | $323,940 | $0.00 | | |
| PORTWWGEN | PORT OF WW 640 | 0.2460186015 | $323,940 | $323,940 | $79.70 | | |
| SD140BOND | SD #140 BOND 764 | 0.8342371393 | $323,940 | $323,940 | $270.24 | | |
| SD140GEN | SD #140 GENERAL 760 | 2.0646500647 | $323,940 | $323,940 | $668.82 | | |
| ST2 | STATE SCHOOL PART 2 600 | 0.8131451643 | $323,940 | $323,940 | $263.41 | | |
| STATESCHL | STATE SCHOOL 600 | 1.5158548041 | $323,940 | $323,940 | $491.05 | | |
| STREFUND | STATE REFUND LEVY 603 | 0.0000000000 | $323,940 | $323,940 | $0.00 | | |
| CWWBOND | C OF WW BOND 643 | 0.2760494372 | $323,940 | $323,940 | $89.42 | | |
| CWWGEN | CITY OF WW 631 | 1.6100204973 | $323,940 | $323,940 | $521.55 | | |
| CWWRFD | CITY OF WALLA WALLA REFUND 631 | 0.0000000000 | $323,940 | $323,940 | $0.00 | | |
| | Total Tax Rate: | 8.7973694689 | | | | | |
| | | | | Taxes w/Current Exemptions: | $2,849.82 | | |
| | | | | Taxes w/o Exemptions: | $2,849.82 | | |
Improvement / Building
| Improvement #1: | RESIDENTIAL | State Code: | 11 | 1000.0 sqft | Value: | $280,630 |
| Exterior Wall: | SIDING | Heating/Cooling: | WARM & COOLED AIR | | Number of Bathrooms: | 2 | Number of Bedrooms: | 3 | | Plumbing: | 8 | Roof Covering: | COMP SHINGLE |
|
| | Type | Description | Class CD | Sub Class CD | Year Built | Area |
| | MA | Main Area | 1 | 30 | 1970 | 1000.0 |
| | CPC | COVERED CARPORT/PATIO | 1 | 30 | 0 | 310.0 |
| | SI1 | SITE IMPROVEMENT | 1 | 30 | 0 | 1.5 |
| | BASE | BASEMENT | 1 | 30 | 1970 | 1000.0 |
| | BPF | BASEMENT -PARTITIONED FINISH | 1 | 30 | 1970 | 750.0 |
| | RPO | OPEN PORCH W/ROOF | 1 | 30 | 1970 | 28.0 |
| | SHOP | SHOP BUILDING | 1 | 30 | 1970 | 144.0 |
Sketch
Property Image
Land
| 1 | RES 1 | Converted: Residential | 0.1591 | 6930.00 | 0.00 | 0.00 | 1.00 | $43,310 | $0 |
Roll Value History
| 2026 | N/A | N/A | N/A | N/A | N/A |
| 2025 | $310,320 | $69,300 | $0 | $379,620 | $379,620 |
| 2024 | $258,600 | $69,300 | $0 | $327,900 | $327,900 |
| 2023 | $280,630 | $43,310 | $0 | $323,940 | $323,940 |
| 2022 | $267,270 | $43,310 | $0 | $310,580 | $310,580 |
| 2021 | $213,820 | $43,310 | $0 | $257,130 | $257,130 |
| 2020 | $178,180 | $43,310 | $0 | $221,490 | $221,490 |
| 2019 | $178,180 | $43,310 | $0 | $221,490 | $221,490 |
| 2018 | $151,000 | $43,310 | $0 | $194,310 | $194,310 |
| 2017 | $131,710 | $27,700 | $0 | $159,410 | $159,410 |
| 2016 | $105,370 | $27,700 | $0 | $133,070 | $133,070 |
| 2015 | $105,370 | $27,700 | $0 | $133,070 | $133,070 |
| 2014 | $113,300 | $27,700 | $0 | $141,000 | $141,000 |
| 2013 | $113,300 | $27,700 | $0 | $141,000 | $141,000 |
| 2012 | $113,300 | $27,700 | $0 | $0 | $0 |
| 2011 | $94,900 | $27,700 | $0 | $0 | $0 |
| 2010 | $89,100 | $27,700 | $0 | $0 | $0 |
| 2009 | $102,100 | $27,700 | $0 | $0 | $0 |
| 2008 | $90,300 | $27,700 | $0 | $0 | $0 |
| 2007 | $90,300 | $27,700 | $0 | $0 | $0 |
Deed and Sales History
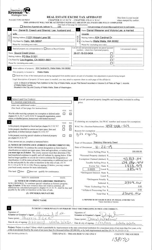
| 1 | 11/26/2019 | SWD | STATUTORY WARRANTY DEED | CREECH DANIEL B | WIESSNER DANIEL & VICTORIA LEE | | | $154,187.00 | 138170 | 2019-09849 |
| 2 | 05/26/2016 | SWD | STATUTORY WARRANTY DEED | BOETTCHER SAMUEL & KATHERINE | CREECH DANIEL B | | | $200,000.00 | 130286 | 2016-03964 |
| 3 | 06/06/2005 | WARRANTY D | WARRANTY DEED | MC LERAN, RICHARD | BOETTCHER, SAMUEL & KATHERINE | | | $118,900.00 | 107662 | 2005-06771 |
| 4 | 02/25/2005 | QCD | QUIT CLAIM DEED | MC LERAN, HELEN LIFE ESTATE | MC LERAN, RICHARD | | | | 106840 | 2005-02185 |
| 5 | 10/10/1977 | WARRANTY D | WARRANTY DEED | | | | | $37,500.00 | 0 | 6905-69503 |
Payout Agreement
| No payout information available.. |