Property
Account |
| Property ID: | 5687 | Abbreviated Legal Description: | MELODY PARK LOT 1 BLK 3 |
| Parcel Number: | 360716530301 | Agent Code: | |
| Type: | Real | | |
| Tax Area: | 5 - OL-140 | Land Use Code | 11 |
| Open Space: | N | DFL | N |
| Historic Property: | N | Remodel Property: | N |
| Multi-Family Redevelopment: | N | | |
| Township: | 7 | Section: | 16 |
| Range: | 36 |
Location |
| Address: | 604 CANARY AVE WA 99362 | Mapsco: | |
| Neighborhood: | A-Superior SFR | Map ID: | |
| Neighborhood CD: | 513211 |
Owner |
| Name: | ROTH ELIZABETH A JERID MARK PASCHEN | Owner ID: | 71566 |
| Mailing Address: | 604 CANARY AVE WALLA WALLA, WA 99362 | % Ownership: | 100.0000000000% |
| | | Exemptions: | |
Taxes and Assessment Details
Property Tax Information as of
02/21/2026
Click on "Statement Details" to expand or collapse a tax statement.
* Please enter a valid date ** Please enter a valid date *
Statement Details |
| | TOTAL: | $0.00 | $0.00 | $0.00 | $0.00 | $0.00 | $0.00 |
|
| | $0.00 | $0.00 | $0.00 | $0.00 | $0.00 | $0.00 |
Values
| (+) Improvement Homesite Value: | + | $0 | |
| (+) Improvement Non-Homesite Value: | + | $328,950 | |
| (+) Land Homesite Value: | + | $0 | |
| (+) Land Non-Homesite Value: | + | $48,130 | |
| (+) Curr Use (HS): | + | $0 | $0 |
| (+) Curr Use (NHS): | + | $0 | $0 |
| | | -------------------------- | |
| (=) Market Value: | = | $377,080 | |
| (–) Productivity Loss: | – | $0 | |
| | | -------------------------- | |
| (=) Subtotal: | = | $377,080 | |
| (+) Senior Appraised Value: | + | $0 | |
| (+) Non-Senior Appraised Value: | + | $377,080 | |
| | | -------------------------- | |
| (=) Total Appraised Value: | = | $377,080 | |
| (–) Senior Exemption Loss: | – | $0 | |
| (–) Exemption Loss: | – | $0 | |
| | | -------------------------- | |
| (=) Taxable Value: | = | $377,080 | |
Taxing Jurisdiction
| Owner: | ROTH ELIZABETH A JERID MARK PASCHEN | | |
| % Ownership: | 100.0000000000% | | |
| Total Value: | $377,080 | | |
| Tax Area: | 5 - OL-140 |
| CERFD | CURRENT EXPENSE REFUND 010 | 0.0000000000 | $377,080 | $377,080 | $0.00 | | |
| CURREXP | CURRENT EXPENSE 010 | 1.0175366760 | $377,080 | $377,080 | $383.69 | | |
| HUMNSERV | HUMAN SERVICES 119 | 0.0250000000 | $377,080 | $377,080 | $9.43 | | |
| SLDREL | SOLDIERS RELIEF 121 | 0.0155990005 | $377,080 | $377,080 | $5.88 | | |
| EMERGSER | EMS 147 | 0.3792580840 | $377,080 | $377,080 | $143.01 | | |
| EMSRFD | EMS REFUND 147 | 0.0000000000 | $377,080 | $377,080 | $0.00 | | |
| PORTRFD | PORT REFUND 640 | 0.0000000000 | $377,080 | $377,080 | $0.00 | | |
| PORTWWGEN | PORT OF WW 640 | 0.2460186015 | $377,080 | $377,080 | $92.77 | | |
| SD140BOND | SD #140 BOND 764 | 0.8342371393 | $377,080 | $377,080 | $314.57 | | |
| SD140GEN | SD #140 GENERAL 760 | 2.0646500647 | $377,080 | $377,080 | $778.54 | | |
| ST2 | STATE SCHOOL PART 2 600 | 0.8131451643 | $377,080 | $377,080 | $306.62 | | |
| STATESCHL | STATE SCHOOL 600 | 1.5158548041 | $377,080 | $377,080 | $571.60 | | |
| STREFUND | STATE REFUND LEVY 603 | 0.0000000000 | $377,080 | $377,080 | $0.00 | | |
| CWWBOND | C OF WW BOND 643 | 0.2760494372 | $377,080 | $377,080 | $104.09 | | |
| CWWGEN | CITY OF WW 631 | 1.6100204973 | $377,080 | $377,080 | $607.11 | | |
| CWWRFD | CITY OF WALLA WALLA REFUND 631 | 0.0000000000 | $377,080 | $377,080 | $0.00 | | |
| | Total Tax Rate: | 8.7973694689 | | | | | |
| | | | | Taxes w/Current Exemptions: | $3,317.31 | | |
| | | | | Taxes w/o Exemptions: | $3,317.31 | | |
Improvement / Building
| Improvement #1: | RESIDENTIAL | State Code: | 11 | 1285.0 sqft | Value: | $328,950 |
| Exterior Wall: | SIDING | Heating/Cooling: | WARM & COOLED AIR | | Number of Bathrooms: | 1 | Number of Bedrooms: | 3 | | Plumbing: | 6 | Roof Covering: | COMP SHINGLE |
|
| | Type | Description | Class CD | Sub Class CD | Year Built | Area |
| | MA | Main Area | 1 | 30 | 1962 | 1285.0 |
| | BONU | BONUS ROOM W/FINISH | 1 | 30 | 0 | 315.0 |
| | CPC | COVERED CARPORT/PATIO | 1 | 30 | 0 | 484.0 |
| | DTG | Detached Garage | 1 | 30 | 0 | 546.0 |
| | SI1 | SITE IMPROVEMENT | 1 | 30 | 0 | 1.5 |
| | BASE | BASEMENT | 1 | 30 | 1962 | 1000.0 |
| | UTST | Utility Storage Shed | 1 | 30 | 1962 | 160.0 |
| | BPF | BASEMENT -PARTITIONED FINISH | 1 | 30 | 1962 | 750.0 |
| | RPO | OPEN PORCH W/ROOF | 1 | 30 | 1962 | 125.0 |
| | S1F | Single One Story Fireplace | 1 | 30 | 1962 | 1.0 |
Sketch
Property Image
Land
| 1 | RES 1 | Converted: Residential | 0.1768 | 7700.00 | 0.00 | 0.00 | 1.00 | $48,130 | $0 |
Roll Value History
| 2026 | N/A | N/A | N/A | N/A | N/A |
| 2025 | $333,970 | $77,000 | $0 | $410,970 | $410,970 |
| 2024 | $318,070 | $77,000 | $0 | $395,070 | $395,070 |
| 2023 | $328,950 | $48,130 | $0 | $377,080 | $377,080 |
| 2022 | $313,290 | $48,130 | $0 | $361,420 | $361,420 |
| 2021 | $223,780 | $48,130 | $0 | $271,910 | $271,910 |
| 2020 | $186,480 | $48,130 | $0 | $234,610 | $234,610 |
| 2019 | $186,480 | $48,130 | $0 | $234,610 | $234,610 |
| 2018 | $155,400 | $48,130 | $0 | $203,530 | $203,530 |
| 2017 | $155,660 | $30,800 | $0 | $186,460 | $186,460 |
| 2016 | $124,530 | $30,800 | $0 | $155,330 | $155,330 |
| 2015 | $124,530 | $30,800 | $0 | $155,330 | $155,330 |
| 2014 | $133,900 | $30,800 | $0 | $164,700 | $164,700 |
| 2013 | $133,900 | $30,800 | $0 | $164,700 | $164,700 |
| 2012 | $138,100 | $30,800 | $0 | $0 | $0 |
| 2011 | $147,000 | $30,800 | $0 | $0 | $0 |
| 2010 | $138,500 | $30,800 | $0 | $0 | $0 |
| 2009 | $157,300 | $30,800 | $0 | $0 | $0 |
| 2008 | $132,800 | $30,800 | $0 | $0 | $0 |
| 2007 | $132,800 | $30,800 | $0 | $0 | $0 |
Deed and Sales History
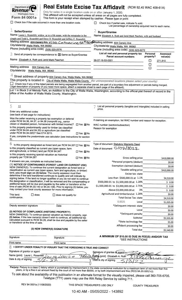
| 1 | 05/05/2022 | SWD | STATUTORY WARRANTY DEED | ROSENFELT LAWRENCE J & LAURA L LIFE ESTATE | ROTH ELIZABETH A JERID MARK PASCHEN | | | $410,000.00 | 143892 | 2022-03828 |
| 2 | 08/04/2005 | QCD | QUIT CLAIM DEED | ROSENFELT, LAWRENCE & LAURA | ROSENFELT, LAWRENCE J & LAURA | | | | 108145 | 2005-09611 |
| 3 | 10/01/1962 | WARRANTY D | WARRANTY DEED | | | | | $15,500.00 | 0 | 3010-438830 |
Payout Agreement
| No payout information available.. |