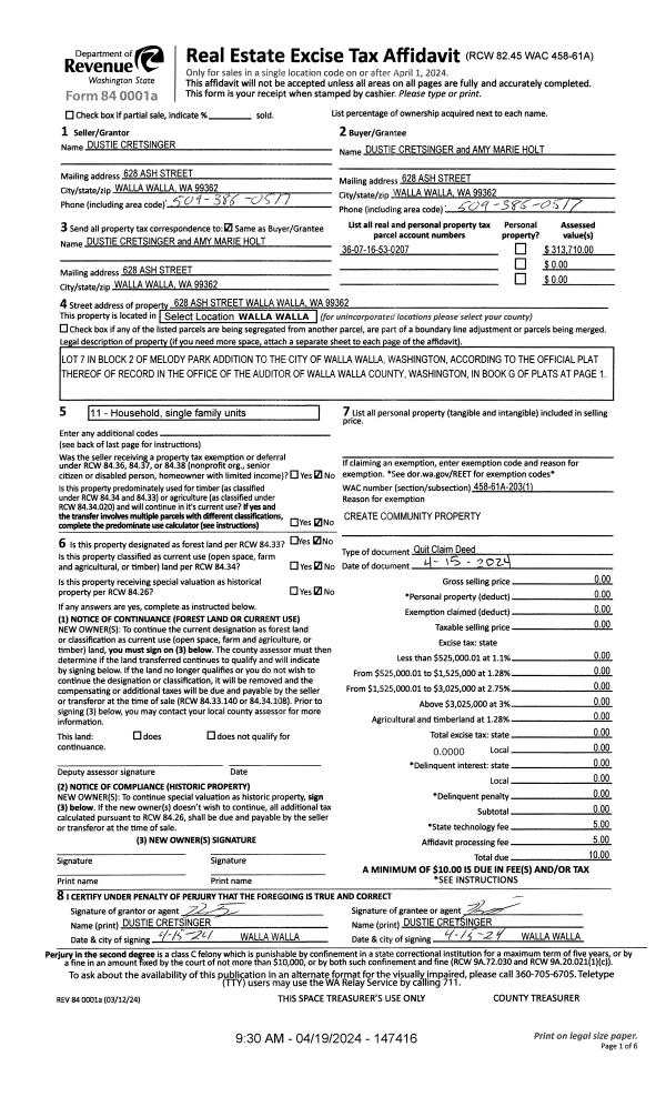
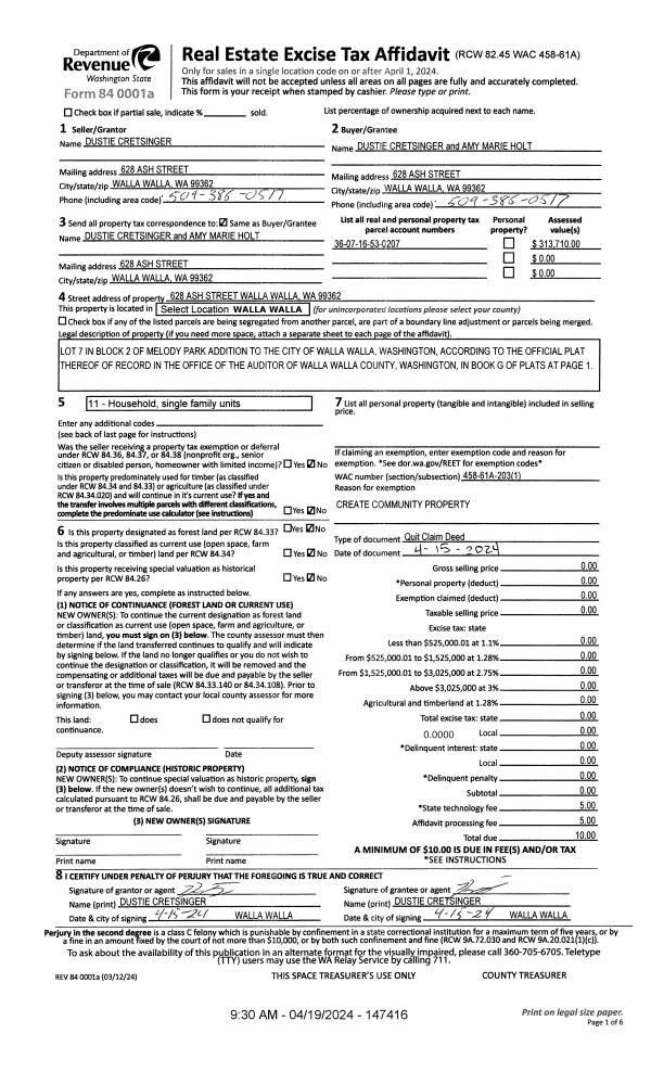
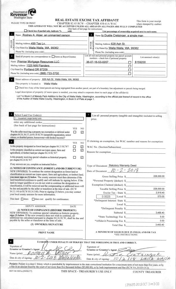
Property
Account |
| Property ID: | 5674 | Abbreviated Legal Description: | MELODY PARK LOT 7 BLK 2 |
| Parcel Number: | 360716530207 | Agent Code: | |
| Type: | Real | | |
| Tax Area: | 5 - OL-140 | Land Use Code | 11 |
| Open Space: | N | DFL | N |
| Historic Property: | N | Remodel Property: | N |
| Multi-Family Redevelopment: | N | | |
| Township: | 7 | Section: | 16 |
| Range: | 36 |
Location |
| Address: | 628 ASH ST WA 99362 | Mapsco: | |
| Neighborhood: | A-Superior SFR | Map ID: | |
| Neighborhood CD: | 513211 |
Owner |
| Name: | CRETSINGER DUSTIE | Owner ID: | 64057 |
| Mailing Address: | 628 ASH ST WALLA WALLA, WA 99362 | % Ownership: | 100.0000000000% |
| | | Exemptions: | |
Taxes and Assessment Details
Property Tax Information as of
02/21/2026
Click on "Statement Details" to expand or collapse a tax statement.
* Please enter a valid date ** Please enter a valid date *
Statement Details |
| | TOTAL: | $0.00 | $0.00 | $0.00 | $0.00 | $0.00 | $0.00 |
|
| | $0.00 | $0.00 | $0.00 | $0.00 | $0.00 | $0.00 |
Values
| (+) Improvement Homesite Value: | + | $0 | |
| (+) Improvement Non-Homesite Value: | + | $272,460 | |
| (+) Land Homesite Value: | + | $0 | |
| (+) Land Non-Homesite Value: | + | $41,250 | |
| (+) Curr Use (HS): | + | $0 | $0 |
| (+) Curr Use (NHS): | + | $0 | $0 |
| | | -------------------------- | |
| (=) Market Value: | = | $313,710 | |
| (–) Productivity Loss: | – | $0 | |
| | | -------------------------- | |
| (=) Subtotal: | = | $313,710 | |
| (+) Senior Appraised Value: | + | $0 | |
| (+) Non-Senior Appraised Value: | + | $313,710 | |
| | | -------------------------- | |
| (=) Total Appraised Value: | = | $313,710 | |
| (–) Senior Exemption Loss: | – | $0 | |
| (–) Exemption Loss: | – | $0 | |
| | | -------------------------- | |
| (=) Taxable Value: | = | $313,710 | |
Taxing Jurisdiction
| Owner: | CRETSINGER DUSTIE | | |
| % Ownership: | 100.0000000000% | | |
| Total Value: | $313,710 | | |
| Tax Area: | 5 - OL-140 |
| CERFD | CURRENT EXPENSE REFUND 010 | 0.0000000000 | $313,710 | $313,710 | $0.00 | | |
| CURREXP | CURRENT EXPENSE 010 | 1.0175366760 | $313,710 | $313,710 | $319.21 | | |
| HUMNSERV | HUMAN SERVICES 119 | 0.0250000000 | $313,710 | $313,710 | $7.84 | | |
| SLDREL | SOLDIERS RELIEF 121 | 0.0155990005 | $313,710 | $313,710 | $4.89 | | |
| EMERGSER | EMS 147 | 0.3792580840 | $313,710 | $313,710 | $118.98 | | |
| EMSRFD | EMS REFUND 147 | 0.0000000000 | $313,710 | $313,710 | $0.00 | | |
| PORTRFD | PORT REFUND 640 | 0.0000000000 | $313,710 | $313,710 | $0.00 | | |
| PORTWWGEN | PORT OF WW 640 | 0.2460186015 | $313,710 | $313,710 | $77.18 | | |
| SD140BOND | SD #140 BOND 764 | 0.8342371393 | $313,710 | $313,710 | $261.71 | | |
| SD140GEN | SD #140 GENERAL 760 | 2.0646500647 | $313,710 | $313,710 | $647.70 | | |
| ST2 | STATE SCHOOL PART 2 600 | 0.8131451643 | $313,710 | $313,710 | $255.09 | | |
| STATESCHL | STATE SCHOOL 600 | 1.5158548041 | $313,710 | $313,710 | $475.54 | | |
| STREFUND | STATE REFUND LEVY 603 | 0.0000000000 | $313,710 | $313,710 | $0.00 | | |
| CWWBOND | C OF WW BOND 643 | 0.2760494372 | $313,710 | $313,710 | $86.60 | | |
| CWWGEN | CITY OF WW 631 | 1.6100204973 | $313,710 | $313,710 | $505.08 | | |
| CWWRFD | CITY OF WALLA WALLA REFUND 631 | 0.0000000000 | $313,710 | $313,710 | $0.00 | | |
| | Total Tax Rate: | 8.7973694689 | | | | | |
| | | | | Taxes w/Current Exemptions: | $2,759.82 | | |
| | | | | Taxes w/o Exemptions: | $2,759.82 | | |
Improvement / Building
| Improvement #1: | RESIDENTIAL | State Code: | 11 | 960.0 sqft | Value: | $272,460 |
| Exterior Wall: | SIDING | Heating/Cooling: | WARM & COOLED AIR | | Number of Bathrooms: | 2 | Number of Bedrooms: | 3 | | Plumbing: | 9 | Roof Covering: | COMP SHINGLE |
|
| | Type | Description | Class CD | Sub Class CD | Year Built | Area |
| | MA | Main Area | 1 | 30 | 1959 | 960.0 |
| | SI1 | SITE IMPROVEMENT | 1 | 30 | 1959 | 1.5 |
| | BASE | BASEMENT | 1 | 30 | 1959 | 960.0 |
| | BPF | BASEMENT -PARTITIONED FINISH | 1 | 30 | 1959 | 480.0 |
| | CPC | COVERED CARPORT/PATIO | 1 | 30 | 1959 | 652.0 |
| | RPS | PORCH W/STEPS,ROOF | 1 | 30 | 1959 | 30.0 |
Sketch
Property Image
Land
| 1 | RES 1 | Converted: Residential | 0.1515 | 6600.00 | 0.00 | 0.00 | 1.00 | $41,250 | $0 |
Roll Value History
| 2026 | N/A | N/A | N/A | N/A | N/A |
| 2025 | $280,490 | $66,000 | $0 | $346,490 | $346,490 |
| 2024 | $280,490 | $66,000 | $0 | $346,490 | $346,490 |
| 2023 | $272,460 | $41,250 | $0 | $313,710 | $313,710 |
| 2022 | $236,930 | $41,250 | $0 | $278,180 | $278,180 |
| 2021 | $202,500 | $41,250 | $0 | $243,750 | $243,750 |
| 2020 | $150,000 | $41,250 | $0 | $191,250 | $191,250 |
| 2019 | $150,000 | $41,250 | $0 | $191,250 | $191,250 |
| 2018 | $125,000 | $41,250 | $0 | $166,250 | $166,250 |
| 2017 | $132,800 | $26,400 | $0 | $159,200 | $159,200 |
| 2016 | $110,670 | $26,400 | $0 | $137,070 | $137,070 |
| 2015 | $110,670 | $26,400 | $0 | $137,070 | $137,070 |
| 2014 | $119,000 | $26,400 | $0 | $145,400 | $145,400 |
| 2013 | $119,000 | $26,400 | $0 | $145,400 | $145,400 |
| 2012 | $119,000 | $26,400 | $0 | $0 | $0 |
| 2011 | $112,100 | $26,400 | $0 | $0 | $0 |
| 2010 | $105,500 | $26,400 | $0 | $0 | $0 |
| 2009 | $120,100 | $26,400 | $0 | $0 | $0 |
| 2008 | $101,000 | $26,400 | $0 | $0 | $0 |
| 2007 | $101,000 | $26,400 | $0 | $0 | $0 |
Deed and Sales History
| 1 | 04/19/2024 | QCD | QUIT CLAIM DEED | CRETSINGER DUSTIE | CRETSINGER DUSTIE & AMY MARIE HOLT | | | | 147416 | 2024-01951 |
| 2 | 10/03/2018 | SWD | STATUTORY WARRANTY DEED | ALGER RODNEY A | CRETSINGER DUSTIE | | | $228,000.00 | 135685 | 2018-08252 |
| 3 | 04/05/1993 | WARRANTY D | WARRANTY DEED | | | | | $56,900.00 | 78847 | 2059-303267 |
Payout Agreement
| No payout information available.. |