Property
Account |
| Property ID: | 5666 | Abbreviated Legal Description: | MELODY PARK LOT 18 BLK 1 |
| Parcel Number: | 360716530118 | Agent Code: | |
| Type: | Real | | |
| Tax Area: | 5 - OL-140 | Land Use Code | 11 |
| Open Space: | N | DFL | N |
| Historic Property: | N | Remodel Property: | N |
| Multi-Family Redevelopment: | N | | |
| Township: | 7 | Section: | 16 |
| Range: | 36 |
Location |
| Address: | 2073 LARK DR WA 99362 | Mapsco: | |
| Neighborhood: | A-Superior SFR | Map ID: | |
| Neighborhood CD: | 513211 |
Owner |
| Name: | STYNER REBECCA & JESSE | Owner ID: | 73116 |
| Mailing Address: | 2073 LARK DR WALLA WALLA, WA 99362 | % Ownership: | 100.0000000000% |
| | | Exemptions: | |
Taxes and Assessment Details
Values
| (+) Improvement Homesite Value: | + | $0 | |
| (+) Improvement Non-Homesite Value: | + | $272,330 | |
| (+) Land Homesite Value: | + | $0 | |
| (+) Land Non-Homesite Value: | + | $45,380 | |
| (+) Curr Use (HS): | + | $0 | $0 |
| (+) Curr Use (NHS): | + | $0 | $0 |
| | | -------------------------- | |
| (=) Market Value: | = | $317,710 | |
| (–) Productivity Loss: | – | $0 | |
| | | -------------------------- | |
| (=) Subtotal: | = | $317,710 | |
| (+) Senior Appraised Value: | + | $0 | |
| (+) Non-Senior Appraised Value: | + | $317,710 | |
| | | -------------------------- | |
| (=) Total Appraised Value: | = | $317,710 | |
| (–) Senior Exemption Loss: | – | $0 | |
| (–) Exemption Loss: | – | $0 | |
| | | -------------------------- | |
| (=) Taxable Value: | = | $317,710 | |
Taxing Jurisdiction
| Owner: | STYNER REBECCA & JESSE | | |
| % Ownership: | 100.0000000000% | | |
| Total Value: | $317,710 | | |
| Tax Area: | 5 - OL-140 |
| CERFD | CURRENT EXPENSE REFUND 010 | 0.0000000000 | $317,710 | $317,710 | $0.00 | | |
| CURREXP | CURRENT EXPENSE 010 | 1.0175366760 | $317,710 | $317,710 | $323.28 | | |
| HUMNSERV | HUMAN SERVICES 119 | 0.0250000000 | $317,710 | $317,710 | $7.94 | | |
| SLDREL | SOLDIERS RELIEF 121 | 0.0155990005 | $317,710 | $317,710 | $4.96 | | |
| EMERGSER | EMS 147 | 0.3792580840 | $317,710 | $317,710 | $120.49 | | |
| EMSRFD | EMS REFUND 147 | 0.0000000000 | $317,710 | $317,710 | $0.00 | | |
| PORTRFD | PORT REFUND 640 | 0.0000000000 | $317,710 | $317,710 | $0.00 | | |
| PORTWWGEN | PORT OF WW 640 | 0.2460186015 | $317,710 | $317,710 | $78.16 | | |
| SD140BOND | SD #140 BOND 764 | 0.8342371393 | $317,710 | $317,710 | $265.05 | | |
| SD140GEN | SD #140 GENERAL 760 | 2.0646500647 | $317,710 | $317,710 | $655.96 | | |
| ST2 | STATE SCHOOL PART 2 600 | 0.8131451643 | $317,710 | $317,710 | $258.34 | | |
| STATESCHL | STATE SCHOOL 600 | 1.5158548041 | $317,710 | $317,710 | $481.60 | | |
| STREFUND | STATE REFUND LEVY 603 | 0.0000000000 | $317,710 | $317,710 | $0.00 | | |
| CWWBOND | C OF WW BOND 643 | 0.2760494372 | $317,710 | $317,710 | $87.70 | | |
| CWWGEN | CITY OF WW 631 | 1.6100204973 | $317,710 | $317,710 | $511.52 | | |
| CWWRFD | CITY OF WALLA WALLA REFUND 631 | 0.0000000000 | $317,710 | $317,710 | $0.00 | | |
| | Total Tax Rate: | 8.7973694689 | | | | | |
| | | | | Taxes w/Current Exemptions: | $2,795.00 | | |
| | | | | Taxes w/o Exemptions: | $2,795.00 | | |
Improvement / Building
| Improvement #1: | RESIDENTIAL | State Code: | 11 | 960.0 sqft | Value: | $272,330 |
| Exterior Wall: | SIDING | Heating/Cooling: | WARM & COOLED AIR | | Number of Bathrooms: | 2 | Number of Bedrooms: | 2 | | Plumbing: | 9 | Roof Covering: | COMP SHINGLE |
|
| | Type | Description | Class CD | Sub Class CD | Year Built | Area |
| | MA | Main Area | 1 | 30 | 1959 | 960.0 |
| | SI1 | SITE IMPROVEMENT | 1 | 30 | 1959 | 1.5 |
| | BASE | BASEMENT | 1 | 30 | 1959 | 960.0 |
| | BPF | BASEMENT -PARTITIONED FINISH | 1 | 30 | 1959 | 960.0 |
| | CPC | COVERED CARPORT/PATIO | 1 | 30 | 1959 | 285.0 |
| | CPC | COVERED CARPORT/PATIO | 1 | 30 | 1959 | 300.0 |
| | RPS | PORCH W/STEPS,ROOF | 1 | 30 | 1959 | 36.0 |
Sketch
Property Image
Land
| 1 | RES 1 | Converted: Residential | 0.1667 | 7260.00 | 0.00 | 0.00 | 1.00 | $45,380 | $0 |
Roll Value History
| 2026 | N/A | N/A | N/A | N/A | N/A |
| 2025 | $277,650 | $72,600 | $0 | $350,250 | $350,250 |
| 2024 | $264,430 | $72,600 | $0 | $337,030 | $337,030 |
| 2023 | $272,330 | $45,380 | $0 | $317,710 | $317,710 |
| 2022 | $236,810 | $45,380 | $0 | $282,190 | $282,190 |
| 2021 | $205,920 | $45,380 | $0 | $251,300 | $251,300 |
| 2020 | $158,400 | $45,380 | $0 | $203,780 | $203,780 |
| 2019 | $158,400 | $45,380 | $0 | $203,780 | $203,780 |
| 2018 | $132,000 | $45,380 | $0 | $177,380 | $177,380 |
| 2017 | $126,140 | $29,000 | $0 | $155,140 | $155,140 |
| 2016 | $114,670 | $29,000 | $0 | $143,670 | $143,670 |
| 2015 | $114,670 | $29,000 | $0 | $143,670 | $143,670 |
| 2014 | $123,300 | $29,000 | $0 | $152,300 | $152,300 |
| 2013 | $123,300 | $29,000 | $0 | $152,300 | $152,300 |
| 2012 | $130,900 | $29,000 | $0 | $0 | $0 |
| 2011 | $123,300 | $29,000 | $0 | $0 | $0 |
| 2010 | $116,000 | $29,000 | $0 | $0 | $0 |
| 2009 | $132,100 | $29,000 | $0 | $0 | $0 |
| 2008 | $111,100 | $29,000 | $0 | $0 | $0 |
| 2007 | $111,100 | $29,000 | $0 | $0 | $0 |
Deed and Sales History
| 1 | 06/12/2025 | SWD | STATUTORY WARRANTY DEED | STYNER REBECCA & JESSE | KOBERSTEIN TRACY T | | | $374,000.00 | 149526 | 2025-03314 |
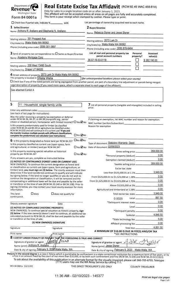
| 2 | 02/10/2023 | SWD | STATUTORY WARRANTY DEED | ARELLANO ANTHONY R & STEPHANIE N | STYNER REBECCA & JESSE | | | $359,000.00 | 145377 | 2023-00668 |
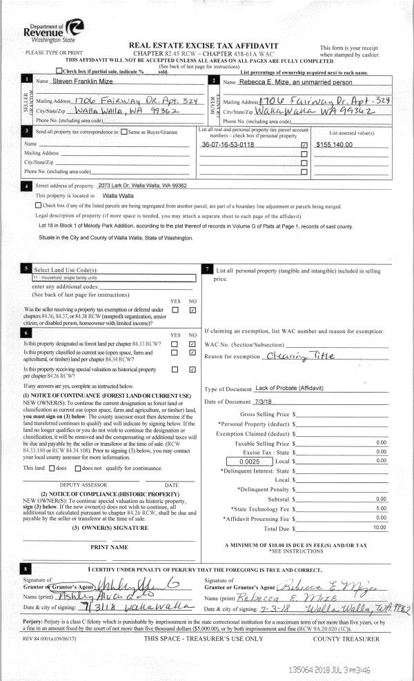
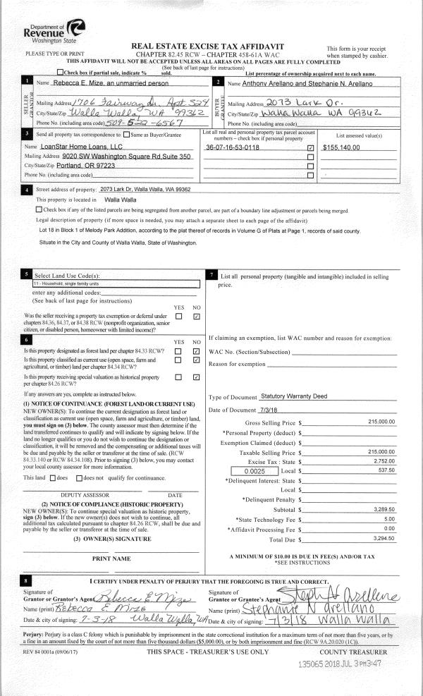
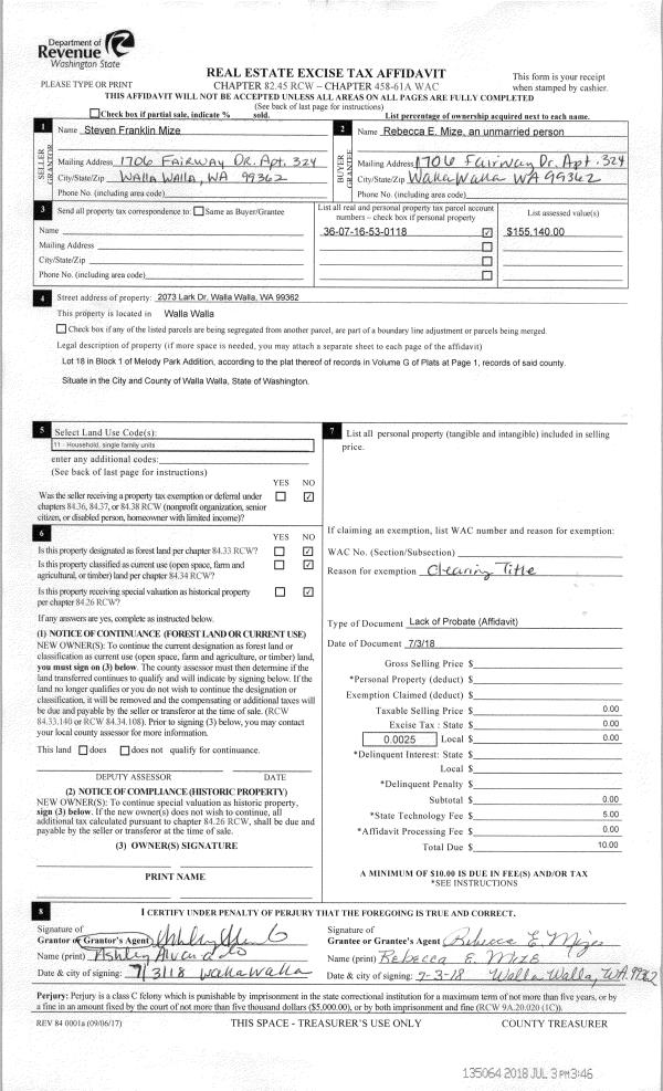
| 3 | 07/03/2018 | SWD | STATUTORY WARRANTY DEED | MIZE REBECCA E | ARELLANO ANTHONY R & STEPHANIE N | | | $215,000.00 | 135065 | 2018-05387 |
| 4 | 07/03/2018 | AFFIDAVIT | AFFIDAVIT | MIZE STEVEN FRANKLIN | MIZE REBECCA E | | | | 135064 | 2018-05386 |
| 5 | 07/22/2009 | WARRANTY D | WARRANTY DEED | THE BANK OF NEW YORK, TRUSTEE | MIZE, STEVEN F | | | | 49113 | 2009-07460 |
| 6 | 05/01/1978 | WARRANTY D | WARRANTY DEED | | | | | $38,000.00 | 0 | 8178-03873 |
Payout Agreement
| No payout information available.. |