Property
Account |
| Property ID: | 5631 | Abbreviated Legal Description: | FRANKLAND E 63' OF LOTS 10 & 11 BLK 10 |
| Parcel Number: | 360716501020 | Agent Code: | |
| Type: | Real | | |
| Tax Area: | 5 - OL-140 | Land Use Code | 11 |
| Open Space: | N | DFL | N |
| Historic Property: | N | Remodel Property: | N |
| Multi-Family Redevelopment: | N | | |
| Township: | 7 | Section: | 16 |
| Range: | 36 |
Location |
| Address: | 1829 MELROSE ST WA 99362 | Mapsco: | |
| Neighborhood: | A-SFR | Map ID: | |
| Neighborhood CD: | 513011 |
Owner |
| Name: | JOHNSON JENNIFER | Owner ID: | 70527 |
| Mailing Address: | 1829 MELROSE ST WALLA WALLA, WA 99362 | % Ownership: | 100.0000000000% |
| | | Exemptions: | |
Taxes and Assessment Details
Property Tax Information as of
02/21/2026
Click on "Statement Details" to expand or collapse a tax statement.
* Please enter a valid date ** Please enter a valid date *
Statement Details |
| | TOTAL: | $0.00 | $0.00 | $0.00 | $0.00 | $0.00 | $0.00 |
|
| | $0.00 | $0.00 | $0.00 | $0.00 | $0.00 | $0.00 |
Values
| (+) Improvement Homesite Value: | + | $0 | |
| (+) Improvement Non-Homesite Value: | + | $160,050 | |
| (+) Land Homesite Value: | + | $0 | |
| (+) Land Non-Homesite Value: | + | $40,630 | |
| (+) Curr Use (HS): | + | $0 | $0 |
| (+) Curr Use (NHS): | + | $0 | $0 |
| | | -------------------------- | |
| (=) Market Value: | = | $200,680 | |
| (–) Productivity Loss: | – | $0 | |
| | | -------------------------- | |
| (=) Subtotal: | = | $200,680 | |
| (+) Senior Appraised Value: | + | $0 | |
| (+) Non-Senior Appraised Value: | + | $200,680 | |
| | | -------------------------- | |
| (=) Total Appraised Value: | = | $200,680 | |
| (–) Senior Exemption Loss: | – | $0 | |
| (–) Exemption Loss: | – | $0 | |
| | | -------------------------- | |
| (=) Taxable Value: | = | $200,680 | |
Taxing Jurisdiction
| Owner: | JOHNSON JENNIFER | | |
| % Ownership: | 100.0000000000% | | |
| Total Value: | $200,680 | | |
| Tax Area: | 5 - OL-140 |
| CERFD | CURRENT EXPENSE REFUND 010 | 0.0000000000 | $200,680 | $200,680 | $0.00 | | |
| CURREXP | CURRENT EXPENSE 010 | 1.0175366760 | $200,680 | $200,680 | $204.20 | | |
| HUMNSERV | HUMAN SERVICES 119 | 0.0250000000 | $200,680 | $200,680 | $5.02 | | |
| SLDREL | SOLDIERS RELIEF 121 | 0.0155990005 | $200,680 | $200,680 | $3.13 | | |
| EMERGSER | EMS 147 | 0.3792580840 | $200,680 | $200,680 | $76.11 | | |
| EMSRFD | EMS REFUND 147 | 0.0000000000 | $200,680 | $200,680 | $0.00 | | |
| PORTRFD | PORT REFUND 640 | 0.0000000000 | $200,680 | $200,680 | $0.00 | | |
| PORTWWGEN | PORT OF WW 640 | 0.2460186015 | $200,680 | $200,680 | $49.37 | | |
| SD140BOND | SD #140 BOND 764 | 0.8342371393 | $200,680 | $200,680 | $167.41 | | |
| SD140GEN | SD #140 GENERAL 760 | 2.0646500647 | $200,680 | $200,680 | $414.33 | | |
| ST2 | STATE SCHOOL PART 2 600 | 0.8131451643 | $200,680 | $200,680 | $163.18 | | |
| STATESCHL | STATE SCHOOL 600 | 1.5158548041 | $200,680 | $200,680 | $304.20 | | |
| STREFUND | STATE REFUND LEVY 603 | 0.0000000000 | $200,680 | $200,680 | $0.00 | | |
| CWWBOND | C OF WW BOND 643 | 0.2760494372 | $200,680 | $200,680 | $55.40 | | |
| CWWGEN | CITY OF WW 631 | 1.6100204973 | $200,680 | $200,680 | $323.10 | | |
| CWWRFD | CITY OF WALLA WALLA REFUND 631 | 0.0000000000 | $200,680 | $200,680 | $0.00 | | |
| | Total Tax Rate: | 8.7973694689 | | | | | |
| | | | | Taxes w/Current Exemptions: | $1,765.45 | | |
| | | | | Taxes w/o Exemptions: | $1,765.45 | | |
Improvement / Building
| Improvement #1: | RESIDENTIAL | State Code: | 11 | 1056.0 sqft | Value: | $160,050 |
| Exterior Wall: | VINYL | Heating/Cooling: | FLOOR FURNACE | | Number of Bathrooms: | 1 | Number of Bedrooms: | 3 | | Plumbing: | 6 | Roof Covering: | COMP SHINGLE |
|
| | Type | Description | Class CD | Sub Class CD | Year Built | Area |
| | MA | Main Area | 1 | 20 | 1946 | 1056.0 |
| | CPC | COVERED CARPORT/PATIO | 1 | 20 | 0 | 192.0 |
| | DTG | Detached Garage | 1 | 20 | 0 | 480.0 |
| | SI1 | SITE IMPROVEMENT | 1 | 20 | 0 | 1.0 |
| | RPS | PORCH W/STEPS,ROOF | 1 | 20 | 1946 | 30.0 |
Sketch
Property Image
Land
| 1 | RES 1 | Converted: Residential | 0.1492 | 6500.00 | 0.00 | 0.00 | 1.00 | $40,630 | $0 |
Roll Value History
| 2026 | N/A | N/A | N/A | N/A | N/A |
| 2025 | $151,690 | $65,000 | $0 | $216,690 | $216,690 |
| 2024 | $151,690 | $65,000 | $0 | $216,690 | $216,690 |
| 2023 | $160,050 | $40,630 | $0 | $200,680 | $200,680 |
| 2022 | $160,050 | $40,630 | $0 | $200,680 | $200,680 |
| 2021 | $53,350 | $40,630 | $0 | $93,980 | $93,980 |
| 2020 | $48,500 | $40,630 | $0 | $89,130 | $89,130 |
| 2019 | $48,500 | $40,630 | $0 | $89,130 | $89,130 |
| 2018 | $48,500 | $40,630 | $0 | $89,130 | $89,130 |
| 2017 | $62,300 | $26,000 | $0 | $88,300 | $88,300 |
| 2016 | $51,920 | $26,000 | $0 | $77,920 | $77,920 |
| 2015 | $47,200 | $26,000 | $0 | $73,200 | $73,200 |
| 2014 | $59,000 | $26,000 | $0 | $85,000 | $85,000 |
| 2013 | $59,000 | $26,000 | $0 | $85,000 | $85,000 |
| 2012 | $63,800 | $26,000 | $0 | $0 | $0 |
| 2011 | $63,800 | $26,000 | $0 | $0 | $0 |
| 2010 | $63,800 | $26,000 | $0 | $0 | $0 |
| 2009 | $73,800 | $26,000 | $0 | $0 | $0 |
| 2008 | $73,800 | $26,000 | $0 | $0 | $0 |
| 2007 | $73,800 | $26,000 | $0 | $0 | $0 |
Deed and Sales History
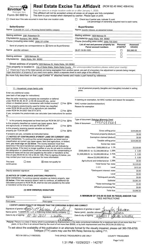
| 1 | 10/29/2021 | SWD | STATUTORY WARRANTY DEED | TLMARR EV LLC | JOHNSON JENNIFER | | | $229,000.00 | 142767 | 2021-13059 |
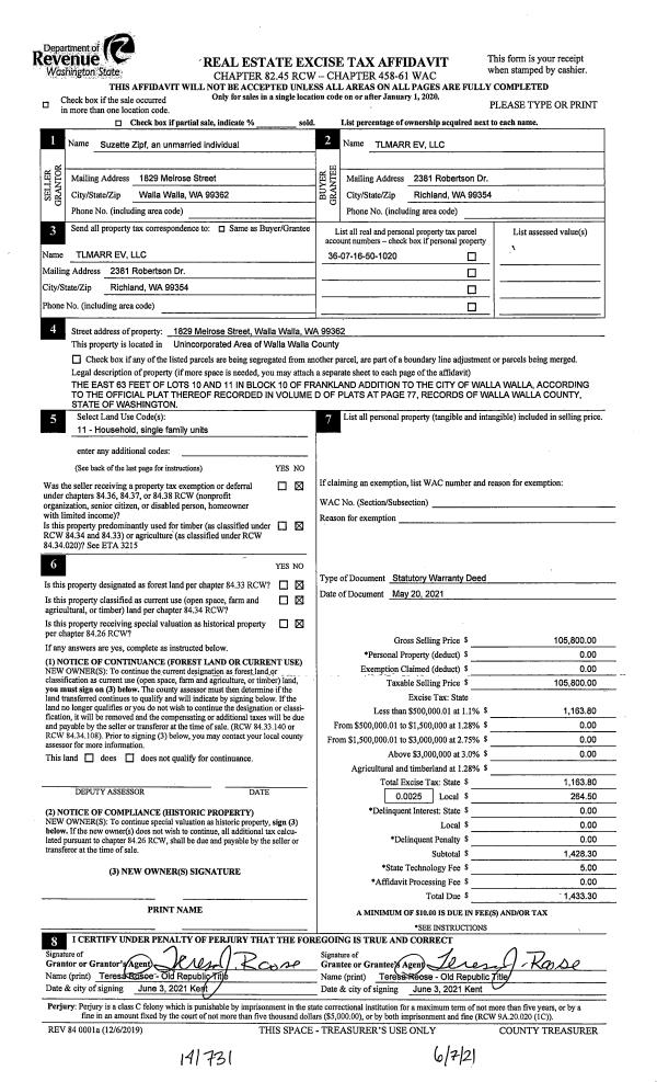
| 2 | 06/07/2021 | SWD | STATUTORY WARRANTY DEED | ZIPF SUZETTE | TLMARR EV LLC | | | $105,800.00 | 141731 | 2021-06845 |
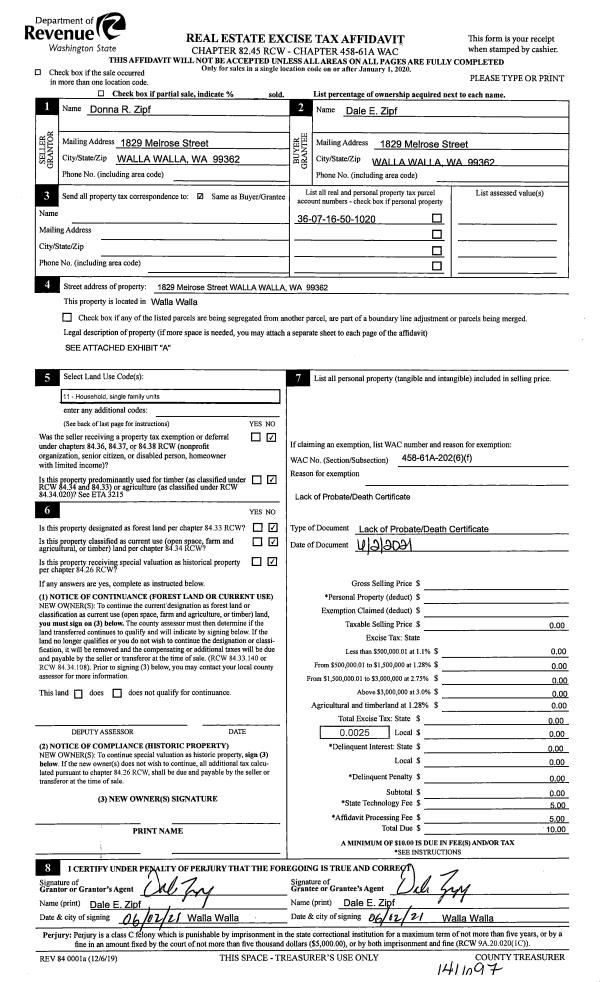
| 3 | 06/02/2021 | QCD | QUIT CLAIM DEED | ZIPF DALE E 50% | ZIPF SUZETTE | | | $0.00 | 141698 | 2021-06699 |
| 4 | 06/02/2021 | LOPA | LACK OF PROBATE AFFIDAVIT | ZIPF DONNA 50% | ZIPF DALE E 50% | | | $0.00 | 141697 | 2021-06698 |
| 5 | 05/11/2021 | QCD | QUIT CLAIM DEED | ZIPF DALE E & DONNA | ZIPF DONNA 50% | | | $0.00 | 141537 | 2021-05727 |
| 6 | 11/13/1984 | WARRANTY D | WARRANTY DEED | | | | | $29,900.00 | 0 | 1468-407724 |
Payout Agreement
| No payout information available.. |