Property
Account |
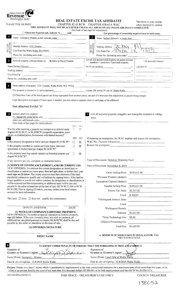
| Property ID: | 5578 | Abbreviated Legal Description: | 16-7-36 TAX 53 |
| Parcel Number: | 360716340014 | Agent Code: | |
| Type: | Real | | |
| Tax Area: | 5 - OL-140 | Land Use Code | 11 |
| Open Space: | N | DFL | N |
| Historic Property: | N | Remodel Property: | N |
| Multi-Family Redevelopment: | N | | |
| Township: | 7 | Section: | 16 |
| Range: | 36 |
Location |
| Address: | 1521 TRUMAN ST WA 99362 | Mapsco: | |
| Neighborhood: | A-SFR | Map ID: | |
| Neighborhood CD: | 513011 |
Owner |
| Name: | MIRONOV STEFANO | Owner ID: | 57718 |
| Mailing Address: | PO BOX 191 ATHENA, OR 97813 | % Ownership: | 100.0000000000% |
| | | Exemptions: | |
Taxes and Assessment Details
Values
| (+) Improvement Homesite Value: | + | $0 | |
| (+) Improvement Non-Homesite Value: | + | $202,180 | |
| (+) Land Homesite Value: | + | $0 | |
| (+) Land Non-Homesite Value: | + | $43,560 | |
| (+) Curr Use (HS): | + | $0 | $0 |
| (+) Curr Use (NHS): | + | $0 | $0 |
| | | -------------------------- | |
| (=) Market Value: | = | $245,740 | |
| (–) Productivity Loss: | – | $0 | |
| | | -------------------------- | |
| (=) Subtotal: | = | $245,740 | |
| (+) Senior Appraised Value: | + | $0 | |
| (+) Non-Senior Appraised Value: | + | $245,740 | |
| | | -------------------------- | |
| (=) Total Appraised Value: | = | $245,740 | |
| (–) Senior Exemption Loss: | – | $0 | |
| (–) Exemption Loss: | – | $0 | |
| | | -------------------------- | |
| (=) Taxable Value: | = | $245,740 | |
Taxing Jurisdiction
| Owner: | MIRONOV STEFANO | | |
| % Ownership: | 100.0000000000% | | |
| Total Value: | $245,740 | | |
| Tax Area: | 5 - OL-140 |
| CERFD | CURRENT EXPENSE REFUND 010 | 0.0000000000 | $245,740 | $245,740 | $0.00 | | |
| CURREXP | CURRENT EXPENSE 010 | 1.0175366760 | $245,740 | $245,740 | $250.05 | | |
| HUMNSERV | HUMAN SERVICES 119 | 0.0250000000 | $245,740 | $245,740 | $6.14 | | |
| SLDREL | SOLDIERS RELIEF 121 | 0.0155990005 | $245,740 | $245,740 | $3.83 | | |
| EMERGSER | EMS 147 | 0.3792580840 | $245,740 | $245,740 | $93.20 | | |
| EMSRFD | EMS REFUND 147 | 0.0000000000 | $245,740 | $245,740 | $0.00 | | |
| PORTRFD | PORT REFUND 640 | 0.0000000000 | $245,740 | $245,740 | $0.00 | | |
| PORTWWGEN | PORT OF WW 640 | 0.2460186015 | $245,740 | $245,740 | $60.46 | | |
| SD140BOND | SD #140 BOND 764 | 0.8342371393 | $245,740 | $245,740 | $205.01 | | |
| SD140GEN | SD #140 GENERAL 760 | 2.0646500647 | $245,740 | $245,740 | $507.37 | | |
| ST2 | STATE SCHOOL PART 2 600 | 0.8131451643 | $245,740 | $245,740 | $199.82 | | |
| STATESCHL | STATE SCHOOL 600 | 1.5158548041 | $245,740 | $245,740 | $372.51 | | |
| STREFUND | STATE REFUND LEVY 603 | 0.0000000000 | $245,740 | $245,740 | $0.00 | | |
| CWWBOND | C OF WW BOND 643 | 0.2760494372 | $245,740 | $245,740 | $67.84 | | |
| CWWGEN | CITY OF WW 631 | 1.6100204973 | $245,740 | $245,740 | $395.65 | | |
| CWWRFD | CITY OF WALLA WALLA REFUND 631 | 0.0000000000 | $245,740 | $245,740 | $0.00 | | |
| | Total Tax Rate: | 8.7973694689 | | | | | |
| | | | | Taxes w/Current Exemptions: | $2,161.88 | | |
| | | | | Taxes w/o Exemptions: | $2,161.88 | | |
Improvement / Building
| Improvement #1: | RESIDENTIAL | State Code: | 11 | 1770.0 sqft | Value: | $202,180 |
| Exterior Wall: | HARDBOARD | Heating/Cooling: | BASEBOARD ELECTRIC | | Number of Bathrooms: | 1 | Number of Bedrooms: | 3 | | Plumbing: | 6 | Roof Covering: | COMP SHINGLE |
|
| | Type | Description | Class CD | Sub Class CD | Year Built | Area |
| | MA | Main Area | 2 | 20 | 1947 | 1770.0 |
| | SI1 | SITE IMPROVEMENT | 2 | 20 | 1947 | 1.0 |
| | UPFL | Upper Floor (included in main area) | 2 | 20 | 1947 | 932.0 |
| | CPC | COVERED CARPORT/PATIO | 2 | 20 | 1947 | 468.0 |
| | PRC | PORCH W STEPS, ROOF,CEILED | 2 | 20 | 1947 | 12.0 |
Sketch
Property Image
Land
| 1 | RES 1 | Converted: Residential | 0.1600 | 6969.00 | 0.00 | 0.00 | 1.00 | $43,560 | $0 |
Roll Value History
| 2026 | N/A | N/A | N/A | N/A | N/A |
| 2025 | $211,500 | $69,690 | $0 | $281,190 | $281,190 |
| 2024 | $176,250 | $69,690 | $0 | $245,940 | $245,940 |
| 2023 | $202,180 | $43,560 | $0 | $245,740 | $245,740 |
| 2022 | $161,110 | $43,560 | $0 | $204,670 | $204,670 |
| 2021 | $115,080 | $43,560 | $0 | $158,640 | $158,640 |
| 2020 | $95,900 | $43,560 | $0 | $139,460 | $139,460 |
| 2019 | $95,900 | $43,560 | $0 | $139,460 | $139,460 |
| 2018 | $95,900 | $43,560 | $0 | $139,460 | $139,460 |
| 2017 | $108,570 | $27,900 | $0 | $136,470 | $136,470 |
| 2016 | $77,550 | $27,900 | $0 | $105,450 | $105,450 |
| 2015 | $77,550 | $27,900 | $0 | $105,450 | $105,450 |
| 2014 | $70,500 | $27,900 | $0 | $98,400 | $98,400 |
| 2013 | $70,500 | $27,900 | $0 | $98,400 | $98,400 |
| 2012 | $72,600 | $27,900 | $0 | $0 | $0 |
| 2011 | $72,600 | $27,900 | $0 | $0 | $0 |
| 2010 | $72,600 | $27,900 | $0 | $0 | $0 |
| 2009 | $83,800 | $27,900 | $0 | $0 | $0 |
| 2008 | $83,800 | $27,900 | $0 | $0 | $0 |
| 2007 | $83,800 | $27,900 | $0 | $0 | $0 |
Deed and Sales History
| 1 | 11/08/2019 | SWD | STATUTORY WARRANTY DEED | WARNER GEORGIA | MIRONOV STEFANO | | | $105,611.00 | 138052 | 2019-09213 |
| 2 | 11/08/2019 | LOPA | LACK OF PROBATE AFFIDAVIT | WARNER CECIL R & GEORGIA L | WARNER GEORGIA | | | | 0 | 2019-09212 |
| 3 | 01/01/1968 | WARRANTY D | WARRANTY DEED | | | | | $8,750.00 | 0 | 3250-491848 |
Payout Agreement
| No payout information available.. |