Property
Account |
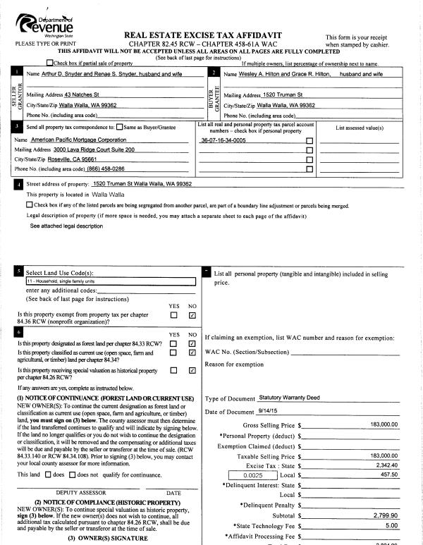
| Property ID: | 5575 | Abbreviated Legal Description: | 16-7-36 TAX 44 |
| Parcel Number: | 360716340005 | Agent Code: | |
| Type: | Real | | |
| Tax Area: | 5 - OL-140 | Land Use Code | 11 |
| Open Space: | N | DFL | N |
| Historic Property: | N | Remodel Property: | N |
| Multi-Family Redevelopment: | N | | |
| Township: | 7 | Section: | 16 |
| Range: | 36 |
Location |
| Address: | 1520 TRUMAN ST WA 99362 | Mapsco: | |
| Neighborhood: | A-SFR | Map ID: | |
| Neighborhood CD: | 513011 |
Owner |
| Name: | HILTON WESLEY A & GRACE R | Owner ID: | 57442 |
| Mailing Address: | 1520 TRUMAN ST WALLA WALLA, WA 99362 | % Ownership: | 100.0000000000% |
| | | Exemptions: | |
Taxes and Assessment Details
Values
| (+) Improvement Homesite Value: | + | $0 | |
| (+) Improvement Non-Homesite Value: | + | $249,780 | |
| (+) Land Homesite Value: | + | $0 | |
| (+) Land Non-Homesite Value: | + | $43,560 | |
| (+) Curr Use (HS): | + | $0 | $0 |
| (+) Curr Use (NHS): | + | $0 | $0 |
| | | -------------------------- | |
| (=) Market Value: | = | $293,340 | |
| (–) Productivity Loss: | – | $0 | |
| | | -------------------------- | |
| (=) Subtotal: | = | $293,340 | |
| (+) Senior Appraised Value: | + | $0 | |
| (+) Non-Senior Appraised Value: | + | $293,340 | |
| | | -------------------------- | |
| (=) Total Appraised Value: | = | $293,340 | |
| (–) Senior Exemption Loss: | – | $0 | |
| (–) Exemption Loss: | – | $0 | |
| | | -------------------------- | |
| (=) Taxable Value: | = | $293,340 | |
Taxing Jurisdiction
| Owner: | HILTON WESLEY A & GRACE R | | |
| % Ownership: | 100.0000000000% | | |
| Total Value: | $293,340 | | |
| Tax Area: | 5 - OL-140 |
| CERFD | CURRENT EXPENSE REFUND 010 | 0.0000000000 | $293,340 | $293,340 | $0.00 | | |
| CURREXP | CURRENT EXPENSE 010 | 1.0175366760 | $293,340 | $293,340 | $298.48 | | |
| HUMNSERV | HUMAN SERVICES 119 | 0.0250000000 | $293,340 | $293,340 | $7.33 | | |
| SLDREL | SOLDIERS RELIEF 121 | 0.0155990005 | $293,340 | $293,340 | $4.58 | | |
| EMERGSER | EMS 147 | 0.3792580840 | $293,340 | $293,340 | $111.25 | | |
| EMSRFD | EMS REFUND 147 | 0.0000000000 | $293,340 | $293,340 | $0.00 | | |
| PORTRFD | PORT REFUND 640 | 0.0000000000 | $293,340 | $293,340 | $0.00 | | |
| PORTWWGEN | PORT OF WW 640 | 0.2460186015 | $293,340 | $293,340 | $72.17 | | |
| SD140BOND | SD #140 BOND 764 | 0.8342371393 | $293,340 | $293,340 | $244.72 | | |
| SD140GEN | SD #140 GENERAL 760 | 2.0646500647 | $293,340 | $293,340 | $605.64 | | |
| ST2 | STATE SCHOOL PART 2 600 | 0.8131451643 | $293,340 | $293,340 | $238.53 | | |
| STATESCHL | STATE SCHOOL 600 | 1.5158548041 | $293,340 | $293,340 | $444.66 | | |
| STREFUND | STATE REFUND LEVY 603 | 0.0000000000 | $293,340 | $293,340 | $0.00 | | |
| CWWBOND | C OF WW BOND 643 | 0.2760494372 | $293,340 | $293,340 | $80.98 | | |
| CWWGEN | CITY OF WW 631 | 1.6100204973 | $293,340 | $293,340 | $472.28 | | |
| CWWRFD | CITY OF WALLA WALLA REFUND 631 | 0.0000000000 | $293,340 | $293,340 | $0.00 | | |
| | Total Tax Rate: | 8.7973694689 | | | | | |
| | | | | Taxes w/Current Exemptions: | $2,580.62 | | |
| | | | | Taxes w/o Exemptions: | $2,580.62 | | |
Improvement / Building
| Improvement #1: | RESIDENTIAL | State Code: | 11 | 1166.0 sqft | Value: | $249,780 |
| Exterior Wall: | STUCCO | Heating/Cooling: | WARM & COOLED AIR | | Number of Bathrooms: | 2 | Number of Bedrooms: | 2 | | Plumbing: | 10 | Roof Covering: | SLATE |
|
| | Type | Description | Class CD | Sub Class CD | Year Built | Area |
| | MA | Main Area | 1 | 30 | 1920 | 1166.0 |
| | SI1 | SITE IMPROVEMENT | 1 | 30 | 1920 | 1.5 |
| | BASE | BASEMENT | 1 | 30 | 1920 | 1166.0 |
| | BPF | BASEMENT -PARTITIONED FINISH | 1 | 30 | 1920 | 1166.0 |
| | DTG | Detached Garage | 1 | 30 | 1920 | 520.0 |
| | RPS | PORCH W/STEPS,ROOF | 1 | 30 | 1920 | 20.0 |
| | OPS | OPEN PORCH W/STEPS | 1 | 30 | 1920 | 24.0 |
Sketch
Property Image
Land
| 1 | RES 1 | Converted: Residential | 0.1600 | 6969.00 | 0.00 | 0.00 | 1.00 | $43,560 | $0 |
Roll Value History
| 2026 | N/A | N/A | N/A | N/A | N/A |
| 2025 | $220,000 | $69,690 | $0 | $289,690 | $289,690 |
| 2024 | $200,000 | $69,690 | $0 | $269,690 | $269,690 |
| 2023 | $249,780 | $43,560 | $0 | $293,340 | $293,340 |
| 2022 | $249,780 | $43,560 | $0 | $293,340 | $293,340 |
| 2021 | $192,140 | $43,560 | $0 | $235,700 | $235,700 |
| 2020 | $147,800 | $43,560 | $0 | $191,360 | $191,360 |
| 2019 | $147,800 | $43,560 | $0 | $191,360 | $191,360 |
| 2018 | $147,800 | $43,560 | $0 | $191,360 | $191,360 |
| 2017 | $150,030 | $27,900 | $0 | $177,930 | $177,930 |
| 2016 | $142,890 | $27,900 | $0 | $170,790 | $170,790 |
| 2015 | $129,900 | $27,900 | $0 | $157,800 | $157,800 |
| 2014 | $121,400 | $27,900 | $0 | $149,300 | $149,300 |
| 2013 | $121,400 | $27,900 | $0 | $149,300 | $149,300 |
| 2012 | $121,400 | $27,900 | $0 | $0 | $0 |
| 2011 | $121,400 | $27,900 | $0 | $0 | $0 |
| 2010 | $114,300 | $27,900 | $0 | $0 | $0 |
| 2009 | $130,100 | $27,900 | $0 | $0 | $0 |
| 2008 | $108,200 | $27,900 | $0 | $0 | $0 |
| 2007 | $108,200 | $27,900 | $0 | $0 | $0 |
Deed and Sales History
| 1 | 12/13/2023 | SWD | STATUTORY WARRANTY DEED | HILTON WESLEY A & GRACE R | SMITH RILEY & KAREN | | | $290,000.00 | 146923 | 2023-07247 |
| 2 | 09/15/2015 | SWD | STATUTORY WARRANTY DEED | SNYDER ARTHUR D & RENAE S | HILTON WESLEY A & GRACE R | | | $183,000.00 | 128818 | 2015-08086 |
| 3 | 11/20/1991 | WARRANTY D | WARRANTY DEED | | | | | $62,700.00 | 0 | 1929-108185 |
Payout Agreement
| No payout information available.. |