Property
Account |
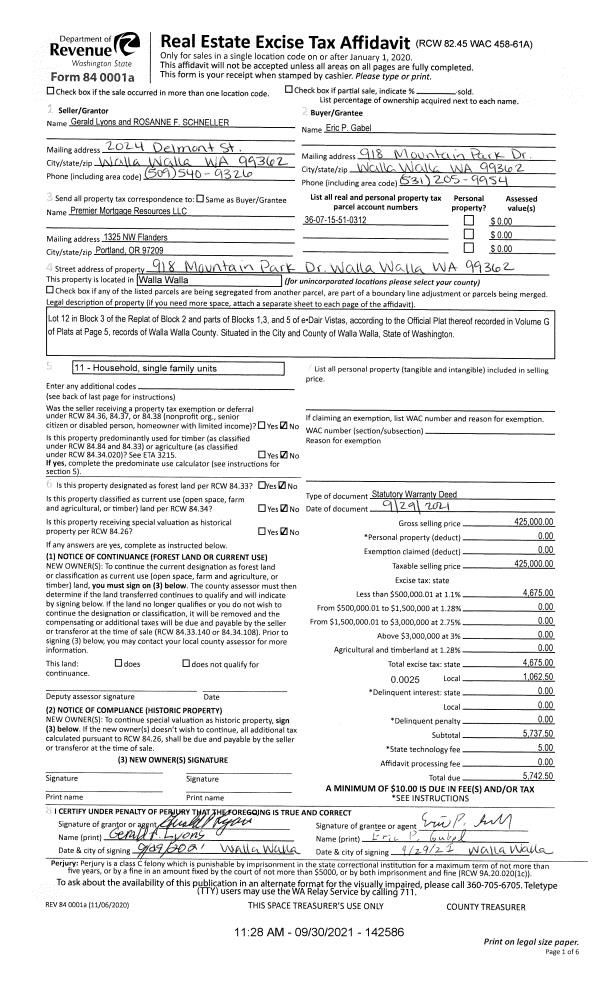
| Property ID: | 5521 | Abbreviated Legal Description: | EDAIR VISTAS REPLAT LOT 12 BLK 3 |
| Parcel Number: | 360715510312 | Agent Code: | |
| Type: | Real | | |
| Tax Area: | 5 - OL-140 | Land Use Code | 11 |
| Open Space: | N | DFL | N |
| Historic Property: | N | Remodel Property: | N |
| Multi-Family Redevelopment: | N | | |
| Township: | 7 | Section: | 15 |
| Range: | 36 |
Location |
| Address: | 918 MOUNTAIN PARK DR WA 99362 | Mapsco: | |
| Neighborhood: | A-SFR | Map ID: | |
| Neighborhood CD: | 313011 |
Owner |
| Name: | GABEL ERIC P | Owner ID: | 70348 |
| Mailing Address: | 918 MOUNTAIN PARK DR WALLA WALLA, WA 99362 | % Ownership: | 100.0000000000% |
| | | Exemptions: | |
Taxes and Assessment Details
Values
| (+) Improvement Homesite Value: | + | $0 | |
| (+) Improvement Non-Homesite Value: | + | $345,790 | |
| (+) Land Homesite Value: | + | $0 | |
| (+) Land Non-Homesite Value: | + | $90,000 | |
| (+) Curr Use (HS): | + | $0 | $0 |
| (+) Curr Use (NHS): | + | $0 | $0 |
| | | -------------------------- | |
| (=) Market Value: | = | $435,790 | |
| (–) Productivity Loss: | – | $0 | |
| | | -------------------------- | |
| (=) Subtotal: | = | $435,790 | |
| (+) Senior Appraised Value: | + | $0 | |
| (+) Non-Senior Appraised Value: | + | $435,790 | |
| | | -------------------------- | |
| (=) Total Appraised Value: | = | $435,790 | |
| (–) Senior Exemption Loss: | – | $0 | |
| (–) Exemption Loss: | – | $0 | |
| | | -------------------------- | |
| (=) Taxable Value: | = | $435,790 | |
Taxing Jurisdiction
| Owner: | GABEL ERIC P | | |
| % Ownership: | 100.0000000000% | | |
| Total Value: | $435,790 | | |
| Tax Area: | 5 - OL-140 |
| CERFD | CURRENT EXPENSE REFUND 010 | 0.0000000000 | $435,790 | $435,790 | $0.00 | | |
| CURREXP | CURRENT EXPENSE 010 | 1.0175366760 | $435,790 | $435,790 | $443.43 | | |
| HUMNSERV | HUMAN SERVICES 119 | 0.0250000000 | $435,790 | $435,790 | $10.89 | | |
| SLDREL | SOLDIERS RELIEF 121 | 0.0155990005 | $435,790 | $435,790 | $6.80 | | |
| EMERGSER | EMS 147 | 0.3792580840 | $435,790 | $435,790 | $165.28 | | |
| EMSRFD | EMS REFUND 147 | 0.0000000000 | $435,790 | $435,790 | $0.00 | | |
| PORTRFD | PORT REFUND 640 | 0.0000000000 | $435,790 | $435,790 | $0.00 | | |
| PORTWWGEN | PORT OF WW 640 | 0.2460186015 | $435,790 | $435,790 | $107.21 | | |
| SD140BOND | SD #140 BOND 764 | 0.8342371393 | $435,790 | $435,790 | $363.55 | | |
| SD140GEN | SD #140 GENERAL 760 | 2.0646500647 | $435,790 | $435,790 | $899.75 | | |
| ST2 | STATE SCHOOL PART 2 600 | 0.8131451643 | $435,790 | $435,790 | $354.36 | | |
| STATESCHL | STATE SCHOOL 600 | 1.5158548041 | $435,790 | $435,790 | $660.59 | | |
| STREFUND | STATE REFUND LEVY 603 | 0.0000000000 | $435,790 | $435,790 | $0.00 | | |
| CWWBOND | C OF WW BOND 643 | 0.2760494372 | $435,790 | $435,790 | $120.30 | | |
| CWWGEN | CITY OF WW 631 | 1.6100204973 | $435,790 | $435,790 | $701.63 | | |
| CWWRFD | CITY OF WALLA WALLA REFUND 631 | 0.0000000000 | $435,790 | $435,790 | $0.00 | | |
| | Total Tax Rate: | 8.7973694689 | | | | | |
| | | | | Taxes w/Current Exemptions: | $3,833.79 | | |
| | | | | Taxes w/o Exemptions: | $3,833.79 | | |
Improvement / Building
| Improvement #1: | RESIDENTIAL | State Code: | 11 | 1800.0 sqft | Value: | $345,790 |
| Exterior Wall: | PLYWOOD | Heating/Cooling: | WARM & COOLED AIR | | Number of Bathrooms: | 4 | Number of Bedrooms: | 3 | | Plumbing: | 17 | Roof Covering: | COMP SHINGLE |
|
| | Type | Description | Class CD | Sub Class CD | Year Built | Area |
| | MA | Main Area | 4 | 35 | 1976 | 1800.0 |
| | UPFL | Upper Floor (included in main area) | 4 | 35 | 1976 | 672.0 |
| | SI1 | SITE IMPROVEMENT | 4 | 35 | 1976 | 4.0 |
| | BASE | BASEMENT | 4 | 35 | 1976 | 756.0 |
| | BPF | BASEMENT -PARTITIONED FINISH | 4 | 35 | 1976 | 756.0 |
| | GFP | GAS FIREPLACE | 4 | 35 | 1976 | 1.0 |
| | ATG | Attached Garage | 4 | 35 | 1976 | 484.0 |
| | RPC | OPEN PORCH W/ROOF , CEILED | 4 | 35 | 1976 | 30.0 |
| | WOD | Wood Deck | 4 | 35 | 1976 | 372.0 |
Sketch
Property Image
Land
| 1 | RES 1 | Converted: Residential | 0.2820 | 12285.00 | 0.00 | 0.00 | 1.00 | $90,000 | $0 |
Roll Value History
| 2026 | N/A | N/A | N/A | N/A | N/A |
| 2025 | $345,790 | $90,000 | $0 | $435,790 | $435,790 |
| 2024 | $345,790 | $90,000 | $0 | $435,790 | $435,790 |
| 2023 | $345,790 | $90,000 | $0 | $435,790 | $435,790 |
| 2022 | $314,350 | $90,000 | $0 | $404,350 | $404,350 |
| 2021 | $243,710 | $55,000 | $0 | $298,710 | $298,710 |
| 2020 | $203,090 | $55,000 | $0 | $258,090 | $258,090 |
| 2019 | $203,090 | $55,000 | $0 | $258,090 | $258,090 |
| 2018 | $203,090 | $55,000 | $0 | $258,090 | $258,090 |
| 2017 | $193,420 | $55,000 | $0 | $248,420 | $248,420 |
| 2016 | $184,210 | $55,000 | $0 | $239,210 | $239,210 |
| 2015 | $146,900 | $55,000 | $0 | $201,900 | $201,900 |
| 2014 | $146,900 | $55,000 | $0 | $201,900 | $201,900 |
| 2013 | $146,900 | $55,000 | $0 | $201,900 | $201,900 |
| 2012 | $146,900 | $55,000 | $0 | $0 | $0 |
| 2011 | $182,500 | $55,000 | $0 | $0 | $0 |
| 2010 | $176,000 | $40,000 | $0 | $0 | $0 |
| 2009 | $200,000 | $40,000 | $0 | $0 | $0 |
| 2008 | $168,700 | $40,000 | $0 | $0 | $0 |
| 2007 | $168,700 | $40,000 | $0 | $0 | $0 |
Deed and Sales History
| 1 | 09/30/2021 | SWD | STATUTORY WARRANTY DEED | LYONS GERALD | GABEL ERIC P | | | $425,000.00 | 142586 | 2021-11964 |
| 2 | 03/25/2011 | QCD | QUIT CLAIM DEED | SCHNELLER, ROSANNE F | LYONS, GERALD | | | | 119929 | 2011-02566 |
| 3 | 04/01/2005 | QCD | QUIT CLAIM DEED | SCHNELLER, ROSANNE F | SCHNELLER, ROSANNE F | | | | 107138 | 2005-03712 |
| 4 | 07/31/1998 | WARRANTY D | WARRANTY DEED | | | | | $179,900.00 | 90977 | 2709-808728 |
Payout Agreement
| No payout information available.. |