Property
Account |
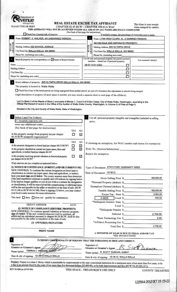
| Property ID: | 5514 | Abbreviated Legal Description: | EDAIR VISTAS REPLAT LOT 2 BLK 3 |
| Parcel Number: | 360715510302 | Agent Code: | |
| Type: | Real | | |
| Tax Area: | 5 - OL-140 | Land Use Code | 11 |
| Open Space: | N | DFL | N |
| Historic Property: | N | Remodel Property: | N |
| Multi-Family Redevelopment: | N | | |
| Township: | 7 | Section: | 15 |
| Range: | 36 |
Location |
| Address: | 945 OLYMPIA DR WA 99362 | Mapsco: | |
| Neighborhood: | A-SFR | Map ID: | |
| Neighborhood CD: | 313011 |
Owner |
| Name: | MILLER JASON | Owner ID: | 61408 |
| Mailing Address: | 945 OLYMPIA DR WALLA WALLA, WA 99362 | % Ownership: | 100.0000000000% |
| | | Exemptions: | |
Taxes and Assessment Details
Property Tax Information as of
04/19/2026
Click on "Statement Details" to expand or collapse a tax statement.
* Please enter a valid date ** Please enter a valid date *
Statement Details |
| | TOTAL: | $0.00 | $0.00 | $0.00 | $0.00 | $0.00 | $0.00 |
|
| | $0.00 | $0.00 | $0.00 | $0.00 | $0.00 | $0.00 |
Values
| (+) Improvement Homesite Value: | + | $0 | |
| (+) Improvement Non-Homesite Value: | + | $291,760 | |
| (+) Land Homesite Value: | + | $0 | |
| (+) Land Non-Homesite Value: | + | $90,000 | |
| (+) Curr Use (HS): | + | $0 | $0 |
| (+) Curr Use (NHS): | + | $0 | $0 |
| | | -------------------------- | |
| (=) Market Value: | = | $381,760 | |
| (–) Productivity Loss: | – | $0 | |
| | | -------------------------- | |
| (=) Subtotal: | = | $381,760 | |
| (+) Senior Appraised Value: | + | $0 | |
| (+) Non-Senior Appraised Value: | + | $381,760 | |
| | | -------------------------- | |
| (=) Total Appraised Value: | = | $381,760 | |
| (–) Senior Exemption Loss: | – | $0 | |
| (–) Exemption Loss: | – | $0 | |
| | | -------------------------- | |
| (=) Taxable Value: | = | $381,760 | |
Taxing Jurisdiction
| Owner: | MILLER JASON | | |
| % Ownership: | 100.0000000000% | | |
| Total Value: | $381,760 | | |
| Tax Area: | 5 - OL-140 |
| CERFD | CURRENT EXPENSE REFUND 010 | 0.0000000000 | $381,760 | $381,760 | $0.00 | | |
| CURREXP | CURRENT EXPENSE 010 | 1.0175366760 | $381,760 | $381,760 | $388.45 | | |
| HUMNSERV | HUMAN SERVICES 119 | 0.0250000000 | $381,760 | $381,760 | $9.54 | | |
| SLDREL | SOLDIERS RELIEF 121 | 0.0155990005 | $381,760 | $381,760 | $5.96 | | |
| EMERGSER | EMS 147 | 0.3792580840 | $381,760 | $381,760 | $144.79 | | |
| EMSRFD | EMS REFUND 147 | 0.0000000000 | $381,760 | $381,760 | $0.00 | | |
| PORTRFD | PORT REFUND 640 | 0.0000000000 | $381,760 | $381,760 | $0.00 | | |
| PORTWWGEN | PORT OF WW 640 | 0.2460186015 | $381,760 | $381,760 | $93.92 | | |
| SD140BOND | SD #140 BOND 764 | 0.8342371393 | $381,760 | $381,760 | $318.48 | | |
| SD140GEN | SD #140 GENERAL 760 | 2.0646500647 | $381,760 | $381,760 | $788.20 | | |
| ST2 | STATE SCHOOL PART 2 600 | 0.8131451643 | $381,760 | $381,760 | $310.43 | | |
| STATESCHL | STATE SCHOOL 600 | 1.5158548041 | $381,760 | $381,760 | $578.69 | | |
| STREFUND | STATE REFUND LEVY 603 | 0.0000000000 | $381,760 | $381,760 | $0.00 | | |
| CWWBOND | C OF WW BOND 643 | 0.2760494372 | $381,760 | $381,760 | $105.38 | | |
| CWWGEN | CITY OF WW 631 | 1.6100204973 | $381,760 | $381,760 | $614.64 | | |
| CWWRFD | CITY OF WALLA WALLA REFUND 631 | 0.0000000000 | $381,760 | $381,760 | $0.00 | | |
| | Total Tax Rate: | 8.7973694689 | | | | | |
| | | | | Taxes w/Current Exemptions: | $3,358.48 | | |
| | | | | Taxes w/o Exemptions: | $3,358.48 | | |
Improvement / Building
| Improvement #1: | RESIDENTIAL | State Code: | 11 | 1296.0 sqft | Value: | $291,760 |
| Exterior Wall: | SIDING | Heating/Cooling: | WARM & COOLED AIR | | Number of Bathrooms: | 3 | Number of Bedrooms: | 5 | | Plumbing: | 12 | Roof Covering: | COMP SHINGLE |
|
| | Type | Description | Class CD | Sub Class CD | Year Built | Area |
| | MA | Main Area | 1 | 30 | 1973 | 1296.0 |
| | SI1 | SITE IMPROVEMENT | 1 | 30 | 1973 | 2.0 |
| | BASE | BASEMENT | 1 | 30 | 1973 | 1296.0 |
| | BPF | BASEMENT -PARTITIONED FINISH | 1 | 30 | 1973 | 1296.0 |
| | ATG | Attached Garage | 1 | 30 | 1973 | 528.0 |
| | WOD | Wood Deck | 1 | 30 | 1973 | 143.0 |
| | S1F | Single One Story Fireplace | 1 | 30 | 1973 | 1.0 |
| | OUT | OUTSIDE BASEMENT ENTRY | 1 | 30 | 1973 | 1.0 |
| | RPC | OPEN PORCH W/ROOF , CEILED | 1 | 30 | 1973 | 24.0 |
Sketch
Property Image
Land
| 1 | RES 1 | Converted: Residential | 0.2934 | 12780.00 | 0.00 | 0.00 | 1.00 | $90,000 | $0 |
Roll Value History
| 2026 | N/A | N/A | N/A | N/A | N/A |
| 2025 | $291,760 | $90,000 | $0 | $381,760 | $381,760 |
| 2024 | $291,760 | $90,000 | $0 | $381,760 | $381,760 |
| 2023 | $291,760 | $90,000 | $0 | $381,760 | $381,760 |
| 2022 | $291,760 | $90,000 | $0 | $381,760 | $381,760 |
| 2021 | $239,420 | $55,000 | $0 | $294,420 | $294,420 |
| 2020 | $199,520 | $55,000 | $0 | $254,520 | $254,520 |
| 2019 | $199,520 | $55,000 | $0 | $254,520 | $254,520 |
| 2018 | $153,480 | $55,000 | $0 | $208,480 | $208,480 |
| 2017 | $139,520 | $55,000 | $0 | $194,520 | $194,520 |
| 2016 | $132,880 | $55,000 | $0 | $187,880 | $187,880 |
| 2015 | $124,500 | $55,000 | $0 | $179,500 | $179,500 |
| 2014 | $124,500 | $55,000 | $0 | $179,500 | $179,500 |
| 2013 | $124,500 | $55,000 | $0 | $179,500 | $179,500 |
| 2012 | $151,300 | $55,000 | $0 | $0 | $0 |
| 2011 | $151,300 | $55,000 | $0 | $0 | $0 |
| 2010 | $131,900 | $40,000 | $0 | $0 | $0 |
| 2009 | $151,000 | $40,000 | $0 | $0 | $0 |
| 2008 | $143,500 | $40,000 | $0 | $0 | $0 |
| 2007 | $143,500 | $40,000 | $0 | $0 | $0 |
Deed and Sales History
| 1 | 07/31/2017 | SWD | STATUTORY WARRANTY DEED | CLARK LYNN IRISH III | MILLER JASON | | | $325,000.00 | 132880 | 2017-05835 |
| 2 | 10/19/2012 | WARRANTY D | WARRANTY DEED | WALKER, ROBERT K | CLARK, LYNN IRISH III | | | $180,000.00 | 122844 | 2012-09238 |
| 3 | 10/19/2012 | QCD | QUIT CLAIM DEED | CLARK, TIA | CLARK, LYNN IRISH III | | | $0.00 | 122845 | 2012-09239 |
| 4 | 12/13/2000 | WARRANTY D | WARRANTY DEED | | | | | $132,500.00 | 96303 | 3050-011771 |
Payout Agreement
| No payout information available.. |