Property
Account |
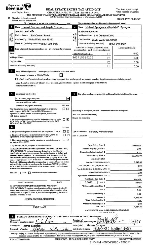
| Property ID: | 5510 | Abbreviated Legal Description: | EDAIR VISTAS REPLAT LOT 15 BLK 2 |
| Parcel Number: | 360715510215 | Agent Code: | |
| Type: | Real | | |
| Tax Area: | 5 - OL-140 | Land Use Code | 11 |
| Open Space: | N | DFL | N |
| Historic Property: | N | Remodel Property: | N |
| Multi-Family Redevelopment: | N | | |
| Township: | 7 | Section: | 15 |
| Range: | 36 |
Location |
| Address: | 934 OLYMPIA DR WA 99362 | Mapsco: | |
| Neighborhood: | A-SFR | Map ID: | |
| Neighborhood CD: | 313011 |
Owner |
| Name: | SPRAGUE MICHAEL & MARIAH D | Owner ID: | 67897 |
| Mailing Address: | 934 OLYMPIA DR WALLA WALLA, WA 99362 | % Ownership: | 100.0000000000% |
| | | Exemptions: | |
Taxes and Assessment Details
Property Tax Information as of
02/21/2026
Click on "Statement Details" to expand or collapse a tax statement.
* Please enter a valid date ** Please enter a valid date *
Statement Details |
| | TOTAL: | $0.00 | $0.00 | $0.00 | $0.00 | $0.00 | $0.00 |
|
| | $0.00 | $0.00 | $0.00 | $0.00 | $0.00 | $0.00 |
Values
| (+) Improvement Homesite Value: | + | $0 | |
| (+) Improvement Non-Homesite Value: | + | $344,510 | |
| (+) Land Homesite Value: | + | $0 | |
| (+) Land Non-Homesite Value: | + | $90,000 | |
| (+) Curr Use (HS): | + | $0 | $0 |
| (+) Curr Use (NHS): | + | $0 | $0 |
| | | -------------------------- | |
| (=) Market Value: | = | $434,510 | |
| (–) Productivity Loss: | – | $0 | |
| | | -------------------------- | |
| (=) Subtotal: | = | $434,510 | |
| (+) Senior Appraised Value: | + | $0 | |
| (+) Non-Senior Appraised Value: | + | $434,510 | |
| | | -------------------------- | |
| (=) Total Appraised Value: | = | $434,510 | |
| (–) Senior Exemption Loss: | – | $0 | |
| (–) Exemption Loss: | – | $0 | |
| | | -------------------------- | |
| (=) Taxable Value: | = | $434,510 | |
Taxing Jurisdiction
| Owner: | SPRAGUE MICHAEL & MARIAH D | | |
| % Ownership: | 100.0000000000% | | |
| Total Value: | $434,510 | | |
| Tax Area: | 5 - OL-140 |
| CERFD | CURRENT EXPENSE REFUND 010 | 0.0000000000 | $434,510 | $434,510 | $0.00 | | |
| CURREXP | CURRENT EXPENSE 010 | 1.0175366760 | $434,510 | $434,510 | $442.13 | | |
| HUMNSERV | HUMAN SERVICES 119 | 0.0250000000 | $434,510 | $434,510 | $10.86 | | |
| SLDREL | SOLDIERS RELIEF 121 | 0.0155990005 | $434,510 | $434,510 | $6.78 | | |
| EMERGSER | EMS 147 | 0.3792580840 | $434,510 | $434,510 | $164.79 | | |
| EMSRFD | EMS REFUND 147 | 0.0000000000 | $434,510 | $434,510 | $0.00 | | |
| PORTRFD | PORT REFUND 640 | 0.0000000000 | $434,510 | $434,510 | $0.00 | | |
| PORTWWGEN | PORT OF WW 640 | 0.2460186015 | $434,510 | $434,510 | $106.90 | | |
| SD140BOND | SD #140 BOND 764 | 0.8342371393 | $434,510 | $434,510 | $362.48 | | |
| SD140GEN | SD #140 GENERAL 760 | 2.0646500647 | $434,510 | $434,510 | $897.11 | | |
| ST2 | STATE SCHOOL PART 2 600 | 0.8131451643 | $434,510 | $434,510 | $353.32 | | |
| STATESCHL | STATE SCHOOL 600 | 1.5158548041 | $434,510 | $434,510 | $658.65 | | |
| STREFUND | STATE REFUND LEVY 603 | 0.0000000000 | $434,510 | $434,510 | $0.00 | | |
| CWWBOND | C OF WW BOND 643 | 0.2760494372 | $434,510 | $434,510 | $119.95 | | |
| CWWGEN | CITY OF WW 631 | 1.6100204973 | $434,510 | $434,510 | $699.57 | | |
| CWWRFD | CITY OF WALLA WALLA REFUND 631 | 0.0000000000 | $434,510 | $434,510 | $0.00 | | |
| | Total Tax Rate: | 8.7973694689 | | | | | |
| | | | | Taxes w/Current Exemptions: | $3,822.54 | | |
| | | | | Taxes w/o Exemptions: | $3,822.54 | | |
Improvement / Building
| Improvement #1: | RESIDENTIAL | State Code: | 11 | 2118.0 sqft | Value: | $344,510 |
| Exterior Wall: | PLYWOOD | Foundation: | SLAB FOUNDATION | | Heating/Cooling: | WARM & COOLED AIR | Number of Bathrooms: | 3 | | Number of Bedrooms: | 4 | Plumbing: | 11 | | Roof Covering: | COMP SHINGLE |   |   |
|
| | Type | Description | Class CD | Sub Class CD | Year Built | Area |
| | MA | Main Area | 3 | 35 | 1973 | 2118.0 |
| | UPFL | Upper Floor (included in main area) | 3 | 35 | 1973 | 660.0 |
| | SI1 | SITE IMPROVEMENT | 3 | 35 | 1973 | 2.0 |
| | S1F | Single One Story Fireplace | 3 | 35 | 1973 | 1.0 |
| | BIG | Built In Garage | 3 | 35 | 1973 | 502.0 |
| | RPS | PORCH W/STEPS,ROOF | 3 | 35 | 1973 | 24.0 |
| | WOD | Wood Deck | 3 | 35 | 1973 | 240.0 |
Sketch
Property Image
Land
| 1 | RES 1 | Converted: Residential | 0.2264 | 9864.00 | 0.00 | 0.00 | 1.00 | $90,000 | $0 |
Roll Value History
| 2026 | N/A | N/A | N/A | N/A | N/A |
| 2025 | $344,510 | $90,000 | $0 | $434,510 | $434,510 |
| 2024 | $344,510 | $90,000 | $0 | $434,510 | $434,510 |
| 2023 | $344,510 | $90,000 | $0 | $434,510 | $434,510 |
| 2022 | $313,190 | $90,000 | $0 | $403,190 | $403,190 |
| 2021 | $292,110 | $55,000 | $0 | $347,110 | $347,110 |
| 2020 | $254,010 | $55,000 | $0 | $309,010 | $309,010 |
| 2019 | $254,010 | $55,000 | $0 | $309,010 | $309,010 |
| 2018 | $220,880 | $55,000 | $0 | $275,880 | $275,880 |
| 2017 | $176,700 | $55,000 | $0 | $231,700 | $231,700 |
| 2016 | $176,700 | $55,000 | $0 | $231,700 | $231,700 |
| 2015 | $180,670 | $55,000 | $0 | $235,670 | $235,670 |
| 2014 | $157,100 | $55,000 | $0 | $212,100 | $212,100 |
| 2013 | $157,100 | $55,000 | $0 | $212,100 | $212,100 |
| 2012 | $168,300 | $55,000 | $0 | $0 | $0 |
| 2011 | $168,300 | $55,000 | $0 | $0 | $0 |
| 2010 | $186,200 | $40,000 | $0 | $0 | $0 |
| 2009 | $224,500 | $40,000 | $0 | $0 | $0 |
| 2008 | $190,000 | $40,000 | $0 | $0 | $0 |
| 2007 | $148,300 | $40,000 | $0 | $0 | $0 |
Deed and Sales History
| 1 | 09/04/2020 | SWD | STATUTORY WARRANTY DEED | EVENSEN JARROD A & ANGELA L | SPRAGUE MICHAEL & MARIAH D | | | $359,000.00 | 139851 | 2020-08998 |
| 2 | 07/25/2005 | WARRANTY D | WARRANTY DEED | DUBLINSKI, LAWRENCE H & ROSE A | EVENSEN, JARROD A | | | $189,000.00 | 108036 | 2005-09036 |
| 3 | 03/07/1989 | WARRANTY D | WARRANTY DEED | | | | | $67,900.00 | 0 | 1758-901401 |
Payout Agreement
| No payout information available.. |