Property
Account |
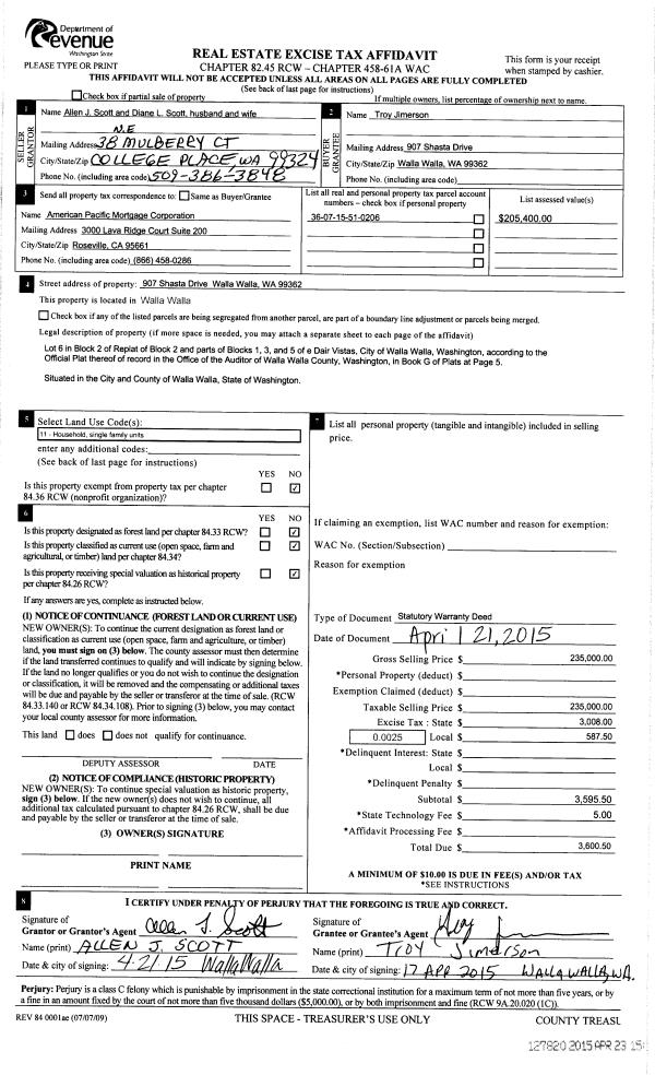
| Property ID: | 5504 | Abbreviated Legal Description: | EDAIR VISTAS REPLAT LOT 6 BLK 2 |
| Parcel Number: | 360715510206 | Agent Code: | |
| Type: | Real | | |
| Tax Area: | 5 - OL-140 | Land Use Code | 11 |
| Open Space: | N | DFL | N |
| Historic Property: | N | Remodel Property: | N |
| Multi-Family Redevelopment: | N | | |
| Township: | 7 | Section: | 15 |
| Range: | 36 |
Location |
| Address: | 907 SHASTA DR WA 99362 | Mapsco: | |
| Neighborhood: | A-SFR | Map ID: | |
| Neighborhood CD: | 313011 |
Owner |
| Name: | PETERSON AMIE M & NATHAN D | Owner ID: | 66194 |
| Mailing Address: | 907 SHASTA DR WALLA WALLA, WA 99362 | % Ownership: | 100.0000000000% |
| | | Exemptions: | |
Taxes and Assessment Details
Values
| (+) Improvement Homesite Value: | + | $0 | |
| (+) Improvement Non-Homesite Value: | + | $300,710 | |
| (+) Land Homesite Value: | + | $0 | |
| (+) Land Non-Homesite Value: | + | $90,000 | |
| (+) Curr Use (HS): | + | $0 | $0 |
| (+) Curr Use (NHS): | + | $0 | $0 |
| | | -------------------------- | |
| (=) Market Value: | = | $390,710 | |
| (–) Productivity Loss: | – | $0 | |
| | | -------------------------- | |
| (=) Subtotal: | = | $390,710 | |
| (+) Senior Appraised Value: | + | $0 | |
| (+) Non-Senior Appraised Value: | + | $390,710 | |
| | | -------------------------- | |
| (=) Total Appraised Value: | = | $390,710 | |
| (–) Senior Exemption Loss: | – | $0 | |
| (–) Exemption Loss: | – | $0 | |
| | | -------------------------- | |
| (=) Taxable Value: | = | $390,710 | |
Taxing Jurisdiction
| Owner: | PETERSON AMIE M & NATHAN D | | |
| % Ownership: | 100.0000000000% | | |
| Total Value: | $390,710 | | |
| Tax Area: | 5 - OL-140 |
| CERFD | CURRENT EXPENSE REFUND 010 | 0.0000000000 | $390,710 | $390,710 | $0.00 | | |
| CURREXP | CURRENT EXPENSE 010 | 1.0175366760 | $390,710 | $390,710 | $397.56 | | |
| HUMNSERV | HUMAN SERVICES 119 | 0.0250000000 | $390,710 | $390,710 | $9.77 | | |
| SLDREL | SOLDIERS RELIEF 121 | 0.0155990005 | $390,710 | $390,710 | $6.09 | | |
| EMERGSER | EMS 147 | 0.3792580840 | $390,710 | $390,710 | $148.18 | | |
| EMSRFD | EMS REFUND 147 | 0.0000000000 | $390,710 | $390,710 | $0.00 | | |
| PORTRFD | PORT REFUND 640 | 0.0000000000 | $390,710 | $390,710 | $0.00 | | |
| PORTWWGEN | PORT OF WW 640 | 0.2460186015 | $390,710 | $390,710 | $96.12 | | |
| SD140BOND | SD #140 BOND 764 | 0.8342371393 | $390,710 | $390,710 | $325.94 | | |
| SD140GEN | SD #140 GENERAL 760 | 2.0646500647 | $390,710 | $390,710 | $806.68 | | |
| ST2 | STATE SCHOOL PART 2 600 | 0.8131451643 | $390,710 | $390,710 | $317.70 | | |
| STATESCHL | STATE SCHOOL 600 | 1.5158548041 | $390,710 | $390,710 | $592.26 | | |
| STREFUND | STATE REFUND LEVY 603 | 0.0000000000 | $390,710 | $390,710 | $0.00 | | |
| CWWBOND | C OF WW BOND 643 | 0.2760494372 | $390,710 | $390,710 | $107.86 | | |
| CWWGEN | CITY OF WW 631 | 1.6100204973 | $390,710 | $390,710 | $629.05 | | |
| CWWRFD | CITY OF WALLA WALLA REFUND 631 | 0.0000000000 | $390,710 | $390,710 | $0.00 | | |
| | Total Tax Rate: | 8.7973694689 | | | | | |
| | | | | Taxes w/Current Exemptions: | $3,437.21 | | |
| | | | | Taxes w/o Exemptions: | $3,437.21 | | |
Improvement / Building
| Improvement #1: | RESIDENTIAL | State Code: | 11 | 1294.0 sqft | Value: | $300,710 |
| Exterior Wall: | SIDING | Heating/Cooling: | WARM & COOLED AIR | | Number of Bathrooms: | 3 | Number of Bedrooms: | 4 | | Plumbing: | 12 | Roof Covering: | COMP SHINGLE |
|
| | Type | Description | Class CD | Sub Class CD | Year Built | Area |
| | MA | Main Area | 1 | 30 | 1969 | 1294.0 |
| | SI1 | SITE IMPROVEMENT | 1 | 30 | 1969 | 2.0 |
| | BASE | BASEMENT | 1 | 30 | 1969 | 1294.0 |
| | BPF | BASEMENT -PARTITIONED FINISH | 1 | 30 | 1969 | 1294.0 |
| | ATG | Attached Garage | 1 | 30 | 1969 | 840.0 |
| | D2F | Double 2 Story Fireplace | 1 | 30 | 1969 | 1.0 |
| | UTST | Utility Storage Shed | 1 | 30 | 1969 | 80.0 |
| | RPC | OPEN PORCH W/ROOF , CEILED | 1 | 30 | 1969 | 110.0 |
Sketch
Property Image
Land
| 1 | RES 1 | Converted: Residential | 0.2244 | 9775.00 | 0.00 | 0.00 | 1.00 | $90,000 | $0 |
Roll Value History
| 2026 | N/A | N/A | N/A | N/A | N/A |
| 2025 | $300,710 | $90,000 | $0 | $390,710 | $390,710 |
| 2024 | $300,710 | $90,000 | $0 | $390,710 | $390,710 |
| 2023 | $300,710 | $90,000 | $0 | $390,710 | $390,710 |
| 2022 | $300,710 | $90,000 | $0 | $390,710 | $390,710 |
| 2021 | $237,850 | $55,000 | $0 | $292,850 | $292,850 |
| 2020 | $198,210 | $55,000 | $0 | $253,210 | $253,210 |
| 2019 | $198,210 | $55,000 | $0 | $253,210 | $253,210 |
| 2018 | $188,770 | $55,000 | $0 | $243,770 | $85,168 |
| 2017 | $188,770 | $55,000 | $0 | $243,770 | $85,168 |
| 2016 | $171,610 | $55,000 | $0 | $226,610 | $85,168 |
| 2015 | $157,920 | $55,000 | $0 | $212,920 | $85,168 |
| 2014 | $150,400 | $55,000 | $0 | $205,400 | $205,400 |
| 2013 | $150,400 | $55,000 | $0 | $205,400 | $205,400 |
| 2012 | $150,400 | $55,000 | $0 | $0 | $0 |
| 2011 | $150,400 | $55,000 | $0 | $0 | $0 |
| 2010 | $174,200 | $40,000 | $0 | $0 | $0 |
| 2009 | $198,000 | $40,000 | $0 | $0 | $0 |
| 2008 | $143,100 | $40,000 | $0 | $0 | $0 |
| 2007 | $143,100 | $40,000 | $0 | $0 | $0 |
Deed and Sales History
| 1 | 11/07/2019 | SWD | STATUTORY WARRANTY DEED | JIMERSON TROY | PETERSON AMIE M & NATHAN D | | | $299,000.00 | 138040 | 2019-09142 |
| 2 | 04/23/2015 | SWD | STATUTORY WARRANTY DEED | SCOTT ALLEN J & DIANE L | JIMERSON TROY | | | $235,000.00 | 127820 | 2015-03284 |
| 3 | 08/17/1999 | WARRANTY D | WARRANTY DEED | | | | | $135,000.00 | 93417 | 2889-909634 |
Payout Agreement
| No payout information available.. |