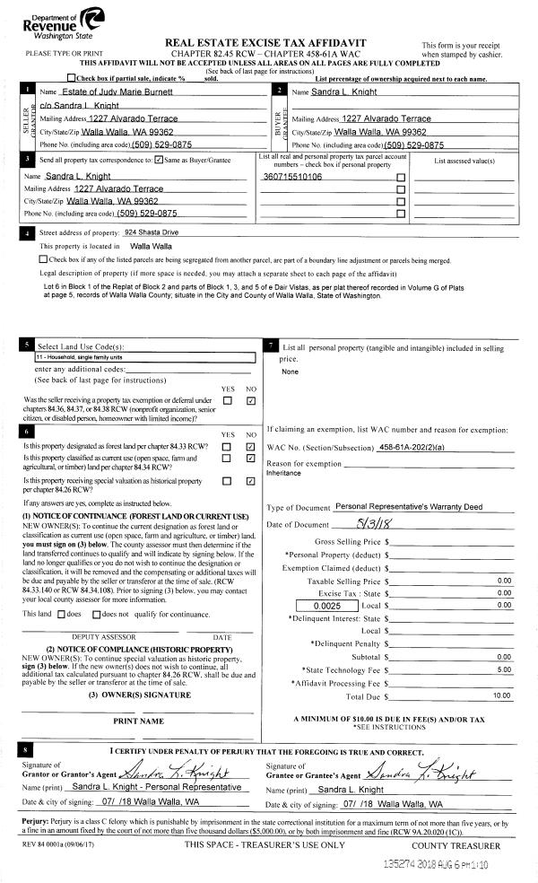
Property
Account |
| Property ID: | 5499 | Abbreviated Legal Description: | EDAIR VISTAS REPLAT LOT 6 BLK 1 |
| Parcel Number: | 360715510106 | Agent Code: | |
| Type: | Real | | |
| Tax Area: | 5 - OL-140 | Land Use Code | 11 |
| Open Space: | N | DFL | N |
| Historic Property: | N | Remodel Property: | N |
| Multi-Family Redevelopment: | N | | |
| Township: | 7 | Section: | 15 |
| Range: | 36 |
Location |
| Address: | 924 SHASTA DR WA 99362 | Mapsco: | |
| Neighborhood: | A-SFR | Map ID: | |
| Neighborhood CD: | 313011 |
Owner |
| Name: | KNIGHT SANDRA L | Owner ID: | 63715 |
| Mailing Address: | 1227 ALVARADO TERRACE WALLA WALLA, WA 99362 | % Ownership: | 100.0000000000% |
| | | Exemptions: | |
Taxes and Assessment Details
Property Tax Information as of
02/21/2026
Click on "Statement Details" to expand or collapse a tax statement.
* Please enter a valid date ** Please enter a valid date *
Statement Details |
| | TOTAL: | $0.00 | $0.00 | $0.00 | $0.00 | $0.00 | $0.00 |
|
| | $0.00 | $0.00 | $0.00 | $0.00 | $0.00 | $0.00 |
Values
| (+) Improvement Homesite Value: | + | $349,500 | |
| (+) Improvement Non-Homesite Value: | + | $0 | |
| (+) Land Homesite Value: | + | $90,000 | |
| (+) Land Non-Homesite Value: | + | $0 | |
| (+) Curr Use (HS): | + | $0 | $0 |
| (+) Curr Use (NHS): | + | $0 | $0 |
| | | -------------------------- | |
| (=) Market Value: | = | $439,500 | |
| (–) Productivity Loss: | – | $0 | |
| | | -------------------------- | |
| (=) Subtotal: | = | $439,500 | |
| (+) Senior Appraised Value: | + | $0 | |
| (+) Non-Senior Appraised Value: | + | $439,500 | |
| | | -------------------------- | |
| (=) Total Appraised Value: | = | $439,500 | |
| (–) Senior Exemption Loss: | – | $0 | |
| (–) Exemption Loss: | – | $0 | |
| | | -------------------------- | |
| (=) Taxable Value: | = | $439,500 | |
Taxing Jurisdiction
| Owner: | KNIGHT SANDRA L | | |
| % Ownership: | 100.0000000000% | | |
| Total Value: | $439,500 | | |
| Tax Area: | 5 - OL-140 |
| CERFD | CURRENT EXPENSE REFUND 010 | 0.0000000000 | $439,500 | $439,500 | $0.00 | | |
| CURREXP | CURRENT EXPENSE 010 | 1.0175366760 | $439,500 | $439,500 | $447.21 | | |
| HUMNSERV | HUMAN SERVICES 119 | 0.0250000000 | $439,500 | $439,500 | $10.99 | | |
| SLDREL | SOLDIERS RELIEF 121 | 0.0155990005 | $439,500 | $439,500 | $6.86 | | |
| EMERGSER | EMS 147 | 0.3792580840 | $439,500 | $439,500 | $166.68 | | |
| EMSRFD | EMS REFUND 147 | 0.0000000000 | $439,500 | $439,500 | $0.00 | | |
| PORTRFD | PORT REFUND 640 | 0.0000000000 | $439,500 | $439,500 | $0.00 | | |
| PORTWWGEN | PORT OF WW 640 | 0.2460186015 | $439,500 | $439,500 | $108.13 | | |
| SD140BOND | SD #140 BOND 764 | 0.8342371393 | $439,500 | $439,500 | $366.65 | | |
| SD140GEN | SD #140 GENERAL 760 | 2.0646500647 | $439,500 | $439,500 | $907.41 | | |
| ST2 | STATE SCHOOL PART 2 600 | 0.8131451643 | $439,500 | $439,500 | $357.38 | | |
| STATESCHL | STATE SCHOOL 600 | 1.5158548041 | $439,500 | $439,500 | $666.22 | | |
| STREFUND | STATE REFUND LEVY 603 | 0.0000000000 | $439,500 | $439,500 | $0.00 | | |
| CWWBOND | C OF WW BOND 643 | 0.2760494372 | $439,500 | $439,500 | $121.32 | | |
| CWWGEN | CITY OF WW 631 | 1.6100204973 | $439,500 | $439,500 | $707.60 | | |
| CWWRFD | CITY OF WALLA WALLA REFUND 631 | 0.0000000000 | $439,500 | $439,500 | $0.00 | | |
| | Total Tax Rate: | 8.7973694689 | | | | | |
| | | | | Taxes w/Current Exemptions: | $3,866.45 | | |
| | | | | Taxes w/o Exemptions: | $3,866.45 | | |
Improvement / Building
| Improvement #1: | RESIDENTIAL | State Code: | 11 | 2016.0 sqft | Value: | $349,500 |
| Exterior Wall: | PLYWOOD | Foundation: | SLAB FOUNDATION | | Heating/Cooling: | WARM & COOLED AIR | Number of Bathrooms: | 3 | | Number of Bedrooms: | 3 | Plumbing: | 12 | | Roof Covering: | COMP SHINGLE |   |   |
|
| | Type | Description | Class CD | Sub Class CD | Year Built | Area |
| | MA | Main Area | 3 | 35 | 1968 | 2016.0 |
| | UPFL | Upper Floor (included in main area) | 3 | 35 | 1968 | 672.0 |
| | SI1 | SITE IMPROVEMENT | 3 | 35 | 1968 | 2.0 |
| | S1F | Single One Story Fireplace | 3 | 35 | 1968 | 1.0 |
| | ATG | Attached Garage | 1 | 35 | 1968 | 784.0 |
| | RPC | OPEN PORCH W/ROOF , CEILED | 3 | 35 | 1968 | 96.0 |
| | CPC | COVERED CARPORT/PATIO | 3 | 35 | 1968 | 372.0 |
Sketch
Property Image
Land
| 1 | RES 1 | Converted: Residential | 0.2376 | 10350.00 | 0.00 | 0.00 | 1.00 | $90,000 | $0 |
Roll Value History
| 2026 | N/A | N/A | N/A | N/A | N/A |
| 2025 | $349,500 | $90,000 | $0 | $439,500 | $439,500 |
| 2024 | $349,500 | $90,000 | $0 | $439,500 | $439,500 |
| 2023 | $349,500 | $90,000 | $0 | $439,500 | $439,500 |
| 2022 | $317,730 | $90,000 | $0 | $407,730 | $407,730 |
| 2021 | $278,800 | $55,000 | $0 | $333,800 | $333,800 |
| 2020 | $214,460 | $55,000 | $0 | $269,460 | $269,460 |
| 2019 | $214,460 | $55,000 | $0 | $269,460 | $269,460 |
| 2018 | $194,960 | $55,000 | $0 | $249,960 | $249,960 |
| 2017 | $194,960 | $55,000 | $0 | $249,960 | $71,480 |
| 2016 | $169,530 | $55,000 | $0 | $224,530 | $71,480 |
| 2015 | $142,260 | $55,000 | $0 | $197,260 | $71,480 |
| 2014 | $123,700 | $55,000 | $0 | $178,700 | $71,480 |
| 2013 | $123,700 | $55,000 | $0 | $178,700 | $71,480 |
| 2012 | $153,900 | $55,000 | $0 | $0 | $0 |
| 2011 | $153,900 | $55,000 | $0 | $0 | $0 |
| 2010 | $145,900 | $40,000 | $0 | $0 | $0 |
| 2009 | $177,400 | $40,000 | $0 | $0 | $0 |
| 2008 | $149,000 | $40,000 | $0 | $0 | $0 |
| 2007 | $149,000 | $40,000 | $0 | $0 | $0 |
Deed and Sales History
| 1 | 08/06/2018 | DPR | DEED OF PERSONAL REPRESENTATIVE | BURNETT JUDY M | KNIGHT SANDRA L | | | $0.00 | 135274 | 2018-06422 |
| 2 | 02/15/1973 | WARRANTY D | WARRANTY DEED | | | | | $35,000.00 | 0 | 2052-7297 |
Payout Agreement
| No payout information available.. |