Property
Account |
| Property ID: | 5475 | Abbreviated Legal Description: | EDAIR VISTAS LOT 11 BLK 4 |
| Parcel Number: | 360715500411 | Agent Code: | |
| Type: | Real | | |
| Tax Area: | 5 - OL-140 | Land Use Code | 11 |
| Open Space: | N | DFL | N |
| Historic Property: | N | Remodel Property: | N |
| Multi-Family Redevelopment: | N | | |
| Township: | 7 | Section: | 15 |
| Range: | 36 |
Location |
| Address: | 964 OLYMPIA DR WA 99362 | Mapsco: | |
| Neighborhood: | A-SFR | Map ID: | |
| Neighborhood CD: | 313011 |
Owner |
| Name: | SMITH COLE MICHAEL & BONNIE JEAN MITCHELL | Owner ID: | 71820 |
| Mailing Address: | 964 OLYMPIA ST WALLA WALLA, WA 99362 | % Ownership: | 100.0000000000% |
| | | Exemptions: | |
Taxes and Assessment Details
Values
| (+) Improvement Homesite Value: | + | $0 | |
| (+) Improvement Non-Homesite Value: | + | $349,950 | |
| (+) Land Homesite Value: | + | $0 | |
| (+) Land Non-Homesite Value: | + | $90,000 | |
| (+) Curr Use (HS): | + | $0 | $0 |
| (+) Curr Use (NHS): | + | $0 | $0 |
| | | -------------------------- | |
| (=) Market Value: | = | $439,950 | |
| (–) Productivity Loss: | – | $0 | |
| | | -------------------------- | |
| (=) Subtotal: | = | $439,950 | |
| (+) Senior Appraised Value: | + | $0 | |
| (+) Non-Senior Appraised Value: | + | $439,950 | |
| | | -------------------------- | |
| (=) Total Appraised Value: | = | $439,950 | |
| (–) Senior Exemption Loss: | – | $0 | |
| (–) Exemption Loss: | – | $0 | |
| | | -------------------------- | |
| (=) Taxable Value: | = | $439,950 | |
Taxing Jurisdiction
| Owner: | SMITH COLE MICHAEL & BONNIE JEAN MITCHELL | | |
| % Ownership: | 100.0000000000% | | |
| Total Value: | $439,950 | | |
| Tax Area: | 5 - OL-140 |
| CERFD | CURRENT EXPENSE REFUND 010 | 0.0000000000 | $439,950 | $439,950 | $0.00 | | |
| CURREXP | CURRENT EXPENSE 010 | 1.0175366760 | $439,950 | $439,950 | $447.67 | | |
| HUMNSERV | HUMAN SERVICES 119 | 0.0250000000 | $439,950 | $439,950 | $11.00 | | |
| SLDREL | SOLDIERS RELIEF 121 | 0.0155990005 | $439,950 | $439,950 | $6.86 | | |
| EMERGSER | EMS 147 | 0.3792580840 | $439,950 | $439,950 | $166.85 | | |
| EMSRFD | EMS REFUND 147 | 0.0000000000 | $439,950 | $439,950 | $0.00 | | |
| PORTRFD | PORT REFUND 640 | 0.0000000000 | $439,950 | $439,950 | $0.00 | | |
| PORTWWGEN | PORT OF WW 640 | 0.2460186015 | $439,950 | $439,950 | $108.24 | | |
| SD140BOND | SD #140 BOND 764 | 0.8342371393 | $439,950 | $439,950 | $367.02 | | |
| SD140GEN | SD #140 GENERAL 760 | 2.0646500647 | $439,950 | $439,950 | $908.34 | | |
| ST2 | STATE SCHOOL PART 2 600 | 0.8131451643 | $439,950 | $439,950 | $357.74 | | |
| STATESCHL | STATE SCHOOL 600 | 1.5158548041 | $439,950 | $439,950 | $666.90 | | |
| STREFUND | STATE REFUND LEVY 603 | 0.0000000000 | $439,950 | $439,950 | $0.00 | | |
| CWWBOND | C OF WW BOND 643 | 0.2760494372 | $439,950 | $439,950 | $121.45 | | |
| CWWGEN | CITY OF WW 631 | 1.6100204973 | $439,950 | $439,950 | $708.33 | | |
| CWWRFD | CITY OF WALLA WALLA REFUND 631 | 0.0000000000 | $439,950 | $439,950 | $0.00 | | |
| | Total Tax Rate: | 8.7973694689 | | | | | |
| | | | | Taxes w/Current Exemptions: | $3,870.40 | | |
| | | | | Taxes w/o Exemptions: | $3,870.40 | | |
Improvement / Building
| Improvement #1: | RESIDENTIAL | State Code: | 11 | 1520.0 sqft | Value: | $349,950 |
| Exterior Wall: | SIDING | Heating/Cooling: | WARM & COOLED AIR | | Number of Bathrooms: | 2 | Number of Bedrooms: | 3 | | Plumbing: | 12 | Roof Covering: | COMP SHINGLE |
|
| | Type | Description | Class CD | Sub Class CD | Year Built | Area |
| | MA | Main Area | 1 | 40 | 1965 | 1520.0 |
| | SI1 | SITE IMPROVEMENT | 1 | 40 | 1965 | 2.0 |
| | ATG | Attached Garage | 1 | 40 | 1965 | 700.0 |
| | TOOL | TOOL SHED | 1 | 40 | 1965 | 72.0 |
| | RPC | OPEN PORCH W/ROOF , CEILED | 1 | 40 | 1965 | 408.0 |
| | RPC | OPEN PORCH W/ROOF , CEILED | 1 | 40 | 1965 | 28.0 |
| | CPC | COVERED CARPORT/PATIO | 1 | 40 | 1965 | 340.0 |
Sketch
Property Image
Land
| 1 | RES 1 | Converted: Residential | 0.2341 | 10198.00 | 0.00 | 0.00 | 1.00 | $90,000 | $0 |
Roll Value History
| 2026 | N/A | N/A | N/A | N/A | N/A |
| 2025 | $349,950 | $90,000 | $0 | $439,950 | $439,950 |
| 2024 | $349,950 | $90,000 | $0 | $439,950 | $439,950 |
| 2023 | $349,950 | $90,000 | $0 | $439,950 | $439,950 |
| 2022 | $349,950 | $90,000 | $0 | $439,950 | $439,950 |
| 2021 | $263,940 | $55,000 | $0 | $318,940 | $318,940 |
| 2020 | $219,950 | $55,000 | $0 | $274,950 | $274,950 |
| 2019 | $219,950 | $55,000 | $0 | $274,950 | $274,950 |
| 2018 | $209,480 | $55,000 | $0 | $264,480 | $264,480 |
| 2017 | $199,500 | $55,000 | $0 | $254,500 | $254,500 |
| 2016 | $190,000 | $55,000 | $0 | $245,000 | $245,000 |
| 2015 | $118,500 | $55,000 | $0 | $173,500 | $173,500 |
| 2014 | $118,500 | $55,000 | $0 | $173,500 | $173,500 |
| 2013 | $118,500 | $55,000 | $0 | $173,500 | $173,500 |
| 2012 | $110,200 | $55,000 | $0 | $0 | $0 |
| 2011 | $128,500 | $55,000 | $0 | $0 | $0 |
| 2010 | $116,800 | $40,000 | $0 | $0 | $0 |
| 2009 | $134,200 | $40,000 | $0 | $0 | $0 |
| 2008 | $111,500 | $40,000 | $0 | $0 | $0 |
| 2007 | $111,500 | $40,000 | $0 | $0 | $0 |
Deed and Sales History
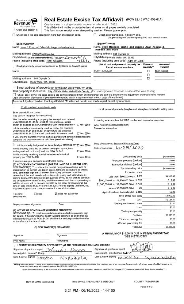
| 1 | 06/16/2022 | SWD | STATUTORY WARRANTY DEED | KRUPP JAMES F & DEBORAH L | SMITH COLE MICHAEL & BONNIE JEAN MITCHELL | | | $450,000.00 | 144160 | 2022-05124 |
| 2 | 06/12/2020 | SWD | STATUTORY WARRANTY DEED | MOSS BRITNEY & RANDE | KRUPP JAMES F & DEBORAH L | | | $325,000.00 | 139269 | 2020-05341 |
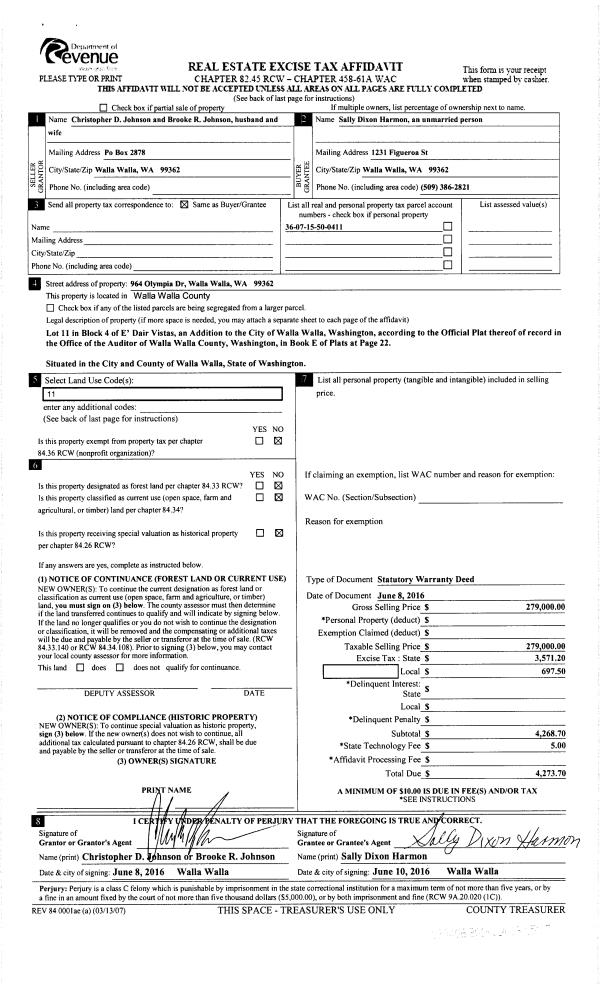
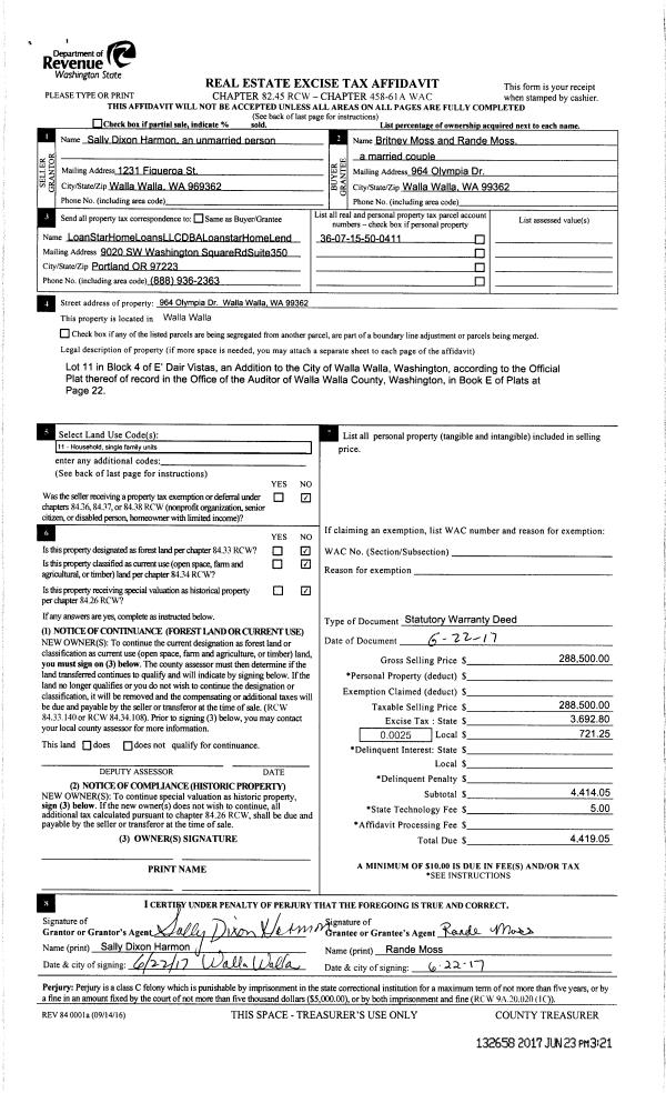
| 3 | 06/23/2017 | SWD | STATUTORY WARRANTY DEED | HARMON SALLY DIXON | MOSS BRITNEY & RANDE | | | $288,500.00 | 132658 | 2017-04825 |
| 4 | 06/13/2016 | SWD | STATUTORY WARRANTY DEED | JOHNSON CHRISTOPHER & BROOKE | HARMON SALLY DIXON | | | $279,000.00 | 130406 | 2016-04473 |
| 5 | 05/06/1999 | WARRANTY D | WARRANTY DEED | | | | | $83,500.00 | 92702 | 2839-905498 |
Payout Agreement
| No payout information available.. |