Property
Account |
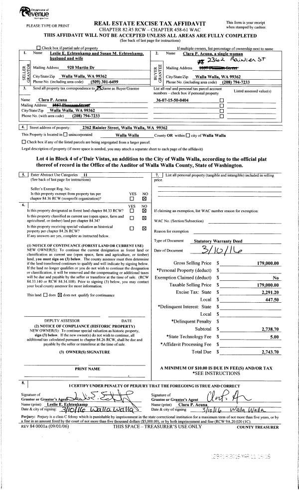
| Property ID: | 5473 | Abbreviated Legal Description: | EDAIR VISTAS LOT 4 BLK 4 |
| Parcel Number: | 360715500404 | Agent Code: | |
| Type: | Real | | |
| Tax Area: | 5 - OL-140 | Land Use Code | 11 |
| Open Space: | N | DFL | N |
| Historic Property: | N | Remodel Property: | N |
| Multi-Family Redevelopment: | N | | |
| Township: | 7 | Section: | 15 |
| Range: | 36 |
Location |
| Address: | 2362 RAINIER ST WA 99362 | Mapsco: | |
| Neighborhood: | A-SFR | Map ID: | |
| Neighborhood CD: | 313011 |
Owner |
| Name: | ACUNA CLARA P | Owner ID: | 58379 |
| Mailing Address: | 2362 RAINIER ST WALLA WALLA, WA 99362 | % Ownership: | 100.0000000000% |
| | | Exemptions: | |
Taxes and Assessment Details
Property Tax Information as of
04/19/2026
Click on "Statement Details" to expand or collapse a tax statement.
* Please enter a valid date ** Please enter a valid date *
Statement Details |
| | TOTAL: | $0.00 | $0.00 | $0.00 | $0.00 | $0.00 | $0.00 |
|
| | $0.00 | $0.00 | $0.00 | $0.00 | $0.00 | $0.00 |
Values
| (+) Improvement Homesite Value: | + | $0 | |
| (+) Improvement Non-Homesite Value: | + | $242,670 | |
| (+) Land Homesite Value: | + | $0 | |
| (+) Land Non-Homesite Value: | + | $90,000 | |
| (+) Curr Use (HS): | + | $0 | $0 |
| (+) Curr Use (NHS): | + | $0 | $0 |
| | | -------------------------- | |
| (=) Market Value: | = | $332,670 | |
| (–) Productivity Loss: | – | $0 | |
| | | -------------------------- | |
| (=) Subtotal: | = | $332,670 | |
| (+) Senior Appraised Value: | + | $0 | |
| (+) Non-Senior Appraised Value: | + | $332,670 | |
| | | -------------------------- | |
| (=) Total Appraised Value: | = | $332,670 | |
| (–) Senior Exemption Loss: | – | $0 | |
| (–) Exemption Loss: | – | $0 | |
| | | -------------------------- | |
| (=) Taxable Value: | = | $332,670 | |
Taxing Jurisdiction
| Owner: | ACUNA CLARA P | | |
| % Ownership: | 100.0000000000% | | |
| Total Value: | $332,670 | | |
| Tax Area: | 5 - OL-140 |
| CERFD | CURRENT EXPENSE REFUND 010 | 0.0000000000 | $332,670 | $332,670 | $0.00 | | |
| CURREXP | CURRENT EXPENSE 010 | 1.0175366760 | $332,670 | $332,670 | $338.50 | | |
| HUMNSERV | HUMAN SERVICES 119 | 0.0250000000 | $332,670 | $332,670 | $8.32 | | |
| SLDREL | SOLDIERS RELIEF 121 | 0.0155990005 | $332,670 | $332,670 | $5.19 | | |
| EMERGSER | EMS 147 | 0.3792580840 | $332,670 | $332,670 | $126.17 | | |
| EMSRFD | EMS REFUND 147 | 0.0000000000 | $332,670 | $332,670 | $0.00 | | |
| PORTRFD | PORT REFUND 640 | 0.0000000000 | $332,670 | $332,670 | $0.00 | | |
| PORTWWGEN | PORT OF WW 640 | 0.2460186015 | $332,670 | $332,670 | $81.84 | | |
| SD140BOND | SD #140 BOND 764 | 0.8342371393 | $332,670 | $332,670 | $277.53 | | |
| SD140GEN | SD #140 GENERAL 760 | 2.0646500647 | $332,670 | $332,670 | $686.85 | | |
| ST2 | STATE SCHOOL PART 2 600 | 0.8131451643 | $332,670 | $332,670 | $270.51 | | |
| STATESCHL | STATE SCHOOL 600 | 1.5158548041 | $332,670 | $332,670 | $504.28 | | |
| STREFUND | STATE REFUND LEVY 603 | 0.0000000000 | $332,670 | $332,670 | $0.00 | | |
| CWWBOND | C OF WW BOND 643 | 0.2760494372 | $332,670 | $332,670 | $91.83 | | |
| CWWGEN | CITY OF WW 631 | 1.6100204973 | $332,670 | $332,670 | $535.61 | | |
| CWWRFD | CITY OF WALLA WALLA REFUND 631 | 0.0000000000 | $332,670 | $332,670 | $0.00 | | |
| | Total Tax Rate: | 8.7973694689 | | | | | |
| | | | | Taxes w/Current Exemptions: | $2,926.63 | | |
| | | | | Taxes w/o Exemptions: | $2,926.63 | | |
Improvement / Building
| Improvement #1: | RESIDENTIAL | State Code: | 11 | 990.0 sqft | Value: | $242,670 |
| Exterior Wall: | SIDING | Heating/Cooling: | WARM & COOLED AIR | | Number of Bathrooms: | 2 | Number of Bedrooms: | 3 | | Plumbing: | 9 | Roof Covering: | COMP SHINGLE |
|
| | Type | Description | Class CD | Sub Class CD | Year Built | Area |
| | MA | Main Area | 1 | 30 | 1949 | 990.0 |
| | SI1 | SITE IMPROVEMENT | 1 | 30 | 1949 | 1.5 |
| | BASE | BASEMENT | 1 | 30 | 1949 | 990.0 |
| | BPF | BASEMENT -PARTITIONED FINISH | 1 | 30 | 1949 | 700.0 |
| | ATG | Attached Garage | 1 | 30 | 1949 | 280.0 |
| | OPS | OPEN PORCH W/STEPS | 1 | 30 | 1949 | 30.0 |
Sketch
Property Image
Land
| 1 | RES 1 | Converted: Residential | 0.2089 | 9100.00 | 0.00 | 0.00 | 1.00 | $90,000 | $0 |
Roll Value History
| 2026 | N/A | N/A | N/A | N/A | N/A |
| 2025 | $254,810 | $90,000 | $0 | $344,810 | $344,810 |
| 2024 | $242,670 | $90,000 | $0 | $332,670 | $332,670 |
| 2023 | $242,670 | $90,000 | $0 | $332,670 | $332,670 |
| 2022 | $220,610 | $90,000 | $0 | $310,610 | $310,610 |
| 2021 | $220,330 | $55,000 | $0 | $275,330 | $275,330 |
| 2020 | $151,950 | $55,000 | $0 | $206,950 | $206,950 |
| 2019 | $151,950 | $55,000 | $0 | $206,950 | $206,950 |
| 2018 | $121,560 | $55,000 | $0 | $176,560 | $176,560 |
| 2017 | $121,560 | $55,000 | $0 | $176,560 | $176,560 |
| 2016 | $115,770 | $55,000 | $0 | $170,770 | $170,770 |
| 2015 | $107,630 | $55,000 | $0 | $162,630 | $162,630 |
| 2014 | $102,500 | $55,000 | $0 | $157,500 | $157,500 |
| 2013 | $102,500 | $55,000 | $0 | $157,500 | $157,500 |
| 2012 | $90,800 | $55,000 | $0 | $0 | $0 |
| 2011 | $90,800 | $55,000 | $0 | $0 | $0 |
| 2010 | $112,400 | $40,000 | $0 | $0 | $0 |
| 2009 | $129,300 | $40,000 | $0 | $0 | $0 |
| 2008 | $95,400 | $40,000 | $0 | $0 | $0 |
| 2007 | $95,400 | $40,000 | $0 | $0 | $0 |
Deed and Sales History
| 1 | 03/11/2016 | SWD | STATUTORY WARRANTY DEED | ECHTENKAMP LESLIE E & SUSAN M | ACUNA CLARA P | | | $179,000.00 | 129818 | 2016-01880 |
| 2 | 04/01/1997 | WARRANTY D | WARRANTY DEED | | | | | $93,000.00 | 87907 | 2509-702825 |
Payout Agreement
| No payout information available.. |