Property
Account |
| Property ID: | 5461 | Abbreviated Legal Description: | EDAIR VISTAS LOT 4 BLK 1 |
| Parcel Number: | 360715500104 | Agent Code: | |
| Type: | Real | | |
| Tax Area: | 5 - OL-140 | Land Use Code | 11 |
| Open Space: | N | DFL | N |
| Historic Property: | N | Remodel Property: | N |
| Multi-Family Redevelopment: | N | | |
| Township: | 7 | Section: | 15 |
| Range: | 36 |
Location |
| Address: | 949 OLYMPIA DR WA 99362 | Mapsco: | |
| Neighborhood: | A-SFR | Map ID: | |
| Neighborhood CD: | 313011 |
Owner |
| Name: | TRAN SON TRUONG | Owner ID: | 71560 |
| Mailing Address: | 949 OLYMPIA DR WALLA WALLA, WA 99362 | % Ownership: | 100.0000000000% |
| | | Exemptions: | |
Taxes and Assessment Details
Property Tax Information as of
02/21/2026
Click on "Statement Details" to expand or collapse a tax statement.
* Please enter a valid date ** Please enter a valid date *
Statement Details |
| | TOTAL: | $0.00 | $0.00 | $0.00 | $0.00 | $0.00 | $0.00 |
|
| | $0.00 | $0.00 | $0.00 | $0.00 | $0.00 | $0.00 |
Values
| (+) Improvement Homesite Value: | + | $0 | |
| (+) Improvement Non-Homesite Value: | + | $294,790 | |
| (+) Land Homesite Value: | + | $0 | |
| (+) Land Non-Homesite Value: | + | $90,000 | |
| (+) Curr Use (HS): | + | $0 | $0 |
| (+) Curr Use (NHS): | + | $0 | $0 |
| | | -------------------------- | |
| (=) Market Value: | = | $384,790 | |
| (–) Productivity Loss: | – | $0 | |
| | | -------------------------- | |
| (=) Subtotal: | = | $384,790 | |
| (+) Senior Appraised Value: | + | $0 | |
| (+) Non-Senior Appraised Value: | + | $384,790 | |
| | | -------------------------- | |
| (=) Total Appraised Value: | = | $384,790 | |
| (–) Senior Exemption Loss: | – | $0 | |
| (–) Exemption Loss: | – | $0 | |
| | | -------------------------- | |
| (=) Taxable Value: | = | $384,790 | |
Taxing Jurisdiction
| Owner: | TRAN SON TRUONG | | |
| % Ownership: | 100.0000000000% | | |
| Total Value: | $384,790 | | |
| Tax Area: | 5 - OL-140 |
| CERFD | CURRENT EXPENSE REFUND 010 | 0.0000000000 | $384,790 | $384,790 | $0.00 | | |
| CURREXP | CURRENT EXPENSE 010 | 1.0175366760 | $384,790 | $384,790 | $391.54 | | |
| HUMNSERV | HUMAN SERVICES 119 | 0.0250000000 | $384,790 | $384,790 | $9.62 | | |
| SLDREL | SOLDIERS RELIEF 121 | 0.0155990005 | $384,790 | $384,790 | $6.00 | | |
| EMERGSER | EMS 147 | 0.3792580840 | $384,790 | $384,790 | $145.93 | | |
| EMSRFD | EMS REFUND 147 | 0.0000000000 | $384,790 | $384,790 | $0.00 | | |
| PORTRFD | PORT REFUND 640 | 0.0000000000 | $384,790 | $384,790 | $0.00 | | |
| PORTWWGEN | PORT OF WW 640 | 0.2460186015 | $384,790 | $384,790 | $94.67 | | |
| SD140BOND | SD #140 BOND 764 | 0.8342371393 | $384,790 | $384,790 | $321.01 | | |
| SD140GEN | SD #140 GENERAL 760 | 2.0646500647 | $384,790 | $384,790 | $794.46 | | |
| ST2 | STATE SCHOOL PART 2 600 | 0.8131451643 | $384,790 | $384,790 | $312.89 | | |
| STATESCHL | STATE SCHOOL 600 | 1.5158548041 | $384,790 | $384,790 | $583.29 | | |
| STREFUND | STATE REFUND LEVY 603 | 0.0000000000 | $384,790 | $384,790 | $0.00 | | |
| CWWBOND | C OF WW BOND 643 | 0.2760494372 | $384,790 | $384,790 | $106.22 | | |
| CWWGEN | CITY OF WW 631 | 1.6100204973 | $384,790 | $384,790 | $619.52 | | |
| CWWRFD | CITY OF WALLA WALLA REFUND 631 | 0.0000000000 | $384,790 | $384,790 | $0.00 | | |
| | Total Tax Rate: | 8.7973694689 | | | | | |
| | | | | Taxes w/Current Exemptions: | $3,385.15 | | |
| | | | | Taxes w/o Exemptions: | $3,385.15 | | |
Improvement / Building
| Improvement #1: | RESIDENTIAL | State Code: | 11 | 1592.0 sqft | Value: | $294,790 |
| Exterior Wall: | VINYL | Foundation: | SLAB FOUNDATION | | Heating/Cooling: | HEAT PUMP | Number of Bathrooms: | 2 | | Number of Bedrooms: | 3 | Plumbing: | 11 | | Roof Covering: | COMP SHINGLE |   |   |
|
| | Type | Description | Class CD | Sub Class CD | Year Built | Area |
| | MA | Main Area | 3 | 35 | 1974 | 1592.0 |
| | SI1 | SITE IMPROVEMENT | 3 | 35 | 1974 | 2.0 |
| | UPFL | Upper Floor (included in main area) | 3 | 35 | 1974 | 660.0 |
| | RPS | PORCH W/STEPS,ROOF | 3 | 35 | 1974 | 24.0 |
| | WOD | Wood Deck | 3 | 35 | 1974 | 432.0 |
| | S1F | Single One Story Fireplace | 3 | 35 | 1974 | 1.0 |
| | SMP | SWIMMING POOL | 3 | 35 | 1974 | 1.0 |
| | BIG | Built In Garage | 3 | 35 | 1974 | 500.0 |
Sketch
Property Image
Land
| 1 | RES 1 | Converted: Residential | 0.2575 | 11216.00 | 0.00 | 0.00 | 1.00 | $90,000 | $0 |
Roll Value History
| 2026 | N/A | N/A | N/A | N/A | N/A |
| 2025 | $309,530 | $90,000 | $0 | $399,530 | $399,530 |
| 2024 | $309,530 | $90,000 | $0 | $399,530 | $399,530 |
| 2023 | $294,790 | $90,000 | $0 | $384,790 | $384,790 |
| 2022 | $267,990 | $90,000 | $0 | $357,990 | $357,990 |
| 2021 | $223,800 | $55,000 | $0 | $278,800 | $278,800 |
| 2020 | $172,150 | $55,000 | $0 | $227,150 | $227,150 |
| 2019 | $172,150 | $55,000 | $0 | $227,150 | $227,150 |
| 2018 | $163,950 | $55,000 | $0 | $218,950 | $218,950 |
| 2017 | $163,950 | $55,000 | $0 | $218,950 | $218,950 |
| 2016 | $138,940 | $55,000 | $0 | $193,940 | $193,940 |
| 2015 | $138,800 | $55,000 | $0 | $193,800 | $193,800 |
| 2014 | $138,800 | $55,000 | $0 | $193,800 | $193,800 |
| 2013 | $138,800 | $55,000 | $0 | $193,800 | $193,800 |
| 2012 | $149,000 | $55,000 | $0 | $0 | $0 |
| 2011 | $149,000 | $55,000 | $0 | $0 | $0 |
| 2010 | $152,600 | $40,000 | $0 | $0 | $0 |
| 2009 | $185,300 | $40,000 | $0 | $0 | $0 |
| 2008 | $155,900 | $40,000 | $0 | $0 | $0 |
| 2007 | $155,900 | $40,000 | $0 | $0 | $0 |
Deed and Sales History
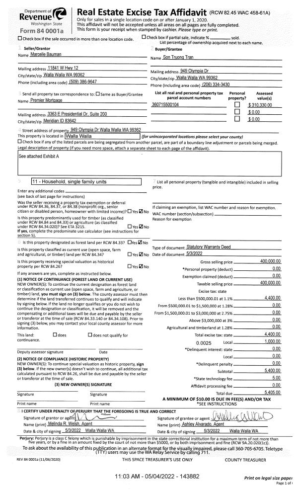
| 1 | 05/04/2022 | SWD | STATUTORY WARRANTY DEED | BAUMANN MARCELLE | TRAN SON TRUONG | | | $400,000.00 | 143882 | 2022-03802 |
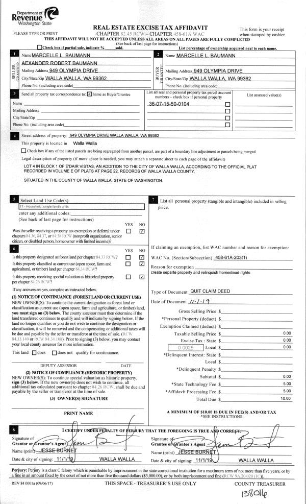
| 2 | 11/01/2019 | QCD | QUIT CLAIM DEED | BAUMANN ALEXANDER ROBERT | BAUMANN MARCELLE | | | | 138016 | 2019-08972 |
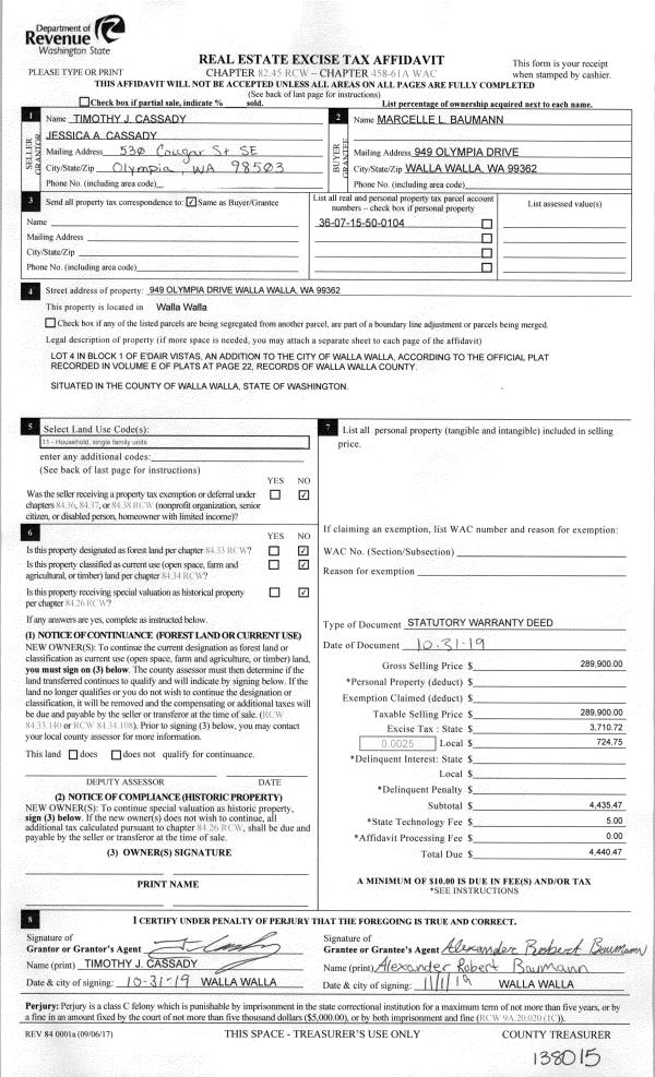
| 3 | 11/01/2019 | SWD | STATUTORY WARRANTY DEED | CASSADY TIMOTHY J & JESSICA A | BAUMANN MARCELLE | | | $289,900.00 | 138015 | 2019-08970 |
| 4 | 04/10/2017 | SWD | STATUTORY WARRANTY DEED | KEY RANDALL G | CASSADY TIMOTHY J & JESSICA A | | | $234,500.00 | 132176 | 2017-02685 |
| 5 | 04/07/2015 | SWD | STATUTORY WARRANTY DEED | SANDAU BRADLEY J & VERONICA | KEY RANDALL G | | | $175,000.00 | 127738 | 2015-02817 |
| 6 | 03/09/2005 | WARRANTY D | WARRANTY DEED | TUPPER, MICHAEL J & MARI L | SANDAU, BRADLEY & VERONICA | | | $196,000.00 | 106953 | 2005-02692 |
| 7 | 12/03/1991 | WARRANTY D | WARRANTY DEED | | | | | $68,000.00 | 0 | 1939-108468 |
Payout Agreement
| No payout information available.. |