Property
Account |
| Property ID: | 5436 | Abbreviated Legal Description: | 15-7-36 LOT 1 OF S/P (PTN TAX 1B WITHIN SW1/4) |
| Parcel Number: | 360715330007 | Agent Code: | |
| Type: | Real | | |
| Tax Area: | 5 - OL-140 | Land Use Code | 55 |
| Open Space: | N | DFL | N |
| Historic Property: | N | Remodel Property: | N |
| Multi-Family Redevelopment: | N | | |
| Township: | 7 | Section: | 15 |
| Range: | 36 |
Location |
| Address: | 606 N WILBUR AVE WA 99362 | Mapsco: | |
| Neighborhood: | Walla Walla Comm 2 | Map ID: | |
| Neighborhood CD: | 4303 |
Owner |
| Name: | LUM FAMILY INVESTMENTS LLC | Owner ID: | 69642 |
| Mailing Address: | 606 N WILBUR AVE WALLA WALLA, WA 99362 | % Ownership: | 100.0000000000% |
| | | Exemptions: | |
Taxes and Assessment Details
Property Tax Information as of
02/21/2026
Click on "Statement Details" to expand or collapse a tax statement.
* Please enter a valid date ** Please enter a valid date *
Statement Details |
| | TOTAL: | $0.00 | $0.00 | $0.00 | $0.00 | $0.00 | $0.00 |
|
| | $0.00 | $0.00 | $0.00 | $0.00 | $0.00 | $0.00 |
Values
| (+) Improvement Homesite Value: | + | $0 | |
| (+) Improvement Non-Homesite Value: | + | $3,290,200 | |
| (+) Land Homesite Value: | + | $0 | |
| (+) Land Non-Homesite Value: | + | $918,500 | |
| (+) Curr Use (HS): | + | $0 | $0 |
| (+) Curr Use (NHS): | + | $0 | $0 |
| | | -------------------------- | |
| (=) Market Value: | = | $4,208,700 | |
| (–) Productivity Loss: | – | $0 | |
| | | -------------------------- | |
| (=) Subtotal: | = | $4,208,700 | |
| (+) Senior Appraised Value: | + | $0 | |
| (+) Non-Senior Appraised Value: | + | $4,208,700 | |
| | | -------------------------- | |
| (=) Total Appraised Value: | = | $4,208,700 | |
| (–) Senior Exemption Loss: | – | $0 | |
| (–) Exemption Loss: | – | $0 | |
| | | -------------------------- | |
| (=) Taxable Value: | = | $4,208,700 | |
Taxing Jurisdiction
| Owner: | LUM FAMILY INVESTMENTS LLC | | |
| % Ownership: | 100.0000000000% | | |
| Total Value: | $4,208,700 | | |
| Tax Area: | 5 - OL-140 |
| CERFD | CURRENT EXPENSE REFUND 010 | 0.0000000000 | $4,208,700 | $4,208,700 | $0.00 | | |
| CURREXP | CURRENT EXPENSE 010 | 0.9851088983 | $4,208,700 | $4,208,700 | $4,146.03 | | |
| HUMNSERV | HUMAN SERVICES 119 | 0.0250000000 | $4,208,700 | $4,208,700 | $105.22 | | |
| SLDREL | SOLDIERS RELIEF 121 | 0.0155990000 | $4,208,700 | $4,208,700 | $65.65 | | |
| EMERGSER | EMS 147 | 0.3676811629 | $4,208,700 | $4,208,700 | $1,547.46 | | |
| EMSRFD | EMS REFUND 147 | 0.0000000000 | $4,208,700 | $4,208,700 | $0.00 | | |
| PORTRFD | PORT REFUND 640 | 0.0000000000 | $4,208,700 | $4,208,700 | $0.00 | | |
| PORTWWGEN | PORT OF WW 640 | 0.2344301070 | $4,208,700 | $4,208,700 | $986.65 | | |
| SD140BOND | SD #140 BOND 764 | 0.8032434458 | $4,208,700 | $4,208,700 | $3,380.61 | | |
| SD140CAP | SD #140 CAP 762 | 0.3840034221 | $4,208,700 | $4,208,700 | $1,616.16 | | |
| SD140GEN | SD #140 GENERAL 760 | 2.4999999996 | $4,208,700 | $4,208,700 | $10,521.75 | | |
| ST2 | STATE SCHOOL PART 2 600 | 0.8853714103 | $4,208,700 | $4,208,700 | $3,726.26 | | |
| STATESCHL | STATE SCHOOL 600 | 1.6424571473 | $4,208,700 | $4,208,700 | $6,912.61 | | |
| STREFUND | STATE REFUND LEVY 603 | 0.0000000000 | $4,208,700 | $4,208,700 | $0.00 | | |
| CWWBOND | C OF WW BOND 643 | 0.2642134255 | $4,208,700 | $4,208,700 | $1,112.00 | | |
| CWWGEN | CITY OF WW 631 | 1.6110494978 | $4,208,700 | $4,208,700 | $6,780.42 | | |
| CWWRFD | CITY OF WALLA WALLA REFUND 631 | 0.0000000000 | $4,208,700 | $4,208,700 | $0.00 | | |
| | Total Tax Rate: | 9.7181575166 | | | | | |
| | | | | Taxes w/Current Exemptions: | $40,900.82 | | |
| | | | | Taxes w/o Exemptions: | $40,900.82 | | |
Improvement / Building
| Improvement #1: | COMMERCIAL | State Code: | 55 | 35018.0 sqft | Value: | $3,290,200 |
| | Type | Description | Class CD | Sub Class CD | Year Built | Area |
| | MA | Main Area | D | * | 1975 | 35018.0 |
| | CPC | COVERED CARPORT/PATIO | 1 | 30 | 1975 | 1020.0 |
| | SI1 | SITE IMPROVEMENT | D | * | 1975 | 25.0 |
Sketch
Property Image
Land
| 1 | COM 1 | Converted: Commercial | 3.3400 | 145490.40 | 0.00 | 0.00 | 1.00 | $918,500 | $0 |
Roll Value History
| 2026 | N/A | N/A | N/A | N/A | N/A |
| 2025 | $3,290,200 | $918,500 | $0 | $4,208,700 | $4,208,700 |
| 2024 | $3,290,200 | $918,500 | $0 | $4,208,700 | $4,208,700 |
| 2023 | $3,283,700 | $918,500 | $0 | $4,202,200 | $4,202,200 |
| 2022 | $2,008,200 | $809,710 | $0 | $2,817,910 | $2,817,910 |
| 2021 | $2,008,200 | $809,710 | $0 | $2,817,910 | $2,817,910 |
| 2020 | $1,631,600 | $809,710 | $0 | $2,441,310 | $2,441,310 |
| 2019 | $1,631,600 | $809,710 | $0 | $2,441,310 | $2,441,310 |
| 2018 | $1,631,600 | $809,710 | $0 | $2,441,310 | $2,441,310 |
| 2017 | $1,631,600 | $809,710 | $0 | $2,441,310 | $2,441,310 |
| 2016 | $1,537,600 | $654,700 | $0 | $2,192,300 | $2,192,300 |
| 2015 | $1,537,600 | $654,700 | $0 | $2,192,300 | $2,192,300 |
| 2014 | $1,537,600 | $654,700 | $0 | $2,192,300 | $2,192,300 |
| 2013 | $1,537,600 | $654,700 | $0 | $2,192,300 | $2,192,300 |
| 2012 | $1,537,600 | $654,700 | $0 | $0 | $0 |
| 2011 | $1,598,300 | $654,700 | $0 | $0 | $0 |
| 2010 | $1,598,300 | $654,700 | $0 | $0 | $0 |
| 2009 | $1,598,300 | $654,700 | $0 | $0 | $0 |
| 2008 | $1,598,300 | $654,700 | $0 | $0 | $0 |
| 2007 | $817,300 | $654,700 | $0 | $0 | $0 |
Deed and Sales History
| 1 | 06/15/2021 | SWD | STATUTORY WARRANTY DEED | MCCURLEY WILBUR AVE PROPERTY LLC | LUM FAMILY INVESTMENTS LLC | | 2-PARCELS | $5,550,000.00 | 141809 | 2021-07314 |
|   | |
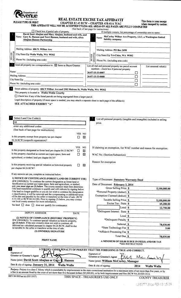
| 2 | 02/03/2014 | WARRANTY D | WARRANTY DEED | ABAJIAN D SCOTT & MARY | MCCURLEY WILBUR AVE PROPERTY LLC | | 2-PARCELS | $5,100,000.00 | 125377 | 2014-00864 |
|   | |
| 3 | 03/10/2004 | WARRANTY D | WARRANTY DEED | ABAJIAN, D SCOTT & MARY | ABAJIAN, D SCOTT & MARY | | | $108,167.00 | 104233 | 2004-02533 |
Payout Agreement
| No payout information available.. |