Property
Account |
| Property ID: | 5377 | Abbreviated Legal Description: | 10-7-36 NE1/4NE1/4 LESS RD; E1/2 OF NW1/4NE1/4 |
| Parcel Number: | 360710110001 | Agent Code: | |
| Type: | Real | | |
| Tax Area: | 100 - 140-8 | Land Use Code | 83 |
| Open Space: | Y | DFL | N |
| Historic Property: | N | Remodel Property: | N |
| Multi-Family Redevelopment: | N | | |
| Township: | 7 | Section: | 10 |
| Range: | 36 |
Location |
| Address: | WA 99362 | Mapsco: | |
| Neighborhood: | 0 Farm | Map ID: | |
| Neighborhood CD: | 3230 |
Owner |
| Name: | MINNICK LAND COMPANY LLC | Owner ID: | 33467 |
| Mailing Address: | 2440 MIDDLE WAITSBURG RD WALLA WALLA, WA 99362 | % Ownership: | 100.0000000000% |
| | | Exemptions: | |
Taxes and Assessment Details
Property Tax Information as of
02/21/2026
Click on "Statement Details" to expand or collapse a tax statement.
* Please enter a valid date ** Please enter a valid date *
Statement Details |
| | TOTAL: | $0.00 | $0.00 | $0.00 | $0.00 | $0.00 | $0.00 |
|
| | $0.00 | $0.00 | $0.00 | $0.00 | $0.00 | $0.00 |
Values
| (+) Improvement Homesite Value: | + | $0 | |
| (+) Improvement Non-Homesite Value: | + | $0 | |
| (+) Land Homesite Value: | + | $0 | |
| (+) Land Non-Homesite Value: | + | $0 | |
| (+) Curr Use (HS): | + | $0 | $0 |
| (+) Curr Use (NHS): | + | $384,150 | $73,460 |
| | | -------------------------- | |
| (=) Market Value: | = | $384,150 | |
| (–) Productivity Loss: | – | $310,690 | |
| | | -------------------------- | |
| (=) Subtotal: | = | $73,460 | |
| (+) Senior Appraised Value: | + | $0 | |
| (+) Non-Senior Appraised Value: | + | $73,460 | |
| | | -------------------------- | |
| (=) Total Appraised Value: | = | $73,460 | |
| (–) Senior Exemption Loss: | – | $0 | |
| (–) Exemption Loss: | – | $0 | |
| | | -------------------------- | |
| (=) Taxable Value: | = | $73,460 | |
Taxing Jurisdiction
| Owner: | MINNICK LAND COMPANY LLC | | |
| % Ownership: | 100.0000000000% | | |
| Total Value: | $384,150 | | |
| Tax Area: | 100 - 140-8 |
| CERFD | CURRENT EXPENSE REFUND 010 | 0.0000000000 | $73,460 | $73,460 | $0.00 | | |
| CURREXP | CURRENT EXPENSE 010 | 0.9851088983 | $73,460 | $73,460 | $72.37 | | |
| HUMNSERV | HUMAN SERVICES 119 | 0.0250000000 | $73,460 | $73,460 | $1.84 | | |
| SLDREL | SOLDIERS RELIEF 121 | 0.0155990000 | $73,460 | $73,460 | $1.15 | | |
| EMERGSER | EMS 147 | 0.3676811629 | $73,460 | $73,460 | $27.01 | | |
| EMSRFD | EMS REFUND 147 | 0.0000000000 | $73,460 | $73,460 | $0.00 | | |
| FD8EXP | FD #8 EXPENSE 697 | 1.0864716428 | $73,460 | $73,460 | $79.81 | | |
| RLBRFD | RURAL LIBRARY REFUND 623 | 0.0000000000 | $73,460 | $73,460 | $0.00 | | |
| RURALLIB | RURAL LIBRARY 623 | 0.3601547782 | $73,460 | $73,460 | $26.46 | | |
| PORTRFD | PORT REFUND 640 | 0.0000000000 | $73,460 | $73,460 | $0.00 | | |
| PORTWWGEN | PORT OF WW 640 | 0.2344301070 | $73,460 | $73,460 | $17.22 | | |
| SD140BOND | SD #140 BOND 764 | 0.8032434458 | $73,460 | $73,460 | $59.01 | | |
| SD140CAP | SD #140 CAP 762 | 0.3840034221 | $73,460 | $73,460 | $28.21 | | |
| SD140GEN | SD #140 GENERAL 760 | 2.4999999996 | $73,460 | $73,460 | $183.65 | | |
| ST2 | STATE SCHOOL PART 2 600 | 0.8853714103 | $73,460 | $73,460 | $65.04 | | |
| STATESCHL | STATE SCHOOL 600 | 1.6424571473 | $73,460 | $73,460 | $120.65 | | |
| STREFUND | STATE REFUND LEVY 603 | 0.0000000000 | $73,460 | $73,460 | $0.00 | | |
| COROAD | COUNTY ROAD 115 | 1.6137667997 | $73,460 | $73,460 | $118.55 | | |
| CRPRD | COUNTY ROAD REFUND 115 | 0.0000000000 | $73,460 | $73,460 | $0.00 | | |
| | Total Tax Rate: | 10.9032878140 | | | | | |
| | | | | Taxes w/Current Exemptions: | $800.97 | | |
| | | | | Taxes w/o Exemptions: | $800.97 | | |
Improvement / Building
Sketch
| No sketches available for this property. |
Property Image
Land
| 1 | C1-I | Class 1 Irrigated | 59.1000 | 0.00 | 0.00 | 0.00 | 1.00 | $384,150 | $73,460 |
Roll Value History
| 2026 | N/A | N/A | N/A | N/A | N/A |
| 2025 | $0 | $384,150 | $73,460 | $73,460 | $73,460 |
| 2024 | $0 | $372,330 | $74,820 | $74,820 | $74,820 |
| 2023 | $0 | $360,510 | $74,470 | $74,470 | $74,470 |
| 2022 | $0 | $325,050 | $71,810 | $71,810 | $71,810 |
| 2021 | $0 | $295,500 | $73,230 | $73,230 | $73,230 |
| 2020 | $0 | $236,400 | $74,760 | $74,760 | $74,760 |
| 2019 | $0 | $206,850 | $77,070 | $77,070 | $77,070 |
| 2018 | $0 | $200,940 | $78,540 | $78,540 | $78,540 |
| 2017 | $0 | $200,940 | $81,030 | $81,030 | $81,030 |
| 2016 | $0 | $200,940 | $81,320 | $81,320 | $81,320 |
| 2015 | $0 | $177,300 | $74,050 | $74,050 | $74,050 |
| 2014 | $0 | $177,300 | $74,050 | $74,050 | $74,050 |
| 2013 | $0 | $171,400 | $63,500 | $63,500 | $63,500 |
| 2012 | $0 | $50,600 | $0 | $0 | $0 |
| 2011 | $0 | $48,600 | $0 | $0 | $0 |
| 2010 | $0 | $50,100 | $0 | $0 | $0 |
| 2009 | $0 | $49,300 | $0 | $0 | $0 |
| 2008 | $0 | $59,500 | $0 | $0 | $0 |
| 2007 | $0 | $65,000 | $0 | $0 | $0 |
Deed and Sales History
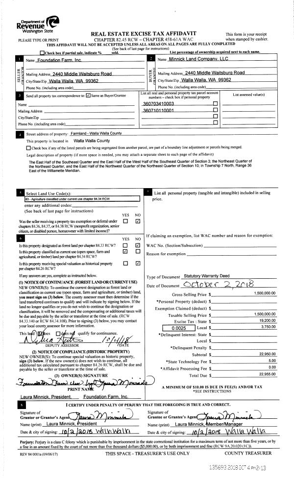
| 1 | 10/04/2018 | SWD | STATUTORY WARRANTY DEED | FOUNDATION FARM INC | MINNICK LAND COMPANY LLC | | 2-PARCELS | $1,500,000.00 | 135693 | 2018-08260 |
|   | |
| 2 | 06/17/1974 | QCD | QUIT CLAIM DEED | | | | | $1,437.00 | 0 | 1705-37645 |
|   | |
Payout Agreement
| No payout information available.. |