Property
Account |
| Property ID: | 5323 | Abbreviated Legal Description: | SPRING BRANCH SUBD (TRACT C OF SURVEY 1992-05053) MOST SLY PTN OF LOTS 7 & 8 |
| Parcel Number: | 360607530012 | Agent Code: | |
| Type: | Real | | |
| Tax Area: | 101 - 140-4 | Land Use Code | 83 |
| Open Space: | Y | DFL | N |
| Historic Property: | N | Remodel Property: | N |
| Multi-Family Redevelopment: | N | | |
| Township: | 6 | Section: | 7 |
| Range: | 36 |
Location |
| Address: | 1419 SPRING BRANCH RD WA 99362 | Mapsco: | |
| Neighborhood: | 0 Farm | Map ID: | |
| Neighborhood CD: | 4240 |
Owner |
| Name: | HUSE MATTHEW D & TRACI L | Owner ID: | 55879 |
| Mailing Address: | 1419 SPRING BRANCH RD WALLA WALLA, WA 99362 | % Ownership: | 100.0000000000% |
| | | Exemptions: | |
Taxes and Assessment Details
Values
| (+) Improvement Homesite Value: | + | $0 | |
| (+) Improvement Non-Homesite Value: | + | $418,250 | |
| (+) Land Homesite Value: | + | $200,000 | |
| (+) Land Non-Homesite Value: | + | $0 | |
| (+) Curr Use (HS): | + | $0 | $0 |
| (+) Curr Use (NHS): | + | $25,280 | $4,980 |
| | | -------------------------- | |
| (=) Market Value: | = | $643,530 | |
| (–) Productivity Loss: | – | $20,300 | |
| | | -------------------------- | |
| (=) Subtotal: | = | $623,230 | |
| (+) Senior Appraised Value: | + | $0 | |
| (+) Non-Senior Appraised Value: | + | $623,230 | |
| | | -------------------------- | |
| (=) Total Appraised Value: | = | $623,230 | |
| (–) Senior Exemption Loss: | – | $0 | |
| (–) Exemption Loss: | – | $0 | |
| | | -------------------------- | |
| (=) Taxable Value: | = | $623,230 | |
Taxing Jurisdiction
| Owner: | HUSE MATTHEW D & TRACI L | | |
| % Ownership: | 100.0000000000% | | |
| Total Value: | $643,530 | | |
| Tax Area: | 101 - 140-4 |
| CERFD | CURRENT EXPENSE REFUND 010 | 0.0000000000 | $623,230 | $623,230 | $0.00 | | |
| CURREXP | CURRENT EXPENSE 010 | 1.0175366760 | $623,230 | $623,230 | $634.16 | | |
| HUMNSERV | HUMAN SERVICES 119 | 0.0250000000 | $623,230 | $623,230 | $15.58 | | |
| SLDREL | SOLDIERS RELIEF 121 | 0.0155990005 | $623,230 | $623,230 | $9.72 | | |
| EMERGSER | EMS 147 | 0.3792580840 | $623,230 | $623,230 | $236.37 | | |
| EMSRFD | EMS REFUND 147 | 0.0000000000 | $623,230 | $623,230 | $0.00 | | |
| FD4EXP | FD #4 EXPENSE 686 | 0.8836993059 | $623,230 | $623,230 | $550.75 | | |
| RLBRFD | RURAL LIBRARY REFUND 623 | 0.0000000000 | $623,230 | $623,230 | $0.00 | | |
| RURALLIB | RURAL LIBRARY 623 | 0.3710609029 | $623,230 | $623,230 | $231.26 | | |
| PORTRFD | PORT REFUND 640 | 0.0000000000 | $623,230 | $623,230 | $0.00 | | |
| PORTWWGEN | PORT OF WW 640 | 0.2460186015 | $623,230 | $623,230 | $153.33 | | |
| SD140BOND | SD #140 BOND 764 | 0.8342371393 | $623,230 | $623,230 | $519.92 | | |
| SD140GEN | SD #140 GENERAL 760 | 2.0646500647 | $623,230 | $623,230 | $1,286.75 | | |
| ST2 | STATE SCHOOL PART 2 600 | 0.8131451643 | $623,230 | $623,230 | $506.78 | | |
| STATESCHL | STATE SCHOOL 600 | 1.5158548041 | $623,230 | $623,230 | $944.73 | | |
| STREFUND | STATE REFUND LEVY 603 | 0.0000000000 | $623,230 | $623,230 | $0.00 | | |
| COROAD | COUNTY ROAD 115 | 1.6549953990 | $623,230 | $623,230 | $1,031.44 | | |
| CRPRD | COUNTY ROAD REFUND 115 | 0.0000000000 | $623,230 | $623,230 | $0.00 | | |
| | Total Tax Rate: | 9.8210551422 | | | | | |
| | | | | Taxes w/Current Exemptions: | $6,120.79 | | |
| | | | | Taxes w/o Exemptions: | $6,120.79 | | |
Improvement / Building
| Improvement #1: | RESIDENTIAL | State Code: | 83 | 3359.0 sqft | Value: | $418,250 |
| Exterior Wall: | STUCCO | Heating/Cooling: | HEAT PUMP | | Number of Bathrooms: | 4 | Number of Bedrooms: | 5 | | Plumbing: | 18 | Roof Covering: | COMP SHINGLE |
|
| | Type | Description | Class CD | Sub Class CD | Year Built | Area |
| | MA | Main Area | 4 | 50 | 2017 | 3359.0 |
| | ATG | Attached Garage | 4 | 50 | 2017 | 572.0 |
| | UPFL | Upper Floor (included in main area) | 4 | 50 | 2017 | 1201.0 |
| | RPC | OPEN PORCH W/ROOF , CEILED | 4 | 50 | 2017 | 341.0 |
| | RPC | OPEN PORCH W/ROOF , CEILED | 4 | 50 | 2017 | 329.0 |
| | SI1 | SITE IMPROVEMENT | 4 | 50 | 2017 | 3.0 |
| | GFP | GAS FIREPLACE | 4 | 50 | 2017 | 2.0 |
Sketch
Property Image
Land
| 1 | HS-200,000 | Hs 200,000 | 1.0000 | 0.00 | 0.00 | 0.00 | 1.00 | $200,000 | $0 |
| 2 | 8000-C1-I | Class 1 irrigated | 3.9500 | 0.00 | 0.00 | 0.00 | 1.00 | $25,280 | $4,980 |
Roll Value History
| 2026 | N/A | N/A | N/A | N/A | N/A |
| 2025 | $418,250 | $225,280 | $4,910 | $623,160 | $623,160 |
| 2024 | $418,250 | $225,280 | $5,000 | $623,250 | $623,250 |
| 2023 | $418,250 | $225,280 | $4,980 | $623,230 | $623,230 |
| 2022 | $398,330 | $110,280 | $4,890 | $488,220 | $488,220 |
| 2021 | $398,330 | $110,280 | $4,890 | $488,220 | $488,220 |
| 2020 | $398,330 | $110,280 | $5,000 | $488,330 | $488,330 |
| 2019 | $398,330 | $110,280 | $5,150 | $488,480 | $488,480 |
| 2018 | $398,330 | $110,280 | $5,250 | $488,580 | $488,580 |
| 2017 | $398,330 | $110,280 | $5,420 | $488,750 | $488,750 |
| 2016 | $0 | $110,280 | $5,440 | $90,440 | $90,440 |
| 2015 | $0 | $110,280 | $4,950 | $89,950 | $89,950 |
| 2014 | $0 | $110,280 | $4,950 | $89,950 | $89,950 |
| 2013 | $0 | $110,300 | $4,181 | $89,200 | $89,200 |
| 2012 | $0 | $88,400 | $0 | $0 | $0 |
| 2011 | $0 | $88,200 | $0 | $0 | $0 |
| 2010 | $0 | $123,300 | $0 | $0 | $0 |
| 2009 | $0 | $123,300 | $0 | $0 | $0 |
| 2008 | $0 | $124,000 | $0 | $0 | $0 |
| 2007 | $0 | $5,400 | $0 | $0 | $0 |
Deed and Sales History
| 1 | 01/12/2015 | QCD | QUIT CLAIM DEED | HUSE DAVID L & SANDRA | HUSE MATTHEW D & TRACI L | | | $0.00 | 127256 | 2015-00271 |
| 2 | 12/23/2014 | QCD | QUIT CLAIM DEED | HUSE DAVID L & SANDRA L | HUSE DAVID L & SANDRA | | | $0.00 | 127202 | 2014-09500 |
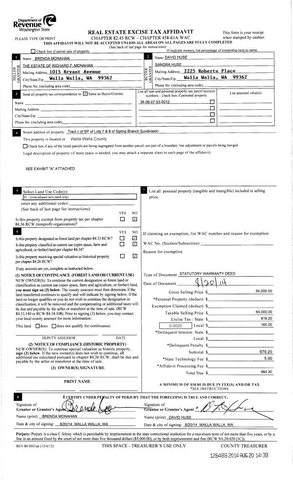
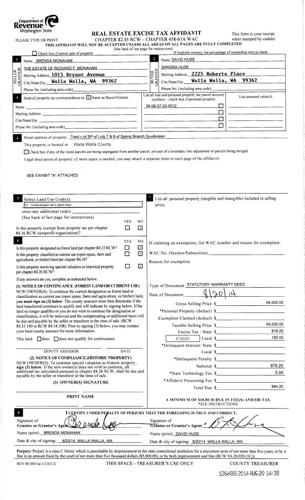
| 3 | 08/20/2014 | SWD | STATUTORY WARRANTY DEED | S C F INC | HUSE DAVID L & SANDRA L | | | $64,000.00 | 126488 | 2014-06036 |
| 4 | 12/08/2014 | QCD | QUIT CLAIM DEED | S C F INC | | | | | 60261 | 1984-00352 |
| 5 | 10/13/1982 | WARRANTY D | WARRANTY DEED | | | | | $50,000.00 | 0 | 1348-207221 |
Payout Agreement
| No payout information available.. |