Property
Account |
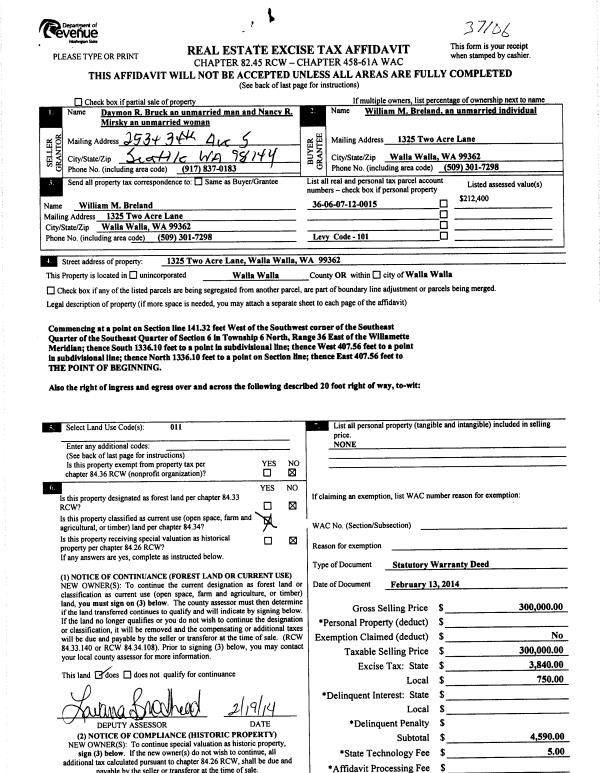
| Property ID: | 5318 | Abbreviated Legal Description: | 7-6-36 TAX 8 |
| Parcel Number: | 360607120015 | Agent Code: | |
| Type: | Real | | |
| Tax Area: | 101 - 140-4 | Land Use Code | 83 |
| Open Space: | Y | DFL | N |
| Historic Property: | N | Remodel Property: | N |
| Multi-Family Redevelopment: | N | | |
| Township: | 6 | Section: | 7 |
| Range: | 36 |
Location |
| Address: | 1325 TWO ACRE LN WA 99362 | Mapsco: | |
| Neighborhood: | 0 Farm | Map ID: | |
| Neighborhood CD: | 4240 |
Owner |
| Name: | BRELAND WILLIAM M | Owner ID: | 54674 |
| Mailing Address: | 1325 TWO ACRE LANE WALLA WALLA, WA 99362 | % Ownership: | 100.0000000000% |
| | | Exemptions: | |
Taxes and Assessment Details
Property Tax Information as of
02/21/2026
Click on "Statement Details" to expand or collapse a tax statement.
* Please enter a valid date ** Please enter a valid date *
Statement Details |
| | TOTAL: | $0.00 | $0.00 | $0.00 | $0.00 | $0.00 | $0.00 |
|
| | $0.00 | $0.00 | $0.00 | $0.00 | $0.00 | $0.00 |
Values
| (+) Improvement Homesite Value: | + | $0 | |
| (+) Improvement Non-Homesite Value: | + | $191,160 | |
| (+) Land Homesite Value: | + | $200,000 | |
| (+) Land Non-Homesite Value: | + | $0 | |
| (+) Curr Use (HS): | + | $0 | $0 |
| (+) Curr Use (NHS): | + | $92,000 | $14,490 |
| | | -------------------------- | |
| (=) Market Value: | = | $483,160 | |
| (–) Productivity Loss: | – | $77,510 | |
| | | -------------------------- | |
| (=) Subtotal: | = | $405,650 | |
| (+) Senior Appraised Value: | + | $0 | |
| (+) Non-Senior Appraised Value: | + | $405,650 | |
| | | -------------------------- | |
| (=) Total Appraised Value: | = | $405,650 | |
| (–) Senior Exemption Loss: | – | $0 | |
| (–) Exemption Loss: | – | $0 | |
| | | -------------------------- | |
| (=) Taxable Value: | = | $405,650 | |
Taxing Jurisdiction
| Owner: | BRELAND WILLIAM M | | |
| % Ownership: | 100.0000000000% | | |
| Total Value: | $483,160 | | |
| Tax Area: | 101 - 140-4 |
| CERFD | CURRENT EXPENSE REFUND 010 | 0.0000000000 | $405,650 | $405,650 | $0.00 | | |
| CURREXP | CURRENT EXPENSE 010 | 1.0175366760 | $405,650 | $405,650 | $412.76 | | |
| HUMNSERV | HUMAN SERVICES 119 | 0.0250000000 | $405,650 | $405,650 | $10.14 | | |
| SLDREL | SOLDIERS RELIEF 121 | 0.0155990005 | $405,650 | $405,650 | $6.33 | | |
| EMERGSER | EMS 147 | 0.3792580840 | $405,650 | $405,650 | $153.85 | | |
| EMSRFD | EMS REFUND 147 | 0.0000000000 | $405,650 | $405,650 | $0.00 | | |
| FD4EXP | FD #4 EXPENSE 686 | 0.8836993059 | $405,650 | $405,650 | $358.47 | | |
| RLBRFD | RURAL LIBRARY REFUND 623 | 0.0000000000 | $405,650 | $405,650 | $0.00 | | |
| RURALLIB | RURAL LIBRARY 623 | 0.3710609029 | $405,650 | $405,650 | $150.52 | | |
| PORTRFD | PORT REFUND 640 | 0.0000000000 | $405,650 | $405,650 | $0.00 | | |
| PORTWWGEN | PORT OF WW 640 | 0.2460186015 | $405,650 | $405,650 | $99.80 | | |
| SD140BOND | SD #140 BOND 764 | 0.8342371393 | $405,650 | $405,650 | $338.41 | | |
| SD140GEN | SD #140 GENERAL 760 | 2.0646500647 | $405,650 | $405,650 | $837.53 | | |
| ST2 | STATE SCHOOL PART 2 600 | 0.8131451643 | $405,650 | $405,650 | $329.85 | | |
| STATESCHL | STATE SCHOOL 600 | 1.5158548041 | $405,650 | $405,650 | $614.91 | | |
| STREFUND | STATE REFUND LEVY 603 | 0.0000000000 | $405,650 | $405,650 | $0.00 | | |
| COROAD | COUNTY ROAD 115 | 1.6549953990 | $405,650 | $405,650 | $671.35 | | |
| CRPRD | COUNTY ROAD REFUND 115 | 0.0000000000 | $405,650 | $405,650 | $0.00 | | |
| | Total Tax Rate: | 9.8210551422 | | | | | |
| | | | | Taxes w/Current Exemptions: | $3,983.92 | | |
| | | | | Taxes w/o Exemptions: | $3,983.92 | | |
Improvement / Building
| Improvement #1: | RESIDENTIAL | State Code: | 83 | 1614.0 sqft | Value: | $191,160 |
| Exterior Wall: | PLYWOOD | Heating/Cooling: | BASEBOARD HOT WATER | | Number of Bathrooms: | 3 | Number of Bedrooms: | 2 | | Plumbing: | 10 | Roof Covering: | COMP SHINGLE |
|
| | Type | Description | Class CD | Sub Class CD | Year Built | Area |
| | MA | Main Area | 1 | 35 | 1955 | 1614.0 |
| | SI1 | SITE IMPROVEMENT | 1 | 35 | 1955 | 4.0 |
| | BASE | BASEMENT | 1 | 35 | 1955 | 838.0 |
| | BPF | BASEMENT -PARTITIONED FINISH | 1 | 35 | 1955 | 300.0 |
| | ATG | Attached Garage | 1 | 35 | 1955 | 676.0 |
| | S1F | Single One Story Fireplace | 1 | 35 | 1955 | 1.0 |
| | OSP | Open | 1 | 35 | 1955 | 35.0 |
| | OSP | Open | 1 | 35 | 1955 | 55.0 |
| | POLE | POLE UTILITY BUILDING | 1 | 30 | 1960 | 1800.0 |
| | UTILITY | UTILITY BUILDING | 1 | 30 | 1970 | 900.0 |
| | UTILITY | UTILITY BUILDING | 1 | 30 | 1970 | 1140.0 |
| | UTILITY | UTILITY BUILDING | 1 | 30 | 1970 | 480.0 |
| | LNTD | LEAN TO DIRT FLOOR | 1 | 20 | 1970 | 360.0 |
| | UTIL-STOR | UTILITY STORAGE | 1 | 20 | 1950 | 288.0 |
| | CPCD | CARPORT/DIRT FLOOR | 1 | 20 | 1950 | 432.0 |
| | SOLR | SOLAR POWER PANELS | 1 | 35 | 2022 | 52.0 |
Sketch
Property Image
Land
| 1 | 8000-C1-I | Class 1 irrigated | 11.5000 | 0.00 | 0.00 | 0.00 | 1.00 | $92,000 | $14,490 |
| 2 | HS-200,000 | Hs 200,000 | 1.0000 | 0.00 | 0.00 | 0.00 | 1.00 | $200,000 | $0 |
Roll Value History
| 2026 | N/A | N/A | N/A | N/A | N/A |
| 2025 | $334,410 | $292,000 | $14,300 | $548,710 | $548,710 |
| 2024 | $191,160 | $292,000 | $14,560 | $405,720 | $405,720 |
| 2023 | $191,160 | $292,000 | $14,490 | $405,650 | $405,650 |
| 2022 | $212,400 | $177,000 | $14,250 | $311,650 | $311,650 |
| 2021 | $212,400 | $177,000 | $14,250 | $311,650 | $311,650 |
| 2020 | $212,400 | $177,000 | $14,550 | $311,950 | $311,950 |
| 2019 | $212,400 | $177,000 | $15,000 | $312,400 | $312,400 |
| 2018 | $212,400 | $177,000 | $15,280 | $312,680 | $312,680 |
| 2017 | $212,400 | $177,000 | $15,770 | $313,170 | $313,170 |
| 2016 | $212,400 | $177,000 | $15,820 | $313,220 | $313,220 |
| 2015 | $212,400 | $177,000 | $14,410 | $311,810 | $311,810 |
| 2014 | $212,400 | $177,000 | $14,410 | $311,810 | $311,810 |
| 2013 | $212,400 | $177,000 | $12,405 | $309,800 | $309,800 |
| 2012 | $212,500 | $94,800 | $0 | $0 | $0 |
| 2011 | $212,100 | $94,500 | $0 | $0 | $0 |
| 2010 | $208,200 | $94,700 | $0 | $0 | $0 |
| 2009 | $218,600 | $94,600 | $0 | $0 | $0 |
| 2008 | $218,600 | $96,600 | $0 | $0 | $0 |
| 2007 | $148,600 | $56,700 | $0 | $0 | $0 |
Deed and Sales History
| 1 | 02/25/2025 | SWD | STATUTORY WARRANTY DEED | BRELAND WILLIAM M | MAYBERRY JONATHAN P & ELIZABETH ASHLEY | | | $775,000.00 | 148973 | 2025-00967 |
| 2 | 02/19/2014 | SWD | STATUTORY WARRANTY DEED | BRUCK DAYMON R | BRELAND WILLIAM M | | | $300,000.00 | 125452 | 2014-01241 |
| 3 | 05/13/2005 | WARRANTY D | WARRANTY DEED | VAN BUREN, VIRGIL A ESTATE | BRUCK, DAYMON R | | | $360,000.00 | 107485 | 2005-05766 |
| 4 | 07/11/1990 | QCD | QUIT CLAIM DEED | | | | | $135,000.00 | 0 | 1839-004768 |
Payout Agreement
| No payout information available.. |