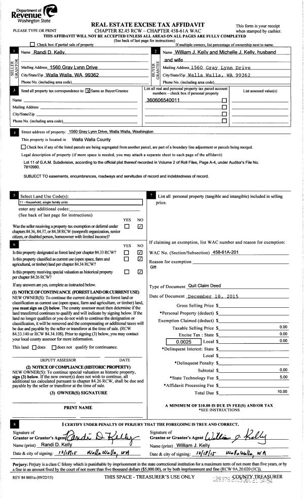
Property
Account |
| Property ID: | 5300 | Abbreviated Legal Description: | GAM SUBD LOT 11 |
| Parcel Number: | 360606540011 | Agent Code: | |
| Type: | Real | | |
| Tax Area: | 101 - 140-4 | Land Use Code | 11 |
| Open Space: | N | DFL | N |
| Historic Property: | N | Remodel Property: | N |
| Multi-Family Redevelopment: | N | | |
| Township: | 6 | Section: | 6 |
| Range: | 36 |
Location |
| Address: | 1560 GRAY LYNN DR WA 99362 | Mapsco: | |
| Neighborhood: | VG SFR Rural/City Inf | Map ID: | |
| Neighborhood CD: | 115012 |
Owner |
| Name: | KELLY WILLIAM J & MICHELLE J | Owner ID: | 57930 |
| Mailing Address: | 1560 GRAY LYNN DR WALLA WALLA, WA 99362 | % Ownership: | 100.0000000000% |
| | | Exemptions: | |
Taxes and Assessment Details
Property Tax Information as of
02/21/2026
Click on "Statement Details" to expand or collapse a tax statement.
* Please enter a valid date ** Please enter a valid date *
Statement Details |
| | TOTAL: | $0.00 | $0.00 | $0.00 | $0.00 | $0.00 | $0.00 |
|
| | $0.00 | $0.00 | $0.00 | $0.00 | $0.00 | $0.00 |
Values
| (+) Improvement Homesite Value: | + | $0 | |
| (+) Improvement Non-Homesite Value: | + | $724,920 | |
| (+) Land Homesite Value: | + | $0 | |
| (+) Land Non-Homesite Value: | + | $163,350 | |
| (+) Curr Use (HS): | + | $0 | $0 |
| (+) Curr Use (NHS): | + | $0 | $0 |
| | | -------------------------- | |
| (=) Market Value: | = | $888,270 | |
| (–) Productivity Loss: | – | $0 | |
| | | -------------------------- | |
| (=) Subtotal: | = | $888,270 | |
| (+) Senior Appraised Value: | + | $0 | |
| (+) Non-Senior Appraised Value: | + | $888,270 | |
| | | -------------------------- | |
| (=) Total Appraised Value: | = | $888,270 | |
| (–) Senior Exemption Loss: | – | $0 | |
| (–) Exemption Loss: | – | $0 | |
| | | -------------------------- | |
| (=) Taxable Value: | = | $888,270 | |
Taxing Jurisdiction
| Owner: | KELLY WILLIAM J & MICHELLE J | | |
| % Ownership: | 100.0000000000% | | |
| Total Value: | $888,270 | | |
| Tax Area: | 101 - 140-4 |
| CERFD | CURRENT EXPENSE REFUND 010 | 0.0000000000 | $888,270 | $888,270 | $0.00 | | |
| CURREXP | CURRENT EXPENSE 010 | 1.0175366760 | $888,270 | $888,270 | $903.85 | | |
| HUMNSERV | HUMAN SERVICES 119 | 0.0250000000 | $888,270 | $888,270 | $22.21 | | |
| SLDREL | SOLDIERS RELIEF 121 | 0.0155990005 | $888,270 | $888,270 | $13.86 | | |
| EMERGSER | EMS 147 | 0.3792580840 | $888,270 | $888,270 | $336.88 | | |
| EMSRFD | EMS REFUND 147 | 0.0000000000 | $888,270 | $888,270 | $0.00 | | |
| FD4EXP | FD #4 EXPENSE 686 | 0.8836993059 | $888,270 | $888,270 | $784.96 | | |
| RLBRFD | RURAL LIBRARY REFUND 623 | 0.0000000000 | $888,270 | $888,270 | $0.00 | | |
| RURALLIB | RURAL LIBRARY 623 | 0.3710609029 | $888,270 | $888,270 | $329.60 | | |
| PORTRFD | PORT REFUND 640 | 0.0000000000 | $888,270 | $888,270 | $0.00 | | |
| PORTWWGEN | PORT OF WW 640 | 0.2460186015 | $888,270 | $888,270 | $218.53 | | |
| SD140BOND | SD #140 BOND 764 | 0.8342371393 | $888,270 | $888,270 | $741.03 | | |
| SD140GEN | SD #140 GENERAL 760 | 2.0646500647 | $888,270 | $888,270 | $1,833.97 | | |
| ST2 | STATE SCHOOL PART 2 600 | 0.8131451643 | $888,270 | $888,270 | $722.29 | | |
| STATESCHL | STATE SCHOOL 600 | 1.5158548041 | $888,270 | $888,270 | $1,346.49 | | |
| STREFUND | STATE REFUND LEVY 603 | 0.0000000000 | $888,270 | $888,270 | $0.00 | | |
| COROAD | COUNTY ROAD 115 | 1.6549953990 | $888,270 | $888,270 | $1,470.08 | | |
| CRPRD | COUNTY ROAD REFUND 115 | 0.0000000000 | $888,270 | $888,270 | $0.00 | | |
| | Total Tax Rate: | 9.8210551422 | | | | | |
| | | | | Taxes w/Current Exemptions: | $8,723.75 | | |
| | | | | Taxes w/o Exemptions: | $8,723.75 | | |
Improvement / Building
| Improvement #1: | RESIDENTIAL | State Code: | 11 | 2604.0 sqft | Value: | $724,920 |
| Exterior Wall: | MASONRY VENEER | Heating/Cooling: | WARM & COOLED AIR | | Number of Bathrooms: | 3 | Number of Bedrooms: | 4 | | Plumbing: | 12 | Roof Covering: | CLAY TILE |
|
| | Type | Description | Class CD | Sub Class CD | Year Built | Area |
| | MA | Main Area | 1 | 50 | 1984 | 2604.0 |
| | POL1 | POLE BUILDING-GRAVEL | 1 | 30 | 1984 | 216.0 |
| | POL1 | POLE BUILDING-GRAVEL | 1 | 30 | 1984 | 280.0 |
| | SI1 | SITE IMPROVEMENT | 1 | 50 | 1984 | 6.5 |
| | BASE | BASEMENT | 1 | 50 | 1984 | 2604.0 |
| | OPS | OPEN PORCH W/STEPS | 1 | 50 | 1984 | 64.0 |
| | ATG | Attached Garage | 1 | 50 | 1984 | 1075.0 |
| | BPF | BASEMENT -PARTITIONED FINISH | 1 | 50 | 1984 | 2604.0 |
| | S1F | Single One Story Fireplace | 1 | 50 | 1984 | 1.0 |
Sketch
Property Image
Land
| 1 | RES 1 | Converted: Residential | 1.8900 | 0.00 | 0.00 | 0.00 | 1.00 | $163,350 | $0 |
Roll Value History
| 2026 | N/A | N/A | N/A | N/A | N/A |
| 2025 | $761,170 | $236,620 | $0 | $997,790 | $997,790 |
| 2024 | $724,920 | $163,350 | $0 | $888,270 | $888,270 |
| 2023 | $724,920 | $163,350 | $0 | $888,270 | $888,270 |
| 2022 | $690,400 | $163,350 | $0 | $853,750 | $853,750 |
| 2021 | $657,520 | $163,350 | $0 | $820,870 | $820,870 |
| 2020 | $571,760 | $163,350 | $0 | $735,110 | $735,110 |
| 2019 | $641,510 | $93,600 | $0 | $735,110 | $735,110 |
| 2018 | $583,190 | $93,600 | $0 | $676,790 | $676,790 |
| 2017 | $507,120 | $93,600 | $0 | $600,720 | $600,720 |
| 2016 | $422,600 | $93,600 | $0 | $516,200 | $516,200 |
| 2015 | $422,600 | $93,600 | $0 | $516,200 | $516,200 |
| 2014 | $422,600 | $93,600 | $0 | $516,200 | $516,200 |
| 2013 | $422,600 | $93,600 | $0 | $516,200 | $516,200 |
| 2012 | $449,800 | $93,600 | $0 | $0 | $0 |
| 2011 | $419,800 | $123,600 | $0 | $0 | $0 |
| 2010 | $419,800 | $123,600 | $0 | $0 | $0 |
| 2009 | $448,400 | $123,600 | $0 | $0 | $0 |
| 2008 | $444,900 | $127,100 | $0 | $0 | $0 |
| 2007 | $366,400 | $65,300 | $0 | $0 | $0 |
Deed and Sales History
| 1 | 12/18/2015 | QCD | QUIT CLAIM DEED | KELLY RANDI D | KELLY WILLIAM J & MICHELLE J | | | $0.00 | 129378 | 2015-10865 |
| 2 | 12/18/2015 | DPR | DEED OF PERSONAL REPRESENTATIVE | KELLY FRANK L & RANDI D | KELLY RANDI D | | | $0.00 | 129376 | 2015-10863 |
| 3 | 11/18/1998 | WARRANTY D | WARRANTY DEED | | | | | $370,000.00 | 91651 | 2769-813310 |
Payout Agreement
| No payout information available.. |