Property
Account |
| Property ID: | 5278 | Abbreviated Legal Description: | 6-6-36 PARCEL 2 OF S/P WITHIN NW1/4SW1/4 |
| Parcel Number: | 360606320004 | Agent Code: | |
| Type: | Real | | |
| Tax Area: | 101 - 140-4 | Land Use Code | 11 |
| Open Space: | N | DFL | N |
| Historic Property: | N | Remodel Property: | N |
| Multi-Family Redevelopment: | N | | |
| Township: | 6 | Section: | 6 |
| Range: | 36 |
Location |
| Address: | 3335 LANETTE CIRCLE WA 99362 | Mapsco: | |
| Neighborhood: | G SFR Rural/City Inf | Map ID: | |
| Neighborhood CD: | 114012 |
Owner |
| Name: | BAFFNEY KEVIN & KATY K | Owner ID: | 69234 |
| Mailing Address: | 3335 LANETTE CIRCLE WALLA WALLA, WA 99362 | % Ownership: | 100.0000000000% |
| | | Exemptions: | |
Taxes and Assessment Details
Values
| (+) Improvement Homesite Value: | + | $0 | |
| (+) Improvement Non-Homesite Value: | + | $469,040 | |
| (+) Land Homesite Value: | + | $0 | |
| (+) Land Non-Homesite Value: | + | $125,200 | |
| (+) Curr Use (HS): | + | $0 | $0 |
| (+) Curr Use (NHS): | + | $0 | $0 |
| | | -------------------------- | |
| (=) Market Value: | = | $594,240 | |
| (–) Productivity Loss: | – | $0 | |
| | | -------------------------- | |
| (=) Subtotal: | = | $594,240 | |
| (+) Senior Appraised Value: | + | $0 | |
| (+) Non-Senior Appraised Value: | + | $594,240 | |
| | | -------------------------- | |
| (=) Total Appraised Value: | = | $594,240 | |
| (–) Senior Exemption Loss: | – | $0 | |
| (–) Exemption Loss: | – | $0 | |
| | | -------------------------- | |
| (=) Taxable Value: | = | $594,240 | |
Taxing Jurisdiction
| Owner: | BAFFNEY KEVIN & KATY K | | |
| % Ownership: | 100.0000000000% | | |
| Total Value: | $594,240 | | |
| Tax Area: | 101 - 140-4 |
| CERFD | CURRENT EXPENSE REFUND 010 | 0.0000000000 | $594,240 | $594,240 | $0.00 | | |
| CURREXP | CURRENT EXPENSE 010 | 1.0175366760 | $594,240 | $594,240 | $604.66 | | |
| HUMNSERV | HUMAN SERVICES 119 | 0.0250000000 | $594,240 | $594,240 | $14.86 | | |
| SLDREL | SOLDIERS RELIEF 121 | 0.0155990005 | $594,240 | $594,240 | $9.27 | | |
| EMERGSER | EMS 147 | 0.3792580840 | $594,240 | $594,240 | $225.37 | | |
| EMSRFD | EMS REFUND 147 | 0.0000000000 | $594,240 | $594,240 | $0.00 | | |
| FD4EXP | FD #4 EXPENSE 686 | 0.8836993059 | $594,240 | $594,240 | $525.13 | | |
| RLBRFD | RURAL LIBRARY REFUND 623 | 0.0000000000 | $594,240 | $594,240 | $0.00 | | |
| RURALLIB | RURAL LIBRARY 623 | 0.3710609029 | $594,240 | $594,240 | $220.50 | | |
| PORTRFD | PORT REFUND 640 | 0.0000000000 | $594,240 | $594,240 | $0.00 | | |
| PORTWWGEN | PORT OF WW 640 | 0.2460186015 | $594,240 | $594,240 | $146.19 | | |
| SD140BOND | SD #140 BOND 764 | 0.8342371393 | $594,240 | $594,240 | $495.74 | | |
| SD140GEN | SD #140 GENERAL 760 | 2.0646500647 | $594,240 | $594,240 | $1,226.90 | | |
| ST2 | STATE SCHOOL PART 2 600 | 0.8131451643 | $594,240 | $594,240 | $483.20 | | |
| STATESCHL | STATE SCHOOL 600 | 1.5158548041 | $594,240 | $594,240 | $900.78 | | |
| STREFUND | STATE REFUND LEVY 603 | 0.0000000000 | $594,240 | $594,240 | $0.00 | | |
| COROAD | COUNTY ROAD 115 | 1.6549953990 | $594,240 | $594,240 | $983.46 | | |
| CRPRD | COUNTY ROAD REFUND 115 | 0.0000000000 | $594,240 | $594,240 | $0.00 | | |
| | Total Tax Rate: | 9.8210551422 | | | | | |
| | | | | Taxes w/Current Exemptions: | $5,836.06 | | |
| | | | | Taxes w/o Exemptions: | $5,836.06 | | |
Improvement / Building
| Improvement #1: | RESIDENTIAL | State Code: | 11 | 2612.0 sqft | Value: | $469,040 |
| Exterior Wall: | VINYL | Heating/Cooling: | REV-HEAT-PUMP-W/DUCT | | Number of Bathrooms: | 2.5 | Number of Bedrooms: | 4 | | Plumbing: | 12 | Roof Covering: | COMP SHINGLE |
|
| | Type | Description | Class CD | Sub Class CD | Year Built | Area |
| | MA | Main Area | 2 | 40 | 1994 | 2612.0 |
| | POL2 | POLE BUILDING-CONCRETE | 2 | 30 | 1994 | 576.0 |
| | SI1 | SITE IMPROVEMENT | 2 | 40 | 1994 | 4.5 |
| | WDR | WOOD DECK W/ROOF | 2 | 40 | 1994 | 140.0 |
| | BLW | WOOD BALCONIES | 2 | 40 | 1994 | 56.0 |
| | UPFL | Upper Floor (included in main area) | 2 | 40 | 1994 | 1258.0 |
| | S1F | Single One Story Fireplace | 2 | 40 | 1994 | 1.0 |
| | ATG | Attached Garage | 2 | 40 | 1994 | 735.0 |
Sketch
Property Image
Land
| 1 | RES 1 | Converted: Residential | 2.0400 | 0.00 | 0.00 | 0.00 | 1.00 | $125,200 | $0 |
Roll Value History
| 2026 | N/A | N/A | N/A | N/A | N/A |
| 2025 | $515,950 | $190,720 | $0 | $706,670 | $706,670 |
| 2024 | $469,040 | $125,200 | $0 | $594,240 | $594,240 |
| 2023 | $469,040 | $125,200 | $0 | $594,240 | $594,240 |
| 2022 | $469,040 | $125,200 | $0 | $594,240 | $594,240 |
| 2021 | $407,860 | $125,200 | $0 | $533,060 | $533,060 |
| 2020 | $313,740 | $125,200 | $0 | $438,940 | $438,940 |
| 2019 | $344,740 | $94,200 | $0 | $438,940 | $438,940 |
| 2018 | $328,330 | $94,200 | $0 | $422,530 | $422,530 |
| 2017 | $312,690 | $94,200 | $0 | $406,890 | $406,890 |
| 2016 | $297,800 | $94,200 | $0 | $392,000 | $392,000 |
| 2015 | $297,800 | $94,200 | $0 | $392,000 | $392,000 |
| 2014 | $297,800 | $94,200 | $0 | $392,000 | $392,000 |
| 2013 | $297,800 | $94,200 | $0 | $392,000 | $392,000 |
| 2012 | $297,800 | $94,200 | $0 | $0 | $0 |
| 2011 | $267,800 | $124,200 | $0 | $0 | $0 |
| 2010 | $267,800 | $124,200 | $0 | $0 | $0 |
| 2009 | $311,400 | $124,200 | $0 | $0 | $0 |
| 2008 | $307,300 | $128,300 | $0 | $0 | $0 |
| 2007 | $219,600 | $50,200 | $0 | $0 | $0 |
Deed and Sales History
| 1 | 11/27/2024 | SWD | STATUTORY WARRANTY DEED | BAFFNEY KEVIN & KATY K | HANAFIN LIVING TRUST | | | $730,000.00 | 148593 | 2024-06900 |
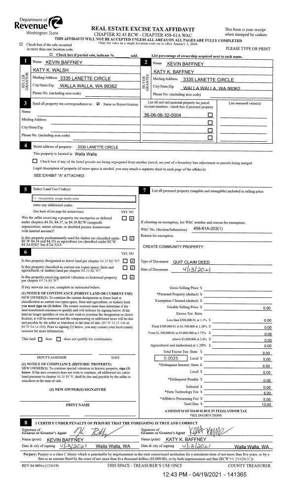
| 2 | 04/13/2021 | QCD | QUIT CLAIM DEED | BAFFNEY KEVIN | BAFFNEY KEVIN & KATY K | | | $0.00 | 141365 | 2021-04535 |
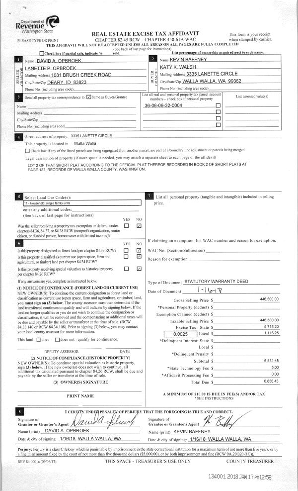
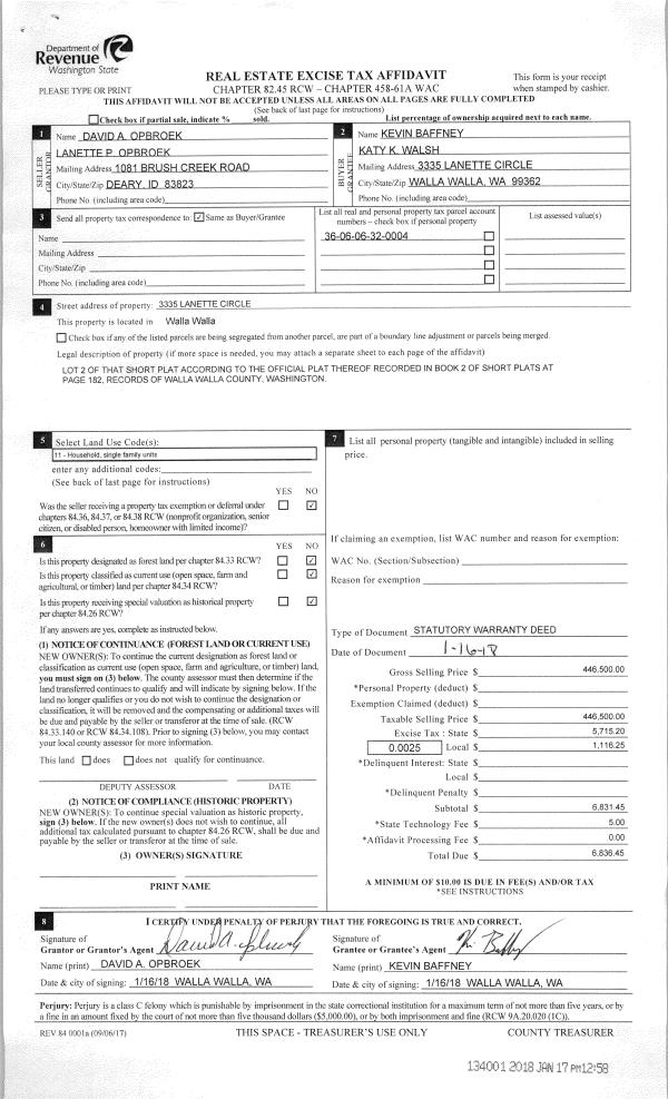
| 3 | 01/17/2018 | SWD | STATUTORY WARRANTY DEED | OPBROEK DAVID A & LANETTE P | BAFFNEY KEVIN | | | $446,500.00 | 134001 | 2018-00483 |
| 4 | 02/01/1993 | WARRANTY D | WARRANTY DEED | | | | | $28,000.00 | 78471 | 2039-301019 |
Payout Agreement
| No payout information available.. |