Property
Account |
| Property ID: | 5264 | Abbreviated Legal Description: | 6-6-36 TAX 35A |
| Parcel Number: | 360606210048 | Agent Code: | |
| Type: | Real | | |
| Tax Area: | 101 - 140-4 | Land Use Code | 11 |
| Open Space: | N | DFL | N |
| Historic Property: | N | Remodel Property: | N |
| Multi-Family Redevelopment: | N | | |
| Township: | 6 | Section: | 6 |
| Range: | 36 |
Location |
| Address: | 1533 TAUMARSON RD WA 99362 | Mapsco: | |
| Neighborhood: | G SFR Rural/City Inf | Map ID: | |
| Neighborhood CD: | 114012 |
Owner |
| Name: | TIMMONS JASON & KIRSTEN | Owner ID: | 68486 |
| Mailing Address: | 1533 TAUMARSON RD WALLA WALLA, WA 99362 | % Ownership: | 100.0000000000% |
| | | Exemptions: | |
Taxes and Assessment Details
Values
| (+) Improvement Homesite Value: | + | $0 | |
| (+) Improvement Non-Homesite Value: | + | $326,840 | |
| (+) Land Homesite Value: | + | $0 | |
| (+) Land Non-Homesite Value: | + | $121,970 | |
| (+) Curr Use (HS): | + | $0 | $0 |
| (+) Curr Use (NHS): | + | $0 | $0 |
| | | -------------------------- | |
| (=) Market Value: | = | $448,810 | |
| (–) Productivity Loss: | – | $0 | |
| | | -------------------------- | |
| (=) Subtotal: | = | $448,810 | |
| (+) Senior Appraised Value: | + | $0 | |
| (+) Non-Senior Appraised Value: | + | $448,810 | |
| | | -------------------------- | |
| (=) Total Appraised Value: | = | $448,810 | |
| (–) Senior Exemption Loss: | – | $0 | |
| (–) Exemption Loss: | – | $0 | |
| | | -------------------------- | |
| (=) Taxable Value: | = | $448,810 | |
Taxing Jurisdiction
| Owner: | TIMMONS JASON & KIRSTEN | | |
| % Ownership: | 100.0000000000% | | |
| Total Value: | $448,810 | | |
| Tax Area: | 101 - 140-4 |
| CERFD | CURRENT EXPENSE REFUND 010 | 0.0000000000 | $448,810 | $448,810 | $0.00 | | |
| CURREXP | CURRENT EXPENSE 010 | 1.0175366760 | $448,810 | $448,810 | $456.68 | | |
| HUMNSERV | HUMAN SERVICES 119 | 0.0250000000 | $448,810 | $448,810 | $11.22 | | |
| SLDREL | SOLDIERS RELIEF 121 | 0.0155990005 | $448,810 | $448,810 | $7.00 | | |
| EMERGSER | EMS 147 | 0.3792580840 | $448,810 | $448,810 | $170.21 | | |
| EMSRFD | EMS REFUND 147 | 0.0000000000 | $448,810 | $448,810 | $0.00 | | |
| FD4EXP | FD #4 EXPENSE 686 | 0.8836993059 | $448,810 | $448,810 | $396.61 | | |
| RLBRFD | RURAL LIBRARY REFUND 623 | 0.0000000000 | $448,810 | $448,810 | $0.00 | | |
| RURALLIB | RURAL LIBRARY 623 | 0.3710609029 | $448,810 | $448,810 | $166.54 | | |
| PORTRFD | PORT REFUND 640 | 0.0000000000 | $448,810 | $448,810 | $0.00 | | |
| PORTWWGEN | PORT OF WW 640 | 0.2460186015 | $448,810 | $448,810 | $110.42 | | |
| SD140BOND | SD #140 BOND 764 | 0.8342371393 | $448,810 | $448,810 | $374.41 | | |
| SD140GEN | SD #140 GENERAL 760 | 2.0646500647 | $448,810 | $448,810 | $926.64 | | |
| ST2 | STATE SCHOOL PART 2 600 | 0.8131451643 | $448,810 | $448,810 | $364.95 | | |
| STATESCHL | STATE SCHOOL 600 | 1.5158548041 | $448,810 | $448,810 | $680.33 | | |
| STREFUND | STATE REFUND LEVY 603 | 0.0000000000 | $448,810 | $448,810 | $0.00 | | |
| COROAD | COUNTY ROAD 115 | 1.6549953990 | $448,810 | $448,810 | $742.78 | | |
| CRPRD | COUNTY ROAD REFUND 115 | 0.0000000000 | $448,810 | $448,810 | $0.00 | | |
| | Total Tax Rate: | 9.8210551422 | | | | | |
| | | | | Taxes w/Current Exemptions: | $4,407.79 | | |
| | | | | Taxes w/o Exemptions: | $4,407.79 | | |
Improvement / Building
| Improvement #1: | RESIDENTIAL | State Code: | 11 | 1341.0 sqft | Value: | $326,840 |
| Exterior Wall: | VINYL | Heating/Cooling: | FORCED AIR | | Number of Bathrooms: | 3 | Number of Bedrooms: | 3 | | Plumbing: | 12 | Roof Covering: | COMP SHINGLE |
|
| | Type | Description | Class CD | Sub Class CD | Year Built | Area |
| | MA | Main Area | 1 | 30 | 1965 | 1341.0 |
| | CPC | COVERED CARPORT/PATIO | 1 | 30 | 0 | 180.0 |
| | CPCG | CARPORT/ GABLE ROOF | 1 | 30 | 0 | 360.0 |
| | POL3 | POLE BUILDING-CON,ELEC,INSU | 1 | 30 | 0 | 1200.0 |
| | SI1 | SITE IMPROVEMENT | 1 | 30 | 0 | 3.5 |
| | BASE | BASEMENT | 1 | 30 | 1965 | 1341.0 |
| | BPF | BASEMENT -PARTITIONED FINISH | 1 | 30 | 1965 | 1341.0 |
| | ATG | Attached Garage | 1 | 30 | 1965 | 441.0 |
| | RPO | OPEN PORCH W/ROOF | 1 | 30 | 0 | 36.0 |
| | S1F | Single One Story Fireplace | 1 | 30 | 0 | 1.0 |
Sketch
Property Image
Land
| 1 | RES 1 | Converted: Residential | 1.1100 | 0.00 | 0.00 | 0.00 | 1.00 | $121,970 | $0 |
Roll Value History
| 2026 | N/A | N/A | N/A | N/A | N/A |
| 2025 | $261,480 | $183,190 | $0 | $444,670 | $444,670 |
| 2024 | $326,840 | $121,970 | $0 | $448,810 | $448,810 |
| 2023 | $326,840 | $121,970 | $0 | $448,810 | $448,810 |
| 2022 | $326,840 | $121,970 | $0 | $448,810 | $448,810 |
| 2021 | $272,370 | $121,970 | $0 | $394,340 | $394,340 |
| 2020 | $181,580 | $121,970 | $0 | $303,550 | $303,550 |
| 2019 | $213,150 | $90,400 | $0 | $303,550 | $303,550 |
| 2018 | $185,350 | $90,400 | $0 | $275,750 | $275,750 |
| 2017 | $168,500 | $90,400 | $0 | $258,900 | $258,900 |
| 2016 | $168,500 | $90,400 | $0 | $258,900 | $258,900 |
| 2015 | $168,500 | $90,400 | $0 | $258,900 | $258,900 |
| 2014 | $168,500 | $90,400 | $0 | $258,900 | $258,900 |
| 2013 | $168,500 | $90,400 | $0 | $258,900 | $258,900 |
| 2012 | $123,700 | $90,400 | $0 | $0 | $0 |
| 2011 | $105,000 | $120,400 | $0 | $0 | $0 |
| 2010 | $105,000 | $120,400 | $0 | $0 | $0 |
| 2009 | $130,000 | $120,400 | $0 | $0 | $0 |
| 2008 | $174,500 | $75,900 | $0 | $0 | $0 |
| 2007 | $117,700 | $44,700 | $0 | $0 | $0 |
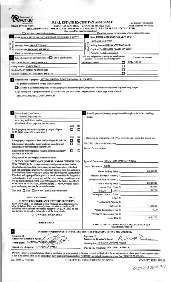
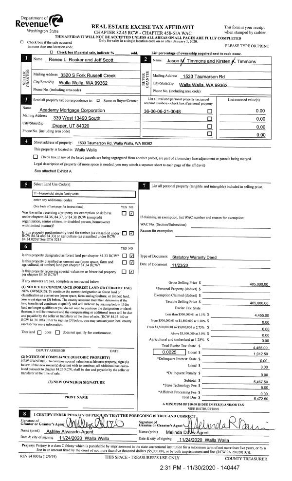
Deed and Sales History
| 1 | 11/30/2020 | SWD | STATUTORY WARRANTY DEED | SCOTT JEFF | TIMMONS JASON & KIRSTEN | | | $405,000.00 | 140447 | 2020-12616 |
| 2 | 06/05/2013 | WARRANTY D | WARRANTY DEED | BETTS, NANCY B PER REP OF ESTA | SCOTT, JEFF | | | $275,000.00 | 124074 | 2013-05640 |
| 3 | 08/09/1996 | WARRANTY D | WARRANTY DEED | | | | | $155,000.00 | 86684 | 2439-608122 |
Payout Agreement
| No payout information available.. |