Property
Account |
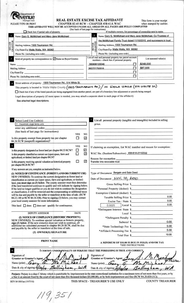
| Property ID: | 5251 | Abbreviated Legal Description: | 6-6-36 TAX 34 |
| Parcel Number: | 360606120046 | Agent Code: | |
| Type: | Real | | |
| Tax Area: | 101 - 140-4 | Land Use Code | 11 |
| Open Space: | N | DFL | N |
| Historic Property: | N | Remodel Property: | N |
| Multi-Family Redevelopment: | N | | |
| Township: | 6 | Section: | 6 |
| Range: | 36 |
Location |
| Address: | 1503 TAUMARSON RD WA 99362 | Mapsco: | |
| Neighborhood: | G SFR Rural/City Inf | Map ID: | |
| Neighborhood CD: | 114012 |
Owner |
| Name: | MCMICHAEL JOSEPH S & ANN M | Owner ID: | 72519 |
| Mailing Address: | 1503 TAUMARSON RD WALLA WALLA, WA 99362 | % Ownership: | 100.0000000000% |
| | | Exemptions: | |
Taxes and Assessment Details
Property Tax Information as of
02/21/2026
Click on "Statement Details" to expand or collapse a tax statement.
* Please enter a valid date ** Please enter a valid date *
Statement Details |
| | TOTAL: | $0.00 | $0.00 | $0.00 | $0.00 | $0.00 | $0.00 |
|
| | $0.00 | $0.00 | $0.00 | $0.00 | $0.00 | $0.00 |
Values
| (+) Improvement Homesite Value: | + | $0 | |
| (+) Improvement Non-Homesite Value: | + | $388,880 | |
| (+) Land Homesite Value: | + | $0 | |
| (+) Land Non-Homesite Value: | + | $120,000 | |
| (+) Curr Use (HS): | + | $0 | $0 |
| (+) Curr Use (NHS): | + | $0 | $0 |
| | | -------------------------- | |
| (=) Market Value: | = | $508,880 | |
| (–) Productivity Loss: | – | $0 | |
| | | -------------------------- | |
| (=) Subtotal: | = | $508,880 | |
| (+) Senior Appraised Value: | + | $0 | |
| (+) Non-Senior Appraised Value: | + | $508,880 | |
| | | -------------------------- | |
| (=) Total Appraised Value: | = | $508,880 | |
| (–) Senior Exemption Loss: | – | $0 | |
| (–) Exemption Loss: | – | $0 | |
| | | -------------------------- | |
| (=) Taxable Value: | = | $508,880 | |
Taxing Jurisdiction
| Owner: | MCMICHAEL JOSEPH S & ANN M | | |
| % Ownership: | 100.0000000000% | | |
| Total Value: | $508,880 | | |
| Tax Area: | 101 - 140-4 |
| CERFD | CURRENT EXPENSE REFUND 010 | 0.0000000000 | $508,880 | $508,880 | $0.00 | | |
| CURREXP | CURRENT EXPENSE 010 | 1.0175366760 | $508,880 | $508,880 | $517.80 | | |
| HUMNSERV | HUMAN SERVICES 119 | 0.0250000000 | $508,880 | $508,880 | $12.72 | | |
| SLDREL | SOLDIERS RELIEF 121 | 0.0155990005 | $508,880 | $508,880 | $7.94 | | |
| EMERGSER | EMS 147 | 0.3792580840 | $508,880 | $508,880 | $193.00 | | |
| EMSRFD | EMS REFUND 147 | 0.0000000000 | $508,880 | $508,880 | $0.00 | | |
| FD4EXP | FD #4 EXPENSE 686 | 0.8836993059 | $508,880 | $508,880 | $449.70 | | |
| RLBRFD | RURAL LIBRARY REFUND 623 | 0.0000000000 | $508,880 | $508,880 | $0.00 | | |
| RURALLIB | RURAL LIBRARY 623 | 0.3710609029 | $508,880 | $508,880 | $188.83 | | |
| PORTRFD | PORT REFUND 640 | 0.0000000000 | $508,880 | $508,880 | $0.00 | | |
| PORTWWGEN | PORT OF WW 640 | 0.2460186015 | $508,880 | $508,880 | $125.19 | | |
| SD140BOND | SD #140 BOND 764 | 0.8342371393 | $508,880 | $508,880 | $424.53 | | |
| SD140GEN | SD #140 GENERAL 760 | 2.0646500647 | $508,880 | $508,880 | $1,050.66 | | |
| ST2 | STATE SCHOOL PART 2 600 | 0.8131451643 | $508,880 | $508,880 | $413.79 | | |
| STATESCHL | STATE SCHOOL 600 | 1.5158548041 | $508,880 | $508,880 | $771.39 | | |
| STREFUND | STATE REFUND LEVY 603 | 0.0000000000 | $508,880 | $508,880 | $0.00 | | |
| COROAD | COUNTY ROAD 115 | 1.6549953990 | $508,880 | $508,880 | $842.19 | | |
| CRPRD | COUNTY ROAD REFUND 115 | 0.0000000000 | $508,880 | $508,880 | $0.00 | | |
| | Total Tax Rate: | 9.8210551422 | | | | | |
| | | | | Taxes w/Current Exemptions: | $4,997.74 | | |
| | | | | Taxes w/o Exemptions: | $4,997.74 | | |
Improvement / Building
| Improvement #1: | RESIDENTIAL | State Code: | 11 | 2220.0 sqft | Value: | $388,880 |
| Exterior Wall: | PLYWOOD | Heating/Cooling: | WARM & COOLED AIR | | Number of Bathrooms: | 2 | Number of Bedrooms: | 3 | | Plumbing: | 11 | Roof Covering: | COMP SHINGLE |
|
| | Type | Description | Class CD | Sub Class CD | Year Built | Area |
| | MA | Main Area | 1 | 30 | 1965 | 2220.0 |
| | CPC | COVERED CARPORT/PATIO | 1 | 30 | 0 | 334.0 |
| | SI1 | SITE IMPROVEMENT | 1 | 30 | 0 | 3.5 |
| | SMP | SWIMMING POOL | 1 | 30 | 0 | 1.0 |
| | ATG | Attached Garage | 1 | 30 | 0 | 864.0 |
| | RPO | OPEN PORCH W/ROOF | 1 | 30 | 0 | 42.0 |
| | S1F | Single One Story Fireplace | 1 | 30 | 0 | 1.0 |
Sketch
Property Image
Land
| 1 | RES 1 | Converted: Residential | 1.0000 | 0.00 | 0.00 | 0.00 | 1.00 | $120,000 | $0 |
Roll Value History
| 2026 | N/A | N/A | N/A | N/A | N/A |
| 2025 | $339,770 | $180,000 | $0 | $519,770 | $519,770 |
| 2024 | $408,330 | $120,000 | $0 | $528,330 | $528,330 |
| 2023 | $388,880 | $120,000 | $0 | $508,880 | $508,880 |
| 2022 | $353,530 | $120,000 | $0 | $473,530 | $473,530 |
| 2021 | $307,420 | $120,000 | $0 | $427,420 | $427,420 |
| 2020 | $256,180 | $120,000 | $0 | $376,180 | $376,180 |
| 2019 | $286,180 | $90,000 | $0 | $376,180 | $376,180 |
| 2018 | $248,850 | $90,000 | $0 | $338,850 | $338,850 |
| 2017 | $165,900 | $90,000 | $0 | $255,900 | $255,900 |
| 2016 | $158,000 | $90,000 | $0 | $248,000 | $248,000 |
| 2015 | $158,000 | $90,000 | $0 | $248,000 | $248,000 |
| 2014 | $158,000 | $90,000 | $0 | $248,000 | $248,000 |
| 2013 | $158,000 | $90,000 | $0 | $248,000 | $248,000 |
| 2012 | $158,000 | $90,000 | $0 | $0 | $0 |
| 2011 | $128,000 | $120,000 | $0 | $0 | $0 |
| 2010 | $128,000 | $120,000 | $0 | $0 | $0 |
| 2009 | $155,600 | $120,000 | $0 | $0 | $0 |
| 2008 | $200,600 | $75,000 | $0 | $0 | $0 |
| 2007 | $155,600 | $44,000 | $0 | $0 | $0 |
Deed and Sales History
| 1 | 09/23/2022 | SWD | STATUTORY WARRANTY DEED | MCMICHAEL FAMILY TRUST | MCMICHAEL JOSEPH S & ANN M | | | $540,500.00 | 144740 | 2022-07933 |
| 2 | 11/18/2010 | WARRANTY D | WARRANTY DEED | MC MICHAEL GARY G & MARY JANE | MCMICHAEL FAMILY TRUST | | | | 119351 | 2010-09468 |
| 3 | 07/25/1980 | WARRANTY D | WARRANTY DEED | | | | | $104,000.00 | 0 | 1238-005733 |
Payout Agreement
| No payout information available.. |