Property
Account |
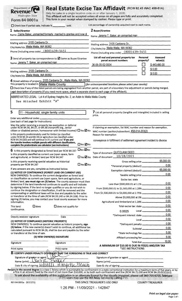
| Property ID: | 5219 | Abbreviated Legal Description: | SYDNEY HEIGHTS #2 LOT 4 |
| Parcel Number: | 360605520004 | Agent Code: | |
| Type: | Real | | |
| Tax Area: | 101 - 140-4 | Land Use Code | 11 |
| Open Space: | N | DFL | N |
| Historic Property: | N | Remodel Property: | N |
| Multi-Family Redevelopment: | N | | |
| Township: | 6 | Section: | 5 |
| Range: | 36 |
Location |
| Address: | 3105 CANBERRA DR WA 99362 | Mapsco: | |
| Neighborhood: | G Res Rural/City Inf | Map ID: | |
| Neighborhood CD: | 614012 |
Owner |
| Name: | BAKER JEREMY T | Owner ID: | 70598 |
| Mailing Address: | 3105 CANBERRA DR WALLA WALLA, WA 99362 | % Ownership: | 100.0000000000% |
| | | Exemptions: | |
Taxes and Assessment Details
Property Tax Information as of
02/21/2026
Click on "Statement Details" to expand or collapse a tax statement.
* Please enter a valid date ** Please enter a valid date *
Statement Details |
| | TOTAL: | $0.00 | $0.00 | $0.00 | $0.00 | $0.00 | $0.00 |
|
| | $0.00 | $0.00 | $0.00 | $0.00 | $0.00 | $0.00 |
Values
| (+) Improvement Homesite Value: | + | $0 | |
| (+) Improvement Non-Homesite Value: | + | $486,810 | |
| (+) Land Homesite Value: | + | $0 | |
| (+) Land Non-Homesite Value: | + | $150,370 | |
| (+) Curr Use (HS): | + | $0 | $0 |
| (+) Curr Use (NHS): | + | $0 | $0 |
| | | -------------------------- | |
| (=) Market Value: | = | $637,180 | |
| (–) Productivity Loss: | – | $0 | |
| | | -------------------------- | |
| (=) Subtotal: | = | $637,180 | |
| (+) Senior Appraised Value: | + | $0 | |
| (+) Non-Senior Appraised Value: | + | $637,180 | |
| | | -------------------------- | |
| (=) Total Appraised Value: | = | $637,180 | |
| (–) Senior Exemption Loss: | – | $0 | |
| (–) Exemption Loss: | – | $0 | |
| | | -------------------------- | |
| (=) Taxable Value: | = | $637,180 | |
Taxing Jurisdiction
| Owner: | BAKER JEREMY T | | |
| % Ownership: | 100.0000000000% | | |
| Total Value: | $637,180 | | |
| Tax Area: | 101 - 140-4 |
| CERFD | CURRENT EXPENSE REFUND 010 | 0.0000000000 | $637,180 | $637,180 | $0.00 | | |
| CURREXP | CURRENT EXPENSE 010 | 1.0175366760 | $637,180 | $637,180 | $648.35 | | |
| HUMNSERV | HUMAN SERVICES 119 | 0.0250000000 | $637,180 | $637,180 | $15.93 | | |
| SLDREL | SOLDIERS RELIEF 121 | 0.0155990005 | $637,180 | $637,180 | $9.94 | | |
| EMERGSER | EMS 147 | 0.3792580840 | $637,180 | $637,180 | $241.66 | | |
| EMSRFD | EMS REFUND 147 | 0.0000000000 | $637,180 | $637,180 | $0.00 | | |
| FD4EXP | FD #4 EXPENSE 686 | 0.8836993059 | $637,180 | $637,180 | $563.08 | | |
| RLBRFD | RURAL LIBRARY REFUND 623 | 0.0000000000 | $637,180 | $637,180 | $0.00 | | |
| RURALLIB | RURAL LIBRARY 623 | 0.3710609029 | $637,180 | $637,180 | $236.43 | | |
| PORTRFD | PORT REFUND 640 | 0.0000000000 | $637,180 | $637,180 | $0.00 | | |
| PORTWWGEN | PORT OF WW 640 | 0.2460186015 | $637,180 | $637,180 | $156.76 | | |
| SD140BOND | SD #140 BOND 764 | 0.8342371393 | $637,180 | $637,180 | $531.56 | | |
| SD140GEN | SD #140 GENERAL 760 | 2.0646500647 | $637,180 | $637,180 | $1,315.55 | | |
| ST2 | STATE SCHOOL PART 2 600 | 0.8131451643 | $637,180 | $637,180 | $518.12 | | |
| STATESCHL | STATE SCHOOL 600 | 1.5158548041 | $637,180 | $637,180 | $965.87 | | |
| STREFUND | STATE REFUND LEVY 603 | 0.0000000000 | $637,180 | $637,180 | $0.00 | | |
| COROAD | COUNTY ROAD 115 | 1.6549953990 | $637,180 | $637,180 | $1,054.53 | | |
| CRPRD | COUNTY ROAD REFUND 115 | 0.0000000000 | $637,180 | $637,180 | $0.00 | | |
| | Total Tax Rate: | 9.8210551422 | | | | | |
| | | | | Taxes w/Current Exemptions: | $6,257.78 | | |
| | | | | Taxes w/o Exemptions: | $6,257.78 | | |
Improvement / Building
| Improvement #1: | RESIDENTIAL | State Code: | 11 | 2272.0 sqft | Value: | $486,810 |
| Exterior Wall: | VINYL | Heating/Cooling: | HEAT PUMP | | Number of Bathrooms: | 3 | Number of Bedrooms: | 5 | | Plumbing: | 14 | Roof Covering: | COMP SHINGLE |
|
| | Type | Description | Class CD | Sub Class CD | Year Built | Area |
| | MA | Main Area | 1 | 40 | 1975 | 2272.0 |
| | SI1 | SITE IMPROVEMENT | 1 | 40 | 1975 | 5.0 |
| | ATG | Attached Garage | 1 | 40 | 1975 | 736.0 |
| | RPO | OPEN PORCH W/ROOF | 1 | 40 | 1975 | 256.0 |
| | D1F | Double 1 Story Fireplace | 1 | 40 | 1975 | 1.0 |
| | SMP | SWIMMING POOL | 1 | 40 | 1975 | 1.0 |
| | TOOL | TOOL SHED | 1 | 40 | 1975 | 128.0 |
Sketch
Property Image
Land
| 1 | RES 1 | Converted: Residential | 1.0100 | 0.00 | 0.00 | 0.00 | 1.00 | $150,370 | $0 |
Roll Value History
| 2026 | N/A | N/A | N/A | N/A | N/A |
| 2025 | $492,460 | $170,410 | $0 | $662,870 | $662,870 |
| 2024 | $486,810 | $150,370 | $0 | $637,180 | $637,180 |
| 2023 | $486,810 | $150,370 | $0 | $637,180 | $637,180 |
| 2022 | $486,810 | $100,050 | $0 | $586,860 | $586,860 |
| 2021 | $463,630 | $100,050 | $0 | $563,680 | $563,680 |
| 2020 | $343,430 | $100,050 | $0 | $443,480 | $443,480 |
| 2019 | $343,430 | $100,050 | $0 | $443,480 | $443,480 |
| 2018 | $173,830 | $90,000 | $0 | $263,830 | $263,830 |
| 2017 | $158,030 | $90,000 | $0 | $248,030 | $248,030 |
| 2016 | $150,500 | $90,000 | $0 | $240,500 | $240,500 |
| 2015 | $150,500 | $90,000 | $0 | $240,500 | $240,500 |
| 2014 | $150,500 | $90,000 | $0 | $240,500 | $240,500 |
| 2013 | $150,500 | $90,000 | $0 | $240,500 | $240,500 |
| 2012 | $150,500 | $90,000 | $0 | $0 | $0 |
| 2011 | $120,500 | $120,000 | $0 | $0 | $0 |
| 2010 | $120,500 | $120,000 | $0 | $0 | $0 |
| 2009 | $186,500 | $120,000 | $0 | $0 | $0 |
| 2008 | $186,500 | $120,000 | $0 | $0 | $0 |
| 2007 | $186,000 | $44,100 | $0 | $0 | $0 |
Deed and Sales History
| 1 | 03/11/2024 | SWD | STATUTORY WARRANTY DEED | BAKER JEREMY T | WATILO ROBERT & MICHELLE | | | $680,000.00 | 147234 | 2024-01173 |
| 2 | 11/09/2021 | QCD | QUIT CLAIM DEED | BAKER JEREMY T & CARRIE | BAKER JEREMY T | | | $65,000.00 | 142847 | 2021-13429 |
| 3 | 08/29/2018 | SWD | STATUTORY WARRANTY DEED | HOE ROBIN K & HEATHER L (JTWRS) | BAKER JEREMY T & CARRIE | | | $486,500.00 | 135441 | 2018-07168 |
| 4 | 12/16/2008 | WARRANTY D | WARRANTY DEED | ARMSTRONG, RICHARD & DEBORAHA | HOE, ROBIN K & HEATHER L | | | $244,500.00 | 116089 | 2008-12360 |
| 5 | 08/26/1985 | WARRANTY D | WARRANTY DEED | | | | | $112,000.00 | 0 | 1528-505844 |
Payout Agreement
| No payout information available.. |