Property
Account |
| Property ID: | 5195 | Abbreviated Legal Description: | TAX DIST SEG...SEE 36-07-32-51-3602 RANSOM CLARK DC (PORTION ADJUSTED PARCEL 1 SURVEY 2020-12103) TAX 6 LY NWLY OF RD BLK 37; PLUS PORTION TAX 1 BLK 36 |
| Parcel Number: | 360605513706 | Agent Code: | |
| Type: | Real | | |
| Tax Area: | 101 - 140-4 | Land Use Code | 81 |
| Open Space: | N | DFL | N |
| Historic Property: | N | Remodel Property: | N |
| Multi-Family Redevelopment: | N | | |
| Township: | 6 | Section: | 5 |
| Range: | 36 |
Location |
| Address: | WA 99362 | Mapsco: | |
| Neighborhood: | G Res Land Contig | Map ID: | |
| Neighborhood CD: | 614097 |
Owner |
| Name: | CHARLES POTTS & ANN WEATHERILL FAMILY TRUST | Owner ID: | 57587 |
| Mailing Address: | CHARLES POTTS TRUSTEE PO BOX 100 WALLA WALLA, WA 99362 | % Ownership: | 100.0000000000% |
| | | Exemptions: | |
Taxes and Assessment Details
Values
| (+) Improvement Homesite Value: | + | N/A | |
| (+) Improvement Non-Homesite Value: | + | N/A | |
| (+) Land Homesite Value: | + | N/A | |
| (+) Land Non-Homesite Value: | + | N/A | Ag / Timber Use Value |
| (+) Curr Use (HS): | + | N/A | N/A |
| (+) Curr Use (NHS): | + | N/A | N/A |
| | | -------------------------- | |
| (=) Market Value: | = | N/A | |
| (–) Productivity Loss: | – | N/A | |
| | | -------------------------- | |
| (=) Subtotal: | = | N/A | |
| (+) Senior Appraised Value: | + | N/A | |
| (+) Non-Senior Appraised Value: | + | N/A | |
| | | -------------------------- | |
| (=) Total Appraised Value: | = | N/A | |
| (–) Senior Exemption Loss: | – | N/A | |
| (–) Exemption Loss: | – | N/A | |
| | | -------------------------- | |
| (=) Taxable Value: | = | N/A | |
Taxing Jurisdiction
| Owner: | CHARLES POTTS & ANN WEATHERILL FAMILY TRUST | | |
| % Ownership: | 100.0000000000% | | |
| Total Value: | N/A | | |
| Tax Area: | 101 - 140-4 |
| CERFD | CURRENT EXPENSE REFUND 010 | N/A | N/A | N/A | N/A | | |
| CURREXP | CURRENT EXPENSE 010 | N/A | N/A | N/A | N/A | | |
| HUMNSERV | HUMAN SERVICES 119 | N/A | N/A | N/A | N/A | | |
| SLDREL | SOLDIERS RELIEF 121 | N/A | N/A | N/A | N/A | | |
| EMERGSER | EMS 147 | N/A | N/A | N/A | N/A | | |
| EMSRFD | EMS REFUND 147 | N/A | N/A | N/A | N/A | | |
| FD4EXP | FD #4 EXPENSE 686 | N/A | N/A | N/A | N/A | | |
| RLBRFD | RURAL LIBRARY REFUND 623 | N/A | N/A | N/A | N/A | | |
| RURALLIB | RURAL LIBRARY 623 | N/A | N/A | N/A | N/A | | |
| PORTRFD | PORT REFUND 640 | N/A | N/A | N/A | N/A | | |
| PORTWWGEN | PORT OF WW 640 | N/A | N/A | N/A | N/A | | |
| SD140BOND | SD #140 BOND 764 | N/A | N/A | N/A | N/A | | |
| SD140GEN | SD #140 GENERAL 760 | N/A | N/A | N/A | N/A | | |
| ST2 | STATE SCHOOL PART 2 600 | N/A | N/A | N/A | N/A | | |
| STATESCHL | STATE SCHOOL 600 | N/A | N/A | N/A | N/A | | |
| STREFUND | STATE REFUND LEVY 603 | N/A | N/A | N/A | N/A | | |
| COROAD | COUNTY ROAD 115 | N/A | N/A | N/A | N/A | | |
| CRPRD | COUNTY ROAD REFUND 115 | N/A | N/A | N/A | N/A | | |
| | Total Tax Rate: | N/A | | | | | |
| | | | | Taxes w/Current Exemptions: | N/A | | |
| | | | | Taxes w/o Exemptions: | N/A | | |
Improvement / Building
| Improvement #1: | PERM CROP | State Code: | 81 | 0.0 sqft | Value: | N/A |
| | Type | Description | Class CD | Sub Class CD | Year Built | Area |
| | GRAPES | WINE | GRAPES | | 1998 | 1.0 |
| | GRAPES | WINE | GRAPES | | 2006 | 1.0 |
| | GRAPES | WINE | GRAPES | | 2008 | 1.0 |
Sketch
| No sketches available for this property. |
Property Image
Land
| 1 | RES 1 | Converted: Residential | 1.0190 | 44387.64 | 0.00 | 0.00 | 1.00 | N/A | N/A |
| 2 | 10000-C1-I | 10000-C1-I | 3.5000 | 152460.00 | 0.00 | 0.00 | 1.00 | N/A | N/A |
Roll Value History
| 2026 | N/A | N/A | N/A | N/A | N/A |
| 2025 | $24,000 | $45,200 | $0 | $69,200 | $69,200 |
| 2024 | $24,000 | $41,000 | $0 | $65,000 | $65,000 |
| 2023 | $24,000 | $41,000 | $0 | $65,000 | $65,000 |
| 2022 | $24,000 | $41,000 | $0 | $65,000 | $65,000 |
| 2021 | $24,000 | $43,100 | $0 | $67,100 | $67,100 |
| 2020 | $24,000 | $43,100 | $0 | $67,100 | $67,100 |
| 2019 | $0 | $4,150 | $0 | $4,150 | $4,150 |
| 2018 | $0 | $3,300 | $0 | $3,300 | $3,300 |
| 2017 | $0 | $3,300 | $0 | $3,300 | $3,300 |
| 2016 | $0 | $3,300 | $0 | $3,300 | $3,300 |
| 2015 | $0 | $3,300 | $0 | $3,300 | $3,300 |
| 2014 | $0 | $3,300 | $0 | $3,300 | $3,300 |
| 2013 | $0 | $3,300 | $0 | $3,300 | $3,300 |
| 2012 | $0 | $3,300 | $0 | $0 | $0 |
| 2011 | $0 | $3,400 | $0 | $0 | $0 |
| 2010 | $0 | $3,400 | $0 | $0 | $0 |
| 2009 | $0 | $3,400 | $0 | $0 | $0 |
| 2008 | $0 | $3,400 | $0 | $0 | $0 |
| 2007 | $0 | $5,000 | $0 | $0 | $0 |
Deed and Sales History
| 1 | 11/16/2020 | WARRANTY D | WARRANTY DEED | FC NEWHOUSE PROPERTIES LLC | CHARLES POTTS & ANN WEATHERILL FAMILY TRUST | | | | 140347 | 2020-12104 |
| 2 | 11/16/2020 | SURVEY | SURVEY | | | 13 | 232 | | 0 | 2020-12103 |
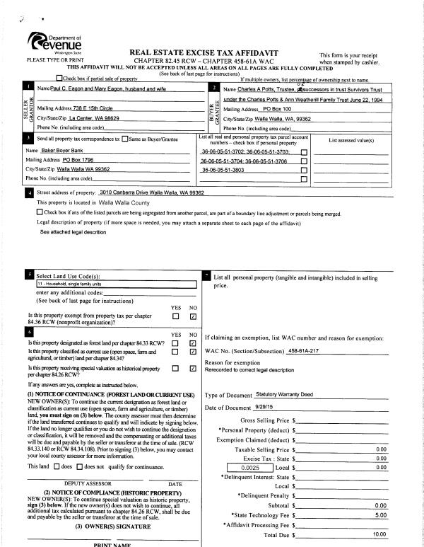
| 3 | 11/25/2015 | SWD | STATUTORY WARRANTY DEED | EAGON PAUL C & MARY | CHARLES POTTS & ANN WEATHERILL FAMILY TRUST | 5 PARCELS | | $0.00 | 129254 | 2015-10194 |
| 4 | 09/29/2015 | SWD | STATUTORY WARRANTY DEED | EAGON PAUL C & MARY V | CHARLES POTTS & ANN WEATHERILL FAMILY TRUST | | 4-PARCELS | $650,000.00 | 128912 | 2015-08591 |
|   | |
Payout Agreement
| No payout information available.. |