Property
Account |
| Property ID: | 5194 | Abbreviated Legal Description: | RANSOM CLARK DC LOT 2 OF S/P (PTN TAX 7 IN BLK 37) |
| Parcel Number: | 360605513703 | Agent Code: | |
| Type: | Real | | |
| Tax Area: | 101 - 140-4 | Land Use Code | 11 |
| Open Space: | N | DFL | N |
| Historic Property: | N | Remodel Property: | N |
| Multi-Family Redevelopment: | N | | |
| Township: | 6 | Section: | 5 |
| Range: | 36 |
Location |
| Address: | 3010 CANBERRA DR WA 99362 | Mapsco: | |
| Neighborhood: | G Res | Map ID: | |
| Neighborhood CD: | 614011 |
Owner |
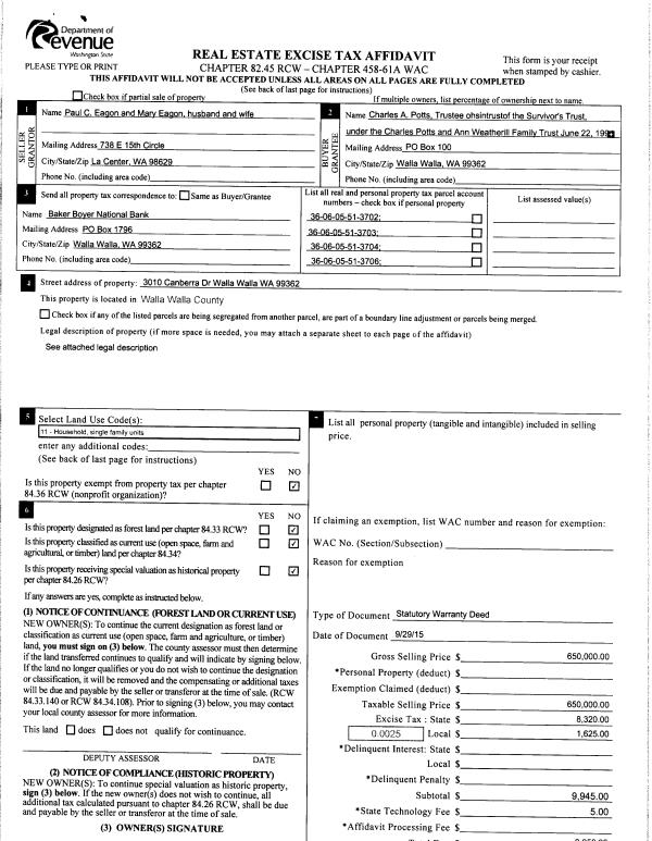
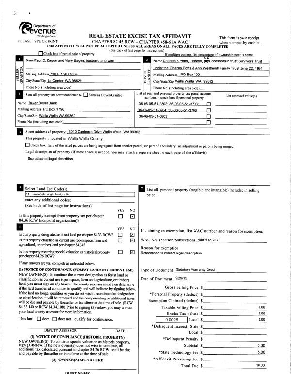
| Name: | CHARLES POTTS & ANN WEATHERILL FAMILY TRUST | Owner ID: | 57587 |
| Mailing Address: | CHARLES POTTS TRUSTEE PO BOX 100 WALLA WALLA, WA 99362 | % Ownership: | 100.0000000000% |
| | | Exemptions: | |
Taxes and Assessment Details
Values
| (+) Improvement Homesite Value: | + | N/A | |
| (+) Improvement Non-Homesite Value: | + | N/A | |
| (+) Land Homesite Value: | + | N/A | |
| (+) Land Non-Homesite Value: | + | N/A | Ag / Timber Use Value |
| (+) Curr Use (HS): | + | N/A | N/A |
| (+) Curr Use (NHS): | + | N/A | N/A |
| | | -------------------------- | |
| (=) Market Value: | = | N/A | |
| (–) Productivity Loss: | – | N/A | |
| | | -------------------------- | |
| (=) Subtotal: | = | N/A | |
| (+) Senior Appraised Value: | + | N/A | |
| (+) Non-Senior Appraised Value: | + | N/A | |
| | | -------------------------- | |
| (=) Total Appraised Value: | = | N/A | |
| (–) Senior Exemption Loss: | – | N/A | |
| (–) Exemption Loss: | – | N/A | |
| | | -------------------------- | |
| (=) Taxable Value: | = | N/A | |
Taxing Jurisdiction
| Owner: | CHARLES POTTS & ANN WEATHERILL FAMILY TRUST | | |
| % Ownership: | 100.0000000000% | | |
| Total Value: | N/A | | |
| Tax Area: | 101 - 140-4 |
| CERFD | CURRENT EXPENSE REFUND 010 | N/A | N/A | N/A | N/A | | |
| CURREXP | CURRENT EXPENSE 010 | N/A | N/A | N/A | N/A | | |
| HUMNSERV | HUMAN SERVICES 119 | N/A | N/A | N/A | N/A | | |
| SLDREL | SOLDIERS RELIEF 121 | N/A | N/A | N/A | N/A | | |
| EMERGSER | EMS 147 | N/A | N/A | N/A | N/A | | |
| EMSRFD | EMS REFUND 147 | N/A | N/A | N/A | N/A | | |
| FD4EXP | FD #4 EXPENSE 686 | N/A | N/A | N/A | N/A | | |
| RLBRFD | RURAL LIBRARY REFUND 623 | N/A | N/A | N/A | N/A | | |
| RURALLIB | RURAL LIBRARY 623 | N/A | N/A | N/A | N/A | | |
| PORTRFD | PORT REFUND 640 | N/A | N/A | N/A | N/A | | |
| PORTWWGEN | PORT OF WW 640 | N/A | N/A | N/A | N/A | | |
| SD140BOND | SD #140 BOND 764 | N/A | N/A | N/A | N/A | | |
| SD140GEN | SD #140 GENERAL 760 | N/A | N/A | N/A | N/A | | |
| ST2 | STATE SCHOOL PART 2 600 | N/A | N/A | N/A | N/A | | |
| STATESCHL | STATE SCHOOL 600 | N/A | N/A | N/A | N/A | | |
| STREFUND | STATE REFUND LEVY 603 | N/A | N/A | N/A | N/A | | |
| COROAD | COUNTY ROAD 115 | N/A | N/A | N/A | N/A | | |
| CRPRD | COUNTY ROAD REFUND 115 | N/A | N/A | N/A | N/A | | |
| | Total Tax Rate: | N/A | | | | | |
| | | | | Taxes w/Current Exemptions: | N/A | | |
| | | | | Taxes w/o Exemptions: | N/A | | |
Improvement / Building
| Improvement #1: | RESIDENTIAL | State Code: | 11 | 2480.0 sqft | Value: | N/A |
| Exterior Wall: | PLYWOOD | Heating/Cooling: | WARM & COOLED AIR | | Number of Bathrooms: | 3 | Number of Bedrooms: | 3 | | Plumbing: | 12 | Roof Covering: | COMP SHINGLE |
|
| | Type | Description | Class CD | Sub Class CD | Year Built | Area |
| | MA | Main Area | 2 | 40 | 1997 | 2480.0 |
| | SI1 | SITE IMPROVEMENT | 2 | 40 | 1997 | 4.0 |
| | UPFL | Upper Floor (included in main area) | 2 | 40 | 1997 | 1324.0 |
| | BIG | Built In Garage | 2 | 40 | 1997 | 528.0 |
| | WOD | Wood Deck | 2 | 40 | 1997 | 223.0 |
| | S1F | Single One Story Fireplace | 2 | 40 | 1997 | 1.0 |
| | WOD | Wood Deck | 2 | 40 | 1997 | 363.0 |
| | RCD | WOOD DECK W/ROOF, CEILED | 2 | 40 | 1997 | 264.0 |
Sketch
Property Image
Land
| 1 | RES 1 | Converted: Residential | 1.0200 | 44431.20 | 0.00 | 0.00 | 1.00 | N/A | N/A |
Roll Value History
| 2026 | N/A | N/A | N/A | N/A | N/A |
| 2025 | $557,700 | $170,790 | $0 | $728,490 | $728,490 |
| 2024 | $567,320 | $150,720 | $0 | $718,040 | $718,040 |
| 2023 | $436,400 | $150,720 | $0 | $587,120 | $587,120 |
| 2022 | $436,400 | $100,100 | $0 | $536,500 | $536,500 |
| 2021 | $363,670 | $100,100 | $0 | $463,770 | $463,770 |
| 2020 | $316,230 | $100,100 | $0 | $416,330 | $416,330 |
| 2019 | $316,230 | $100,100 | $0 | $416,330 | $416,330 |
| 2018 | $294,090 | $90,100 | $0 | $384,190 | $384,190 |
| 2017 | $280,090 | $90,100 | $0 | $370,190 | $370,190 |
| 2016 | $280,090 | $90,100 | $0 | $370,190 | $370,190 |
| 2015 | $254,630 | $90,100 | $0 | $344,730 | $344,730 |
| 2014 | $242,500 | $90,100 | $0 | $332,600 | $332,600 |
| 2013 | $242,500 | $90,100 | $0 | $332,600 | $332,600 |
| 2012 | $242,500 | $90,100 | $0 | $0 | $0 |
| 2011 | $212,500 | $120,100 | $0 | $0 | $0 |
| 2010 | $212,500 | $120,100 | $0 | $0 | $0 |
| 2009 | $231,900 | $120,100 | $0 | $0 | $0 |
| 2008 | $231,900 | $120,100 | $0 | $0 | $0 |
| 2007 | $191,700 | $44,100 | $0 | $0 | $0 |
Deed and Sales History
| 1 | 11/25/2015 | SWD | STATUTORY WARRANTY DEED | EAGON PAUL C & MARY | CHARLES POTTS & ANN WEATHERILL FAMILY TRUST | 5 PARCELS | | $0.00 | 129254 | 2015-10194 |
| 2 | 09/29/2015 | SWD | STATUTORY WARRANTY DEED | EAGON PAUL C & MARY V | CHARLES POTTS & ANN WEATHERILL FAMILY TRUST | | 4-PARCELS | $650,000.00 | 128912 | 2015-08591 |
|   | |
| 3 | 05/15/1996 | WARRANTY D | WARRANTY DEED | | | | | $25,000.00 | 86116 | 2419-604834 |
Payout Agreement
| No payout information available.. |