Property
Account |
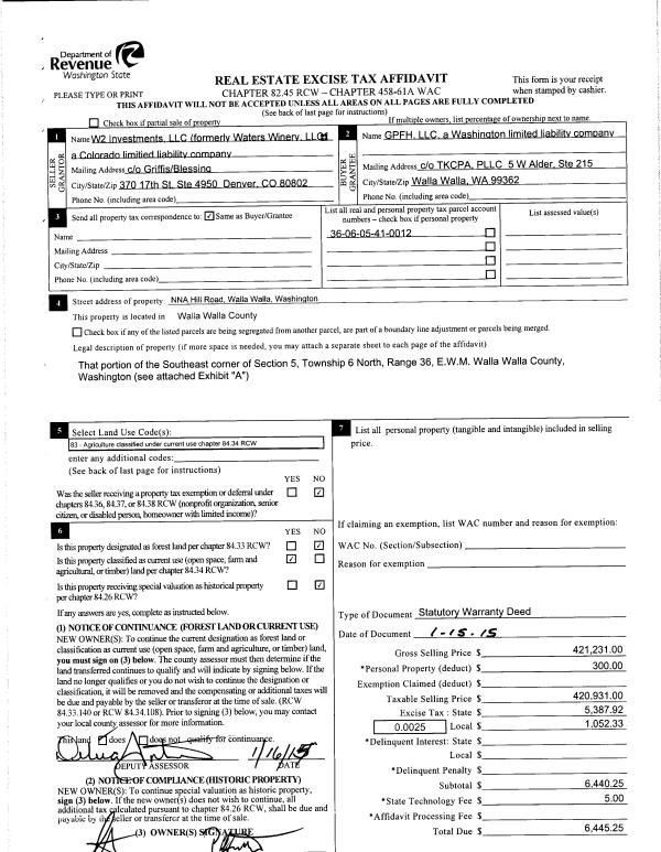
| Property ID: | 5183 | Abbreviated Legal Description: | 5-6-36 PT IN ELY PTN OF SE1/4 |
| Parcel Number: | 360605410012 | Agent Code: | |
| Type: | Real | | |
| Tax Area: | 101 - 140-4 | Land Use Code | 83 |
| Open Space: | Y | DFL | N |
| Historic Property: | N | Remodel Property: | N |
| Multi-Family Redevelopment: | N | | |
| Township: | 6 | Section: | 5 |
| Range: | 36 |
Location |
| Address: | WA 99362 | Mapsco: | |
| Neighborhood: | 0 Farm | Map ID: | |
| Neighborhood CD: | 4240 |
Owner |
| Name: | GPFH LLC | Owner ID: | 56107 |
| Mailing Address: | C/O TKCPA PLLC 5 W ALDER ST STE 215 WALLA WALLA, WA 99362 | % Ownership: | 100.0000000000% |
| | | Exemptions: | |
Taxes and Assessment Details
Values
| (+) Improvement Homesite Value: | + | $0 | |
| (+) Improvement Non-Homesite Value: | + | $51,200 | |
| (+) Land Homesite Value: | + | $0 | |
| (+) Land Non-Homesite Value: | + | $200,000 | |
| (+) Curr Use (HS): | + | $0 | $0 |
| (+) Curr Use (NHS): | + | $51,760 | $8,150 |
| | | -------------------------- | |
| (=) Market Value: | = | $302,960 | |
| (–) Productivity Loss: | – | $43,610 | |
| | | -------------------------- | |
| (=) Subtotal: | = | $259,350 | |
| (+) Senior Appraised Value: | + | $0 | |
| (+) Non-Senior Appraised Value: | + | $259,350 | |
| | | -------------------------- | |
| (=) Total Appraised Value: | = | $259,350 | |
| (–) Senior Exemption Loss: | – | $0 | |
| (–) Exemption Loss: | – | $0 | |
| | | -------------------------- | |
| (=) Taxable Value: | = | $259,350 | |
Taxing Jurisdiction
| Owner: | GPFH LLC | | |
| % Ownership: | 100.0000000000% | | |
| Total Value: | $302,960 | | |
| Tax Area: | 101 - 140-4 |
| CERFD | CURRENT EXPENSE REFUND 010 | 0.0000000000 | $259,350 | $259,350 | $0.00 | | |
| CURREXP | CURRENT EXPENSE 010 | 1.0175366760 | $259,350 | $259,350 | $263.90 | | |
| HUMNSERV | HUMAN SERVICES 119 | 0.0250000000 | $259,350 | $259,350 | $6.48 | | |
| SLDREL | SOLDIERS RELIEF 121 | 0.0155990005 | $259,350 | $259,350 | $4.05 | | |
| EMERGSER | EMS 147 | 0.3792580840 | $259,350 | $259,350 | $98.36 | | |
| EMSRFD | EMS REFUND 147 | 0.0000000000 | $259,350 | $259,350 | $0.00 | | |
| FD4EXP | FD #4 EXPENSE 686 | 0.8836993059 | $259,350 | $259,350 | $229.19 | | |
| RLBRFD | RURAL LIBRARY REFUND 623 | 0.0000000000 | $259,350 | $259,350 | $0.00 | | |
| RURALLIB | RURAL LIBRARY 623 | 0.3710609029 | $259,350 | $259,350 | $96.23 | | |
| PORTRFD | PORT REFUND 640 | 0.0000000000 | $259,350 | $259,350 | $0.00 | | |
| PORTWWGEN | PORT OF WW 640 | 0.2460186015 | $259,350 | $259,350 | $63.80 | | |
| SD140BOND | SD #140 BOND 764 | 0.8342371393 | $259,350 | $259,350 | $216.36 | | |
| SD140GEN | SD #140 GENERAL 760 | 2.0646500647 | $259,350 | $259,350 | $535.47 | | |
| ST2 | STATE SCHOOL PART 2 600 | 0.8131451643 | $259,350 | $259,350 | $210.89 | | |
| STATESCHL | STATE SCHOOL 600 | 1.5158548041 | $259,350 | $259,350 | $393.14 | | |
| STREFUND | STATE REFUND LEVY 603 | 0.0000000000 | $259,350 | $259,350 | $0.00 | | |
| COROAD | COUNTY ROAD 115 | 1.6549953990 | $259,350 | $259,350 | $429.22 | | |
| CRPRD | COUNTY ROAD REFUND 115 | 0.0000000000 | $259,350 | $259,350 | $0.00 | | |
| | Total Tax Rate: | 9.8210551422 | | | | | |
| | | | | Taxes w/Current Exemptions: | $2,547.09 | | |
| | | | | Taxes w/o Exemptions: | $2,547.09 | | |
Improvement / Building
| Improvement #1: | PERM CROP | State Code: | 83 | 0.0 sqft | Value: | $51,200 |
Sketch
| No sketches available for this property. |
Property Image
Land
| 1 | HS-200,000 | Hs 200,000 | 1.0000 | 43560.00 | 0.00 | 0.00 | 1.00 | $200,000 | $0 |
| 2 | 8000-C1-I | Class 1 irrigated | 6.4700 | 281833.20 | 0.00 | 0.00 | 1.00 | $51,760 | $8,150 |
Roll Value History
| 2026 | N/A | N/A | N/A | N/A | N/A |
| 2025 | $51,200 | $251,760 | $8,040 | $259,240 | $259,240 |
| 2024 | $51,200 | $251,760 | $8,190 | $259,390 | $259,390 |
| 2023 | $51,200 | $251,760 | $8,150 | $259,350 | $259,350 |
| 2022 | $51,200 | $136,760 | $8,020 | $144,220 | $144,220 |
| 2021 | $51,200 | $136,760 | $8,020 | $144,220 | $144,220 |
| 2020 | $51,200 | $136,760 | $8,190 | $144,390 | $144,390 |
| 2019 | $45,460 | $136,760 | $8,440 | $138,900 | $138,900 |
| 2018 | $42,960 | $136,760 | $8,600 | $136,560 | $136,560 |
| 2017 | $42,960 | $136,760 | $8,870 | $136,830 | $136,830 |
| 2016 | $51,380 | $59,760 | $10,280 | $61,660 | $61,660 |
| 2015 | $51,400 | $59,760 | $9,360 | $60,760 | $60,760 |
| 2014 | $51,400 | $59,760 | $9,360 | $60,760 | $60,760 |
| 2013 | $51,400 | $59,800 | $8,000 | $59,400 | $59,400 |
| 2012 | $0 | $6,400 | $0 | $0 | $0 |
| 2011 | $0 | $6,100 | $0 | $0 | $0 |
| 2010 | $0 | $6,300 | $0 | $0 | $0 |
| 2009 | $0 | $6,200 | $0 | $0 | $0 |
| 2008 | $0 | $7,500 | $0 | $0 | $0 |
| 2007 | $0 | $8,200 | $0 | $0 | $0 |
Deed and Sales History
| 1 | 10/19/2020 | WARRANTY D | WARRANTY DEED | WHALEY EDWIN V | BYERLEY FARM INC | | | | 140141 | 2020-10871 |
| 2 | 01/16/2015 | SWD | STATUTORY WARRANTY DEED | WATERS WINERY LLC | GPFH LLC | | | $420,931.00 | 127293 | 2015-00391 |
| 3 | 05/24/2007 | WARRANTY D | WARRANTY DEED | HILL, JEFFREY J & KATHRYN B | WATERS WINERY LLC | | | $308,980.00 | 112894 | 2007-05913 |
| 4 | 01/25/1999 | WARRANTY D | WARRANTY DEED | | | | | $140,000.00 | 92065 | 2799-900918 |
Payout Agreement
| No payout information available.. |