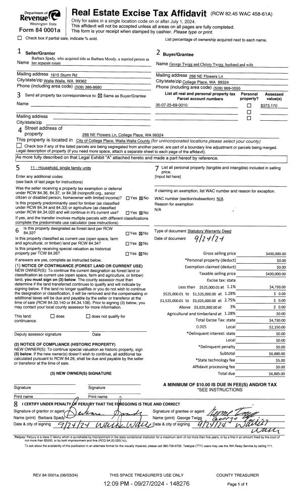
Property
Account |
| Property ID: | 5012 | Abbreviated Legal Description: | LARCH PLACE LT 10 |
| Parcel Number: | 350725690010 | Agent Code: | |
| Type: | Real | | |
| Tax Area: | 77 - CP-250-F | Land Use Code | 11 |
| Open Space: | N | DFL | N |
| Historic Property: | N | Remodel Property: | N |
| Multi-Family Redevelopment: | N | | |
| Township: | 7 | Section: | 25 |
| Range: | 35 |
Location |
| Address: | 266 NE FLOWERS LN WA 99324 | Mapsco: | |
| Neighborhood: | A SFR | Map ID: | |
| Neighborhood CD: | 113011 |
Owner |
| Name: | TWIGG GEORGE & CHRISTY | Owner ID: | 76111 |
| Mailing Address: | 266 NE FLOWERS LN COLLEGE PLACE, WA 99324 | % Ownership: | 100.0000000000% |
| | | Exemptions: | |
Taxes and Assessment Details
Property Tax Information as of
02/21/2026
Click on "Statement Details" to expand or collapse a tax statement.
* Please enter a valid date ** Please enter a valid date *
Statement Details |
| | TOTAL: | $0.00 | $0.00 | $0.00 | $0.00 | $0.00 | $0.00 |
|
| | $0.00 | $0.00 | $0.00 | $0.00 | $0.00 | $0.00 |
Values
| (+) Improvement Homesite Value: | + | N/A | |
| (+) Improvement Non-Homesite Value: | + | N/A | |
| (+) Land Homesite Value: | + | N/A | |
| (+) Land Non-Homesite Value: | + | N/A | Ag / Timber Use Value |
| (+) Curr Use (HS): | + | N/A | N/A |
| (+) Curr Use (NHS): | + | N/A | N/A |
| | | -------------------------- | |
| (=) Market Value: | = | N/A | |
| (–) Productivity Loss: | – | N/A | |
| | | -------------------------- | |
| (=) Subtotal: | = | N/A | |
| (+) Senior Appraised Value: | + | N/A | |
| (+) Non-Senior Appraised Value: | + | N/A | |
| | | -------------------------- | |
| (=) Total Appraised Value: | = | N/A | |
| (–) Senior Exemption Loss: | – | N/A | |
| (–) Exemption Loss: | – | N/A | |
| | | -------------------------- | |
| (=) Taxable Value: | = | N/A | |
Taxing Jurisdiction
| Owner: | TWIGG GEORGE & CHRISTY | | |
| % Ownership: | 100.0000000000% | | |
| Total Value: | N/A | | |
| Tax Area: | 77 - CP-250-F |
| CERFD | CURRENT EXPENSE REFUND 010 | N/A | N/A | N/A | N/A | | |
| CURREXP | CURRENT EXPENSE 010 | N/A | N/A | N/A | N/A | | |
| HUMNSERV | HUMAN SERVICES 119 | N/A | N/A | N/A | N/A | | |
| SLDREL | SOLDIERS RELIEF 121 | N/A | N/A | N/A | N/A | | |
| COLLPLBOND | C OF CP BOND 644 | N/A | N/A | N/A | N/A | | |
| COLLPLGEN | CITY OF CP 632 | N/A | N/A | N/A | N/A | | |
| EMERGSER | EMS 147 | N/A | N/A | N/A | N/A | | |
| EMSRFD | EMS REFUND 147 | N/A | N/A | N/A | N/A | | |
| PORTRFD | PORT REFUND 640 | N/A | N/A | N/A | N/A | | |
| PORTWWGEN | PORT OF WW 640 | N/A | N/A | N/A | N/A | | |
| SD250BOND | SD #250 BOND 773 | N/A | N/A | N/A | N/A | | |
| SD250GEN | SD #250 GENERAL 770 | N/A | N/A | N/A | N/A | | |
| ST2 | STATE SCHOOL PART 2 600 | N/A | N/A | N/A | N/A | | |
| STATESCHL | STATE SCHOOL 600 | N/A | N/A | N/A | N/A | | |
| STREFUND | STATE REFUND LEVY 603 | N/A | N/A | N/A | N/A | | |
| | Total Tax Rate: | N/A | | | | | |
| | | | | Taxes w/Current Exemptions: | N/A | | |
| | | | | Taxes w/o Exemptions: | N/A | | |
Improvement / Building
| Improvement #1: | RESIDENTIAL | State Code: | 11 | 1493.0 sqft | Value: | N/A |
| Exterior Wall: | PLYWOOD | Heating/Cooling: | REV-HEAT-PUMP-W/DUCT | | Number of Bathrooms: | 2 | Number of Bedrooms: | 3 | | Plumbing: | 9 | Roof Covering: | COMP SHINGLE |
|
| | Type | Description | Class CD | Sub Class CD | Year Built | Area |
| | MA | Main Area | 1 | 30 | 2003 | 1493.0 |
| | SI1 | SITE IMPROVEMENT | 1 | 30 | 2003 | 1.5 |
| | ATG | Attached Garage | 1 | 30 | 2003 | 440.0 |
| | RPC | OPEN PORCH W/ROOF , CEILED | 1 | 30 | 2003 | 25.0 |
Sketch
Property Image
Land
| 1 | RES 1 | Converted: Residential | 0.1570 | 6839.00 | 0.00 | 0.00 | 1.00 | N/A | N/A |
Roll Value History
| 2026 | N/A | N/A | N/A | N/A | N/A |
| 2025 | $281,850 | $125,000 | $0 | $406,850 | $406,850 |
| 2024 | $313,170 | $60,000 | $0 | $373,170 | $373,170 |
| 2023 | $313,170 | $60,000 | $0 | $373,170 | $373,170 |
| 2022 | $313,170 | $60,000 | $0 | $373,170 | $373,170 |
| 2021 | $208,780 | $60,000 | $0 | $268,780 | $268,780 |
| 2020 | $154,650 | $60,000 | $0 | $214,650 | $214,650 |
| 2019 | $159,650 | $55,000 | $0 | $214,650 | $214,650 |
| 2018 | $133,040 | $55,000 | $0 | $188,040 | $188,040 |
| 2017 | $126,700 | $55,000 | $0 | $181,700 | $181,700 |
| 2016 | $115,190 | $55,000 | $0 | $170,190 | $170,190 |
| 2015 | $109,700 | $55,000 | $0 | $164,700 | $164,700 |
| 2014 | $109,700 | $55,000 | $0 | $164,700 | $164,700 |
| 2013 | $109,700 | $55,000 | $0 | $164,700 | $164,700 |
| 2012 | $109,700 | $55,000 | $0 | $0 | $0 |
| 2011 | $100,400 | $55,000 | $0 | $0 | $0 |
| 2010 | $117,700 | $55,000 | $0 | $0 | $0 |
| 2009 | $164,300 | $55,000 | $0 | $0 | $0 |
| 2008 | $114,500 | $30,000 | $0 | $0 | $0 |
| 2007 | $114,500 | $30,000 | $0 | $0 | $0 |
Deed and Sales History
| 1 | 09/27/2024 | SWD | STATUTORY WARRANTY DEED | MOODY BARBARA | TWIGG GEORGE & CHRISTY | | | $430,000.00 | 148276 | 2024-05593 |
| 2 | 09/16/2003 | WARRANTY D | WARRANTY DEED | ROFF HOMES INC | MOODY, BARBARA | | | $143,000.00 | 103022 | 2003-14120 |
| 3 | 09/16/2003 | QCD | QUIT CLAIM DEED | MOODY, ROGER & BARBARA | MOODY, BARBARA | | | | 103021 | 2003-14119 |
| 4 | 10/15/2002 | WARRANTY D | WARRANTY DEED | BOTIMER, DOUGLAS & GLORIA | ROFF HOMES INC | | | $180,633.00 | 100612 | 2002-11632 |
|   | |
| 5 | 07/09/2002 | WARRANTY D | WARRANTY DEED | | | | | | 99901 | 2002-0007795 |
Payout Agreement
| No payout information available.. |