Property
Account |
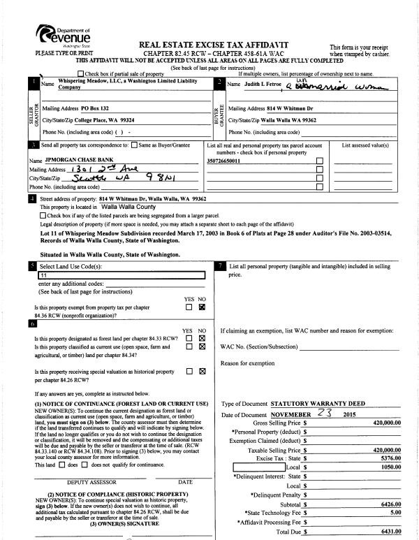
| Property ID: | 5005 | Abbreviated Legal Description: | WHISPERING MEADOW SUBDIVISION LOT 11 |
| Parcel Number: | 350726650011 | Agent Code: | |
| Type: | Real | | |
| Tax Area: | 311 - 250-4 | Land Use Code | 11 |
| Open Space: | N | DFL | N |
| Historic Property: | N | Remodel Property: | N |
| Multi-Family Redevelopment: | N | | |
| Township: | 7 | Section: | 26 |
| Range: | 35 |
Location |
| Address: | 814 W WHITMAN DR WALLA WALLA, WA 99362 | Mapsco: | |
| Neighborhood: | G SFR Rural/City Inf S | Map ID: | |
| Neighborhood CD: | 114212 |
Owner |
| Name: | FETROE JUDITH I | Owner ID: | 57847 |
| Mailing Address: | 814 W WHITMAN DR WALLA WALLA, WA 99362 | % Ownership: | 100.0000000000% |
| | | Exemptions: | |
Taxes and Assessment Details
Property Tax Information as of
02/21/2026
Click on "Statement Details" to expand or collapse a tax statement.
* Please enter a valid date ** Please enter a valid date *
Statement Details |
| | TOTAL: | $0.00 | $0.00 | $0.00 | $0.00 | $0.00 | $0.00 |
|
| | $0.00 | $0.00 | $0.00 | $0.00 | $0.00 | $0.00 |
Values
| (+) Improvement Homesite Value: | + | $0 | |
| (+) Improvement Non-Homesite Value: | + | $529,640 | |
| (+) Land Homesite Value: | + | $0 | |
| (+) Land Non-Homesite Value: | + | $130,000 | |
| (+) Curr Use (HS): | + | $0 | $0 |
| (+) Curr Use (NHS): | + | $0 | $0 |
| | | -------------------------- | |
| (=) Market Value: | = | $659,640 | |
| (–) Productivity Loss: | – | $0 | |
| | | -------------------------- | |
| (=) Subtotal: | = | $659,640 | |
| (+) Senior Appraised Value: | + | $0 | |
| (+) Non-Senior Appraised Value: | + | $659,640 | |
| | | -------------------------- | |
| (=) Total Appraised Value: | = | $659,640 | |
| (–) Senior Exemption Loss: | – | $0 | |
| (–) Exemption Loss: | – | $0 | |
| | | -------------------------- | |
| (=) Taxable Value: | = | $659,640 | |
Taxing Jurisdiction
| Owner: | FETROE JUDITH I | | |
| % Ownership: | 100.0000000000% | | |
| Total Value: | $659,640 | | |
| Tax Area: | 311 - 250-4 |
| CERFD | CURRENT EXPENSE REFUND 010 | 0.0000000000 | $659,640 | $659,640 | $0.00 | | |
| CURREXP | CURRENT EXPENSE 010 | 1.0175366760 | $659,640 | $659,640 | $671.21 | | |
| HUMNSERV | HUMAN SERVICES 119 | 0.0250000000 | $659,640 | $659,640 | $16.49 | | |
| SLDREL | SOLDIERS RELIEF 121 | 0.0155990005 | $659,640 | $659,640 | $10.29 | | |
| EMERGSER | EMS 147 | 0.3792580840 | $659,640 | $659,640 | $250.17 | | |
| EMSRFD | EMS REFUND 147 | 0.0000000000 | $659,640 | $659,640 | $0.00 | | |
| FD4EXP | FD #4 EXPENSE 686 | 0.8836993059 | $659,640 | $659,640 | $582.92 | | |
| RLBRFD | RURAL LIBRARY REFUND 623 | 0.0000000000 | $659,640 | $659,640 | $0.00 | | |
| RURALLIB | RURAL LIBRARY 623 | 0.3710609029 | $659,640 | $659,640 | $244.77 | | |
| PORTRFD | PORT REFUND 640 | 0.0000000000 | $659,640 | $659,640 | $0.00 | | |
| PORTWWGEN | PORT OF WW 640 | 0.2460186015 | $659,640 | $659,640 | $162.28 | | |
| SD250BOND | SD #250 BOND 773 | 1.4560608159 | $659,640 | $659,640 | $960.48 | | |
| SD250GEN | SD #250 GENERAL 770 | 2.3880724087 | $659,640 | $659,640 | $1,575.27 | | |
| ST2 | STATE SCHOOL PART 2 600 | 0.8131451643 | $659,640 | $659,640 | $536.38 | | |
| STATESCHL | STATE SCHOOL 600 | 1.5158548041 | $659,640 | $659,640 | $999.92 | | |
| STREFUND | STATE REFUND LEVY 603 | 0.0000000000 | $659,640 | $659,640 | $0.00 | | |
| COROAD | COUNTY ROAD 115 | 1.6549953990 | $659,640 | $659,640 | $1,091.70 | | |
| CRPRD | COUNTY ROAD REFUND 115 | 0.0000000000 | $659,640 | $659,640 | $0.00 | | |
| | Total Tax Rate: | 10.7663011628 | | | | | |
| | | | | Taxes w/Current Exemptions: | $7,101.88 | | |
| | | | | Taxes w/o Exemptions: | $7,101.88 | | |
Improvement / Building
| Improvement #1: | RESIDENTIAL | State Code: | 11 | 2607.0 sqft | Value: | $529,640 |
| Exterior Wall: | SIDING | Heating/Cooling: | WARM & COOLED AIR | | Number of Bathrooms: | 3 | Number of Bedrooms: | 4 | | Plumbing: | 16 | Roof Covering: | COMP SHINGLE |
|
| | Type | Description | Class CD | Sub Class CD | Year Built | Area |
| | MA | Main Area | 1 | 45 | 2015 | 2607.0 |
| | ATG | Attached Garage | 1 | 45 | 2015 | 870.0 |
| | RPC | OPEN PORCH W/ROOF , CEILED | 1 | 45 | 2015 | 42.0 |
| | RPC | OPEN PORCH W/ROOF , CEILED | 1 | 45 | 2015 | 448.0 |
| | SI1 | SITE IMPROVEMENT | 1 | 45 | 2015 | 4.0 |
| | SOLR-0 | SOLAR POWER-ZERO VALUE | 1 | 45 | 2015 | 25.0 |
Sketch
Property Image
Land
| 1 | RES 1 | Converted: Residential | 0.5475 | 23850.00 | 0.00 | 0.00 | 1.00 | $130,000 | $0 |
Roll Value History
| 2026 | N/A | N/A | N/A | N/A | N/A |
| 2025 | $715,010 | $170,000 | $0 | $885,010 | $885,010 |
| 2024 | $529,640 | $130,000 | $0 | $659,640 | $659,640 |
| 2023 | $529,640 | $130,000 | $0 | $659,640 | $659,640 |
| 2022 | $529,640 | $130,000 | $0 | $659,640 | $659,640 |
| 2021 | $504,420 | $130,000 | $0 | $634,420 | $634,420 |
| 2020 | $315,260 | $130,000 | $0 | $445,260 | $445,260 |
| 2019 | $370,260 | $75,000 | $0 | $445,260 | $445,260 |
| 2018 | $336,600 | $75,000 | $0 | $411,600 | $411,600 |
| 2017 | $336,600 | $75,000 | $0 | $411,600 | $411,600 |
| 2016 | $336,600 | $75,000 | $0 | $411,600 | $411,600 |
| 2015 | $283,700 | $75,000 | $0 | $358,700 | $358,700 |
| 2014 | $0 | $75,000 | $0 | $75,000 | $75,000 |
| 2013 | $0 | $75,000 | $0 | $75,000 | $75,000 |
| 2012 | $0 | $75,000 | $0 | $0 | $0 |
| 2011 | $0 | $90,000 | $0 | $0 | $0 |
| 2010 | $0 | $90,000 | $0 | $0 | $0 |
| 2009 | $0 | $90,000 | $0 | $0 | $0 |
| 2008 | $0 | $30,000 | $0 | $0 | $0 |
| 2007 | $0 | $30,000 | $0 | $0 | $0 |
Deed and Sales History
| 1 | 11/14/2023 | WARRANTY D | WARRANTY DEED | FETROE JUDITH I | FETROE JUDITH IRENE REVOCABLE LIVING TRUST | | | | 146788 | 2023-06662 |
| 2 | 11/23/2015 | SWD | STATUTORY WARRANTY DEED | WHISPERING MEADOWS LLC | FETROE JUDITH I | | | $420,000.00 | 129244 | 2015-10141 |
| 3 | 03/21/2003 | WARRANTY D | WARRANTY DEED | ALIVERTI LIVING TRUST | | | | | 101640 | 2003-03884 |
Payout Agreement
| No payout information available.. |